Преимущества создания кровати с выдвижными ящиками своими руками

Кровати с ящиками очень удобны для комнат, где каждый сантиметр площади имеет большую ценность
Каждый член семьи должен обладать своим личным уголком. Родители – спальней, дети – детской.

Самодельная кровать из дерева с выдвижными ящиками и бортиком для ребенка
Если отдельную комнату выделить не получается, часть общей площади нужно обустроить так чтобы, у тех и других, было свое спальное место, где хранить вещи, игрушки, книги.

Деревянная кровать с защитными бортиками и ящиками для вещей
Если это комната младшего члена семьи, то при организации детского пространства, нужно учесть тот момент, что малышу необходимо место где спать, играть.

В большом ящике детской кроватки легко поместятся все игрушки и даже одежда не по сезону
Кровать занимает много места, поэтому в интерьере детской, большой интерес представляют проекты постели с выдвижными ящиками. Не каждый родитель может сказать, что спальня отпрыска обладает внушительными размерами, чаще всего бывает так, что места катастрофически мало.

Детская кровать с тремя спинками и выдвижными ящиками внизу
Каждый должен иметь отдельную постель и родители, воспитывающие двоих или более детей, вынуждены ломать себе голову, как это все осуществить. Имеется один выход в сложившейся ситуации – кровать своими руками с выдвижными ящиками.

Функциональное использование пространства под кроватью
У вас появляется возможность сэкономить место, за счет использования подкроватного пространства.

Кровать с выдвижными ящиками — комфортно, практично, удобно
Выдвижные ящики используйте, как комод. В них поместятся игрушки и детская одежда. Чтобы на ней можно было сидеть, подушки, одеяла и постельное белье, складывают и убирают в ячейки. Изготовив кровать своими руками с выдвижными ящиками, вам не нужно ставить шкафы и комоды дополнительно. На сэкономленном пространстве разместить, к примеру, шведскую стенку или просто оставьте свободное поле для игр.

Ящики — не только место для хранения, но и украшение кровати
Дизайн и конструкция кровати с выдвижными ящиками.

В нишах под кроватью удобно хранить не только белье, но и любимые книги, читаемые перед сном
Конструкция кровати с выдвижными ящиками удобна, деталями напоминает шкаф. Дополнительное удобство обеспечивают выдвижные боксы. Сразу видно все, что там находится. Это существенно упрощает поиск. Глубокие, вместительные конструкции. Там поместится все, что угодно. Изготовить такую кровать ненамного сложнее, чем модель без зоны хранения.

Вместительные ящики для белья значительно сэкономят пространство комнаты
Кровать, оснащенная ящиками, может быть, как 1-спальной, так и 2-спальной, любого нужного размера. Состоит из двух частей – место для сна и место под вещи.

Подиум из ящиков — полноценный элемент дизайна кровати
При самостоятельном изготовлении кровати следует учесть несколько деталей.
- Дно предмета должно быть твердым, но эластичным (из фанеры или ДСП) с отверстиями для вентиляции.
- Размеры изделия зависят от габаритов матраса. Лучше выбрать ортопедический. Для детской кроватки предусмотреть гигиенический вкладыш из поролона, в чехле из синтетической ткани.
- Употребить качественную и удобную фурнитуру. Выдвижные отсеки должны без усилий выдвигаться. Более рационально будет, на полозья установить колесики.
Необходимые материалы для изготовления кровати.
Внешний вид изделия, его долговечность, качество – напрямую зависит от того, насколько правильно выбран материал. При изготовлении этого предмета своими руками, чаще всего используют.
-
Ламинированный ДСП. С ним проще работать новичку. Он имеет разнообразные расцветки, которые легко впишутся в подобранный стиль спальни.

Односпальная кровать с выдвижными ящиками из ламинированного ДСП

Недорогая самодельная двуспальная кровать из мебельного щита

Кровать из деревянных досок и бруса, изготовленная своими руками
Как организовать процесс изготовления: инструкция.

Чертеж двухэтажной выдвижной кровати с выдвижным ящиком для белья
После того, как определились, что хотите сделать кровать своими руками, местоположением, ее размерами, можно приступать к воплощению своей задумки. Стоит придерживаться разработанного плана.

Чертеж односпальной кровати с двумя выдвижными ящиками
Туда входят следующие этапы.
-
Определиться с материалами из которого будет сделана облицовка, опоры, зона под матрас.

Схема сборки закрытой кровати-подиум с выдвижными ящиками

Подробный чертеж кровати с выдвижными ящиками с размерами

Схема сборки кровати с описанием

Процесс сборки деревянной кровати своими руками

Каркас кровати с деревянным изголовьем

Сборка выдвижного ящика для кровати

Деревянный выдвижной ящик для кровати

Крепление выдвижного ящика на колесиках
Варианты отделки выбирайте, следуя своим предпочтениям, финансовым возможностям. Не имея особых навыков, вы сможете без проблем собрать удобную и функциональную кровать с ящиками своими руками.
Видео: Кровать с ящиками своими руками
Кровать с ящиками своими руками
Мебель в спальне должна быть максимально удобной, комфортной и практичной. Ультрасовременные модели кроватей не перестают удивлять оригинальными формами и дизайном, но классика всегда востребована и остается в моде. Например, кровать с ящиками своими руками может создать практически каждый, кто хоть немного знаком с азами столярного искусства.
Эта модель считается самой популярной. Она включает в себя не только ложе, но и достаточно объемный и удобный ящик для постельного белья и других вещей. Такую мебель чаще всего ставят в детской спальне или в комнатах с малой площадью.
Похожие статьи:
-

Подвесная кровать своими руками -

Односпальная кровать своими руками -

Металлическая кровать своими руками -

Каркас кровати своими руками
Кровать с ящиками своими руками чертежи, схемы
Практичность данной модели сделала ее самой востребованной, и порой мужчины приступают к самостоятельному изготовлению такой мебели. Работа состоит из трех этапов:
Для того чтобы смастерить кровать с ящиками для хранения, стоит ознакомиться с главными правилами столярного дела.
Чтобы создать чертеж, необходимо определиться с моделью и провести замеры. Важно учесть ширину, длину и высоту изделия, размеры таких деталей, как задняя и передняя спинка. Определяются высота и ширина ящика для хранения постельного белья. Создавая чертеж, необходимо рассчитать и глубину ложа там, где должен располагаться матрац.
Большую роль играет выбранная модель мебели. От этого и стоит исходить, создавая свою схему. Кровать может быть двуспальной или полуторной, односпальной или детской. Габариты и размеры берутся стандартные для этих типов мебели.
Сделанные под кроватью ниша или ящик должны иметь свои размеры. Их отдельно вносят в чертежи. Необходимо заранее продумать все детали и учесть малейшие нюансы при разработке индивидуального варианта спального места.
Замеры самого помещения желательно сделать после определения места расположения будущего изделия, не забыв учесть при этом длину выдвинутого ящика.
Инструмент
На втором этапе выбирают, из какого материала будет выполнено столярное изделие. Приобретается необходимый инструмент с подручными столярными материалами.
Из инструментов для создания в домашних условиях кровати с выдвижными ящиками понадобятся следующие:
- рулетка;
- циркулярная и торцовочная пила;
- дрель;
- электролобзик;
- шуруповерт и шурупы;
- наждачная бумага или шлифовальная машинка с абразивными дисками;
- антисептик;
- лак, грунтовка и кисти.
Кроме того, в зависимости от модели, потребуются дюпеля, гайки, болты, уголки, ролики для выездного механизма.
Материалы
Специалисты рекомендуют новичкам работать с ЛДСП. Данный материал более податлив и мастерить из него нетрудно. Ламинированная плита имеет свою толщину и плотность, расцветку и структуру поверхности. Здесь выбор всегда остается индивидуальным.
Для изготовления ящиков используют МДФ. Этот материал пригоден для частичного использования в мебели, но не для самого каркаса кровати. Более тяжелый и прочный материал – мебельный щит.
Некоторые предпочитают работать с натуральными плитами и досками. Создание кровати из досок имеет свою специфику. Важно правильно выбирать сечение брусьев. Для того чтобы конструкция прослужила дольше, лучше всего работать с обрезными досками хвойных деревьев.
Кровать из ДСП при правильно организованной работе можно создать за 1-2 суток, а работа с деревом может занять намного больше времени и сил.
Пошаговая инструкция сборки кровати с выдвижными ящиками
Важнейший этап в работе – распиловка материала на детали конструкции. Например, если работать с таким материалом, как МДФ, то изначально на поверхности листа делают разметку всех элементов.
Распил и торцовка элементов из МДФ
После нанесения на лист разметки рекомендуется еще раз сделать контрольные замеры. Распиливать лучше всего при помощи лобзика.
Все края срезанного материала заклеивают мебельной кромочной лентой. Работу надо выполнять аккуратно. После застывания клея все излишки удаляют ножом.
Монтаж корпуса
При помощи дрели в таких деталях, как изголовье, средняя, задняя стенки и боковые панели, делаются отверстия для винтов. Конструкция собирается воедино при помощи торцовочного ключа.
К изголовью и задней спинке присоедините на уголки боковые детали. Часто используют для этого небольшие брусья или планки. Фасадную и заднюю части прикрепите к рейкам и вкрутите шурупы.
Если в модели учтены ножки, то на данном этапе их можно присоединить. Затем стоит установить на дюбелях лист под матрац.
Для того чтобы сделать кровать с ящиками, изначально нужно собрать главную конструкцию, а выдвижные детали делаются отдельно.
Сборка и установка ящиков
Для того чтобы собрать ящик под кровать своими руками, нужно подготовить следующие элементы конструкции:
- две боковые стенки;
- фасадная часть;
- задняя часть;
- дно ящика.
Небольших емкостей (шириной 40 см или 50 см) можно сделать несколько вместо одного большого ящика. Такой вариант будет более прочен. Нагрузка на опоры колес направляющих выдвижного ящика будет меньшей.
Для того чтобы конструкция кровати с выдвижными ящиками была прочной, стоит избирательно и внимательно подойти к выбору материала. Мебельщики рекомендуют на дно выдвижных емкостей брать ДВП и качественные колесные опоры.
В передней и задней деталях, в боковых элементах делаются при помощи дрели отверстия для дюбелей. Последние ставятся на столярный клей. В нижней части всех деталей делают канавку для установки панели дна. Ее устанавливают на клей. К фасадной части цепляют ручку. Колесико и его механизм крепятся на нижней части боковых стенок.
Обзор двуспальной кровати с выдвижными ящиками. Приятная простота конструкции

В самостоятельном изготовлении любой корпусной мебели главное – это грамотный проект. Если рабочий чертеж двуспальной кровати с ящиками составлен правильно и рационально, то можно считать, что полдела уже сделано. Прежде чем начать делать двуспальную кровать своими руками с ящиками, необходимо продумать конструкцию так, чтобы все соединения были прочными, придавали каркасу жесткость и устойчивость. А отталкиваются, конечно, от размеров самого матраца, под который и подгоняется спальное место.
Нюансы самостоятельной сборки двуспальной кровати
Матрац может «ложиться» на ортопедическое основание в виде металлического каркаса и ламелей – специальных гибких планок.
- Ортопедическое основание, в свою очередь, крепится на ножки (в этом случае оно полностью независимое, а корпус кровати «собирается» вокруг него).
- Также ортопедическое основание может быть частью кровати. В этом случае с внутренней стороны корпуса кровати предусматривается опанелка, на которую оно будет опираться.
Также под матрац можно предусмотреть жесткую основу из ДСП.
Это первый момент, с которым нужно определиться, прежде чем начать делать двуспальную кровать своими руками: выбрать, каким будет основание, жестким, из ЛДСП или в виде ортопедического основания, зависимого или независимого, на своих ножках.
Второй момент – это наличие выдвижных ящиков в основании. Нужны они или нет – нужно определиться сразу. В каждом случае ребра жесткости в корпусе кровати могут проходить абсолютно по-разному. При этом сама кровать должна оставаться жесткой, не расшатываться со временем.
Тоже самое касается любых выдвижных модулей в каркасе кровати. Если вы задумали реализовать идею подъемного основания, какие-то выкатные или откидывающиеся элементы в спинке и основании – используйте только хорошую, качественную фурнитуру. Поскольку нагрузка на них практически во всех случаях будет большой.
Третий момент – это выбор материала для изготовления кровати своими руками.
Разработка чертежа кровати из массива, мебельного щита и бруса будет кардинально отличаться от модели, изготовленной из ламинированного ДСП. Кроме этого, детали из ДСП требуют дополнительное кромление торцов (меламиновой кромкой или ПВХ).
Кровать двуспальная с ящиками из ДСП своими руками
Особых сложностей в разработке внутреннего дизайна-проекта кровати нет. Если, конечно, не брать во внимание оформление спинки – фактически это отдельный декоративный элемент, который может быть абсолютно любым. А вот сам каркас кровати, на который кладется матрац, для разных спинок может оставаться одним и тем же.

Проектировать двуспальную кровать начинают под определенное спальное место – фактически, под имеющийся матрац. Имеет значение и его высота. Для низких матрацев (до 100-150 мм) основание делают повыше, чтобы кровать не была слишком низкой. Но в основном проектируют под стандартную высоту порядка 180-200 мм.
Допустим, вы приобрели (или планируете приобрести) матрац с размерами 2000х1800х200.

Матрац должен свободно, с запасом ложиться в короб. Чтобы внутреннее ограничение не мешало его естественным деформациям (когда вы ложитесь, поворачиваетесь во время сна). Обычно достаточно нескольких сантиметров. Например, под матрац 2000х1800 обычно делают двуспальную кровать с габаритами 2050х1850. За минусом толщины боковых стенок и спинок (ДСП 16 мм) под матрац остается проем 2018х1818. Можно уменьшить до 2010х1810. Этого вполне достаточно.
По высоте особых стандартов для двухспальных кроватей нет. Кто-то любит варианты пониже, кому-то по душе кровать повыше, на которой можно удобно сидеть. Обычно высота колеблется в пределах 350-450 мм. Но, например, в Европе кровати принято делать гораздо выше.
Поскольку мы составляем проект двуспальной кровати с выдвижными ящиками, будем отталкиваться от их высоты, порядка 200-250 мм. Короб под матрац достаточно сделать высотой в половину от высоты матраца, то есть 100 мм.
Проектирование основания двуспальной кровати своими руками
Дно короба под матрац, который будет служить основанием, делать цельным необязательно.
- Во-первых, целый лист ЛДСП увеличивает как расход материала, так и общий вес двуспальной кровати. Нагрузка на крепеж будет больше. И себестоимость мебели тоже.
- Во-вторых, к матрацу должен быть доступ воздуха, как в ортопедическом основании. Обычно в цельном днище просверливают отверстия для вентиляции.
Но можно реализовать и другое решение . Например, сделать основание под матрац двуспальной кровати своими руками составным (таким, как на чертеже).

Проектирование конструкции двуспальной кровати с ящиками
Для того, чтобы кровать была устойчивой, а дно прочным, под него нужно предусмотреть продольные и поперечные ребра жесткости.
Обычно продольное ребро жесткости проходит по центру под основанием кровати, а между поперечными – устанавливаются ящики.

Возьмем высоту ребер равную 250 мм. Длина продольного будет равна 2042 мм, а поперечных – 897 мм (вычислить это не сложно, достаточно учесть толщину ЛДСП 16 мм с каждой стороны и отнять от габаритов основания).
Проектирование спинок
Спинки двуспальной кровати принято называть изголовьем и подножьем.
Подножье современных двуспальных кроватей чаще всего делают в единую высоту с коробом. Хозяевам это позволит красиво застилать спальное место покрывалом – оно будет «свисать» с трех сторон. В нашем случае оно будет 350мм (250мм высота ребер жесткости и 100мм высота короба под матрац).
Изголовье обычно как-то украшают – делают радиусным, резным, обивают мягкой тканью или кожей. Сделаем его высотой 1000 мм и предусмотрим в качестве декора дополнительную панель. Ее можно также можно сделать контрастным или обтянуть тканью с подкладкой из поролона.

По краям спинки кровати немного выступают за короб, пусть по 10 мм и их ширина будет 1862мм (1810+16х2+10х2).
Проектирование выдвижных ящиков для двуспальной кровати
Осталось спроектировать выдвижные ящики на двуспальную кровать. И можно будет переходить к расчету размеров деталей (деталировки) для распила.

Глубина выдвижных ящиков ограничивается длиной направляющих. Как правило, максимум 600 мм. Если взять высоту ящика равной 150 мм, то размер боковин ящика будут 600х150мм
Чтобы механизм корректно выдвигался, нужно предусмотреть зазор между внутренним размером ниши и боковинами ящика, равный 13мм с каждой стороны.
Длина продольного ребра жесткости – 2042 мм. По центру размещается поперечное ребро и образует ниши, равные (2042-16)/2=1013мм.
Передняя и задняя панель выдвижного ящика (лоб ящика) будет по длине равна (1013-13х2-16х2)=955мм, сама деталь 955х150мм.
Дно ящика из ДВП 987х600 необходимо усилить жесткостью (слишком большое). Можно сделать перегородку (ее длина 600-16х2=568мм, а высота такая же, как у всего ящика).
Осталось рассчитать фасады. Обычно по бокам отнимают зазор в 2-3мм, а сверху и снизу 10мм, чтобы ящики не «шоркали» по полу при выдвижении. В нашем случае длина (2042/2)-2 = 1019мм, а высота 250-10 = 240мм.
Расчет размеров деталей для двуспальной кровати своими руками
Удобнее всего свести все размеры деталей в один список.
- Боковина короба продольная 2042х100 (2шт.)
- Боковина короба поперечная 1810х100 (2шт.)
- Дно основания узкое 1810х300 (2шт.)
- Дно основание широкое 1810х600 (1шт.)
- Перегородка продольная 2042х250 (1шт.)
- Перегородка поперечная 897х250 (2шт.)
- Подножье 1862х350 (1шт.)
- Изголовье 1862х1000 (1шт.)
- Вставка на изголовье 1712х500 (1шт.)
- Бок ящика 600х150 (8шт.)
- Лоб ящика 955х150 (8шт.)
- Перегородка ящика 568х150 (4шт.)
- ДВП на ящики 600х987 (4шт.)
- Фасады 1019х240 (4шт.)
Далее необходимо отметить стороны деталей, которые будут закатываться кромкой. Это «видимые» стороны по чертежу. Например, детали боковин короба закатываются по обеим длинным сторонам, а фасады ящиков и спинки кровати – по периметру.
Осталось раскроить материал, засверлить в местах соединений и собрать по месту.
Нюансы самостоятельной сборки двуспальной кровати
Кровать занимает довольно большую площадь и придется выставлять ее строго по уровню, чтобы конструкция не перекашивалась и не расшаталась со временем. Лучше всего использовать регулируемые подпятники для облегчения этой задачи.
Если кровать выставлена по уровню, а направляющие прикручены строго соосно относительно друг друга (то есть тоже по одному уровню), то выдвижные ящики будут скользить легко.
Фасады выдвижных ящиков крепятся в последнюю очередь. Проще их закрепить на нужном уровне, чем перекручивать направляющие, чтобы опустить выше или ниже ящик.
Крепеж спинок также стоит отложить «на потом». Они несут больше декоративную роль и их стоит крепить, когда весь каркас кровати собран и выставлен по уровню.
Кровать с выдвижными ящиками своими руками: порядок изготовления
- Модели кровати с выдвижными ящиками
- Выбор материала и подготовка к работе
- Порядок изготовления кровати-подиума
- Подготовка подиума и монтаж выдвижных ящиков
- Выдвижная конструкция кровати
Доступные схемы, простые строительные материалы, немного времени на работу — и вот перед вами уже кровать с выдвижными ящиками, сделанная своими руками. Как правило, говоря о кровати с выдвижными ящиками, имеется в виду кровать-подиум. Это удобная и красивая двухспальная кровать. Однако, руководствуясь данной инструкцией, вы сможете сделать и простую односпальную кровать своими руками, подкорректировав размеры изделия под свои нужды.

Чертеж кровати с выдвижными ящиками.
Модели кровати с выдвижными ящиками
Перед тем как сделать кровать своими руками, нужно ознакомиться с доступными вариантами.
Так, существует несколько моделей таких кроватей. Большинство из них предполагает возведение подиума, как очень удобного и функционального элемента интерьера для зонирования пространства в помещении.
Одна из популярных моделей представляет собой возведенный подиум, на который укладывается и соответствующим образом закрепляется матрас фабричного производства. В данном случае внутреннее помещение подиума может использоваться для хранения различных вещей и предметов обихода.
Еще одна популярная модель представляет собой выдвижную конструкцию. В данном случае подиум может использоваться в качестве дополнительного компактного места для отдыха или для работы.
В любом случае, выдвижная кровать дает возможность сэкономить полезное жилое пространство и создать эксклюзивное спальное место.
Вернуться к оглавлению
Выбор материала и подготовка к работе

Схема сборки кровати с ящиками.
Выбор и расчет необходимого количества материала на выдвижную кровать будет основываться на ее функциональности и дальнейшем декоративном оформлении. Вне зависимости от выбранного вида выдвижной кровати каркас выполняется из деревянного бруса с толщиной 27х27 мм для опор для расположения матраса и поперечных боковых планок.
Ширина подобного каркаса напрямую зависит от размеров помещения, в котором будет стоять кровать. По высоте каркас делается на 5 см выше, чем матрас. Дальнейший набор строительных материалов зависит от вида создаваемой кровати: будет это встроенная выдвижная конструкция кровати либо же просто уложенный матрас. Предполагаемая конструкция выдвижной кровати может быть готовой моделью или же изготовленной самостоятельно.
Основа кровати с выдвижными ящиками выполняется из деревянного бруса, сечение которого определяется характеристиками (размерами) самого изделия и степенью предполагаемой нагрузки (веса пользователя или пользователей). Каркас изделия обшивается фанерой толщиной от 12 мм и покрывается декоративным материалом. Материал должен быть красивым, практичным и гармонично вписываться в общий интерьер помещения.
Выбор материала, который будет использоваться в качестве покрытия, зависит от ваших индивидуальных предпочтений и интерьера комнаты. Нужно хорошо подумать, прежде чем окончательно определиться с выбором материала: кровать-подиум, созданная своими руками, будет занимать видное место в вашей комнате и во многом формировать стиль помещения. Это может быть ламинированное ДСП, декоративные панели, ковролин или какое-либо другое покрытие.

Схема сборки выдвижного ящика.
Далее будет рассмотрен один из самых популярных материалов — кровать-подиум с выдвижными ящиками с ковролиновым покрытием. Подготовьте инструменты и материалы, необходимые для работы:
- шуруповерт/электродрель;
- молоток;
- электролобзик;
- крестовую отвертку;
- саморезы;
- линейку;
- рулетку;
- карандаш;
- строительный степлер;
- фанеру толщиной 12 мм;
- деревянный брус;
- ковролин (если вы решили использовать его для покрытия подиума);
- кисть, малярный валик и краску (если вы решили просто окрасить подиум).
Прежде чем приступать к работе, необходимо убедиться, что в помещении будет достаточно места для установки выдвижной кровати. Кровать-подиум на первый взгляд кажется меньше, чем традиционные кровати на ножках, однако в действительности они занимают немного больше места. Если со свободным местом все в порядке, то следует провести окончательный расчет замеров и составить простой чертеж или целый дизайн-проект будущего изделия. После этого можно приступать непосредственно к работе.
Вернуться к оглавлению
Порядок изготовления кровати-подиума

Если вы собираетесь сделать выдвижную кровать, прежде всего, нужно разметить пол. Размечается участок пола под подиум нужных вам размеров. В случае если кровать будет примыкать к стене, рекомендуется убрать часть плинтуса. Это облегчит вам работу. Помимо этого, в итоге будет получена кровать, которая без просветов примыкает к полу и стене, что смотрится гораздо выгоднее и интереснее в стилистическом плане.
По периметру выполненной вами разметки закрепляется брус при помощи саморезов. На получившуюся раму установите вертикальные стойки, отрезанные от бруса. Высота данных стоек должна быть на 50 мм ниже предполагаемой высоты будущего изделия. Чтобы подиум не прогибался и был достаточно прочным, стойки лучше всего устанавливать на расстоянии не больше 40 см между собой.
Чертеж подиума в детской.
Подиум с выдвижными ящиками устанавливается традиционным методом, который заключается в крепление бруса по периметру изделия и последующей укладке досок. При этом необходимо учитывать размеры комнаты. Высота каркаса должна быть на 5 см выше.
Наиболее оптимально использовать доску толщиной 22 мм. Доски будут использоваться для изготовления центральной поперечной планки и наружных панелей. Для внутренних деталей блоков конструкции понадобится несколько листов ДСП. Сборка опорного каркаса ля матраса осуществляется с внутренней стороны блока. Сначала выполняется установка несущих брусков 47х27 мм, расположенных горизонтально, после чего устанавливаются опорные бруски.
Нагрузка, поступающая на опорные бруски, должна распределяться равномерно. Поэтому 1 брусок размещается в центре и 2 по краям. Бруски закрепляются при помощи шурупов.
Для создания стенок выдвижных досок используется доска толщиной 16 мм. Детали стенок ящиков подготавливаются и собираются. Для днища ящиков следует использовать фанеру толщиной 10 мм. Размеры выдвижных ящиков подбираются так, чтобы они соответствовали размеру внутренней части подиума.
Детали блоков ящика промазываются клеем. Конструкция собирается. До полного высыхания конструкции выдвижных ящиков используются струбцины.
Ящик для кровати можно вполне сделать своими руками. При наличии определенного инструмента и начальных навыков работы с ним такая задача не будет сложной. Использовать с пользой свободное пространство под ложем кровати можно двумя путями:
- Сделать подъемное ложе с нишей под ним.
- Сделать выкатные или выдвижные ящики, которые будут открываться перед кроватью или сбоку.
Второй вариант, конечно, предпочтительней, хоть и предполагает наличие «мертвой зоны» в месте выдвижения ящика. На этом месте невозможно будет поставить какой-либо предмет. Однако, использовать такую конструкцию намного легче и безопаснее, чем подымать тяжелый матрац. О том, как сделать кровать с ящиками своими руками – далее в статье.
Такой вариант является довольно популярным для тех, кто покупает фабричную мебель, но со временем задумывается о более эффективном пространстве. В этом случае выдвижной ящик представляет собой отдельную конструкцию, которая не является частью самой кровати. Выдвигаются такие конструкции не на направляющих, как встроенные, а на собственных колесиках.
Для сооружения такого ящика обязательными параметрами являются:
- Расстояние между ножками кровати. Для того чтобы ящик нормально выдвигался и не зацепился за габариты кровати, его ширина должна быть немного меньше, чем расстояние между ножками. Однако не стоит делать ящик слишком узким. При использовании он будет перекашиваться, что затруднит его выдвигание. Зазора между ящиком и ножками в 20 мм будет достаточно.
- Высота ящика должна быть на 10-15 мм ниже высоты от нижней панели кровати до пола.
- Глубина ящика должна быть такой, чтобы его передняя панель пряталась под кроватью.
- Для хранения постельного белья, чтобы оно не пылилось, на поверхность ящик одевается специальный чехол с молнией, который будет при необходимости открываться и закрываться.

Для изготовления выдвижного ящика понадобится:
- Плита ламинированной ДСП. Размеры должны соответствовать размерам изделия. Из нее будет изготовлено днище ящика. Для данной работы нельзя использовать ДВП, так как днище должно быть жестким, ведь к нему будут крепиться ролики ящика.
- Материал для бортов. Идеальным вариантом для производства бортов ящика может стать ламинат, особенно, если этот материал остался после укладки напольного покрытия. При своей относительно небольшой толщине он обладает прекрасными эксплуатационными и прочностными характеристиками.
- Мебельная фурнитура. Для сооружения выдвижного ящика понадобятся следующая фурнитура: ролики (минимум 4 шт.), пара мебельных ручек, мебельные стальные уголки, саморезы.
- Если стандартной длины ламинированной панели не хватит, ее можно сложить из двух кусков в замок, предварительно смазав замки клеем для дерева.
Из инструмента гарантированно понадобится:
- Электролобзик.
- Электрошуруповерт.
- Отвертка.
- Рулетка, карандаш угольник.

- Первым делом необходимо выпилить основание ящика из ламинированной ДСП. Делать это нужно аккуратно, чтобы не повредить кромку плиты. Если есть готовая столешница необходимых размеров (например, от старого стола) можно использовать ее.
- Далее нужно приготовить борта ящика. Для этого соединяем полосы ламината при помощи мебельных стальных уголков. Так как ламинат — это довольно тонкий материал, без уголков собрать его воедино не получится. При сборке бортов ящика необходимо сделать так, чтобы углы между планками были строго прямыми.
- Саморезы прикручиваются при помощи шуруповерта. Очень важно подобрать крепеж таким образом, чтобы при сборке он не прошел насквозь. Использовать дрель, особенно со стальным патроном, в такой работе нельзя. Она обладает большой инерцией вращения и за счет этого может провернуть саморез несколько лишних раз. В этом случае стенки отверстия разрушатся и не смогут держать саморез в неподвижном состоянии.
- Перед сборкой бортов ящика необходимо удалить замки ламинированных панелей. Делается это очень просто – при помощи электролобзика. В области замка ламинат имеет наименьшую толщину, поэтому избавиться от него не составит труда.
- После того как отбортовка собрана, с внутренней стороны внизу к ней прикручиваются мебельные уголки с шагом не более 120-160 мм. Делается это по всему периметру. Именно при помощи них отбортовка будет крепиться к днищу ящика.
- После того как уголки прикручены можно крепить борта к днищу. Делается это помощи тех же саморезов. Если все сделано правильно, в местах соединения не должно быть никакого зазора.
- Следующим шагом следует установка роликов. Купить их можно в любом магазине мебельной гарнитуры. Устанавливаются они по углам днища. Если их установить близко к центру, ящик будет неустойчивым.
- Последним штрихом в сборке выдвижного ящика станет установка ручек. Для более легкого выкатывания последнего ставятся две ручки.
- После окончания монтажа изделие закатывается под кровать. При правильной эксплуатации такой ящик может служить довольно долго.
Изготовление кровати с выдвижными ящиками своими руками

Чтобы изготовить кровать с ящиками своими руками, необходимо потрудиться.
Конструкция кровати будет состоять из нескольких основных узлов:
- Изголовье.
- Изножье
- Короба для ящиков
- Поддерживающая сетка
- Ящики.

- Первым делом изготавливается изголовье кровати двуспальной с ящиками для хранения. Так как оно, а также изножье, будут основными опорными конструкциями, их каркас изготавливают из бруса сечением 100х100 мм. Высота изголовья будет равна 1400 мм, изножья – 600 мм. Ширина обеих деталей должна быть одинаковой и составит 160 см. Такая ширина вполне достаточна для двуспальной кровати. Чтобы сделать эти детали более привлекательными между брусьями можно вставить лист фанеры. Для этого в них делаются специальные пазы.
- Для сборки изголовья и изножья используют столярный клей и гвозди.
- После окончания изготовления этих деталей начинают работу с коробами. Длина трехсекционного короба составит 2000 мм, ширина – 400 мм, высота 350 мм. Короба собираются из фанеры толщиной 20 мм, ширина каждой секции под ящик — 650 мм. Сборка коробов производится при помощи гвоздей и столярного клея. Обязательно стоит укрепить стенки короба стальными мебельными уголками.
- После окончания работ задняя стенка короба закрывается листом ламинированной ДВП. Таким же образом изготавливается и второй короб.
- Затем короба крепятся к изголовью и изножью. Важно, чтобы места крепления были на брусьях. В качестве крепежа используют конфирматы. Теперь уже конструкция больше напоминает кровать. Однако, между коробами образовалось пространство, на которое невозможно будет уложить матрац (он просто будет проваливаться). Для того чтобы это предотвратить, между коробами устанавливается поддерживающая сетка. На каждом из коробов на 20 мм ниже от верхнего края по всей длине крепится брус сечением 20х20 мм. В торцах он закрепляется к изголовью и изножью. К брусу и коробам с обеих сторон в середине ложа крепятся дополнительные ножки. Они нужны, чтобы снизить нагрузку на короба с ящиками и на конструкцию изголовья и изножья. Дополнительные ножки изготавливаются из бруса сечением 20 мм х 20 мм.
- Далее сверху на закрепленные брусья устанавливаются короткие планки из того же материала. Шаг установки планок – не более 100 мм. Крепятся они гвоздями или шурупами. Если весь процесс монтажа выполнен правильно, поверхность ложа будет на одном уровне.
- Теперь можно приступать к изготовлению выдвижных ящиков под кровать своими руками. Для такой конструкции кровати их нужно будет 6 штук (по 3 с каждой стороны). Стенки ящиков изготавливаются из фанеры толщиной 20 мм, а днище из листа толщиной 6 мм. Размер каждого ящика 630 мм х 350 мм. Стенки соединяются между собой при помощи клея и гвоздей. С фронтальной стороны каждого ящика устанавливается передняя декоративная крышка с молдингами. Молдинги можно сделать самостоятельно либо купить готовые в магазине.
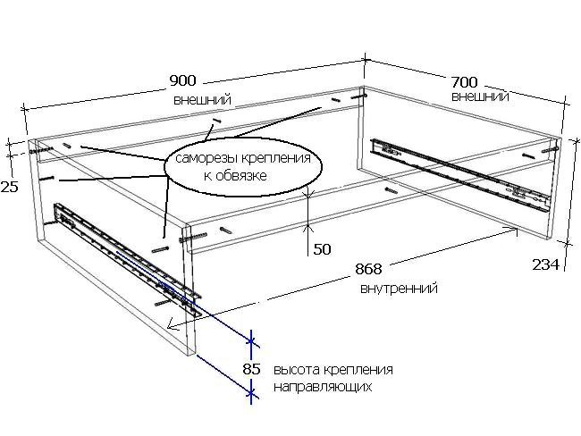
- Готовый ящик устанавливаются на специальную фурнитуру. Направляющие для выдвижных ящиков своими руками должны быть установлены на расстоянии не менее 25 мм от края ниши. В таком случае декоративная панель с молдингами будет располагаться заподлицо, что сделает кровать более привлекательной. Чтобы ящики легко было выдвигать, к ним приделывают ручки. Особенно красиво будут смотреться ручки «под старину».
- Последним штрихом станет покрытие всей конструкции кровати защитным покрытием, которое воспрепятствует порче древесины. Для начала всю поверхность кровати вскрывается морилкой. Она придаст дереву отличный вид, подчеркивая его фактуру. Процедуру повторяют два раза. Затем наносится два слоя бесцветного лака. Он станет защитным слоем, чтобы не повредить древесину. Единственное, что остается, положить матрац на кровать.

Кресла кровати с ящиком для белья: фото







