Как сделать подвесной потолок своими руками – пошаговая инструкция
Любой капитальный ремонт квартиры или офисного помещения начинается с потолочных перекрытий. Работа с неровным или черновым бетонным потолком может стать слишком трудоемкой и затратной. К тому же, невозможно гарантировать, что все недостатки будут устранены. В таком случае отличным решением может стать сделанный своими руками подвесной потолок. Его изготовление нельзя назвать простым, но при условии следования рекомендациям и правилам, вполне под силу домашним умельцам. В данной статье речь мы подробно расскажем, как сделать навесные потолки своими руками, что из инструментов и материалов понадобится в работе, и как выполнить расчеты.
Что собой представляют подвесные потолки
Итак, под подвесным потолком понимается декоративная конструкция, которая фиксируется на направляющих профилях и придает помещению эстетичный вид, маскируя при этом все дефекты черновой поверхности и размещенные коммуникации или провода, если таковые присутствуют. Более того, подвесной потолок играет роль утепляющего и звукопоглощающего барьера, что особенно важно в многоэтажных домах.
Чтобы соорудить навесной потолок своими руками, необходимо предварительно закрепить особую каркасную конструкцию из продольных и поперечных профилей и подвесов. На них впоследствии будет крепиться, собственно, материал подвесного потолка. Это может быть либо гипсокартон, либо специальные панели.
Обратите внимание, что бывает несколько разновидностей подвесного потолка. В частности сетчатые, решетчатые, реечные, которые еще называют модульными. Если для обшивки каркаса используется гипсокартон, то такой потолок называют сплошным. В тех случаях, когда гипсокартон фиксируется непосредственно к черновому перекрытию без подвесов, то речь идет о подшивном потолке.
Преимущества и недостатки подвесного потолка
Естественно, что у любого вида декоративной отделки есть как достоинства, так и недостатки.
Среди преимуществ навесных потолков можно назвать:
- Возможность спрятать любые несовершенства чернового потолочного перекрытия – наличие щелей, трещин, сколов и выбоин, неровностей и перепадов уровня.
- Эстетичный внешний вид – благодаря такому декору помещение можно преобразить и украсить.
- Большой простор для фантазии – можно варьировать высоту и уровни потолков, сочетать несколько видов материала;
- Есть возможность монтажа любого типа освещения – как основных светильников, так и дополнительной подсветки, исходя из первоначального проекта.
- Обеспечение качественной звукоизоляции и утепления.
- Удобный и нетрудоемкий уход – достаточно стереть пыль сухими тряпками.
- Разнообразие финишной отделки поверхности потолка.
- Легко замаскировать все коммуникации и внутри конструкции подвесных потолков.

Тем не менее, даже такие, казалось бы, идеальные во всех отношениях подвесные потолки не лишены ряда недостатков.
Наиболее существенные среди них таковы:
- Конструкция потолка, как правило, «крадет» порядка 7-8 см или более высоты помещения, поскольку необходимо закреплять каркас для его монтажа.
- В зависимости от сложности исполнения и размеров помещения монтаж подвесного потолка может занять достаточно много времени – обычно несколько дней.
- Затраты на приобретение материалов для подвесных потолков могут быть довольно существенными, особенно если приобретаются не самые простые и дешевые материалы.
- Если над потолком были проведены какие-либо коммуникационные линии, к ним необходимо обеспечить доступ, сделав специальное окошко.
- Поскольку гипсокартон не отличается высокой влагостойкостью, в помещениях с повышенной влажностью, например, ванных или санузлах, бассейнах или банях, такой материал применять не рекомендуется.
Инструменты и материалы
Перед тем, как сделать навесной потолок своими руками, необходимо будет закупить полный перечень материалов для каркаса, гипсокартон, а также выбранный по своему вкусу вариант финишной отделки.
Первым шагом в данном случае станет собираемый своими руками каркас подвесного потолка. При этом нужно определиться, из какого материала он будет сделан – из дерева или металла. Если вы решите остановиться на деревянном варианте, то придется закупить бруски, которые к поверхности потолка будут крепиться на подвесах. Если же выбрать традиционный металлический вариант каркаса, то для его создания необходимо будет приобрести несколько разновидностей металлических профилей.
Обратите внимание, что профили и брусья могут быть как основные, так и несущие. В случае изготовления металлического каркаса раньше использовались только несущие профили, однако в последнее время существует тенденция комбинировать несущие и основные профили. Что касается деревянных брусков, то их тоже можно сочетать, чтобы итоговая конструкция не получилась слишком тяжелой.
Согласно пошаговой инструкции навесной потолок своими руками собирают из металлических оцинкованных профилей с маркировкой ПП 60/27 и ПНП 28/27. Зарубежные аналоги могут маркироваться как CD и UD.
Кроме того, в процессе монтажа вам понадобится набор подвесов, которые фиксируются на потолке и удерживают подвесной каркас, анкеры и дюбель-гвозди, соединительные «крабы» для стыковки перемычек, а также два вида саморезов – маленькие с буром для металлических изделий и по гипсокартону.
Основной материал, который используется для подшивки сплошного навесного потолка – это гипсокартон.
В зависимости от характеристик различают несколько разновидностей гипсокартона:
- маркировка ГКЛ присваивается стандартному материалу;
- ГВКЛ – это обозначение гипсокартона с влагостойкими качествами;
- ГКЛО – такой гипсокартон в своем составе содержит стекловолокно, поэтому обладает огнеупорными свойствами;
- маркировка ГКВЛО присваивается материалу, который сочетает и огнеупорные и влагостойкие качества;
- ГВЛВ – это гипсокартон с наилучшими эксплуатационными характеристиками, высшего качества, иногда его еще называют «суперлист».
Наиболее доступным по цене и оптимальным по массе является стандартный гипсокартон с маркировкой ГКЛ. Именно его чаще всего выбирают для обшивки обычных жилых помещений, к которым не предъявляют повышенные требования безопасности.
Параметры листов стандартного гипсокартона обычно таковы:
- длина – 1500-2500 мм;
- ширина – 600-1200 мм;
- толщина – 9,5 мм.
Перед тем, как делать подвесной потолок, понадобится провести расчет количества материалов для ремонта. В этом могут помочь многочисленные онлайн-калькуляторы, однако, на практике с такой задачей вполне можно справиться самостоятельно. Если определить площадь поверхности потолка и габариты листов гипсокартона, можно легко рассчитать, сколько листов уйдет для полного покрытия площади.
Обратите внимание, что гипсокартонный подвесной потолок будет иметь достаточно большую массу. Каждый 1 м 2 стандартного гипсокартона весит около 13-15 кг, поэтому для оборудования потолка стоит позвать подсобника.
Стоит отметить тот факт, что швы между листами гипсокартона будут слабыми местами конструкции опять же из-за ее существенной массы. На этих участках наносимая впоследствии штукатурка может трескаться. Поэтому на этапе финишной отделке этим местам нужно будет уделить особое внимание.
Для работы с подвесными потолками потребуются такие инструменты:
- перфоратор;
- шуруповерт;
- стремянка;
- строительный нож;
- уровень, желательно лазерный;
- рулетка;
- карандаш для разметки.
Если планируется оборудование сложной системы подсветки, то все светильники и светодиодную ленту нужно приобрести заранее. Кроме того, важно наметить расположение осветительных приборов и проложить для них электропровода еще до обшивки поверхности гипсокартоном.
Снаружи гипсокартонный потолок нужно будет облагородить.
Для этого понадобится:
- грунтовочная смесь;
- стартовая и финишная шпаклевка;
- шпатель;
- армирующая сетка для укрепления стыков и швов.
Примерное количество материалов для обустройства подвесного потолка из расчета на 1 м 2 гипсокартона выглядит так:
- анкерные болты – 1 шт;
- профили ПП 60/27 или CD – 2,9 м
- профили ПП 28/27 или UD – по периметру гипсокартона;
- уплотнительная лента – по периметру материала;
- прямой подвес, тяги и подвесы – по 1 штуке;
- саморезы по металлу – 2 штуки;
- саморезы по гипсокартону – 23 штуки;
- соединительные крабы – 2 штуки;
- удлинители профиля – 0,2-0,5 единицы;
- дюбели на 1 м профиля ПП 28/27 – 2 штуки;
- армирующая сетка – 1,2 м;
- лента разделительная – по периметру материала.
Обратите внимание, что прежде чем начинать работу, стоит подробно распланировать свои действия. Составьте подробную поэтапную схему, которой будете следовать. Она же поможет в расчетах количества материалов.
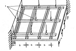
Устанавливаем одноуровневый потолок по шагам
Опишем процесс сборки одноуровневого подвесного потолка своими руками в пошаговой инструкции. Если все материалы и инструменты уже закуплены и подготовлены, то можно приступать к монтажу потолка. Однако прежде нужно убрать лишние предметы мебели из помещения или хотя бы накрыть их, если первый вариант невозможен. После этого можно начинать выполнение разметки на стенах и потолке, а также монтировать крепежные элементы.
Этап 1. Берем рулетку и измеряем высоту потолка в каждом углу комнаты. Находим таким способом самую низкую точку – с нее и будем начинать.
Этап 2. От угла откладываем вниз 5-8 см и ставим в этом месте точку. Обратите внимание, что при наличии дополнительных светильников, под которые нужна своя проводка, отступ стоит сделать немного больше.
Этап 3. В каждом углу проставляем точки, которые соответствуют уровню первой отметки.
Этап 4. Все отметки соединяем между собой ровными линиями, используя карандаш или малярный шнур.
Далее в процессе монтажа подвесного потолка своими руками пошаговая инструкция предлагает переходить к сборке каркасной конструкции.
Этап 5. Берем несущие профили ПП 28/27 (UD) и крепим их к стене вдоль нанесенных линий. Сначала профиль прикладываем нижним ребром над линией разметки. Затем сквозь отверстия в планке ставим точки на стене, помечая места для сверления. Просверливаем отверстия в стене. Обратите внимание на сами профили. Если в них нет заготовленных отверстий для крепления по бокам, их необходимо высверлить самостоятельно, отступив от краев по 10 см.
Этап 6. Подготовленные профили проклеиваем уплотнительной лентой и фиксируем к стене дюбель-гвоздями.
Этап 7. Подвесы будут находиться на расстоянии 40 см друг от друга. Поэтому на потолке нужно прочертить линии с указанным отступом.
Этап 8. Поскольку на профилях будут установлены соединительные перемычки примерно через каждые 2,5 м, то подвесы будут крепиться с шагом в 50 см. При этом для монтажа первого ряда подвесов от стены отступаем 25 см, а следующий еще через 50 см, то есть в 75 см от стен. Все последующие ряды фиксируем с шагом в 60 см.
Этап 9. Чтобы отверстия для подвесов были в нужных местах, прикладываем их к разметке на потолке и заново проставляем точки для сверления отверстий. В готовые углубления ставим анкеры, закрепляем ими подвесы, чтобы они не прогибались, иначе, работа будет испорчена.
Этап 10. Приступаем к монтажу подвесов. Если их длина не вписывается в параметры комнаты, их можно либо укоротить, либо удлинить. Чтобы увеличить длину профиля, можно соединить две планки специальными приспособлениями. Стоит проконтролировать, чтобы места стыков в соседних рядах были расположены вразбежку и вблизи подвесов, иначе каркас может не выдержать веса гипсокартона. Совокупная длина профилей в одном ряду должна быть меньше размера потолка на 1-2 см. При этом каждую планку нужно начинать крепить к подвесам и направляющим от угла комнаты, используя для этого саморезы. В последнюю очередь устанавливают профили в центральной части комнаты.
Этап 11. Сначала крепим два ряда профилей с одной стороны потолка. Затем переходим к противоположной стене, там закрепляем также два ряда профилей. После этого можно перейти к центральным планкам.
Этап 12. Используя крабы и саморезы, устанавливаем перемычки с шагом в 2,5 м. Они располагаются в местах, где будут проходить стыки между соседними листами гипсокартона.
Этап 13. Наконец, переходим к фиксации гипсокартона. Кромки обрезаем ножом так, чтобы получился небольшой уголок. Это улучшит сцепление со шпаклевкой. Если торцы оклеены с завода, то оставляем как есть.
Этап 14. Лист прикручиваем, начиная от угла. Прикладываем лист к профилям с отступом от стены в 0,5 см. Саморезы завинчиваем через 20 см. На швах между соседними листами саморезы располагаем вразбежку. Шляпки саморезов слегка углубляем в поверхность гипсокартона, чтобы они не выглядывали. Сами гипсокартонные листы также укладываем со смещением, чтобы 4 куска не сходились в одной точке.
Финишная отделка
Процесс, как собрать подвесной потолок, не заканчивается на креплении гипсокартона. Всю поверхность потолка после этого нужно еще доработать. Выбирается любой вид финишной отделки по своему вкусу – простая или фактурная штукатурка, окрашивание, оклейка обоями или другие варианты. Однако в любом случае необходимо обработать поверхность – зашпаклевать швы, стыки и углубления от саморезов. Сначала поверхность грунтуют, а затем покрывают шпаклевкой.
После того, как первый слой стартовой шпаклевки подсохнет, на стыках и швах прокладывают армирующую сетку (серпянку) и наносят еще один слой смеси. Если швы между листами слишком широкие, их заполняют шпаклевочной смесью. Кроме того, в процессе затирки швов вы наверняка заметите любые огрехи на гипсокартоне – царапины, отслоившуюся бумагу и прочее. Эти дефекты также нужно проложить серпянкой и зашпаклевать.
Чтобы шпаклевка лучше схватывалась с материалом, края гипсокартона на стыках лучше делать слегка закругленными. Тогда смесь максимально глубоко проникнет в пространство между листами. Армирующую ленту и слой шпаклевки нужно выравнивать по толщине гипсокартона. Это возможно, поскольку по краям листы слегка заужены по толщине, чтобы можно было утопить армирующую сетку.
Если гипсокартон обрезали самостоятельно для крепления на потолок, то сначала кромку среза необходимо зачистить рубанком или ножом под 45 ℃. Таким образом, получится борозда в виде клина, в которую свободно войдет шпаклевка и армирующая лента. При этом шпаклевка хорошо схватится с гипсокартоном.
Когда вся поверхность гипсокартона будет покрыта стартовой шпаклевкой и высохнет, можно нанести окончательный слой финишной шпаклевочной смесью.
Таким образом, технология, как делают подвесные потолки, включает подготовку поверхности, прокладку электропроводки под освещение, сборку каркаса, крепление гипсокартона, установку освещения и финишную отделку поверхности.
Несколько рекомендаций
Приведем еще несколько коротких рекомендаций по монтажу подвесных потолков своими руками:
- Используйте только материалы хорошего качества. Так вы обеспечите себе надежное и долговечное потолочное покрытие.
- Не спешите во время работы. Составьте план, потратьте больше времени на разметку поверхности и расчеты, чтобы не ошибиться и не бегать по магазинам за недостающими материалами.
- Гипсокартон марки ГКЛ стоит использовать только в сухих помещениях.
- Уровень – ваш лучший помощник.
- Чтобы дополнительно звукоизолировать комнату, используйте минеральную вату, расположив ее над каркасом.
- Прежде чем начинать крепить гипсокартон, оставьте его полежать в горизонтальном положении на несколько дней.
Монтаж навесных потолков из гипсокартона не является таким уж сложным делом. Данная инструкция поможет вам сделать подвесной потолок своими руками и избежать ошибок и недочетов.
Порядок, нюансы и стоимость установки натяжных потолков
Установка натяжных потолков — самый простой и недорогой способ привести потолок в порядок и придать квартире опрятный вид. Также это самый «чистый» и быстрый вариант, поскольку монтаж не занимает много времени и не создает никакого беспорядка. А разнообразие материалов, фактур и оттенков натяжных потолков позволяет выбрать именно тот, который органично впишется в интерьер вашей комнаты.
Время и особенности установки натяжного потолка
Простота монтажа — один из основных плюсов натяжных потолков. При их установке нет ни пыли, ни грязи, вам не придется проводить генеральную уборку после работы мастеров. К тому же весь процесс не занимает много времени.
Продолжительность работ по установке натяжного потолка зависит от размеров комнаты, сложности ее геометрии:
- наличие дополнительных углов и альковов;
- наличие труб и выступов;
- количество светильников;
- сложность самой потолочной конструкции — очевидно, что обычный потолок смонтировать быстрее, чем многоуровневый.
В среднем установка натяжного потолка в квадратной или прямоугольной комнате площадью 15–20 м 2 занимает два–четыре часа.
Если вы хотите установить несколько светильников, имейте в виду, что обустройство точки для каждого из них увеличит время установки натяжного потолка примерно на 20 минут.
В помещениях с высокими (выше трех метров) потолками дело может идти несколько медленнее: в таких комнатах время монтажа увеличивается примерно на два часа.
Монтаж сложных многоуровневых конструкций требует большого мастерства и времени, их установка в помещении площадью 15–20 м 2 может потребовать восьми–десяти часов работы.
Натяжной потолок прост в монтаже, тем не менее его установку лучше доверить профессионалам, поскольку в этом деле очень много важных мелочей.
Необходимое оборудование и комплектующие
Для установки натяжных потолков необходимо не только обладать определенными навыками, но и иметь целый набор инструментов.
На стадии замеров и при установке натяжных потолков потребуются рулетки, лазерные нивелиры и другие точные измерительные приборы — потолок делается «по мерке» комнаты, и ошибки здесь недопустимы.
Для закрепления профиля, на котором будет держаться потолок, понадобится перфоратор и шуруповерт.
Металлодетектор используется для обнаружения в толще стен труб и проводов. Он нужен, чтобы мастер не повредил инженерные коммуникации во время работы.
Потолочное полотно из ПВХ расправляется после обработки тепловой пушкой — мощным тепловентилятором — и закрепляется на профиле при помощи специальных монтажных лопаток.
Этапы установки натяжных потолков
Точная последовательность работ зависит от особенностей комнаты и потолочной конструкции. Рассмотрим этапы на примере монтажа полотна из ПВХ-пленки:
- Замеры, которые проводятся при заказе натяжного потолка. Точность замеров — необходимое условие качественной установки, человек без опыта и специального оборудования вряд ли сможет замерить все параметры самостоятельно. Да и необходимости в этом нет: компании, которые занимаются установкой натяжных потолков, оказывают такую услугу бесплатно.
- Доставка заранее раскроенного полотна на объект.
- Разметка мест крепления профиля на стенах.
- Подготовка полотна. Пленку разогревают тепловой пушкой и расправляют (при монтаже тканевых полотен этот этап отсутствует).
- Собственно монтаж. Полотно закрепляют на багете по углам, растягивают по диагонали, прогревая тепловой пушкой, и заправляют в багет по всему периметру.
Это базовая технология. Если предполагается монтаж многоуровневой конструкции, сначала создается каркас, на который затем натягиваются полотнища. Это гораздо более сложный и продолжительный процесс.
Еще сложнее установка натяжного потолка «звездное небо». Такие потолки очень красивы, но с технологической точки зрения не самые простые. Эффект мерцающих звезд обеспечивается посредством использования светодиодов или оптоволокна. Для создания таких потолков под полотном нужно обустроить нишу для генератора и платформу, на которой будут размещены нити оптоволокна, — ее нередко делают из тонкой фанеры на каркасе. После натяжения полотна через специальные отверстия нити выводятся наружу и обрезаются заподлицо с полотном. Все делается вручную, и это поистине ювелирная работа. «Звездное небо» из светодиодов немного проще — лампы крепятся к основе специальным силиконовым клеем. Затем натягивается потолок из особой светопропускающей пленки.
Определенные особенности есть и у установки натяжных потолков в больших помещениях. Чтобы полотно не провисало, мастер монтирует дополнительные ребра жесткости. Само полотно в таких случаях будет иметь сварной шов, поскольку ширина пленки ограничена. Однако этот шов практически незаметен и порой даже сам хозяин квартиры не может сказать точно, где он проходит.
Кстати
Натяжной потолок можно обустроить в любой момент, даже если ремонт давно закончен. В этом случае к установке натяжного потолка следует подготовиться — из комнаты придется вынести всю габаритную мебель, убрать ковры, снять со стен светильники и картины. Проверьте также качество стены в том месте, где к ней будут крепить профиль, — штукатурка должна быть прочной.
Технологические нюансы процесса
Существует несколько технологий закрепления натяжных потолков. Сложно сказать, какая из них предпочтительнее, поскольку у каждой есть как преимущества, так и недостатки.
Гарпунная технология
Для закрепления потолка таким способом к стене комнаты крепится профиль, в который вставляется полотнище с приваренными к нему (на специальном станке) по периметру пластиковыми «гарпунами» — этот элемент получил свое название из-за сходства с орудием китобоев. Гарпун цепляется к профилю, как крючок, поддерживая натяжение полотна.
Плюс гарпунной технологии монтажа — надежность решения. Минус — времени на подготовку полотна из-за необходимости «приваривания» гарпунов уходит гораздо больше, чем при других видах монтажа. Кроме того, таким образом можно монтировать только потолки из ПВХ-пленки.
Клиновая технология
При такой технологии используется пластиковый клин (штапик), который зажимает полотно в алюминиевом П-образном профиле. Этот способ монтажа позволяет делать минимальный отступ от перекрытия (всего 1,5–2 см), сохраняя высоту потолков. Но клиновая технология требует от мастера профессионализма и опыта. Если допустить ошибки, то возможно провисание полотна.
Клипсовая технология
Эта технология применяется для установки тканевых потолков. Прочный пластиковый профиль сделан по принципу прищепки-клипсы — край потолка вставляется в щель и клипса защелкивается. Клипсовую технологию отличает простота и отсутствие необходимости прикрывать зазор потолочным плинтусом.
Советы экспертов
- Чтобы потолок не запачкался во время других ремонтных и отделочных работ, устанавливать его следует в последнюю очередь, буквально перед расстановкой мебели.
- Заранее продумайте схему освещения. Лучше всего, если светильники будут установлены в тот же день, что и потолок, поскольку в компаниях, которые занимаются электроработами, далеко не всегда есть мастера, умеющие работать именно с натяжными потолками. Установить светильник на такой потолок можно в любой момент, но если за дело возьмется человек без опыта, результат может получиться не очень красивым.
- Между потолком и перекрытием может образовываться конденсат, портящий полотно. Чтобы этого избежать, в потолке делают специальные вентиляционные отверстия. Если площадь комнаты велика (более 35 м 2 ), то потребуется не просто отверстие, а вентиляционная решетка.
- При установке натяжных потолков существуют определенные требования к источникам освещения. Нельзя использовать слишком яркие и мощные лампы: от постоянного нагрева некоторые типы потолков деформируются и меняют цвет. Мощность обычных ламп должна быть менее 60 Вт, галогенных — менее 25 Вт.
- Натяжной потолок может нести не только эстетическую, но и практическую функцию — например, обеспечивать звукоизоляцию. Звукоизолирующее полотно предлагают некоторые европейские компании, в частности Clipso.
- Натяжной потолок не обязательно должен быть белым — выбор цветов огромен: от пастельных до темных и насыщенных. Подбирая оттенок, оценивайте особенности комнаты. Потолки ярких цветов могут визуально уменьшить помещение, для квартир с низкими потолками больше подходит полотно светлых оттенков.
- Глянцевые потолки визуально увеличивают высоту комнаты. Это отличный вариант для комнат с невысокими потолками. Но будьте осторожны, устанавливая такие потолки в узких помещениях, например в коридоре. Из-за отражающего эффекта может возникнуть искажение пропорций, и комната будет казаться хоть и высокой, но еще более узкой.
Сколько стоит установка натяжного потолка под ключ
Сколько стоит заказать установку натяжного потолка? Стоимость зависит от нескольких факторов. Основной — материал полотна. На рынке присутствует дешевая китайская продукция, российское полотно средней стоимости и дорогие потолки производства Швейцарии, Бельгии и Германии. Покупатели могут выбрать между потолком из ПВХ-пленки и тканевым потолком — второй вариант чуть дороже. Стоимость одного и того же обычного белого потолка может различаться в зависимости от производителя — европейские потолки порой в три раза дороже китайских, однако они безопаснее, красивее и долговечнее.
На цену влияет и качество установки — то есть профессионализм работников. Некоторые компании, пытаясь снизить цену на свои услуги и привлечь покупателей, зовут на работу людей без опыта и необходимых навыков. Услуги таких монтажников дешевы, но и результат соответствует такой стоимости их работ. Поэтому определенно можно сказать, что дешевый потолок, установленный профессионалами, лучше, чем самый дорогой европейский, смонтированный бригадой непрофессиональных рабочих.
Кроме того, стоимость зависит от сложности работ: значение имеет геометрия комнаты, количество светильников, датчиков сигнализации, труб и проводов, а также необходимость установки скрытой подсветки под потолком.
Поскольку установкой натяжных потолков занимаются те же компании, что и продажей, обычно цена установки входит в стоимость потолка как такового. В среднем в московских компаниях 1 м 2 натяжного потолка с установкой стоит порядка 500–2000 рублей в зависимости от типа, материала и фирмы-производителя полотна. За обустройство каждого дополнительного светильника придется доплатить примерно 500 рублей, за обход трубы или дополнительный угол — еще 150–200 рублей.
В среднем обычный белый натяжной потолок с установкой под ключ в комнате площадью 20 м 2 обойдется в сумму около 20 000–25 000 рублей.
Решение сэкономить на услугах специалистов и установить натяжные потолки самостоятельно может привести к противоположному экономии эффекту. Как минимум это, скорее всего, обернется потерей времени, а в худшем случае изделие будет испорчено. Поэтому, если вы не уверены в собственных силах на 100%, лучше обратиться к профессионалам.
Где можно заказать установку натяжного потолка в квартиру?
«Выбирая компанию, где можно заказать установку натяжного потолка, обращайте внимание на две вещи: на качество материалов и опыт работы сотрудников, — рассказывает генеральный директор компании «НикоМакс» Александр Аксёнов. — Многие фирмы предлагают недорогие потолки китайского или российского производства, выдавая их за европейские. Другие закупают достойный материал, но поручают установку «мастерам», имеющим очень слабое представление о работе с натяжными потолками. В результате люди разочаровываются, ведь полотно выгорает, меняет цвет, провисает. Так и распространяется мнение, что натяжные потолки — дешевый, но не лучший вариант для оформления интерьера. Чтобы не разочароваться, работайте только с профессионалами, которые используют высококачественные материалы.
Наша компания сотрудничает с такими европейскими брендами, как Pongs, D-Premium, Clipso. Мы предлагаем потолки из ткани и ПВХ, однотонные и с фотопечатью, матовые, сатиновые, фактурные и глянцевые, даже звукоизолирующие и антибактериальные! За годы функционирования на рынке мы собрали команду настоящих профессионалов с большим опытом работы и оборудовали специальный склад для материалов, где натяжные потолки хранятся при определенной температуре и влажности, упакованные в специальные короба, предохраняющие их от случайных повреждений. Кому-то может показаться, будто в том, что касается контроля качества, мы слишком дотошны, но именно это позволяет нам предлагать клиентам отличную продукцию и обеспечивать достойный уровень сервиса».
P. S. Компания «НикоМакс» более десяти лет занимается продажей и установкой натяжных потолков из Швейцарии, Германии, Бельгии и Китая. Клиентами «НикоМакс» являются телекомпании ТНТ, ТВ-3 и другие крупные заказчики. Адрес компании: город Москва, 2-й Магистральный тупик, дом 7А, строение 2.
Материалы и инструменты для установки подвесного потолка
Материалы и инструменты для установки подвесного потолка
Для устройства каркаса подвесных гипсокартонных потолков следует применять холодногнутые оцинкованные металлические профили не менее чем 0,55–0,8 мм толщиной. Если использовать более тонкие профили, это может привести к деформации всей гипсокартонной конструкции потолка.
Для устройства оригинальной конструкции «звездное небо» можно с помощью разметки перенести на потолок любые созвездия и их сочетания по астрономическому атласу. Яркость и величина звезд определяются числом нитей — световодов, которые будут подведены к каждой точке-звезде.
Длина профилей для подвесных гипсокартонных потолков обычно равна 3000 и 4000 мм. Однако при необходимости можно использовать профили и другой длины. Обычно для монтажа подвесных гипсокартонных потолков используют два типа профилей — потолочный направляющий профиль UD-27 (позиция 1, рис. 52) и потолочный каркасный профиль CD-60 (позиция 2, рис. 52).

Рис. 52. Различные типы профилей для монтажа подвесного гипсокартонного потолка
Для облегчения монтажных работ в направляющем профиле UD-27 чаще всего уже имеются отверстия под дюбель. При необходимости, можно без труда сделать с помощью перфоратора отверстия и в другом месте. Как правило, профили UD-27 и CD-60 для создания каркаса монтируют в паре. Кроме профилей UD-27 и CD-60, для монтажа гипсокартонного потолка также используют и иные элементы каркаса.
Прямой подвес профилей предназначен для монтажа металлических профилей потолка из гипсокартона к основанию — это бетонные перекрытия, деревянные балки и другие материалы базового потолка (рис. 53).

Рис. 53. Прямой подвес профилей
Когда подвесной гипсокартонный потолок нужно опустить на большое расстояние от перекрытия и длины прямого подвеса не хватает, то можно использовать пружинный подвес с проволокой длиной от 125 до 1500 мм, на конце которой имеется крючок (рис 54).

Рис. 54. Пружинный подвес с проволокой
В число элементов гипсокартонной конструкции входит одноуровневый соединитель (краб), предназначенный для монтажа крестообразного соединения профилей под прямыми углами на одном уровне.
Для соединения для монтажа одного перпендикулярного профиля СD-60 на одном уровне предназначен угловой соединитель профилей (рис. 55).

Рис. 55. Угловой соединитель профилей
Для крестообразного соединения профиля на разных уровнях предназначен двухуровневый соединитель профилей. С его помощью можно фиксировать профиль строго один под другим. Профиль нижнего уровня жестко закрепляется, при этом он достаточно хорошо поглощает вибрацию, сообщаемую от предыдущего уровня профилей. Использование при монтаже такого соединителя необходимо, когда имеются постоянные воздействия на базовое перекрытие или основу, к которой будет смонтирован первый уровень профилей (рис. 56).

Рис. 56. Двухуровневый соединитель профилей
Здесь приведены одни из самих необходимых и часто употребляемых элементов крепления подвесных гипсокартонных потолков. Кроме них, существуют и другие элементы крепления подвесных потолков, чем-то похожие или дополняющие рассмотренные выше элементы.
Для крепления всех указанных элементов, а также профилей UD, CD, обычно применяют специальные металлические дюбель-гвозди или металлические анкер-клины, саморезы по металлу различных размеров. При монтаже подвесного потолка на деревянном базовом перекрытии используют саморезы по дереву (рис. 57).

Рис. 57. Специальные металлические дюбель-гвозди
Ни в коем случае нельзя использовать пластиковые дюбели. Их применение при монтаже потолка из ГКЛ может привести к постепенному вылезанию самореза и провисанию крепежа.
Для монтажа подвесных потолков чаще используют гипсокартонные листы толщиной 9,5 мм или 12,5 мм, шириной 120 мм и длинной 2500–2600 мм.
Листы гипсокартона толщиной 12,5 мм некоторые специалисты считают более предпочтительными за счет большей прочности, сопротивления на изгиб и меньшего провисания. Для монтажных работ необходимы также предохранительные прокладки и шаблоны.
Из инструментов и приспособлений для работы с гипсокартонными листами могут понадобиться следующие:
• ручная дисковая пила;
• фреза для обработки кромок;
• коронка для отверстий большого диаметра;
• ножницы по металлу для нарезания профилей нужной длины;
• перфоратор или дрель для отверстий в потолке под крепеж;
• шуруповерт для крепления профилей к подвесам;
• молоток для забивания крепежных дюбель-гвоздей;
• рулетка и карандаш.
Лазерный уровень применять в этой работе намного целесообразней, поскольку если использовать водяной уровень, то его длина должна быть не меньше диагонали комнаты, где будет монтироваться гипсокартонный потолок, плюс еще 50 см.
Для тех людей, которым приходится делать ремонт в одиночку, могут понадобиться панельные клещи, или цанга. Они временно сцепляют несущий элемент каркаса и обрабатываемую панель, тем самым освобождая одну руку работника.
Для проведения подготовительных работ на базовом потолке могут понадобиться некоторые штукатурные инструменты. Для подъема тяжелых гипсокартонных листов желательно иметь специальный телескопический подъемник.
Прежде всего, надо снять точные размеры потолка для расчета необходимого материала. Наиболее простым в работе является одноуровневый гипсокартонный потолок. При его монтаже все профили следует монтировать на одном уровне. Расчет одноуровневого гипсокартонного потолка можно выполнить достаточно просто, при этом не нужны особые навыки в проектировании потолков и их дизайне. Более сложной конструкцией являются двухуровневые подвесные потолки. Для их проектирования нужны определенные навыки в дизайнерской работе, а также достаточный опыт работы в расчетах в отличие от одноуровневого потолка. Гипсокартонные подвесные потолки с тремя уровнями и больше следует отнести к разряду сложных гипсокартонных конструкций, расчетом и проектированием которых должны заниматься специалисты. Потолок из гипсокартонных листов предоставляет огромный простор для дизайнерской фантазии. Из этого материала можно сделать и одноуровневый, и многоуровневый потолок, и различные выпуклые рисунки, и еще многое другое. Порой дизайн гипсокартонных потолков настолько разнообразен и по-своему красив, что бывает очень сложно определиться с выбором.
Широкие возможности предоставляют в дизайне многоуровневого потолка растровые или точечные светильники. Используя эти светильники, можно организовать разноцветное свечение в различных зонах потолка и разность свечения по силе (рис. 58).

Рис. 58. Дизайнерское решение подвесного потолка из гипсокартона с помощью точечных светильников
Данный текст является ознакомительным фрагментом.
Особенности установки подвесных потолков своими руками
Если в квартире старый бетонный потолок, то появляется проблема, как его выровнять и скрыть все недостатки. Решением такой дилеммы могут стать подвесные потолки. Так как конструкция и монтажные работы сложные, необходимо следовать пошаговой инструкции, чтобы всё получилось правильно. Начинать следует с изучения материала для таких потолков, вида крепления и необходимых инструментов.
Основная информация
Для того чтобы смонтировать такую конструкцию, понадобится специальная система профилей и подвесов, крепящихся к основанию, которым является потолочная поверхность. На этот каркас крепится выбранный материал, чаще всего это гипсокартон, который станет новым потолком.
Преимущества и недостатки
Несмотря на то что существует ряд недостатков, навесные потолки имеют много плюсов. Их преимущества заключаются в:
- эстетичном внешнем виде, который изменит полностью интерьер в квартире;
- замечательных звуко- и теплоизоляционных свойствах;
отличной возможности скрыть все недостатки поверхности, таки как щели, пятна, неровности или трещины;- прекрасном шансе реализовать любую дизайнерскую идею;
- комфортном монтаже подсветки и использовании разнообразных светильников;
- простом уходе за конструкцией;
- возможности скрыть коммуникации и электрические провода;
- громадном выборе вариантов финишной отделки потолка.
Отличный дизайн, красота и удобство порадуют тех, кто решился на монтаж подвесного потолка своими руками. Но есть и некоторые минусы, которые заключаются в:
- потере высоты комнаты за счёт конструкции, составляющей от 7 до 10 сантиметров;
- дороговизне отделки;
- продолжительности работ, которая зависит от сложности выбранного дизайна;
- низкой влагостойкости гипсокартона, неподходящей для помещений с высокой влажностью;
- необходимости создания специального люка при наличии коммуникаций, так как в дальнейшем может понадобится их ремонт.
Расчёт материалов
Существуют разные виды подвесных потолков. Они могут быть модульными, подшивными или сплошными. Первые делятся на:
Сплошной навесной потолок — это обычное покрытие из гипсокартона. Если установка выполняется без применения подвесов, то такой вид называют подшивным. Для того чтобы сделать подвесной потолок своими руками, следует подготовить материал, из которого будет сделан каркас, гипсокартон, всё необходимое для финишного покрытия.

Каркас может быть металлическим или деревянным. Для первого варианта понадобятся железные профили, а для второго бруски для крепления к потолочной поверхности. Существует два вида элементов: профили несущие и основные, бруски.
Для металлических профилей используют оцинкованную сталь. Кроме того, для монтажа понадобятся специальные подвесы, анкеры, «крабы» для соединения перемычек, дюбель-гвозди и саморезы. Последние должны быть двух видов: с буравчиком для металла и особенные, предназначенные для листа. Существует несколько разновидностей гипсокартона:
ГКЛ, являющийся стандартным, классическим вариантом;- ГКЛО, обладающий огнеупорным качеством, потому что делается на основе стекловолокна;
- ГВКЛ, не поддающийся воздействию влаги;
- ГКВЛО, противостоящий влаге и огню;
- ГВЛВ, превосходящий по своим качествам все остальные виды и получившим название суперлиста.
Толщина и размер гипсокартона влияют на его вес, который может быть в пределах от 18 до 35 килограмм. Самый распространённый лист, который покупают для жилого помещения, имеет следующие параметры: длину — 1500−2500 мм, ширину — 600−1200 мм, толщину — 9,5 мм. При оптимальном весе, маленьких финансовых затратах и отсутствии особых противопожарных требований обычно берут стандартный тип.
Для этого надо сделать замеры площади потолка и точно определиться с размером гипсокартона. Один квадратный метр будет весить примерно 13−15 кг, поэтому установить и собрать потолок самостоятельно будет трудно, работать рекомендуется с помощником. Кроме материалов, следует подготовить инструменты:
перфоратор;- шуруповёрт;
- лазерный уровень;
- стремянку;
- рулетку;
- карандаш для меток;
- специальный нож.
Заранее необходимо подготовить все элементы подсветки для сборки. До того как делать обшивку каркаса, надо смонтировать электропроводку.
Инструкция по монтажу
Когда все материалы будут приобретены, а инструменты приготовлены, можно приступать к установке. Первое что надо предпринять — это удалить все предметы мебели из комнаты. Затем необходимо сделать разметку потолка, стен. После этого устанавливают основные элементы.
Последовательность действий должна быть следующей:
Используя рулетку, надо измерить высоту углов. Начинать работу следует от низкого угла.- На расстоянии 5−7 см сделать отметки на стенах. Если в планах есть установка точечных светильников, то расстояние надо сделать большее.
- При помощи уровня необходимо найти точки на таком же расстоянии во всех остальных углах.
- Во всей комнате надо сделать разметку и соединить точки аккуратными прямыми линиями.
- Вдоль этих линий укрепить профили и проклеить их уплотнительной лентой, после чего дополнительно прикрутить, используя дюбель-гвозди.
- Рекомендуется крепить подвесы с шагом 40 см.
- На каждые 2,5 метра потребуется установка перемычек на поверхности.
Финишная отделка может представлять собой обои, штукатурку или покраску. Но начинать следует с обработки оставшихся швов грунтовкой. После просыхания все ямки, швы и повреждения необходимо заделать шпатлёвкой. Когда всё подсохнет, надо обработать стыки серпянкой и ещё раз шпаклёвочным материалом. Всё это наносится по уровню гипсокартонного листа, так как у его краёв зауженная толщина, и ленту можно будет утопить под уровень их поверхности. Последний штрих — это нанесение финишной шпаклёвки.
Полезные советы
Для того чтобы упростить монтаж конструкции, рекомендуется воспользоваться советами опытных специалистов, которые подскажут, как сделать навесной потолок. Выполняя строительные работы, важно помнить:
- Выбор материала должен основываться только на качественном товаре, потому что независимо от того, где делается монтаж, подвесной потолок в коридоре или в жилой комнате будет служить не один год.
Начинать надо с плана, схемы разметки и получения информации об устройстве подвесных потолков.- Работа с ГКЛ должна осуществляться только в сухом помещении.
- Минеральная вата подойдёт для звукоизоляции. Каркас заполняется ею перед финальной обшивкой.
- Рекомендуется регулярно пользоваться уровнем, чтобы в дальнейшем избежать проблем.
- Начиная ремонт в квартире, нужно дать время гипсокартону полежать в горизонтальном положении.



(1 оценок, среднее: 5,00 из 5)
Как правильно сделать подвесной потолок: инструменты, материалы, этапы
- Как сделать каркас и разметку под потолок?
- Крепление профилей и листов из гипсокартона
- Пошаговая инструкция
- Другие методы установки: натяжные потолки
Подвесной потолок имеет некоторые преимущества перед обычным, к примеру, все скрытые за ним провода и коммуникации можно в любое время проверить, просто демонтировав часть конструкции. Помимо этого, при помощи подвесной конструкции можно улучшить вентиляцию и звукоизоляцию помещения, то есть подвесной потолок является идеальным решением для увеличения показателя звуконепроницаемости.

Чертеж подвесного потолка.
Чтобы решить вопрос, как правильно сделать подвесной потолок своими руками, не надо обладать специальными знаниями и умениями, достаточно лишь иметь набор инструментов и уметь ими пользоваться.
Подвесные потолки отличаются своей практичностью, ведь они состоят из множества плит, которые легко снять в случае надобности. Особо смекалистые хозяева делают тайники за потолком. Туда можно спрятать какие-либо вещи,ценные бумаги или деньги. Помимо этого, подвесной потолок решает вопрос реализации стереозвучания в помещении. В него можно незаметно встроить целую систему мини-колонок.
В случае повреждения отдельных частей подвесного потолка их легко снять и заменить или отремонтировать. Покупая панели, лучше всего запомнить фирму-производителя и серийный номер товара, а еще лучше перенести на бумагу эти характеристики.
Сегодня все большей популярностью пользуются натяжные потолки. Их используют как альтернативу подвесным конструкциям, однако стоимость данного вида потолков довольно высока. Следует также отметить, что и те, и другие потолки препятствуют образованию трещин, имеют отличные прочностные характеристики и отличаются долгим сроком службы.
Как сделать каркас и разметку под потолок?

Схема многоуровневого подвесного потолка.
Во-первых, чтобы сделать подвесной потолок своими руками дома, не прибегая к помощи специалистов, понадобится набор следующих инструментов:
- профили для подвесного потолка (они могут быть металлическими);
- панели, из которых состоят подвесные потолки;
- шурупы;
- подвесы из металла;
- дюбели;
- плоскогубцы;
- строительный уровень;
- рулетка;
- болгарка для распиливания профилей;
- дрель.
В качестве панелей подвесного потолка лучше всего подходят листы гипсокартона толщиной не более 9,5 мм. Однако стандартные панели имеют толщину 12 мм. Чтобы не тратить время на поиски, можно воспользоваться обычными. Если в помещении повышенный уровень влажности, то лучше приобрести панели, окрашенные в зеленый цвет (это означает, что гипсокартон влагостойкий).
Перед тем как делать потолки, необходимо собрать каркас. Для этого берется два вида профилей из металла: направляющие размером 27 х 28 мм и стоечные — 60 х 27 мм. Длина таких профилей стандартна и всегда составляет 3 м. Их можно удлинить, вставив во внутренний паз еще один профиль, и скрепить шурупами. Дальше подвесами выравнивается потолок. Эти же подвесы добавят жесткость конструкции. Для работ лучше использовать прямые подвесы, так как другие очень сложно регулировать.
Для крепления профилей при монтировании их на потолки нужно крестообразное приспособление, которое называется крабом.

Схема установки светодиодной подсветки на подвесной потолок.
Собирая потолки, сперва делают разметку. Необходимо определить, на какое расстояние потолок может быть опущен. Если на потолки, которые собираются ставить, будут крепиться светильники, то расстояние между старым и новым потолком нужно увеличить на 3 — 4 см. Если светильники ставить не будут, то это расстояние не играет особой роли. После этого конструкция каркаса проверяется при помощи строительного уровня на горизонтальность. Каркас монтируется только на абсолютно горизонтальную плоскость.
Этапы работ по разметке:
- сначала необходимо найти самый заниженный угол помещения. От него отмеряется расстояние, на которое опускается каркас;
- по периметру помещения прочерчивается горизонтальная линия (контроль горизонтальности производится при помощи строительного уровня). Для разметки потребуется строительный или гидроуровень, который позволит чертить длинные линии.
Вернуться к оглавлению
Крепление профилей и листов из гипсокартона

Схема монтажа гипсокартонного потолка.
После того как разметка была прочерчена, ориентируясь по ней, устанавливают направляющие профили. Крепятся они в зависимости от того, из чего сделана стена. Если стена из дерева, то используют шурупы, а если бетон, то применяют дюбели. Шурупы крепятся на расстояние 30 — 40 см друг от друга. Затем переходят к монтажу стоечных профилей.
При ширине помещения, в котором производится монтаж потолков, не более 2,5 м будет достаточно жесткого металлического каркаса. Сборка такого каркаса происходит так. Сперва к стене по специальным отметинам, расположенным на расстоянии 40 см, устанавливаются и закрепляются профили.
Затем железными ножницами профили обрезаются по ширине комнаты и вставляются в направляющие. Все это закрепляется так, чтобы ранее нанесенные насечки оказались по центру профилей. Для улучшения жесткости конструкции можно установить подвесы. Их крепят на потолок через каждые 60 — 80 см дюбелями. Если не использовать подвесы, то после покраски потолка на стыках могут появиться трещины. Перед тем как устанавливать сами потолки, нужно обратить внимание на освещение.

Если на потолки, которые собираются монтировать, будет устанавливаться освещение, то нужно будет смонтировать закладные профили, так как гипсокартонные листы не удержат вес люстры. На будущее место люстры в каркас монтируется стоечный профиль. При этом под панелями на месте установки светильника нужно заранее смонтировать приборы и провода.
Когда каркас готов, на него устанавливается подвесной потолок. Чтобы сделать подвесной потолок своими руками, потребуются:
- листы из гипсокартона;
- канцелярский нож;
- карандаш;
- шурупы;
- сетка-серпянка;
- шпаклевка;
- грунтовка.
Вернуться к оглавлению
Пошаговая инструкция

Металлический двухуровневый каркас.
- На гипсокартоне делается разметка. По этой разметке прикладывают линейку и проводят вдоль канцелярским ножом. После этого лист нужно положить на другой лист или какую-либо ровную поверхность и надломить легкими постукиваниями.
- Изготовленные листы начинают шурупами крепить на потолок.
- После того как листы были установлены, чтобы между ними не возникло видимых стыков, их проклеивают сеткой-серпянкой.
- Затем выступающие шурупы замазывают флюгенфюлером.
- Далее подвесной потолок шпаклюют и грунтуют.
- Заключительным этапом является покраска потолка.
Сегодня популярностью пользуются подвесные потолки с множеством мелких лампочек. Подвесные потолки являются полым сооружением, и провода или разводку можно расположить между новым и старым потолком. Концы проводов выпускаются наружу. К ним подключаются лампочки. Устанавливаются приборы на арматуре или специальных креплениях.
Вернуться к оглавлению
Другие методы установки: натяжные потолки

Схема монтажа натяжного потолка.
Устанавливая натяжные потолки, работу надо разбить на несколько этапов. Сперва устанавливается профиль, потом плоскость потолка и уровни. Существует несколько способов производства работ: клиновый, штапиковый и гарпунный. Наиболее удобным и простым является гарпунный.
При гарпунной фиксации полотно натяжного потолка выкраивается с учетом размеров комнаты. После того как полотно для натяжных потолков было заказано, его необходимо несколько дней хранить в теплом месте. При перевозке на пленке могут образоваться заломы, но они исчезнут со временем.
Когда для монтажа натяжных потолков все готово, устанавливаются металлические профили. Профили крепятся по всему периметру комнаты таким же образом, что и в случае с навесными потолками, то есть сначала лазерным уровнем на стенах наносятся отметки, а затем по ним крепится металлический профиль. После этого начинают натягивать полотна потолка.
Для этого температура комнаты поднимается до 40°С при помощи специальной тепловой пушки. Дальше необходимо взять пленку и развернуть ее. После этого ее нужно ухватить за края и, сохраняя натяжение, прикрепить на прищепках к углам помещения. Затем тепловой пушкой полотно разогревается до 60°С. От напора горячего воздуха площадь пленки уменьшается, и она начинает натягиваться.
Когда натяжение потолка становится достаточным, края пленки начинают загонять в пазы, сохраняя материал в натянутом состоянии. Загнав его по углам, дальше нужно перейти к стенам. Так натяжной материал загоняется по всему периметру.
Когда потолок готов, в центре, где должна была остаться выемка для люстры, клеится кольцо для усиления. Кольцо должно быть из пластика толщиной 4 — 5 мм. После того как клей высохнет, на кольцо можно вешать люстру, вырезав перед этим полотно в середине.
Как выполнить отделку потолка под покраску самостоятельно: этапы работ

В продаже много строительных материалов для потолочной отделки, однако традиционная ровная поверхность светлого цвета остается востребованным решением. Раньше в качестве финишного декоративного материала использовалась побелка, которую впоследствии вытеснила водоэмульсионная краска. С ее помощью отделка потолка под покраску изменила качество конечного результата.
В чем плюсы покрашенного покрытия
Рассматривая покраску, как вид декорирования бетонного потолка, нужно знать ее особенности. Как у всех видов отделки, у окрашенной поверхности есть сильные и слабые стороны.
Преимущества покрашенного потолка:
- Декоративные качества. Ровная белая поверхность потолка — это классика жанра. Этот вид декорирования подойдет для любого интерьерного стиля.
- Экологическая безопасность. Используемые строительные материалы на минеральной основе не содержат вредных для здоровья токсинов. Кроме того, полученная в результате покраски поверхность способна «дышать». Это решающий фактор при выборе между натяжными потолками или штукатуркой.
- Небольшая цена. Стоимость покрашенного покрытия гораздо ниже, чем у каркасной конструкции, поэтому покрытие — отличный вариант бюджетного ремонта. Особенно, если сделать потолки под покраску своими руками.
- Практичность. Отделка основания под покраску не «крадет» высоту стен. Этим она отличается от натяжных, подвесных и гипсокартонных конструкций, где на каркас уходит не менее 20-30 мм.
- Не сложный уход. После покраски водоэмульсионными, латексными и акриловыми материалами можно проводить щадящую влажную уборку поверхности от накопившихся загрязнений.


Недостатки покрашенных покрытий — это низкая влагостойкость и трудоемкость при реализации. Стойкость к воде акриловой или водоэмульсионной краски не высокая, однако продаются более дорогие образцы сверхстойких к влаге покрасочных материалов. В отличие от натяжной конструкции, процесс шпаклевки потолка под покраску своими руками занимает несколько дней и сопровождается немалой грязью.
Первый (подготовительный) этап процесса
Решившись на ремонт потолка, необходимо создать удобные условия для его реализации:
- Освободить комнату от всех предметов и мебели. Для удобства реализации отделки необходимо организовать доступ ко всей площади потолка. Из помещения желательно вынести все, что можно — в идеале комната должна остаться с голыми стенами и полом. Те предметы, которые по своим габаритам не проходят в дверь, ставят в таком положении, чтобы не создавались помехи для передвижения строительных лесов. К примеру, шкаф под стеной рекомендуется выдвинуть и поставить по центру комнаты.
- Защитить от грязи все оставшиеся предметы. Подобный ремонт сопровождается возникновением большого количества мусора и пыли, поэтому мебель и прочие оставшиеся в помещении предметы тщательно заворачивают в пленку или старую ткань. Пол рекомендуется защитить бумагой или плотной пленкой;
- Снять люстру и настенные светильники. Лучше потратить на это время, чем потом заниматься чисткой их от грязи и краски. Вместо люстры вешается одна лампочка накаливания мощностью от 150 Вт.
Как очистить основание старого покрытия
Это грязный и неприятный этап работы. Перед тем, как выровнять поверхность под покраску, его нужно почистить до бетонного основания. Для этой работы понадобится прочный металлический скребок (можно старый шпатель), острый топорик и щетка. При чистке желательно защитить руки перчатками, а органы дыхания – респиратором. Работу нужно вести со строительных лесов подходящей высоты (чтобы не упиралась голова, свободно можно было доставать до потолка).
Технология реализации процесса зависит от того, что именно нужно удалить:
- Обои. Легче всего со старыми обоями – они обычно удаляются сразу, или после предварительного намачивания;
- Побелка. То же самое можно сказать о побелке: хотя при ее чистке и возникает много грязи, но эта процедура в основном не встречает никаких особых трудностей. Побелку вначале намачивают теплой водой, затем счищают острым скребком.
- Краска. Самый неудобный для чистки вид отделки, так как она не размокает от воды. Здесь поможет лишь усердие, скребок или острый топорик. Хотя существуют рекомендации по применению специальных жидкостей для снятия краски, однако из-за токсичности внутри жилища их лучше не использовать.
- Шпаклевка. Старая шпаклевка есть под любой из вышеперечисленных отделок, и также подлежит удалению. Иногда кажется, что старый шпаклевочный слой очень крепкий, и его можно оставить. Но такое решение сопровождается риском появления вздутий (зачастую – на последнем этапе ремонта потолка, во время его покраски).
- Каркасные системы, панели. Здесь демонтаж наиболее простой, так как не сопровождается появлением грязи.
Для того, чтобы работа происходила быстрее, скребок рекомендуется время от времени подтачивать на наждаке.
Особого внимания во время чистки бетонной поверхности заслуживают все обнаруженные швы и трещины. Их необходимо тщательно расшить, удалив весь имеющийся внутри раствор.
Пропитка бетонного основания грунтовкой глубокого проникновения

Цель этой процедуры убрать с поверхности пыль, увеличить его адгезию к последующей отделке. В качестве грунтовки под покраску водоэмульсионной краской часто используют акриловые жидкости. В тех ситуациях, когда на очищенном основании были обнаружены следы грибка или плесени, их проходят специальными антибактериальными составами. Из инструментов здесь понадобится чистая емкость и валик (широкая кисть).
Грунтовку проводят при температуре не ниже +5º. Для этого жидкость наливают в емкость, и обмакнув валик (щетку), наносят на потолок. Особенно обильно рекомендуется пропитывать неровные, рыхлые места и швы (в последнем случае понадобится узкая щетка).
Устранение проблемы с коррозией на поверхности потолка
Этот момент часто упускается многочисленными рекомендациями по ремонту потолка, из-за чего на завершающей стадии ремонта приходится бороться с пятнами ржавчины. Дело в том, что в структуре бетонной плиты часто попадаются куски арматуры. Хорошо, если их можно извлечь, не разрушая структуру панели. В других ситуациях обнаруженную арматуру или пруток заделывают наравне с поверхностью и подкрашивают белой краской. Если ржавые пятна вылезут уже на этапе шпаклевки, их также нужно подкрасить.
Для обработки металлических фрагментов подойдет только масляная краска или эмаль. Водоэмульсионные или латексные материалы не в состоянии создать качественный барьер против коррозии.
Выравнивание поверхности потолка
После того, как грунтовка с закрашенными ржавыми местами высохнут, можно приступать непосредственно к стяжке. Первый ее этап называется выравниванием. За цель здесь ставится создание идеально ровного основания под финишную отделку.
- набор шпателей. Их должно быть, как минимум два: один (узкий) используется для накладывания материла на более широкий инструмент, которым делается стяжка. Размеры широкого шпателя подбираются индивидуально: чем он шире, тем быстрее можно шпаклевать, при возрастании затраченных усилий;
- чистая емкость для раствора;
- миксерная насадка на дрель.
Что касается того, какой шпаклевкой лучше шпаклевать потолок под покраску, то лучше применять сухие гипсовые смеси, они дешевле готовых растворов, дают возможность делать любую консистенцию. Конкретно для выравнивания подойдут крупнозернистые материалы типа Изогипс или Ротбанд. Приготовление смеси выглядит так: в чистую емкость наливают теплую воду (примерно половину от общего объема), затем, создав рукой водоворот, засыпают сухую смесь. Она должна полностью покрыть воду. Если потолок более-менее ровный, шпаклевку накладывают непосредственно на бетонное основание, равномерно растягивая раствор большим шпателем. Работу начинают от одного из углов, постепенно продвигаясь к центру. В идеале выравнивание нужно реализовать в один слой.
Если потолок неровный


При наличии перепадов используют правило и маяки, так как шпателем исправить такие дефекты не получится.
Штукатурка потолка своими руками под покраску будет отличаться от простой стяжки:
- Определяется самая нижняя точка плоскости. Для этого по всем стенам отбивают горизонталь, используя водяной уровень. Найти с помощью рулетки наиболее заниженный участок не сложно.
- Установка маяков. Для работы подойдут специальные маячные планки, которые фиксируются на алебастр. Первая из них монтируется по нижней точке, а остальные — с шагом 30 см от первой. Для проверки горизонтальности установки маяков используется длинная ровная рейка или правило.
- Стяжка. Лучше вначале набрасывать стартовый раствор в промежуток между двумя планками, затем стягивать его правилом.
Заштукатурив таким образом все основание, дают немного времени на его схватывание. После этого извлекают маячные планки, чтобы не было проблем коррозии металла, впоследствии испорченного ржавыми пятнами покрытия. Места посадки маячков заделывают остатками смеси. Эти участки должны полностью слиться с общей плоскостью.
Иногда для штукатурки потолка по маякам допускается использование песчано-цементного раствора, что сокращает затраты. Однако, если финансовых ограничений не имеется, лучше использовать гипсовые стартовые шпаклевки. Швы и трещины заделывают отдельно, заполняя тем же раствором (иногда для прочности в него добавляют клей ПВА). Поверх высохшего шва желательно наклеить полоску сетки-серпянки.
Нанесение финишной шпаклевки


После того, как штукатурный слой высохнет, проводят завершающее шпатлевание покрытия. Для этого закупается финишный материал, желательно от того же производителя, что и стартовый. Процедура приготовления раствора мало чем отличается от стартовой шпаклевки, разве что он доложен быть более пластичным. Финишная стяжка реализуется не менее, чем в два слоя. Первый из них обычно имеет толщину 2-3 мм, второй — не более 1 мм. Работать удобно двумя шпателями, поставив рядом с собой на поверхность стола ведро с готовой смесью. Наложив меньшим шпателем раствор на широкий инструмент, отводят его на вытянутую руку от себя. Далее, поставив инструмент под углом 30° к поверхности, начинают тянуть на себя, постепенно увеличивая угол.
Завершающая стадия подготовки


Уложив последний слой шпаклевки, делают паузу на полное высыхание. Как правило, на это уходит не менее суток. В помещении желательно создать циркуляцию воздуха, комфортную для высыхания температуру (выше +10º). Сухую поверхность шлифуют специальной теркой, закрепив на ней шлифовальную сетку № 100-120. Но быстрее можно отшлифовать поверхность шлифмашинкой. Во время этой процедуры нужно защитить глаза и органы дыхания от обильной пыли. По завершении шлифовки потолки под покраску еще раз грунтуют.
Запрещается приступать к шлифовке покрытия, если оно местами мокрое. Достигнуть положительногорезультата в таком случае не получится.
Подводя итоги, можно сказать, что процесс отделки потолка не сложный. Главное, запастись усердием, следуя изложенной инструкции. «Мокрые» строительные процессы потребуют пауз на высыхание. Каждый последующий слой разрешается укладывать только на просохшее основание.



