Сам себе мастер
Популярные публикации
Последние комментарии
Скамейка своими руками – самая простая конструкция
Не будет преувеличением, если сказать, что садовая скамейка очень нужная вещь на дачном участке. Если установить скамейку в теньке, то на ней будет приятно отдыхать летом в жаркую погоду. Да и вечером посидеть на ней и посмотреть на закат солнца не менее приятно.
Вопрос о приобретении садовой скамейки возникал достаточно часто по указанным выше причинам, но реализация долго откладывалась, по причине того что сложно было подобрать подходящий вариант.

Задавшись вопросом как сделать садовую скамейку, был определен ряд принципиальных требований, которым она должна удовлетворять.
- Скамейка должна быть сделана из доступных материалов, которые не сложно привести на дачу.
- Скамейка должна быть удобной.
- Конструкция скамейки должна быть такой, чтобы можно было изготовить ее своими руками без применения специального инструмента.
- Скамейка должна хорошо переносить уличные условия, т.е. она должна стоять весь дачный сезон под открытым небом и не терять своего внешнего вида и функциональных качеств.

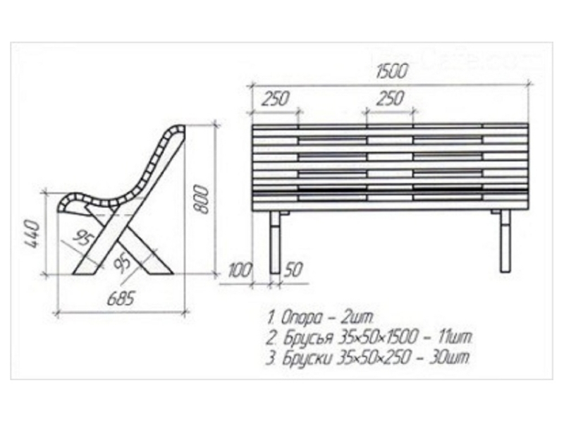
Исходя из описанных требований, родился проект садовой скамейки показанной на фото выше. Материал скамейки дерево. При изготовлении деревянной скамейки специального инструмента не требуется. Для защиты от внешних неблагоприятных факторов скамейка покрыта лаком. Так что большинству начальных требований она удовлетворяет.
На мой взгляд, самое сложное и интересное в изготовлении скамейки своими руками это конструкция и эргономика. Основными факторами по эргономике на которые следует обратить внимание является высота скамейки, ширина сиденья, угол наклона спинки, ширина спинки и длинна скамейки. От этих параметров зависит, удобно скамейкой будет пользоваться или нет.

Все размеры на чертеже приведены в сантиметрах, не указан только угол наклона спинки и общая высота, об этом далее. А сначала хочется прокомментировать некоторые размеры.
- Длина скамейки выбрана таким образом, чтобы свободно на ней могло разместиться три человека. Если приобретать доски стандартного размера 6м, то на изготовление скамейки уйдет две доски, и обрезков практически не останется. Кроме того, перевозить доски длиной 1,5 м можно без труда на легковом автомобиле.
- Толщина доски выбрана 40мм, что обеспечивает жесткость конструкции скамейки.
- Зазоры между досками на спинке и на сиденье необходимы, чтобы на скамейке не задерживалась вода, т.к. скамейка стоит под открытым небом. В результате, учитывая ширину доски и зазоры, получается, что ширина сиденья 40 см, этого достаточно, чтобы комфортно сидеть взрослому человеку.
- Угол наклона спинки составляет порядка 18 градусов. Как сделать такой наклон будет описано далее.
Теперь хочется сказать несколько слов о конструкции садовой скамейки. Как видно из чертежа и фото скамейка имеет четыре ножки. При этом задние ножки выполняют роль держателя спинки. Для придания жесткости ножки соединены между собой.

Работа по изготовлению скамейки начинается с того что доски пилятся на нужный размер.
- 5 досок длиной 1500 мм.
- 2 доски длиной 360 мм.
- 2 доски длиной 520мм. Далее эти доски разрезаются по длине, в результате получается 4 бруска. Эти бруски необходимы для соединения ножек и крепления сидения. Так же на этих брусках снимается внешний угол, чтобы не цеплять за него ногами.
- 2 доска длиной 720 мм. На этих досках делается срез. Они будут выполнять роль держателя спинки и ножки одновременно. Размеры указаны на чертеже ниже.

Все эти размеры указаны с учетом того, что конечная ширина доски после строгания и пр. обработки 140мм.
После того как все доски нарезаны нужно их отстрагать, чтобы избавиться от заусенцев. Также желательно снять фаски, чтобы края были гладкими. После чего можно приступить к сборке садовой скамейки.
Сначала собираются ножки. Ножки соединяются между собой с помощью поперечен по средствам саморезов. После чего на получившиеся ножки крепятся доски сиденья и спинки. Эти доски так же крепятся саморезами. Для того чтобы спрятать крепеж, крепление нужно делать с обратной стороны.

Если длины саморезов не хватает, то можно предварительно просверлить отверстие диаметром больше, чем шляпка самореза.

Заключительным этапом сборки скамейки является установка нижней поперечины, которая скрепляет ножки между собой.
После того как скамейка собрана ее можно покрыть лаком для защиты от влаги, применив яхтовый лак. Либо обработать пропиткой от гниения как детскую песочницу. Безусловно, покрытие лаком выглядит гораздо лучше, но оно обладает одним существенным недостатком, скамейка становится холодной на ощупь.
Так же если просто покрыть лаком скамейку она будет шершавой. Чтобы скамейка была гладкой нужно сначала покрыть ее одним слоем лака, дождаться когда он высохнет. После чего наждачной бумагой обработать появившиеся шершавые места, после чего покрыть еще двумя слоями лака. Тогда скамейка будет гладкой. На фото скамейка которой идет четвертый год. Так вот она хорошо сохранилась. Естественно на зиму она убирается в домик.
Чтобы вам было проще сделать скамейку своими руками приведу чертежи скамейки.
Лавочка своими руками: простые и сложные конструкции для новичков и профессионалов (150 фото-идей)
Приезжая на дачный участок, многие рассчитывают отдохнуть, расслабиться и приятно провести время. Чтобы эти планы воплотить в реальность, нужно позаботиться о создании соответствующих условий. Недостаточно просто установить несколько лавочек.
Можно сделать привлекательный и оригинальный уголок, в котором удастся отдохнуть, насладиться окружающей природой и результатами собственного труда.

Краткое содержимое статьи:
Местоположение
Первая проблема, которую нужно решить, заключается в выборе места для лавочки. Оно влияет на материал конструкции. К примеру, для старого сада с крупными ветвистыми деревьями подойдут изделия из древесины, для небольшого участка, не сильно засаженного деревьями и кустарниками, рекомендованы маленькие ажурные конструкции.
Если поискать в сети примеры фото лавочки на даче, то можно увидеть, что они часто являются составляющим элементом беседок, веранд и летних площадок. Если вы планируете сделать нечто подобное, то позаботьтесь о том, чтобы все детали были выполнены в общем стиле.
Место для лавки выбирайте так, чтобы с нее открывался приятный вид. Вряд ли вам захочется любоваться забором соседей или стенками сарая.

Желательно выбирать места перед озерами или речками, цветниками и пр. Главное, чтобы окружающие объекты привлекали и радовали взгляд, помогали расслабиться и настраивали на позитивный лад.
Желательно, чтобы лавка располагалась в тени. Ее ставят под кронами крупных деревьев или под навесами. Помните, что она выступает в качестве места для отдыха и расслабления.

Можно ставить лавочки рядом с грядками. Тут есть несколько преимуществ. Во-первых, владельцы участка смогут следить за ростом урожая. Во-вторых, лавка подойдет для того, чтобы несколько минут передохнуть от физического труда (копания, поливания, сбора урожая).
Не стоит забывать и о декоративных украшениях. Сделали простую лавочку своими руками? Разместите вокруг нее цветущие кустарники. Также для декора подойдут клумбы. Их ставят на возвышение или создают специальную площадку из кирпичей, плитки или бревен.
Материалы
Существует большой выбор материалов, которые используются для изготовления лавочек. Самый распространенный вариант – древесина. И здесь нет ничего удивительного. Она считается простотой в обработке, отличается доступной стоимостью и небольшим весом.

Необязательно использовать одинаковые идеально ровные бруски. Если взять натуральный материал в естественной форме, то итоговый результат непременно понравится и хозяевам, и гостям. Вместо обычной лавки получится настоящее украшение садового участка.

Популярны и конструкции из камня. Они долговечны и эстетичны. Но есть и недостатки. Сидеть на них рекомендуется лишь в теплые времена года.


Кованые изделия – лучший выбор для поклонников роскоши и изящества. Однако этот вариант не подходит тем, кто ищет, как сделать лавочку своими руками. Качественные и красивые конструкции из металла изготовит лишь опытный кузнец.
Хорошо смотрятся модели, в которых комбинируются различные материалы. К примеру, лавочку из дерева можно украсить текстилем (подушки, покрывало). Это сделает её по-домашнему уютной и комфортной.

Подготовка к работе
Определившись с материалом и местоположением, можно приступать к созданию чертежа лавочки. На этой стадии определяется форма и размеры изделия. Здесь нет строгих правил, но если возникли трудности, то можете придерживаться следующей схемы:
- высота сидения – от 40 до 50 сантиметров;
- ширина – от 50 до 55 сантиметров;
- высота спинки – от 35 до 50 сантиметров.
Если хотите сделать лавку со спинкой, то заранее решите, как будете закреплять ее к сидению. Также большое значение имеет то, планируете вы переносить ее или нет. В не переносных моделях ножки надежно закрепляются в грунте.

Чертеж позволит понять, какое количество материала потребуется. Дополнительно нужно крепления (гвозди, саморезы, шурупы), грунтовка и защитная краска.



Схема работы
Рассмотрим простейшую схему, как сделать лавочку со спинкой. Для работы потребуются: два бруска, деревянные обрезки (две-три штуки размером 150 x 200 миллиметров); горбыль.
Работаем по следующей схеме:
- Делаем в земле две ямы (важно, чтобы они не отличались глубиной);
- Ровняем углы между брусками и стойками. Нужно убедиться, что все расположено ровно. Иначе на лавочке будет не комфортно отдыхать;
- Крепим бруски (при помощи саморезов или гвоздей);
- Вкапываем заготовки и качественно их утрамбовываем;
- Закрепляем спинку;
- Покрываем деревянные части грунтовкой и защитной краской.
Это простейшая лавочка, сделать которую сможет любой мастер.
Современные конструкции садовых скамеек, изготовление своими руками
![]()
Садовые лавки – это не просто мебель, которая предназначена для отдыха. С помощью подобных изделий можно украсить участок, создать гармоничные композиции, идеально вписывающиеся в окружающее пространство. Если изготавливается скамейка своими руками, то она будет полностью соответствовать требованиям владельца. Творческий процесс прост, не займет много времени. Главное – правильно выбрать подходящий дизайн, месторасположение, материал.
Особенности изделия
Современные садовые скамейки представляют собой архитектурный элемент ландшафтного дизайна. Это комфортные, практичные, многофункциональные изделия. Служат для отдыха и релаксации после напряженных трудовых будней или работ на участке.
Лавочка со спинкой, установленная в укромном тихом уголке рядом с прудом либо цветущими клумбами, станет прекрасным местом для уединения и размышлений. Часто мебель располагается в беседках, на верандах, летних площадках для пикников. Не рекомендуется ставить изделия так, чтобы с них открывался вид на гаражи, заборы. Идеальный фон – цветники и палисадники, которые будут радовать глаз. Уместны скамейки на детских площадках, у парадного входа или бассейна. Еще один вариант размещения – рядом с грядками, на огороде. Лучше, если лавочка стоит в тени.
Скамейки для дачи или сада должны быть удобными. Оптимальны эргономичные конструкции, на которые можно не только присесть, но и с комфортом откинуться на спинку. Большое значение имеет безопасность изделий, а также способность выдерживать высокие нагрузки. Именно поэтому при самостоятельном изготовлении стоит отдавать предпочтение качественным материалам и фурнитуре.
Скамейка должна иметь привлекательный внешний вид и оформление, которое будет гармонировать с дизайном всей приусадебной территории.





Чертежи и размеры
При составлении чертежей садовых скамеек необходимо учитывать вместительность изделий. Стандартные модели рассчитаны на двух – четырех человек. Новичкам пригодятся готовые схемы с размерами, но при необходимости их можно менять в зависимости от индивидуальных предпочтений.
Для создания удобной мебели можно воспользоваться стандартными параметрами. Оптимальная длина скамейки – 150 см, она позволяет комфортно разместиться троим людям. Высота от земли – 45 см, спинки – 90 см, рекомендуется располагать ее под небольшим углом, около 20 градусов. Ширина сиденья составляет 40 см.
Для создания схемы необходимо нанести на бумагу эскиз предполагаемой конструкции. На нем отмечаются все элементы мебели и размеры. Если планируется создание изделия со спинкой своими руками, чертежи должны отражать способ крепления к сидению. Ножки стационарных моделей плотно фиксируются в грунте.

Как сделать своими руками
Изготовление скамеек своими руками – интересный творческий процесс, позволяющий осуществить разнообразные дизайнерские идеи. Сегодня востребованы классические деревянные и комбинированные модели, без спинки. Многие мастера украшают участки лавками из палет, старых стульев, бревен, дополняют изделия столиками или клумбами.
Простая классическая конструкция
Для создания лавочки потребуются деревянные доски 150 х 150 см, толщина которых равна 30–40 мм, заготовки для ножек и держатели спинки, элементы для изготовления сидений. Брус 40 х 40 мм необходим для укрепления конструкции. В качестве крепежей используются саморезы. Из инструментов понадобятся шуруповерт, электролобзик, рубанок, наждачная бумага для шлифовки.
- Все детали раскраивают и вырезают при помощи электрического лобзика.
- Поверхность элементов шлифуют, торцы обрабатывают рубанком для придания скругленной формы.
- Первыми собирают ножки, расстояние между передними и задними элементами должно составлять 28 см. Соединяют их при помощи бруса, обвязка делается с обеих сторон.
- Готовые боковины фиксируют друг с другом досками, предназначенными для сидения.
Важно, чтобы между заготовками оставались одинаковые зазоры – не более 2 см. Служат они для циркуляции воздушных масс и отведения влаги. После этого скамейка из досок подлежит укреплению и монтажу спинки. Для финишного покрытия применяется пропитка, затем лак.
Из металла и дерева
Чтобы сделать своими руками садовую скамейку, потребуются инструменты для сварки и резки металла: болгарка, сварочные аппарат, а также расходники к ним. Из материалов необходимо подготовить профилированные трубы, доски. В процессе работы пригодятся: строительный уровень, рулетка, напильник, рубанок, краски, плоскогубцы, молоток, болты, гайки.
Металлические профили также используются для создания разнообразных конструкций для сада. Это могут быть ограждения, беседки, арки, каркасы, навесы, качели.
Простые, но элегантные скамейки для дачи из металла можно изготовить самостоятельно, без чертежа, руководствуясь пошаговой инструкцией.
- Из труб формируют 3 прямоугольника, которые соединяют направляющими и создают раму для сидения.
- В каждом элементе высверливают симметричные отверстия для крепления досок.
- Каркас обрабатывают красящими составами, предназначенными для металла.
- Деревянные детали покрывают морилкой.
- После полного высыхания элементов производится сборка.
Железные лавочки отличаются надежностью, простотой конструкции. Самой удобной и практичной станет складная скамейка, для изготовления которой нужен опыт.



Лавка без спинки
Чтобы сделать садовую скамейку своими руками потребуется брус, доски 40 мм, штифты. Из инструментов – лобзик, шуруповерт, фрезер, шлифовальная машинка. Модель получится маленькая, всего 120 см в длину, подойдет для 1–2 человек.
- Доски для изготовления сидений нарезают и обрабатывают, грани закругляют.
- Бруски для ножек нарезают одинаковой длины, предварительно проводится разметка для крепежей.
- Высверливают отверстия под штифты, в зависимости от их диаметра.
Если сидение крепится гвоздями, то места соединений легко замаскировать при помощи мастики, смешанной с опилками. После засыхания материал выравнивают шкуркой до гладкого состояния. Поверх наносится слой краски или лака.
Лавки из бруса будут менее удобными по сравнению со скамьями, которые позволяют облокотиться на спинку. Но при установке возле стены дома или в беседке можно решить эту проблему.
Садовое кресло-скамейка из палет
Один из наиболее простых вариантов – садовая скамейка со спинкой из поддонов. Перед тем как приступить к работе, необходимо подготовить материалы и инструменты: саморезы, пилу, бруски для подлокотников и ножек, доски либо фанеру, уголки, рулетку, дрель, шуруповерт. Для личной защиты потребуются строительные очки и перчатки.
При создании скамейки своими руками могут понадобиться лак или краска, подушки. На подготовительном этапе поддоны разбирают, распиливают на две части так, чтобы узкая сторона служила опорой, широкая – сидением. Поверхность шлифуют для устранения всех шероховатостей.
- Все элементы вырезают на основе оптимальных размеров скамейки, скрепляют шурупами.
- Половинки сиденья соединяют и плотно стягивают саморезами.
- Ножки не должны быть слишком высокими, стандарт – 45 см. Для их крепления используют металлические уголки.
Лавочка садовая со спинкой, покрытая краской, служит значительно дольше. Если поверхность обрабатывается лаком, изделие отлично гармонирует с цветами и зелеными насаждениями.

Из старых стульев
Для создания скамейки со спинкой из дерева потребуются 2–3 ненужных стула, широкие доски (1–2 шт.), бруски, наждачная бумага, пила, дрель. Крепление элементов осуществляется саморезами, строительным клеем, отделка – лаком или краской. Все действия производятся по инструкции:
- со всех стульев снимают обивку и подлокотники, детали из дерева и металла зачищают;
- удаляют каркасы сидений, при необходимости подравнивают до одинаковой длины ножки;
- из брусьев собирают раму, закрепляя саморезами к основанию сидений;
- поверх готового каркаса фиксируют доски, на них накладывают слой наполнителя, который затем обтягивают обивкой;
- после сборки все отверстия закрывают шпатлевкой, ошкуривают изделие и покрывают краской.
Чертеж скамейки в этом случае не понадобится. Конструкция декорируется подушками, устанавливается в тени деревьев либо на открытой площадке.
Из бревен или изогнутых веток
Чтобы сделать своими руками скамейку для дачи, необходимо подготовить бревно, подходящие ветки, пилу, штифты, рулетку, молоток. Потребуются также защитные составы для обработки дерева. Рабочий процесс включает следующие действия:
- Ствол дерева распиливают вдоль. Делается это ровно посередине либо с небольшим смещением.
- Толстый элемент служит сидением, более тонкий – спинкой.
- В местах соединения проделывают отверстия под установку штифтов.
- Спинку насаживают на основание и забивают молотком.
При желании удобная скамейка дополняется спинкой из изогнутых веток с различным диаметром. Перед сборкой детали очищают от коры и шлифуют, затем фиксируют при помощи саморезов или гвоздей.
Скамейка со столиком
Начинать работу по созданию своими руками деревянной скамейки со спинкой и столиком необходимо с подбора инструментов и материалов. Понадобятся доски с параметрами 40 х 140 мм, 25 х 80 мм, 40 х 80 мм, торцовочная пила, дрель, элетролобзик, шуруповерт, рулетка, гвозди 50 и 80 мм, строительный клей. Все действия производятся поэтапно.
- Из досок выпиливают два элемента длиной 60 см и еще два – 58 см.
- В заготовках вырезают пазы, с помощью которых детали соединяют и фиксируют саморезами.
- Получившиеся Л-образные стойки крепят к двум доскам.
- Выпиливают 4 одинаковые поперечины, которые фиксируют к боковым опорам.
- Для спинки отпиливают 4 детали по 600 мм, которые закрепляют на основании сидений.
- Обшивка каркаса производится рейками или вагонкой.
При создании изделия важно придерживаться рекомендуемого угла наклона спинки скамейки: 15–40 градусов. Готовая конструкция обрабатывается защитной пропиткой для древесины.






Нестандартные решения
Чтобы сделать скамейку со спинкой из дерева своими руками, достаточно использовать имеющиеся навыки, рекомендации специалистов, готовые чертежи. Но существуют оригинальные решения, которые позволяют преобразить стандартную конструкцию в удобный и необычный декоративный элемент.
Скамьи вокруг дерева – один из самых привлекательных вариантов. Изделия эффектно выглядят, органично вписываются в окружающий ландшафт, позволяют разместить большое количество людей. Под тенью кроны можно укрыться от палящего солнца, отдохнуть от работы в саду. Конструкцию часто устанавливают вокруг красивой клумбы или фонтана.
Интересно смотрится мини-скамейка с вазонами вместо ножек. Цветущие растения станут лучшим украшением для садовой мебели. Еще одна похожая модель – изделие с небольшими ящиками, которые вставляются в специальные отверстия. В них насыпается грунт, затем высаживаются цветы.
Детская скамейка может принимать вид пазла. Фигурные сидения вырезаются в виде деталей мозаики, которые могут соединяться в единую конструкцию и разбираться на отдельные стульчики. Изделия раскрашиваются в яркие жизнерадостные цвета.
Простая скамейка из бруса станет элегантной и изысканной, если дополнить ее элементами ковки. Металлические детали используются для создания поручней или ножек, которые гармонируют с самым разным дизайном конструкций. Модели с ящиками для хранения практичны и удобны. В них можно спрятать хозяйственные принадлежности или детские игрушки.





Полезные советы
Для изготовления скамейки из дерева своими руками чертежи, а также материалы и инструменты стоит подготовить заранее. Если планируется конструкция из фанеры или досок, поверхность тщательно осматривается на наличие изъянов. Обязательно учитывается процент потерь при вырезании элементов.
Специалисты всегда начинают раскраивать детали из наиболее длинных досок. Все углы делаются закругленными, чтобы снизить риск травматизма. Спинку лавки из дерева не стоит изготавливать из сплошного полотна, поскольку сохнуть после дождей она будет очень долго. Оптимальны отдельные дощечки, прибитые параллельно друг другу.
Стандартная высота скамейки от 40 до 50 см. Для придания каркасу большей устойчивости вместо дерева применяется профильная труба. Перед установкой необходимо подготовить площадку. Поверхность обязательно должна быть выровненной и плотной. Идеальным вариантом станет булыжник или крупный гравий.
Деревянные скамейки покрывают красящими составами. При выборе стоит учитывать не только цвет, но и свойства. Большое значение имеет устойчивость к внешним факторам.
Людям, которые любят ездить на дачу, ухаживать за садом, нельзя забывать, что устанавливать скамью под плодовыми деревьями не стоит. Падающие яблоки и груши испортят внешний вид изделия. Все деревянные элементы обрабатываются лаком или олифой для защиты от капризов погоды.
Перед тем как сделать скамейку из подручных материалов, стоит познакомиться с особенностями подобных изделий, вариантами конструкций, полезными рекомендациями. Садовая мебель может быть не только удобной, но и практичной, долговечной, эстетически привлекательной.
Видео
Удобная и качественная скамейка своими руками

Скамейки для дачи своими руками — цель абсолютно реальная.
Сама по себе скамейка — вещь не только необходимая в повседневности, но и весьма функциональная в плане украшения общей композиции художественного оформления сада или даже всего дачного участка, включая постройки. Единая стилистика оформления органично подчеркивает комфорт и уют дачного участка, наиболее полно раскрывая дизайнерский замысел.
Конструирование скамейки для дачи своими руками или даже садового комплекса из нескольких скамеек вполне по силам провести самостоятельно, от стадии проектирования до стадии изготовления.
Необходимо лишь обладать элементарными навыками работы с столярным инструментом и воображением, позволяющим превратить все идеи в реальность — от простой лавочки до сложной скамейки с изогнутой спинкой.
Требования к скамейке для дачи
Прежде чем начать проектировать скамейку, необходимо четко знать, каким требованиям должен удовлетворять проект. При кажущейся простоте изделия такие вопросы как удобство и прочность являются довольно актуальными.
Удобство скамейки, прежде всего, заключается в правильности посадки человека, эргономичности конструкции и анатомически правильном расположении спинки и сиденья.
Существуют садовые скамейки, на которых дискомфорт для сидящего проявляется чуть ли не через 10 минут. Спинка в конструкции должна быть обязательно.
Вопрос прочности скамейки на даче — прежде всего вопрос выбора материала, из которого будет изготовлено изделие. Для того чтобы сделать скамейку, надо первоначально определиться с материалом изготовления.

Широкий спектр материалов, используемых для таких задач, можно сгруппировать в три наиболее популярные категории:
Безусловно, для самостоятельного изготовления садовая скамейка из металла будет слишком сложна, так как требует сварки или ковки, а изготовленная на винтовых соединениях будет слишком ненадежна.
Интересная особенность таких скамеек — возможность применения в конструкции складных частей, в отличие от простой лавочки.

Каменная скамейка для дачи своими руками прекрасно вписывается в дизайн практически любого сада, может быть оригинально оформлена и характеризуется средними затратами на создание, однако не является хорошим вариантом в плане комфортности посадки и безопасности для здоровья.
Камень всегда холоден, даже подогретый солнечным светом, поэтому требует дополнительного утепления в виде подушки или сиденья из деревянных компонентов, что усложняет конструкцию.
Каменные скамейки своими силами в изготовлении также довольно трудны из-за большой массы каменных частей, входящих в их конструкцию. Может потребоваться сила нескольких человек.
Дерево является идеальным вариантом для того, чтобы самостоятельно сделать скамейку в саду, так как лишено практически всех недостатков камня и железа, легко поддается обработке, распилке и компоновке.
Деревянный массив предоставляет мастеру практически неограниченную свободу творчества, от которого преобразится вся дача. А изящная деревянная скамейка вполне способна заменить на даче старую лавочку.
Стадии проектирования и подготовки инструмента и материала для садовой скамейки

Рисунок 1. Скамейка для дачи.
Определившись с материалом изготовления, необходимо изготовить чертежи проекта садовой скамейки и постараться учесть все особенности конструкции для обеспечения ее прочности и долговечности (рис.1).
В проекте необходимо принять во внимание, сколько человек сможет одновременно разместиться на скамейке, в каком месте она будет установлена, определить, на сколько градусов будет наклонена спинка для комфортного сидения.
Далее необходимо определить, какое количество деталей нужно изготовить. Типовая конструкция скамейки для дачи из дерева своими руками, в отличие от простой деревянной лавочки, обычно содержит следующие компоненты — сиденье, опоры и спинку.
Можно предусмотреть подлокотники с 2 сторон. Этих деталей для скамейки вполне достаточно. Согласно чертежу и замерам закупается материал — древесина. Для изготовления скамейки понадобятся доски и брус разного сечения. Из досок будет изготовлена спинка, сиденье и боковые опоры, брус будет выполнять роль ребер жесткости и усиления опор, а также функцию подлокотников. Можно отдельно изготовить чертежи на каждую деталь.
Из инструментов понадобятся:
- Шуроповерт или дрель с регулятором оборотов.
- Электролобзик либо пила по дереву.
- Саморезы различной длины, болты с гайкой.
- Рубанок или электрорубанок.
- Наждачная бумага.
- Лак.
- Линейка, рулетка, угольник.
Типовая конструкция скамейки для сада на даче
Проектных решений для создания скамьи великое множество и ограничено оно только фантазией мастера. Однако есть некоторые общие принципы, которые складываются в некий типовой вариант скамейки. Основой любой из них служат опорные стойки, делающие скамейку устойчивой. 4 опорные стойки рекомендуется изготовить из бруса квадратного сечения с ребром 50 мм.
Опорные стойки должны сформировать основу скамейки — 2 боковые арки в форме буквы П c поперечинами для усиления. Обе боковые арки должны иметь в задней части длинный брус опоры спинки, под 45 градусами сходящийся к задней части опоры.
Следующим шагом после изготовления опорных арок скамейки необходимо соединить их 2 продольными брусьями для жесткости конструкции, равным общей длине скамейки за вычетом ширины бруса опорных арок. Собранная таким образом рама должна напоминать обычный стул без сиденья и спинки.
Соединения брусьев в опорных арках необходимо делать болтами через предварительно просверленные каналы.
Верхние поверхности опорных арок накрываются досками, образующими сиденье. Доски подгоняются вплотную друг к другу, через заранее просверленные каналы крепятся к брусьям саморезами с плоской шляпкой, максимально погруженной в деревянный массив.
Аналогичным способом создается спинка — на опорные брусья крепятся плоские доски опять же саморезами, только не подгоняются вплотную, а крепятся на небольшом расстоянии для удобства спины сидящего.
Финальным шагом изделие необходимо покрыть несколькими слоями лака, что максимально предохранит древесину от внешней среды и увеличит удобство скамейки.
Скамейки для дачи – лучшие модели для постройки своими руками и 100 фото идей красивого дизайна
Скамейка не просто нужный, даже необходимый предмет для дачи, а еще и мощное декоративное оформление. Большинство собственников частных владений предпочитают сооружать лавочки самостоятельно. Много времени, затрат и сил это занятие не потребует, а скамейка станет эксклюзивной.
Материалы для изготовления
Для начала нужно определиться с материалом для скамьи. Традиционно самыми популярными являются лавочки, сделанные из дерева. Нужно учитывать, что изготовленный предмет будет находиться под открытым небом, поэтому должен быть сконструирован из древесины, максимально стойкой к влаге, перепаду температур и другим климатическим воздействиям.
Скамейки для дачи из металла долговечны, надежны, устойчивы к любым осадкам и механическим повреждениям. Чтобы украсть двор, их делают с различными завитками, узорами, цветами, создающими красоту и оригинальный дизайн.
Обратите внимание: Что бы выполнить правильное благоустройство территории рекомендуем обратится в компанию M.Art.
Скамейки из камня монументальные, капитальные, мощные и могут быть выполнены по совершенно разным схемам, из обработанного и отполированного камня или первозданного с изъянами.

Пластиковая скамейка легкая, удобная в транспортировке и при правильном изготовлении может оказаться вполне прочной, надежной и украсит Ваш сад.

Скамейки с цветниками
Один из наиболее практичных вариантов, когда скамейку объединяют с клумбами. Сидеть на таком изделии, вдыхая аромат и наслаждаясь цветением растений, приятно и уютно.
Существует несколько вариантов. Между двумя деревянными ящиками положить отшлифованную доску, или несколько, соединенных между собой и скамейка с цветниками готова. Однако, дерево которое контактирует с почвой не прослужит долго, поэтому деревянные ящики можно заменить каменными или бетонными.
Закрепить доски между каменными клумбами легко с помощью металлического уголка. В бетон он крепиться дюбелями, а в дерево – саморезами.
Если выполнять работы с нуля, без наличия готовых элементов, понадобится инструкция как сделать такую скамейку. Подготовьте материалы: карандаш, рулетку, доски, пилу, саморезы и гвозди, молоток, клей. Чтобы посадить цветы – землю, горшочки и сами растения.

Далее делаем замеры свободного пространства под скамью и рассчитываем ее габариты. Доски необходимо отшлифовать, во избежание заноз или других повреждений кожи и для придания максимально презентабельного вида.
Нужно вырезать 52 одинаковых отрезка до полуметра длиной. 12 из них откладываем в сторону, а из 40 строем ящики, которые одновременно будут опорой для лавочки. Для этого выкладываем их башенкой – на 2 параллельно лежащие доски, кладем 2 перпендикулярно и так далее. Должно получится два ящика по 20 планок каждый.
Из длинных досок изготавливаем раму, скрепив их между собой. Скрепленные длинные доски совмещаем с двумя готовыми башенками с помощью клея и саморезов.
Из оставшихся 12 досок делаем еще две маленькие башенки и крепим их на уже готовые ящики-опоры. Хорошими досками застилаем поверхность сидения. В ящики вставляем горшки с цветами и лавочка готова.
Простые в монтаже скамейки
Еще один простой способ изготовить лавочку – использовать для этого строительные блоки и брусья. Обработанные, они легко вставляются в отверстия блоков.

Хоть лавочка и выглядит примитивно, и вряд ли сможет полноценно украсить вашу территорию, зато она проста в исполнении и прекрасно подойдет для отдыха, например, на огороде или возле воды.
Сделать простую металлическую лавочку легко, если обладать элементарными навыками сварки. Приготовьте сварочный аппарат, уголок из металла, болгарку, чтобы резать трубы, и саму профильную трубу.
При помощи болгарки отрезаем 3 одинаковые заготовки, длиной 120 см. Это будет сидение. Из стального уголка вырезаем 2 поперечины и кладем перпендикулярно заготовкам для сидения, привариваем сварочным аппаратом, а к ним присоединяем 2 ноги для будущей скамьи.
Отступив от сидения расстояние около 20 см, привариваем к ножкам поперечную планку. Чтобы скамейка стояла, к ножкам внизу нужно приварить 2 уголка перпендикулярно, на них собственно и будет опираться вся конструкция.

Металл окрашивают в нужный цвет. Сидеть на холодном покрытии не весьма комфортно, поэтому поверх металлического сидения можно положить деревянные доски, закрепив их дюбелями;
Красивая лавочка со спинкой своими руками
Если вы желаете сделать скамейку для дачи своими руками особенной, эксклюзивной, не такой, как у соседей, для этого потребуются некоторые умения, финансовые вложения и свободное время.
Чтобы сделать деревянную лавочку для загородного дома, нужно составить схему. Чертежи и соответствующие фото скамеек можно отыскать готовые в интернете или спроектировать свой, индивидуальный вариант.
Для начала сделайте замеры, определитесь с габаритами вашего будущего изделия. Помните, что в стандартных случаях высота скамейки от земли будет составлять до 60 см.
Нужно тщательно разрисовать длину всех составляющих элементов, досок, продумать расположение декоративных деталей. Когда все свои мысли вы нанесли на бумагу, начинайте закупать материалы.

Чтобы сделать для дачного участка скамейку из дерева со спинкой необходимо заготовить три вида дерева – толстое бревно, обычные доски до 3 см и брус, диаметром до 7 см.
Из инструментов понадобится молоток, гвозди и саморезы, шуруповерт и отвёртка, простой карандаш, линейка, дрель и для покрытия дерева – краски, лаки и кисти.
Лавочка делается в 4 этапа. Ножки, сидение, спинка и на последнем – сбор конструкции.
Чтобы сделать ножки берём бревно, толщиной 3-4 см, отмеряет блину, ширину и высоту и вырезаем ножки с помощью ножовки. Ножки должны быть одинаковые, малейшее различие между ними приведет к перекосу лавочки. При необходимости поровняйте их.
Спинку делают в виде двух опорных досочек, толщиной не менее 3-х см. Длина спинки должна быть идентичной длине сидения. Крепить доски можно, оставляя между ними забор, или сделать спинку сплошной.
Сидение лавочки изготавливают из брусьев – они помогут сделать ее надёжной и прочной. Количество брусков зависит от предполагаемой ширины лавочки и от желания оставлять между ними зазоры или делать сплошное сидение. Вырезав бруски одинаковой длины, обязательно отшлифуйте их.
На последнем этапе необходимо собрать все заготовки вместе. Доской, толщиной 4 см необходимо с помощью гвоздей скрепить две ноги, чтобы получить п-образную конструкцию, доски спинки и бруски для сидения. Между собой скрепить ножки и сидение.
На сидение прибить планки перпендикулярно для закрепления спинки. С помощью саморезов закрепить спинку. Чтобы лавочка имела презентабельный вид, ее нужно тщательно отшлифовать и покрыть лаком или красками.
Соорудить лавочку можно и с использованием подручных средств – деревянных поддонов, кирпичей, глины, камней, и даже бутылок. Главное, чтобы она была практичной, целесообразной и вписывалась в интерьер Вашего двора.
Мастерим красивую скамейку для дачи своими руками
Попробовать свои силы в столярном ремесле мечтает каждый мужчина. Загородный дом – лучший полигон для таких упражнений. Здесь найдется немало уютных уголков, для украшения которых необходима садовая мебель.
Прогуляйтесь по своему саду, загляните на террасу и вы наверняка сделаете вывод о том, что удобная скамейка не будет здесь лишней.
Если ваше первое творение не получится безупречным, то не стоит опускать руки.
Изготовление скамейки для дачи в любом случае даст вам бесценный опыт и практические навыки, которые можно будет использовать для создания новой, более удачной и надежной конструкции.
Первый шаг в любой работе – творческий замысел. Для того, чтобы он оказался успешным и принес радость творчества, давайте вместе рассмотрим популярные виды и варианты скамеек, которые можно собрать своими руками или с использованием готовых частей (декоративной ковки, обрезков бревен, поддонов).
Какой вариант садовой скамейки выбрать?
Рассматривая различные виды красивых скамеек, не перестаешь удивляться широте человеческой фантазии. Их можно делать из чего угодно, но лучше всего воспользоваться помощью природы. У нее всегда найдутся неповторимые по красоте линии и формы, которые можно внедрить в чертеж своей конструкции.

Новичкам мы советуем обратить внимание на древесину — универсальный и несложный в работе материал. Простую садовую скамейку можно соорудить из нескольких толстых веток, необрезной доски и дубовой колоды, разрезанной пополам.


Тщательно обработав дерево шлифованием, покрыв его морилкой и качественным лаком, мы получим отличную скамейку – надежную, эстетичную и долговечную. Ее можно без опасений оставлять на зимовку в саду. Снег и дождь не смогут нанести ей ущерб.

Если в вашем хозяйстве найдется два толстых обрезка бревна и парочка досок толщиной 6-7 см, то соорудите из них лавочку со спинкой. Завершая конструкцию, попробуйте свои силы в искусстве резьбы. Наверняка у вас получится интересная инсталляция подобная той, которая запечатлена на фото ниже.

Если бревен и пеньков не нашлось, то можно обойтись и обычными строганными досками. Конструкция будет выглядеть изящнее, если у спинки и сиденья будут аккуратно закруглены края. Ножки можно сделать не прямыми, а слегка изогнутыми, вырезав их из широкой и достаточно толстой доски (50-60 мм).

Садовая скамейка из дерева неисчерпаема по своим формам и декору. Древесина – пластичный и органичный материал. В нем удачно воплощаются самые смелые фантазии и творческие замыслы.

Овладев технологией гибки древесины, попробуйте соорудить из нее лавочку со спинкой необычной формы, как на фото. Сиденье у этой конструкции сделано из гнутого бруска. Столь оригинальное сооружение украсит приусадебный участок и сможет претендовать на призовое место в конкурсе дизайна.

Простой горбыль – невзрачный второсортный материал, получит вторую жизнь, если хорошо обработать его и пустить его на спинку для самодельной лавочки.

Если после обрезки сада у вас остались толстые ветки, не спешите распиливать их на дрова. Среди них наверняка найдется оригинальный элемент для садовой скамейки, как на следующем фото.

Можно сделать простую скамейку самому, используя деревянные поддоны. Два из них пойдут на основание, а третий станет спинкой. Его верхнюю часть нужно прикрепить к сиденью двумя длинными досками-затяжками, а нижнее ребро зафиксировать саморезами.


Хит-парад деревянных конструкций продолжает скамейка-трансформер. Путем несложных манипуляций она превращается в садовый стол и две лавочки, на которых можно разместить небольшую компанию.

Металл + древесина = секрет надежной и красивой скамейки
На самом деле никаких особых тайн здесь нет. Просто эти два материала идеально сочетаются в конструкции скамейки. Металл придает ей надежность, а дерево – тепло и красоту.
Самый простой вариант скамейки из металла и дерева — каркас из профильной трубы с сиденьем и спинкой из шлифованных брусков.

Стальная полоса также хорошо подходит для изготовления самодельной лавочки. Она гнется по шаблону и делает конструкцию прочной и красивой. Загнув подлокотники из полосы в спираль и продлив их на спинку, можно создать достоверную имитацию ковки.

Однако, по-настоящему красиво, изящно и воздушно выглядят настоящая кованая спинка, боковины и подлокотники.

Такая лавочка украсит не только сад, но будет уместна в летней беседке, бане или на веранде.

Кованые скамейки относятся к области высокого кузнечного искусства. Приблизиться к идеалу можно без молота и горна, купив готовый кованый декор и аккуратно приварив его к стальному каркасу.

Самостоятельное изготовление
С первой попытки вы сможете качественно сделать скамейку со спинкой своими руками, если выберете самую простую конструкцию и сделаете ее чертеж. Мы предлагаем остановиться на варианте из досок. Боковины из них служат опорами для сиденья и основой для крепления спинки.
Габаритные размеры выбирают исходя из толщины доски и количества мест. Если лавочка рассчитана для двух человек, то ее ширина должна быть не менее 120 см. Для изготовления опорных боковин будет достаточно досок толщиной 40 мм. Для спинки и сиденья можно использовать строганный брусок размером 60х30 мм.

Высота сиденья должна быть такой, чтобы с него можно было без усилий встать (45-55 см). Спинку нужно сделать не слишком высокой и не очень низкой. В этом случае скамейка не опрокинется и будет удобна для опирания. Для выполнения этих двух условий нужно запроектировать высоту спинки в пределах 50-60 см. Оптимальная высота лавочки со спинкой — от 95 до 115 см.
Немного сложнее в изготовлении скамейки из металла и дерева, поскольку для их сборки требуются навыки работы со сварочным аппаратом и умение точно резать стальной профиль болгаркой.

Для защиты трубы от внутренней коррозии не забудьте приварить на ее ножки подпятники, а на открытые торцы труб — стальные заглушки из кусочков полосы.
Для жесткого соединения боковин будет достаточно одной поперечной трубы, вваренной в опорную трубу сиденья. Деревянная обшивка дополнительно усилит конструкцию. Для ее крепления можно использовать болты с гайками или саморезы по металлу с декоративными шляпками, предварительно разметив и высверлив под них отверстия в профиле.








