Выбираем точечные светильники — что важно знать?
Подвесной потолок
При выборе осветительных приборов для гипсокартонного потолка, нужно определиться для какой цели Вы собрались их устанавливать:
- украшение дома при помощи правильного расположения световых приборов;
- создание комбинированного освещения и разделение комнаты на зоны;
- альтернатива полноценному освещению от люстры.
Точечные светильники для подвесного потолка могут быть выполнены из любых материалов, здесь нет каких-либо ограничений. Вы можете выбрать изделия из алюминиевых сплавов или штампованного металла, а единственное на что нужно обратить внимание – это соразмерность высоты запотолочного пространства размерам закрытой части осветительного прибора. Для разных изделий свободное место за потолком из гипсокартона должно быть от 2 до 10 см. Перед тем как выбрать и купить нужную модель, обязательно узнайте каким зазором Вы владеете.
Виды светильников
Конечно, чтобы правильно подобрать точечные светильники для потолка из гипсокартона, необходимо определиться с разновидностями изделий, поэтому мы остановимся на этом вопросе подробнее.
По типу установки осветительные приборы делятся на:
- Встраиваемые – снаружи на потолке видна только декоративная часть, все остальное скрывается за потолочным пространством. Для монтажа в гипсокартоне делают отверстие в соответствии с посадочным диаметром точечного светильника.

- Накладные – устанавливаются на твердую поверхность с помощью саморезов, отверстие необходимо будет только для проводов.

По конструкции можно выбрать следующие виды точечных светильников:
- поворотные – освещение возможно под разными углами;

- не поворотные – свет от прибора идет только вниз.

По количеству патронов светильники могут делится на:
- одинарные – один источник освещения;

- карданные – модель с несколькими патронами для лампочек, такие изделия будут довольно большими по размеру.

Интересное видео по теме:
Лампы
Правильно выбрать точечные светильники для потолка из гипсокартона – это, конечно, важное мероприятие, однако не стоит забывать и о покупке качественной и подходящей лампы. Для данных осветительных приборов подойдут галогеновые, светодиодные, ртутные (энергосберегающие) и зеркальные лампы накаливания. Самым удачным вариантом будет выбор светодиодных ламп, не смотря на более высокую цену по сравнению с другими источниками света. Эти лампочки безопасные, с долгим сроком службы, а при подключении диммера Вы сможете с легкостью регулировать яркость в комнате.

Вы также можете выбрать галогеновую лампу для точечных светильников. Она не очень экономичная, однако идеально подойдет для комнат, где необходимо сильное освещение или подсветка элементов интерьера. Ртутные изделия, наоборот, экономичные в использовании, но их свет не слишком полезен для зрения и их тяжело утилизировать. Что касается ламп накаливания, то мы не рекомендуем их использовать в принципе. Они быстро нагреваются, не долговечные и не особо эффективные.
Немного о дизайне
Конечно, все мы хотим выбрать не только эффективные, но и красивые точечные светильники, которые будут подходить под интерьер помещения и не важно в какую комнату Вы захотите их установить – в гостиную, ванную или на кухню. Всегда нужно все делать со вкусом! Особенно это касается тех случаев, когда дизайн дома выполнен в каком-либо конкретном стиле.
Если Вы хотите выбрать осветительные приборы для классической комнаты, рекомендуем приобрести изделия в бронзовом обрамлении. Возможен также выбор моделей с орнаментом или хрустальными плафонами. Для стиля прованс рекомендуется овальное золотистое обрамление со стеклянными плафонами. Для таких современных стилей, как хай-тек или минимализм, подойдут холодные металлические цвета, квадратные или круглые формы. Кстати, именно для этого стиля удачным будет применение карданных моделей. Как Вы сами понимаете, выбор точечных светильников по дизайну – процесс сугубо индивидуальный и, конечно, здесь все зависит от Вашего субъективного видения и вкуса.
Более подробно данный вопрос рассмотрен на видео:
Натяжной потолок
Что касается того, как выбрать точечные светильники для натяжного потолка, здесь можно применить все правила подбора для гипсокартонного потолочного пространства. Однако существуют еще некоторые нюансы, связанные с опасностью нагревания натяжного полотна (кстати эти советы подойдут и обладателям пластикового потолка):
- Натяжные потолки могут выдержать температуру до 80 градусов, поэтому при выборе лампочек следует подбирать изделия с мощностью не более 60 Вт для тканевого полотна и не более 40 Вт для пленки. Мощность же галогенных ламп должна быть в 2 раза меньше (30 Вт и 20 Вт соответственно).
- Свет от точечных светильников должен быть направлен вниз.
- Используйте лампочки с черной колбой или зеркальным напылением для уменьшения опасности нагревания.
- Необходимо создать надежное посадочное место в натяжном потолке при помощи специального кольца, которое прячется в бортик изделия.
- Обязательно выбирайте качественную продукцию проверенных производителей.

Если вам нужно выбрать точечные светильники для натяжного потолка, советуем обязательно просмотреть видео, в котором сравниваются различные варианты исполнения софитов:
Теперь Вы знаете все о том, как выбрать точечные светильники для потолка. Размер, форма и материал изделий в наше время очень разнообразен, также, как и цена может значительно отличаться в зависимости от выбранного прибора. Вооружившись нашими советами, Вы сможете подобрать самые лучшие модели для своего дома!
Также читают:
Светильники для натяжных потолков: виды, как выбрать лучшие + обзор брендов

Эстетичные, привлекательные внешне и практичные натяжные полотна считаются оптимальным способом отделки потолка. Но когда речь заходит о проектировании системы освещения для них, то возникают проблемы, связанные с особенностями материалов, используемых в процессе изготовления натяжных конструкций.
Вы не знаете, как выбрать лучшие светильники для натяжных потолков и какие будут безопасными при эксплуатации?
Мы поможем вам разобраться в этом вопросе — в рамках этой статьи мы выясним, что нужно обязательно учесть при выборе приборов, рассмотрим подходящие виды светильников, выделим надежных и проверенных производителей светотехники.
Технические особенности натяжных потолков
В ассортименте известных брендов светотехники представлено много разнообразных вариантов осветительных потолочных приборов. Однако не каждую из предложенных моделей светильников можно крепить к натяжным конструкциям.
Все дело в том, что их поверхность состоит из ПВХ-пленки, стеклоткани или тканевых материй, которые не терпят нагрева свыше 60°C.
Если приобрести в магазине первый попавшийся прибор и тип лампочек, не обратив внимание на характеристики устройств, существует большой риск того, что со временем они пожгут полотно.
Вследствие этого материал деформируется, провиснет, приобретет некрасивый желтый оттенок, начнет источать неприятные запахи при включенном свете.

Именно поэтому светильники, устанавливаемые в натяжной потолок, должны быть маломощными, выделять минимальное количество тепла.
Желательно, чтобы несущий корпус устройств был сделан из безопасного термосырья, предотвращающего распространение идущего от нити накаливания нагрева к потолку.
Предпочтительные виды осветительных приборов
Обсудить наиболее подходящие виды освещения необходимо еще на этапе монтажа потолочного покрытия или разработки дизайн-проекта помещения.
Основные ограничения касаются:
- мощности;
- громоздкости;
- типа крепления оборудования.
Эти характеристики нужно сопоставлять со спецификой конструкции и видом отделки потолка.

Прокладка проводки и установка креплений проводится еще до непосредственного монтажа конструкции. По этой причине схему расположения, нужное количество источников света также нужно продумывать заранее. В таком случае уместными будут несколько разновидностей светильников.
№1 — универсальные точечные устройства
Точечные светильники с натяжным полотном – классическое и наиболее распространенное сочетание. Устройства подходят для помещений любой высоты, даже если речь идет о критически низких параметрах.
Корпус изделий может немного выступать за пределы плоскости потолка или полностью встраиваться в поверхность, сливаясь с полотном.
Они используются, как для подсветки отдельных зон, так и в качестве общего освещения комнаты (при условии установки минимум одного прибора на каждые 1-1,5 м²). С ними формируют интересные световые сценарии, придавая дизайну интерьера особой индивидуальности.
Точечным моделям характерны многочисленные преимущества:
- доступная стоимость;
- простота монтажа;
- низкий уровень нагрева;
- разнообразие дизайнерского оформления;
- экономное потребление электроэнергии;
- устойчивость к влаге благодаря закрытой герметичной конструкции;
- возможность регулирования направления светопотока.
Способ установки компактных точечных приборов зависит от их типа. Встраиваемые светильники монтируются с помощью пружинного крепления, которое вставляется в заранее подготовленное отверстие.

Для монтажа светильников накладного типа используют обтягиваемые полотном регулируемые стойки. В отмеченных местах клеятся термокольца, прячущиеся под бортиком оборудования. Они помогают зафиксировать корпус, а в дальнейшем препятствуют теплообмену между прибором и материалом.
Чтобы иметь возможность регулировать направление света, можно подобрать поворотные модели.
№2 — оригинальные подвесные конструкции
Подвесные светильники подходят для больших пространств, но не рекомендуются к использованию в помещениях с низкими потолками. Они дают рассеянный или направленный светопоток, отлично освещают комнату, излучая мощный яркий свет.
При этом нет риска повреждения натяжной конструкции, так как корпус устройства и полотно размещаются на безопасном друг от друга расстоянии.
Вес люстры не должен быть чрезмерно большим. Также нужно обратить внимание на рожки и плафоны. Желательно, чтобы они смотрели вниз, иначе нельзя исключить перегрев мембраны и появление бликов на глянцевых поверхностях.

К этой категории относятся трековые светильники, лампы и люстры, которые подвешивают на вмонтированный в базовый потолок прочный крюк, выполненный из арматуры.
Каркас изделия держится на декоративной цепочке, тросе или штанге длиной от 0,2 до 1,5 м. Механизм крепления скрывается за полотном, снаружи остается только часть подвеса и укрепляющее кольцо.
Основные преимущества подвесных светильников:
- несложный монтаж;
- эстетическая привлекательность;
- широкий угол рассеивания;
- совместимость со всеми типами ламп;
- возможность регулирования высоты;
- гармоничное сочетание с разными стилями интерьера;
- быстрое остывание лампочек;
- полное отсутствие риска повреждения полотна при условии достаточной длины подвеса.
Светильники подвесного типа впечатляют разнообразием цветового, дизайнерского, декоративного оформления. Корпус производится из металлических, пластиковых материалов, стекла, дерева.
Плафоны выполняются в виде шаров, сфер, геометрических фигур, вьющихся стеблей, интересных композиций. Конструкция бывает модульной, независимой, вращающейся, стационарной.
№3 — яркие растровые светильники
В отдельную категорию выделяют модульные растровые светильники люминесцентного типа. Они представляют собой ячеистые металлические конструкции, снабженные специальной отражающей решеткой, которая рассеивает свет.

Этот вид светильников имеет следующие преимущества:
- упрощенная система установки и демонтажа;
- дополнительная защита для ламп;
- мобильные габариты и конструкция;
- строгий минималистичный дизайн.
Для домашней обстановки подобный вариант не всегда целесообразен. Зато для рабочих кабинетов, офисов, торговых площадок, выставочных залов, гардеробных растровые осветительные приборы будут идеальным выбором.
№4 — светодиодная лента для контурного освещения
Один из самых оригинальных и эффектных видов подсветки – светодиодная лента, приклеиваемая на поверхность полотна. В основном ее используют в качестве дополнительного декоративного освещения комнат.

В ассортименте некоторых производителей есть модели со 120-240 лампочками, которые вполне способны справиться и с ролью основного источника света. Во время свечения они не выделяют тепла, что делает их абсолютно безопасными для потолков из ПВХ-пленки и ткани.
Преимущества светодиодных полос:
- компактные габариты, гибкость, легковесность;
- простое крепление в труднодоступных зонах;
- малое потребление электроэнергии;
- пониженная светоотдача;
- регулировка яркости, цвета;
- большой рабочий ресурс даже при длительном непрерывном использовании.
На светодиодной ленте располагается множество светящихся кристаллов, закрепленных на плате. Их количество и плотность посадки определяет мощность контура.
Ленты могут иметь влагостойкое и обычное покрытие, оснащаться светодиодами различных цветов. В них зачастую присутствует функция регулирования свечения.
Оптимальные типы лампочек
Каждому виду светильника соответствует определенный тип лампочки. Например, в светодиодных моделях неприемлема лампа накаливания. Этот нюанс важно учитывать при выборе изделий.

В целом, для натяжных конструкций подходят любые источники света, но с несколькими уточнениями:
- лучше отдать предпочтение матовым лампочкам;
- в точечных светильниках не стоит применять лампы накаливания;
- вместе с галогенными источниками света требуется монтаж дополнительного трансформатора;
- допустимая мощность ламп накаливания – не больше 45-60 Вт, галогенных – до 35 Вт.
Лампы накаливания ставят в подвесные люстры, закрепленные на расстоянии минимум 0,4 м от пленочного потолка. Они излучают стандартный рассеивающий свет, но являются самым неэкономичным вариантом среди остальных.
Галогенные лампы более экономны и долговечны. Эти устройства отличаются хорошей цветопередачей, обеспечивают интенсивный яркий свет в помещении, однако сильно ограничены по цветовой гамме.
LED-лампочки – наиболее оптимальный, экологически безопасный и экономически выгодный вариант. Они почти не нагреваются в процессе работы, потому являются лучшим видом источника света для натяжных потолочных поверхностей.
На многие модели LED-светильников производители дают длительную гарантию на срок до 10 лет.
Светодиодные лампы характеризуются широким диапазоном цветовых температур – от холодного белого до теплого желтого тона. Устройства не создают эффекта мерцания, излучают довольно мягкий свет.

Люминесцентные лампочки – долговечны и экономны. Они дают качественное рассеянное освещение, не нагреваются, не засвечивают поверхность. Благодаря небольшому расходу энергии достаточно высокая цена изделий быстро окупается.
Поскольку им характерны относительно крупные размеры, они подходят не для каждой модели светильника. Основной минус люминесцентных ламп – невысокая скорость запуска.
Оптоволоконные нити – еще один вариант источника света, который часто совмещают с натяжными полотнами. Им свойственна низкая теплоотдача, малое количество света. Обычно их используют исключительно в качестве декоративной подсветки.

Стоимость оптоволокна на порядок дороже остальных элементов, но она оправдана его долговечностью.
Обзор лучших производителей светотехники
На рынке светотехнической продукции можно встретить много разных брендов. Чтобы быть уверенным в качестве оборудования, разумнее приобретать модели проверенных производителей. Рассмотрим тройку лидеров в этой области.
1 место — торговая марка Ecola (Китай)
Большинство экспертов считает, что наиболее надежные и недорогие светильники для натяжных конструкций предлагает фирма Ecola.
Почти все представленные модели оснащены специальной системой защиты от влаги. Установка этого оборудования не вызывает сложностей. Для него предусмотрены минимальные требования по высоте монтажа и размерам ниши, проделанной между базисным и натяжным потолком.

Модельный ряд производителя довольно разнообразен. Рекордное количество положительных отзывов получили встраиваемые светильники GX53, MR16, устройства накладного типа GX70.
Они максимально соответствуют важным для пользователей критериям: качество освещения, экологическая безопасность, стильный дизайн.
2 место — компания Philips (Нидерланды)
Изделия торговой марки Philips Lighting (новое название – Signify) славятся своей универсальностью и надежностью. В коллекции бренда есть множество осветительных устройств, совместимых с натяжными потолочными конструкциями.
Все они объединены современным дизайном, в котором просматриваются элегантные лаконичные формы, позволяющие придать интерьеру особый шарм.

Среди имеющихся моделей стоит выделить ультратонкие встраиваемые приборы типа «Даунлайт», потолочные светильники серии ECOMODS, точечные устройства Probos.
3 место — бренд Citilux (Дания)
В качестве удобных, эффективных и красивых световых решений для натяжных потолков есть что предложить и датскому производителю Citilux.
Использованные в конструкции его светильников материалы устойчивы к влаге, температурным перепадам, вибрациям. Большинство модификаций продается по сравнительно доступным ценам.

Владельцы такой светотехники отмечают ее простоту в обслуживании, практичность, высокое качество, продолжительный срок службы.
К лучшим моделям торговой марки относят потолочные люстры с пультом серии Паркер, встраиваемые точечные светильники линеек Альфа, Бета, устройства накладного типа Луна.
Помимо описанных брендов стоит также упомянуть светотехнику Osram, Massive, Глобо, Markslojd, Feron.
Рекомендации покупателю по выбору светильника
Отправляясь в магазин за светильником, необходимо уже четко понимать, что вам нужно. Свой выбор следует соотнести с техническими требованиями натяжного полотна, спецификой помещения, дизайном интерьера, в котором оформлена комната.

В первую очередь определяемся с внешними качествами подходящих изделий:
- Форма. Светильники имеют разную форму корпуса и плафонов: стандартные, ассиметричные, геометрические. От их выбора зависит, как и под каким углом будет распределяться свет по комнате. В некоторые модели добавляют зеркальные отражающие пластины, цветной пластик или стекло, которые помогают образовать уникальную романтическую атмосферу за счет рассеивающихся бликов.
- Размер. Все варианты светильников отличаются по габаритам, весу. Исходя из этих параметров просчитывается будущая система освещения. Не стоит брать слишком тяжелые лампы: для них необходимо увеличивать монтажную высоту поверхности, чтобы потолок не провис.
- Цвет. Корпус осветительных приборов может оформляться во всех цветах и оттенках. Палитра настолько широка, что подобрать устройство под цвет потолочного покрытия не составит труда. При желании разнообразить интерьер можно взять несколько светильников в разных тонах.
Важно учесть и особенности помещения, в котором будут устанавливаться приборы. Для ванных комнат, где всегда повышен уровень влажности, следует подбирать оборудование с высокой степенью защиты. Такие приборы имеют герметичный корпус, предупреждающий проникновение воды.
Подробная информация по выбору и размещению светильников в ванной комнате представлена в этой статье.

Для спальни лучшим выбором считаются приборы с матовым рассеивающим стеклом. В прихожих и коридорах вытянутой формы рекомендуется устанавливать осветительные устройства точечного типа по всему периметру.
Не обязательно останавливаться на одном виде осветительного оборудования для помещения. Стоит попробовать комбинировать между собой разные решения.
Например, установить классическую люстру и дополнить ее точечными светильниками. Это позволит создать оригинальные световые композиции, подчеркнуть отдельные детали в интерьере, разделить помещение на зоны, избежать затененных углов.
В фотогалерее представлены эффектные варианты светового оформления в комнатах с натяжными потолками:
Точечные лампочки для натяжных потолков: варианты дизайна, размеры, фото и отзывы
Громоздкие люстры понемногу уступают свои позиции небольшим светильникам. Преимущество точечных софтов в экономичности и длительной бесперебойной работе. Однако точечные светильники для натяжных потолков должны отвечать определенным требованиям. Выбор неподходящего прибора может негативно повлиять на состояние полотнища или увеличить пожароопасность помещения.
Плюсы и минусы точечного освещение натяжных потолков
Точечное освещение практичнее, чем обычная люстра. Оно позволяет сфокусировать свет на отдельной части помещения или добиться равномерной подсветки. Помимо этого, точечные софты:
- экономят электроэнергию;
- не загромождают пространство;
- практически не дают собственной тени;
- долго работают без замены;
- более безопасны за счет невысокой мощности.
Нередко стоимость целого комплекта точечных приборов ниже, чем цена большой люстры, а освещают комнату они намного лучше. Фото точечных светильников для натяжных потолков дают представление о разнообразии дизайна изделий.

Поворотные софты практичнее, но хрустальные плафоны создают особый уют
К минусам светильников можно отнести:
- необходимость разработки схемы размещения софтов до установки потолка;
- непростой монтаж;
- ограничение по мощности.
Основная опасность для натяжного полотнища – высокая температура лампочек в процессе работы даже при низкой мощности прибора. Уменьшить возможные проблемы помогут конструкции с наружным расположением лампы.
В конструкциях с наружным расположением лампочка находится ниже плоскости потолка и отделена плафоном. При внутреннем расположении лампочка утоплена в корпус. Первый вариант предпочтительнее по следующим причинам:
- лампа открыта снизу и с боков, быстрее остывает;
- металлическая накладка дополнительно защищает потолок от перегрева;
- широкий угол рассеивания света обеспечивает лучшую освещенность;
- пространство между натяжным полотнищем и потолочной плитой можно сделать очень узким, так как основная часть расположена снаружи;
- максимальная мощность 70 Вт.
Светильники с внутренним размещением лампочек совсем немного выступают из потолка. Они имеют ряд ограничений:
- максимально допустимая мощность – 35 Вт;
- только штампованный корпус;
- недопустим контакт корпуса с натяжным полотнищем.
Для светильников подобного вида желательно устанавливать двойные термокольца для лучшей защиты полотнища. Для размещения корпуса натяжное полотнище придется опустить на 1-2 см. ниже.

Плоские светильники, в которых лампочка расположена рядом с полотнищем, должны иметь надежные изолирующие кольца
Виды точечных светильников для натяжных потолков
По конструкции типы точечных светильников для натяжных потолков делят на:
Встраиваемые модели светильников бывают:
- фиксированные (свет падает отвесно вниз);
- поворотные или споты (возможна фокусировка луча света в выбранной точке).
Один из недостатков встроенных приборов – увеличение межпотолочного пространства. Минимальный допустимый размер – 7 см, некоторые модели требуют до 16 см.
Лампы накаливания не рекомендованы для встроенных и накладных конструкций. Они допустимы для подвесных вариантов при условии, что от натяжного полотнища лампу отделяет 25-30 см. И даже при этом максимально допустимая мощность лампочки не может выходить за пределы 60 Вт для тканевого полотнища и 40 Вт для винилового покрытия. Еще одно ограничение – свет должны идти строго вниз, чтобы избежать появления желтых пятен и деформации потолка.
Люминесцентные и галогенные лампы – лучший выбор для точечных светильников, хотя у них тоже есть свои ограничения. Для пленочного потолка мощность галогенных лампочек ограничена 35 Вт, однако это не отразится на качестве освещения, они испускают яркий световой поток даже при небольшой мощности.

Глянцевый натяжной потолок отражает свет, увеличивая освещенность помещения
Люминесцентные лампочки нагреваются меньше других, экономичны, не требуют большого пространства между потолочным перекрытием и натяжным полотнищем (хватит 2-3 см). Недостатки люминесцентных ламп – высокая стоимость и медленный набор яркости света. Светодиодные лампочки работают долго, почти не греются, но им необходим источник постоянного тока напряжением 12 или 24 В, т. е. потребуется установка трансформатора.
Для светодиодных точечных светильников (фото ниже) требуется адаптер, но близко к натяжному потолку располагать его нельзя из-за сильного нагрева при работе.

Как выбрать точечные светильники для натяжных потолков
На что обратить внимание:
- габариты и тип лампы;
- способ крепежа;
- стиль и материал.
Натяжное полотнище изготавливают из ткани, виниловой пленки или стеклоткани. Все эти материалы не выдерживают сильного нагрева. Максимально допустимые значения – 60-80 °С. Лампочки, которые слишком сильно нагреваются, могут вызвать деформацию ткани, появление желтых пятен или возникновение химического запаха. Основным требованием к лампочкам для точечных светильников является низкая мощность, чтобы натяжной потолок не перегревался. Также необходим термоустойчивый корпус или термокольцо.
Лучше всего устанавливать точечные светильники с непрозрачной рабочей частью. Если в корпусе будут прозрачные элементы, свет проникнет в межпотолочный промежуток, подчеркнет все неровности, монтажные устройства и проводку.

Расчет количества точечных светильников для натяжных потолков
Слабый свет, как и слишком яркий, негативно сказывается на здоровье и настроении. Темное помещение вызывает дискомфорт, приводит к быстрой утомляемости глаз. При слишком ярком свете возникает опасность перевозбуждения нервной системы, повышается раздражительность.
Конус света от софта, направленный строго вниз, способен охватить площадь в 1,5-2 кв. м. С помощью этих нормативов можно рассчитать количество приборов. Если точечные светильники – единственный источник света, то для помещения 25 кв. м. потребуется 15-16 приборов.

От правильного расчета количества светильников зависит восприятие света
Размеры точечных светильников для натяжных потолков
Большая роль при определении нужного размера отводится конструкции патрона:
- E27 рассчитан на лампочку обычного размера;
- E14 или «миньон» немного меньше;
- G4, G5, G9 – это лампочки очень маленького диаметра в виде штыря.
Внутренние диаметры плафонной части точечных светильников для натяжных потолков стандартизированы: 60, 65, 70, 75, 80, 85 см. Крепления и прорези в полотнище должны соответствовать этим значениям.
Подвесные модели крепятся на штоке к потолочному перекрытию. Основной критерий выбора для подвесных конструкций – длина штока. Ее должно хватить, чтобы плафон или рожок оказались ниже уровня натяжного полотнища.

Лампочки небольшого диаметра создают достаточно мощный световой поток
Особенности крепления точечных светильников на натяжном потолке
Монтаж всегда выполняют по одному принципу: лампы крепят к потолочной плите, а в полотнище прорезают или прожигают отверстия для них. Крепить точечные светильник непосредственно на натяжное полотнище не следует. Это приводит к провисанию и деформации ткани.
Галогенные лампочки могут быть рассчитаны на 220 В или 12 В. Последние очень экономичны, но для их установки понадобится трансформатор мощностью превышающий суммарное значение всех лампочек.
Варианты дизайна точечных светильников для натяжных потолков
Привычные плоские светильники с металлическими накладками хороши для офиса. Для создания уюта больше подойдут разнообразные варианты из цветного стекла, хрусталя, разноцветного пластика.
Глянцевое натяжное полотнище хорошо отражает свет, для него можно использовать многогранники, подвесные светильники с хрустальным декором. На матовый потолок предпочтительно устанавливать плоские варианты, в которых свет падает отвесно вниз.
Для украшения натяжных потолков отлично подходят точечные светильники квадратной формы. Варианты оформления позволяют вписать строгую форму в дизайн самых разных стилей. Матовый металл уместен в лофте или промышленном стиле, блестящее покрытие подойдет классическому городскому интерьеру, накладки под керамику впишутся в прованс.

Плафоны с собственной подсветкой создают дополнительные световые акценты
Расстояние между точечными светильниками в натяжном потолке
Промежуток между софтами зависит от высоты потолка. Важно, чтобы не оставалось неосвещенных участков, т. е. чтобы световые потоки от лампочек пересекались. В помещении высотой 2,5 м осветительные приборы устанавливают на расстоянии 60 см от стен, промежуток между ними должен составлять около метра или меньше, в зависимости от мощности светового потока.
Самое маленькое допустимое расстояние меду софтами – 30 см., а от угла до ближайшего прибора должно быть около 20 см. Для создания равномерного светового потока расстояние между всеми приборами должно быть одинаковым. Даже если планируется использовать точечные светильники для подсветки отдельных участков натяжного потолка, между ними следует выдерживать одинаковые промежутки.
Схемы расположения точечных светильников на натяжном потолке
Точечные софты имеют довольно маленький угол рассеивания, поэтому желательно использовать сразу несколько приборов. Софты располагают группами или равномерно распределяют по всему потолку. Расстановка точечных светильников на натяжном потолке связана с их назначением. Можно придерживаться геометрически правильных фигур или выбрать асимметричный вариант.

Специалисты рекомендуют перед началом установки точечных светильников отметить их места на потолке и оценить результат «в натуре»
Монтаж точечных светильников под натяжной потолок
Перед началом монтажа нужно установить все крепежные элементы, проложить электропроводку в соответствии со схемой и проверить ее работу. Как правило, каждый светильник имеет подробную инструкцию по установке. Если следовать всем указаниям, то монтаж точечных светильников на натяжной потолок не станет большой проблемой.

Размещение крепежных конструкций на потолочной плите перед монтажом натяжного потолка
Как установить точечные светильники в натяжной потолок
В комплекте накладного светильника обычно есть металлическая планка для монтажа. К месту крепления подводят провод, закрепляют его клипсами, чтобы не допустить провисание. На бетонный потолок дюбелями крепят деревянный брусок. Аккуратно прорезают или прожигают отверстие в пленке, куда затем вставляют термокольцо. Перед монтажом металлической пластины следует убедиться в отсутствии острых краев. Затем ее саморезами привинчивают к деревянному бруску.
Встраиваемые светильники нередко требуют наличия трансформатора. Его нужно заранее установить и развести проводку. Встроенные софты крепят на платформу. Специальные подвесы помогут отрегулировать высоту расположения. После натяжения мембраны нащупывают места крепления, наклеивают кольца, дожидаются высыхания клея и только затем аккуратно прорезают пленку.
Подвесные модели крепят на крюк в потолочном перекрытии. После установки натяжного полотнища в выбранных местах приклеивают защитные кольца, дожидаются его полного высыхания, аккуратно прорезают пленку. Затем останется только подвесить светильник на крюк и замаскировать отверстие накладкой.

Монтаж галогенового встраиваемого софта
Как снять точечный светильник с натяжного потолка
Перед работой необходимо отключить электричество, снять плафон, стекло, защитную решетку, выкрутить лампочку. С помощью отвертки поддеть край декоративной накладки. Если речь идет о подвесной конструкции, то после снятия колпака появится доступ к крепежному крюку, и прибор просто с него снимают. У накладных конструкций после снятия декора откручивают крепления монтажной планки. Для полного демонтажа точечного светильника с натяжного потолка останется только отсоединить клеммы.
Как заменить лампочки точечного светильника натяжного потолка
Для замены галогенных или светодиодных ламп может потребоваться снять крышку или фиксирующее кольцо. Светодиоды иногда заменить невозможно – они спаяны в единое целое с корпусом. Выход только один – ставить новый прибор.
С галогеновыми лампами следует работать в перчатках или с помощью салфетки. На кварцевом стекле от пальцев остаются жирные пятна, даже если руки только что вымыты. В последствии потожировые следы кристаллизуются и приводят к поломке.
Рейтинг точечных светильников для натяжных потолков
Соотношение цена-качество лучше всего у китайской торговой марки Ecola. Их продукция защищена от влаги, не требует большой глубины для монтажа, имеет непрозрачное покрытие тыльной стороны лампы, потребляет мало энергии.
На следующей строке рейтинга компания Philips (Нидерланды). Их продукция универсальна, надежна, имеет современный дизайн. Еще один производитель с хорошим сочетанием доступной цены и высокого качества – датский бренд Citilux. Он выпускает влагостойкие удобные светильники в строгом классическом стиле.
Заключение
Точечные светильники для натяжных потолков намного практичнее громоздких люстр. Разнообразие форм, цвета, стиля позволит легко подобрать варианты для самых изысканных интерьеров. Некоторые ограничения по мощности и конструктивным особенностям с лихвой окупаются долгой надежной работой светильников. Восприятие света зависит от выбранного вида покрытия. Матовый натяжной потолок со светодиодными точечными светильниками создает уютный полумрак, в то время как точечные светильники с хрустальными элементами дают немного больше света, чем плоские встроенные модели.
Отзывы о точечных светильниках для натяжных потолков
Точечные светильники для натяжного потолка: какие выбрать?

Точечные светильники пользуются заслуженной популярностью в качестве источников света. Они компактны, экономны, привлекательно выглядят и вписываются практически в любой интерьер.
В этой статье мы расскажем:
- как выбрать точечные светильники для натяжных потолков, чтобы организовать хорошее освещение и создать стильный интерьер?
- влияет ли тип полотна на выбор осветительных приборов?
- какие светильники подходят для натяжных потолков, а какие — нет?
- каким лампам отдать предпочтение?
- а также попробуем дать подробные ответы на эти и другие вопросы.
Особенности выбора

Прежде всего следует отметить, что устанавливать точечные светильники в качестве основных источников света рекомендуется в небольших помещениях. Такие лампы обеспечат нужный уровень освещения в малогабаритных кухнях, спальнях, детских комнатах, коридорах, ванных комнатах.
В просторных помещениях целесообразно монтировать точечные светильники в комбинации с люстрой.
Такой вариант открывает широкое поле для экспериментов. Люстру можно повесить в центре потолка, а точечные светильники расположить по периметру комнаты. Если же дизайн вашего интерьера предусматривает создание нескольких зон в одном помещении, то в этом случае люстра монтируется в одной зоне, а точечные светильники — в другой.
Обратите внимание: натяжные потолки позволяют создавать многоуровневые конструкции, оригинальность которых отлично подчеркивают точечные светильники.
Сегодня в продаже есть огромное количество точечных светильников самых разнообразных форм и размеров.
Чтобы подобрать правильный вариант, нужно учесть следующие нюансы:
- 1. При постоянном нагревании до 55-60 градусов и выше полотно натяжного потолка начинает деформироваться. Допустимая мощность ламп осветительных приборов составляет 35-40 Вт для пленочных потолков и 60 Вт — для тканевых.
- 2. Выбирая точечный светильник, обратите внимание на наличие широкого бортика у конструкции. С его помощью маскируется кольцо, которое монтируется на кромку отверстия в полотне для предотвращения разрывов и морщин.
- 3. Количество посадочных точек на натяжном потолке зависит от площади комнаты, отражательных способностей полотна, габаритов светильников и типа ламп, которые в них используются. Чтобы уровень освещения был достаточным, мы рекомендуем размещать светильники из расчета 1 точка на 1,5-2 кв.м.
- 4. Если вы хотите регулировать направление светового потока, отдайте предпочтение моделям на подвижных элементах. Их расположение может быть произвольным или соответствовать заранее составленной схеме.
- 5. Чтобы свет не попадал в межпотолочное пространство, освещая полотно изнутри, выбирайте лампы, которые имеют зеркальное напыление либо колбу черного цвета.
В интернете можно встретить советы по использованию фольги либо фольгированного пеноизола в качестве термо- и светоизоляции.

Мы советуем вам не рисковать и заменить лампы в светильниках, если они отсвечивают в межпотолочное пространство или нагреваются, на более качественные. Самодельная изоляция может привести к различным неприятным ситуациям, вплоть до необратимой порчи вашего имущества.
Важно: соблюдайте правила электробезопасности во время монтажа точечных светильников на натяжных потолках и их эксплуатации! Доверьте установку приборов освещения специалистам.
Что касается влияния типа полотна на выбор точечных светильников, то здесь все просто.
Глянцевая пленка отличается высокой отражательной способностью, учитывая которую можно создавать дополнительные эффекты. Если выбрать модель светильника с плафоном в виде многогранника, то свет от лампы будет преломляться в гранях плафона и отражаться на поверхности пленки в виде множества лучей.
Потолки с матовой поверхностью хорошо сочетаются с точечными светильниками, у которых поток света направлен вниз.
Помимо этого, на выбор приборов освещения также влияют такие факторы, как величина пространства между натяжным потолком и капитальным, ваши требования к мощности освещения и его типу (основное, дополнительное или декоративное), затраты на электроэнергию и потребность в монтаже трансформатора (а также варианты его установки — в межпотолочном пространстве или снаружи натяжного потолка).
Типы точечных светильников для натяжных потолков
По способу монтажа точечные светильники, которые подходят для натяжных потолков, бывают двух типов — врезного и накладного.
Установка светильников врезного типа выполняется в специально подготовленную прорезь полотна натяжного потолка. Чтобы края отверстия не расходились, увеличивая его, на прорезь надевается специальное фиксирующее кольцо из пластика.
Для монтажа используют светильники с малым весом и небольшими габаритами. Модель подбирается в соответствии с пожеланиями владельца касательно уровня расположения лампы — выше полотна, ниже него или на одном уровне с натяжным потолком.
Особенности монтажа светильников выше уровня полотна
Модели этого типа монтируются таким образом, чтобы создавалось впечатление, будто они «утоплены» в потолок. Такая установка имеет как преимущества, так и недостатки. К плюсам можно отнести оригинальный визуальный эффект: потолок словно светится сам по себе. Этот вариант неплохо смотрится в многоуровневых потолках.

В числе недостатков — потери света, частично уходящего в пространство между полотном и капитальным потолком, а также жесткие требования к выбору ламп. Доступ воздуха к светильнику, установленному выше уровня, затруднен. Чтобы предотвратить перегрев корпуса и оплавление пленки, необходимо использовать энергосберегающие или светодиодные лампы.
Особенности монтажа светильников ниже уровня полотна
Установленные ниже уровня полотна светильники значительно выступают за его внешний край.
Длина выступающей части зависит от дизайна модели, оптимально — в диапазоне 5-8 см.
Такой вариант монтажа обеспечивает высокий уровень освещения, поскольку свет от ламп рассеивается без потерь.

Если вы планируете установить светильники ниже уровня потолка, выбирайте модели, рассчитанные на напряжение в 220 В. В противном случае вам придется монтировать в межпотолочном пространстве трансформатор, добраться до которого потом будет довольно непросто. Если трансформатор выйдет из строя, заменить его вы сможете только демонтировав натяжной потолок в месте расположения прибора.
Монтаж светильников на одном уровне с полотном
Светильники, смонтированные вровень с полотном, лишь незначительно выступают за его край — на 1,5-2 см, максимум — на 3 см. Они обеспечивают хороший рассеянный свет и служат оригинальным элементом декора. Принцип выбора модели для монтажа этого типа тот же, что и в варианте с установкой ламп ниже уровня полотна: допустимое напряжение — 220 В, мощность ламп — 35-40 Вт.

Накладные светильники
Такие светильники конструктивно похожи на подвесные лампы. Перед их монтажом подготавливают отверстие в натяжном потолке, которое будет скрыто корпусом прибора. На капитальном потолке монтируется закладка, к которой затем будет прикреплен светильник.
Ассортимент накладных точечных светильников довольно разнообразен: производители предлагают модели с удлиненным корпусом, на поворотных элементах, также в продаже есть модели, состоящие из нескольких ламп в одном корпусе.
Эти осветительные приборы дают мощный направленный поток света. При необходимости направление светового луча можно регулировать, изменяя положение лампы, которая крепится в корпусе на вращающемся кронштейне.
Благодаря довольно крупным размерам корпуса, в светильниках этого типа можно использовать любые лампы. Расстояния от источника света до полотна вполне достаточно, чтобы исключить нагревание пленки и ее деформацию, даже если в светильнике установлена обычная лампа накаливания.
Типы ламп для точечных светильников
Разнообразие вариантов точечных светильников позволяет подобрать подходящую модель по своему вкусу и кошельку. На стоимость осветительного прибора и особенности его работы влияет тип используемого источника света. В его роли может выступать светодиодная или галогенная лампа, а также обычная лампа накаливания.
Светодиодные лампы

Срок службы ламп этого типа составляет около 5 лет при непрерывной эксплуатации.
Они потребляют меньше электроэнергии, чем другие лампы, вырабатывая приятный глазу панорамный свет без мерцания.
Современные модели точечных светильников на светодиодных лампах оборудованы встроенным стабилизатором тока, благодаря чему во время их установки не требуется дополнительно подключать трансформатор.
Галогенные лампы

Как источники света эти лампы зарекомендовали себя исключительно с хорошей стороны. Они не нагреваются, что немаловажно в случае с натяжными потолками, и дают яркий и при этом мягко рассеянный свет.
В конструкции галогенных ламп предусмотрен специальный отражатель, который уменьшает потери света, не давая световому потоку уходить вверх. Продолжительность службы галогенных ламп составляет примерно 4 000 часов.
Лампы накаливания

Основным преимуществом этих ламп является их низкая стоимость.
В то же время в качестве источников света для точечных светильников лампы накаливания не слишком популярны, так как обладают малым сроком службы (до тысячи часов) и сильно нагреваются.
Мы не рекомендуем оснащать светильники такими лампами
Оптимальная мощность такой лампы — 35-40 Вт, что уменьшает диапазон ее применения. Такой слабый свет будет уместен в малогабаритных помещениях — уборных, коридорах, кладовках, ванных комнатах. Служить основным источником света эти лампы не способны, их целесообразно использовать лишь для организации дополнительного освещения.
Продуманный выбор осветительных приборов для натяжных потолков и грамотное их расположение обеспечит вас не только хорошим освещением, но и позволит создать стильный интерьер.
Простые и лаконичные, точечные светильники прекрасно смотрятся в помещениях, отделанных под классику, в интерьерах в стилях модерн, арт-деко, хай-тек и минимализм. С их помощью можно зрительно увеличить помещение и превратить даже самую обычную комнату в уютный уголок, наполненный мягким светом.
Только вам решать, какие точечные светильники лучше выбрать на натяжной потолок, и мы надеемся, что наши советы вам обязательно пригодятся!
Как выбрать точечные потолочные светильники
Правильное освещение — залог хорошего настроения и самочувствия. Сделать его полноценным, удобным и красивым можно используя точечные светильники. Правильный подбор по размерам, характеристикам и типам ламп — вот что необходимо.
Что такое точечный светильник
Один и тот же вид светильников имеет несколько названий: точечные, встраиваемые, потолочные. Есть еще такое название — как «спот». Это тоже о точечном светильнике. Просто все эти слова описывают один и тот же тип осветительных приборов с разных сторон.

Точечные светильники — это название отражает внешний вид этого осветительного прибора и размеры освещаемого пространства
Если говорят «точечный светильник», имеют в виду что он создает узконаправленный поток света из-за чего на полу образуется освещенное пятно, а на потолке — светящаяся точка. Когда говорят «встраиваемый» светильник, имеют в виду способ монтажа — на поверхности потолка в основном остается только небольшая декоративная часть, а остальная конструкция прячется в запотолочном пространстве. Если говорят о потолочных точечных светильниках, то имеют в виду место установки, так как подобные конструкции малого размера могут монтироваться в мебель — в шкафы. Непривычное слово «спот» — это всего лишь русский вариант английского spot, одно из значений которого — пятно. То есть, это тоже о том, что освещение будет в виде набора «пятен» света.
Подводя итог можно сказать, что точечный светильник — это небольшой по размерам осветительный прибор для скрытого монтажа, освещающий небольшую часть помещения. Для организации полноценного освещения необходимо набрать некоторое количество подобных приборов и определенным образом разместить встраиваемые светильники на потолке.
Виды, конструкции, разновидности
Официальной классификации нет и можно только условно разделить общую массу этих осветительных приборов на несколько категорий по разным признакам. Такое деление в процессе подбора будет проще ориентироваться, вычленяя определенную группу. Никакой другой цели подобное разделение не преследует.

Разнообразие может повергнуть в ступор
По назначению
Это разделение можно одновременно считать и делением по конструкции, и еще — по способу монтажа. Выбор точечного светильника по этому признаку определяется типом потолка в помещении. Есть две большие группы:
- для монтажа в гипсокартонные конструкции (их же крепят и на потолок из пластиковых панелей);
- для установки в натяжные потолки.
Отличаются они конструктивно и по способу монтажа. В моделях для гипсокартона к корпусу крепятся две пружины. При монтаже светильник подключается к проводам, после чего пружины пальцами прижимаются, корпус вставляется в проделанное заранее отверстие. Пружины расходятся, фиксируя устройство на потолке.

Тсченые светильники для гипсокартона и способ их монтажа
Точечные светильники для монтажа в натяжной потолок на такой системе крепления установлены быть не могут — несущая способность пленка/ткани для этого явно недостаточна. Их крепят к основному потолку на специальный раздвижной кронштейн, при помощи которого выставляется требуемый отступ от уровня основного потолка.

Так монтируют точечные светильники под натяжной потолок
Есть модели, которые сразу комплектуются этим кронштейном, но их немного. Зато много моделей, к которым можно подобный кронштейн установить, купив его отдельно. И даже не всегда нужно использовать именно раздвижной кронштейн: его может заменить перфорированный подвес для гипсокартонна. Подобная конструкция не так проста в обращении (высоту сложнее выставить), но намного дешевле.

Кронштейн с регулируемой высотой и его заменитель
Напряжение питания и степень защиты
Второе, на что необходимо обратить внимание при выборе точечных светильников — это тип питания. В обычных помещениях проще устанавливать электрооборудование, работающее от 220 В. Для помещений с повышенной опасностью, к которым относится ванная, бассейн, баня лучше выбрать модели, которые питаются от 24 В или 12 В. При их подключении необходимо будет преобразователь (драйвер), зато никаких проблем с безопасностью.

Расшифровка цифр в классе защиты электроприборов
Следующий момент — степень защиты корпуса. Она также важна для помещений со сложными условиями труда или для эксплуатации на открытом воздухе. Класс защиты обозначается латинскими буквами IP и двумя цифрами. Первая отобразает степеньзащиты от проникновения тыердых тел, вторая — от воды. Для ванной и кухни желательно чтобы класс защиты был не ниже IP44.
Поворотные и нет
Большинство светильников не предусматривают возможность изменять направление светового потока. Есть некоторое количество моделей, которые позволяют вращать лампу в довольно большом диапазоне. Их называют поворотными.

Если говорить о цене, то поворотные модели стоят дороже — более сложная система крепления требует более точного изготовления и более дорогих материалов. Потому использовать их имеет смысл только в тех местах, где периодически надо менять степень освещенности некоторых зон.
Накладные
Не все модели точечных светильников монтируются «заподлицо» с уровнем потолка. Есть довольно большая группа накладных. В таком случае в запотолочное пространство уходит только провод, а корпус находится ниже уровня потолка. Почти во всех из них лампа закреплена стационарно, но есть и поворотные модели.

Накладные точечные светильники
Их используют как составляющую дизайна, но также они позволяют почти не опускать потолок относительно базового, что очень важно в некоторых ситуациях. Второй положительный момент — большая часть тепла от лампы расходится в пространстве. Также при монтаже под корпус можно уложить теплоизолирующую прокладку — для еще лучшей защиты от нагрева.
Количество ламп
Большая часть встраиваемых светильников рассчитана на подключение одной лампы. Но есть модели, где в одном корпусе располагается от двух до десяти ламп.

Количество ламп в одном корпусе может быть разным
Такие модели есть в разных стилях и вариантах компоновки. Их не так много, как одноламповых, но тоже довольно много. Трудности могут возникнуть если надо пять и более ламп. Вот их придется поискать, особенно если требуется какой-то специфический дизайн, причем часто они поставляются под заказ — слишком ограничен спрос.
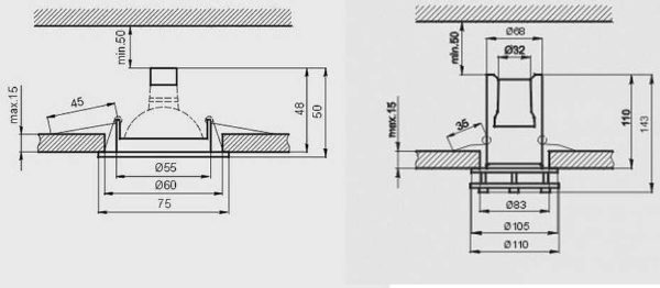
Размеры
При выборе точечных светильников обращайте внимание на их размеры. Кроме наружных, которые определяют размеры вырезаемых отверстий, надо смотреть на высоту. От этого параметра зависит на сколько придется опускать новый потолок относительно базового. От самой высокой точки светильника до базового потолка должно быть расстояние не менее 5 см.

В первом случае достаточно опустить потолок на 10 см, во втором — на 16 см
Этот зазор необходимо для эффективного отвода тепла работающих ламп. Также в запотолочном пространстве укладываются кабели, монтируются закладные пластины для крепления люстр и т.д.
Тип используемых ламп
Для освещения могут использоваться четыре типа ламп:
- накаливания;
- галогенные;
- компактные люминесцентные;
- светодиодные.
Лампы накаливания сегодня используются очень редко. В данном случае дело не столько в том, что они «тянут» много электроэнергии, хотя это — тоже немаловажный фактор, особенно если на потолке установлено десяток или более ламп. Гораздо хуже то, что они сильно греются, а нагрев плохо влияет на материал, из которого сделан потолок. Если смотреть ассортимент солидного интернет-ресурса, то точечных светильников под лампы накаливания будет едва ли с десяток, а вот по другим позициям их сотни, порой даже больше тысячи.
| Лампы накаливания | Люминесцентные и энергосберегающие | Светодиодные | Световой поток |
|---|---|---|---|
| 20 Вт | 5-7 Вт | 2-3 Вт | 250 Лм |
| 40 Вт | 10-13 Вт | 4-5 Вт | 400 Лм |
| 60 Вт | 15-16 Вт | 6-10 Вт | 700 Лм |
| 75 Вт | 18-20 Вт | 10-12 Вт | 900 Лм |
| 100 Вт | 25-30 Вт | 12-15 Вт | 1200 Лм |
| 150 Вт | 40-50 Вт | 18-20 Вт | 1800 Лм |
| 200 Вт | 60-80 Вт | 25-30Вт | 2500 Лм |
По той же причине мало используются галогенные лампы, но их ассортимент все же больше — они более экономные и за счет металлизации части корпуса могут отводить часть тепла вперед. Но, все-таки, более распространены компактные люминесцентные лампы и все более популярными становятся светодиодные. Последние так вообще и экономичные, и греются намного меньше всех других, и есть лампы с разными цоколями, разной мощности. Что еще хорошо, что светодиодные лампы могут иметь разный угол рассеивания — от 30° до 360°, что позволяет добиться разных эффектов в освещении. Также есть светодиодные точечные светильники, в которых находятся не лампы, а встроены светодиоды. Они отличаются малой толщиной, что позволяет опускать чистовой потолок на очень небольшую высоту. Так что это — действительно неплохой вариант.

Точечные светильники с вмонтированными светодиодами
Единственный минус светодиодов — они мерцают. Примерно также, как и люминесцентные лампы. Визуально это незаметно, но, говорят, это вредно для глаз. Хотя по личному опыту скажу, что при таком свете намного проще читать и глаза устают меньше (стояли раньше экономки). Как и раньше, сглаживать этот эффект можно установив в комнате одну лампу накаливания.
При выборе точечного светильника, смотрите, с лампами каких типов он работает. Обратите внимание, что есть варианты, в которых лампа уже включена в стоимость, но во многих их надо покупать отдельно.
Как выбрать точечные светильники – Москва и МО
От автора. Я прочел множество статей по выбору точечных светильников и не увидел ни одной приемлемой. Везде содержится надуманная, бесполезная, недостоверная и вредная информация. Имея опыт работы в этой сфере более 10 лет, я попытался полностью раскрыть тему и описать все тонкости выбора светильников. Потратив 10 минут, вы сможете сэкономить много сил, времени и денег при подборе освещения. Информация будет обновляться по мере изменения технических особенностей современных светильников.
С уважением, Лысенков Евгений,
руководитель интернет магазина Светим.рф
При выборе потолочных светильников в первую очередь нужно подобрать подходящие по дизайну модели. Далее делается расчет количества “точек” для помещения исходя из мощности освещения конкретной модели.
Существует ряд особенностей по выбору встраиваемых и накладных осветительных приборов. Если у вас не достаточно времени читать весь текст – обязательно прочитайте выводы. Это займет всего несколько минут, за то сэкономит существенную сумму денег.
Виды точечных светильников
Врезные и накладные. Врезные устанавливаются в подвесные или натяжные потолки. Накладные – не требуют сверления отверстия, необходим только вывод 220 В.


Поворотные и стационарные. Поворотные светильники снабжены специальным механизмом для изменения направления светового потока. Такая функция, в большинстве случаев, оказывается не нужной.

По назначению. Точечные светильники могут служить как источник основного освещения, мебельная подсветка, акцентное освещение (рабочей зоны на кухне, письменного стола, картин и т.д.), подсветка стен (дежурное освещение) и ступеней лестниц.

Преимущества и недостатки светодиодных светильников:
Светодиодными точечными светильниками принято считать модели со встроенным LED источником света. Такие приборы могут оказаться неоправданно дорогими.
| Характеристика: | Светодиодные светильники со встроенной лампой: | Точечные светильники со сменной лампой: |
|---|---|---|
| Срок службы. | Как правило выше в 2 -10 раз, т.к. светильники имеют более лучшее охлаждение. Для отвода тепла используется алюминиевый радиатор. | Низкий срок службы, т.к. отвод тепла недостаточен для долговечной работы ламы. Зачастую такие лампы выполнены из пластика, который очень плохо отводит тепло. |
| Цена | Дороже в 2 – 5 раз по сравнению со стоимостью обычного светильника и светодиодной лампы. Обусловлено дорогостоящими материалами для эффективного охлаждения. | Цена ниже. |
| Ошибки в просчетах. | Светильники имеют фиксированную мощность света. Если ошибетесь с количеством, не сможете заменить лампу на более мощную – придется искать замену светильнику, что может оказаться невозможным. | Если после установки светильников яркости света будет недостаточно – поменяйте лампы на более мощные. Мощность ламп варьируется от 3 до 10 Вт. |
| Возможности в дизайне. | Если вы выбрали конкретную модель, скорее всего придется предусмотреть определенное количество светильников, что не всегда удобно. | Количество светильников можно подстраивать под дизайн проект, за счет изменения мощности лампы. |
| Глубина врезного отверстия. | Точечные светильники со встроенной лампой тоньше, чем обычные. Это позволяет сократить потери высоты при использовании натяжных или подвесных потолков. Глубина врезки светильников 3-5 см. | Большинство точечных светильников со сменной лампой требуют расстояние между подвесным и несущим потолком от 6 до 7 см. |
| Универсальность назначения. | Модели имеют четко заданный угол рассеивания, их нельзя использовать одновременно для организации акцентного и основного освещения. | За счет установки разных ламп, есть возможность использовать одну и туже модель для акцентного и рассеянного света. Например, для освещения рабочей зоны можно установить лампы со отражателем – свет будет сконцентрирован в нужном месте. Для основного света можно использовать лампы с матовым стеклом, которые дают равномерный свет. |
| Регулировка уровня света (работа с диммером). | Необходимо приобретать дорогостоящий диммер тока. А если светильников несколько – понадобится отдельный блок питания. Нужно предусмотреть место для его установки. Схема подключения сложнее, чем у обычных моделей. | Простая реализация, поключение стандартное. Нужно купить специальный диммер и специальные лампы. |
Экономить на покупке светодиодных светильников со встроенной лампой крайне не рекомендуется.
Ситуации, с которыми к нам обращались клиенты:
- Куплены не дорогие светильники. Через 7 месяцев один из 4 светильников на кухне ломается. При попытке найти нужную модель выяснилось, что она снята с производства. Есть похожие светильники, но диаметр врезного отверстия больше. В итоге, клиент вынужден расширять отверстия в гипсокартонном потолке и менять сразу все светильники. Если бы потолок был натяжным – монтажные отверстия расширить не получилось бы. Выход только один – приобретать другую модель, которая совершенно не подходила по дизайну.
- Клиент приобрел у нас влагозащищенный светильник со встроенными светодиодами, который был установлен в бане. Т.к. LED элементы не переносят высоких температур, через 3 месяца активного использования, яркость светильника уменьшилась на 40%. Пришлось покупать более дешевый светильник с лампами накаливания. Старый светильник, стоимостью более 8000 руб. был утилизирован.
Вывод. Если вы не уверены в выборе, лучше купить точечные светильники со сменной светодиодной лампой. Это более универсальное решение, которое в перспективе способно сэкономить существенную сумму!
Использование диммера может испортить зрение!
Современные потолочные светильники можно без проблем диммировать, т.е. устанавливать выключатель с функцией плавной регулировки света. Такой эффект достигается установкой диммера с совместимой светодиодной лампой.
Если поставить стандартный диммер, предназначенный для работы с галогенными лампами вы получите много негативных эффектов:
- Лампы начинают работать сразу с 30% своей мощности, независимо от вашего желания.
- Суть понижения яркости состоит в том, что светодиодные кристаллы включаются и выключаются с определенной частотой, которая практически не заметна глазу. Чем тусклее свет, тем частота меньше. Стандартный диммер, даже на максимальной яркости, поддерживает недопустимо низкую частоту. Такой эффект сильно портит зрение. Долго находится в помещение с таким освещением категорически не рекомендуется!
- Из-за мерцания света находиться в помещении не только вредно, но и не комфортно с первых секунд. Глаза быстро устают, ухудшается зрение, провоцируется головная боль.
Для точечных светильников со светодиодными лампами необходимо приобретать специальный светорегулятор с увеличенной частотой, который убирает мерцание. Такое освещение является достаточно комфортным и безвредным.

Потолочные светильники со встроенной лампой димируются посредствам специального регулятора тока. Если светильников несколько, возникает необходимость приобретения общего блока питания, т.к. диммер устанавливается ПОСЛЕ блока. Такое решение более сложное и дорогостоящее.
Вывод. Для организации регулировки уровня яркости точечных светильников необходим, как минимум, специальный диммер. Это поможет сохранить здоровье, деньги и комфорт.
Какое свечение точечных светильников выбрать
На сегодняшний день можно найти лампы с температурой свечения от 2700 до 8500 Кельвин. Чем ниже эта цифра, тем ближе свечение будет к стандартным лампам накаливания. Для жилых помещений используют 2 диапазона температуры свечения:
- 2700 – 3200 К – теплый, немного желтоватый цвет. К такому освещению мы наиболее привычны. Если сомневаетесь какую температуру выбрать – придерживайтесь этого диапазона
- 3900 – 4300 К – белый свет (не путать с холодным) без синего оттенка. Такая цветовая температура ближе к натуральному солнечному свету. Цвета предметов, напольного покрытия, обоев будут смотреться более естественно. К такому освещение нужно привыкнуть, для адаптации обычно требуется не более 3х дней.

Светильники со свечением от 4300 до 8500 будут светить с синим оттенком. Свет кажется не приятным. Не используется в домашних условиях. Светильники с температурой свечения выше 7000 К – редкость.
Вывод. Если не уверены – выбирайте светильники теплого свечения. Никогда не покупайте светильники с температурой свечения более 4300 Кельвин.
Как рассчитать необходимое количество точечных светильников.
Такие расчеты довольно сложны и зависят от эффективности LED чипов, типа помещения, высоты потолков, угла рассеивания источника света и ваших предпочтений.
- Там, где нужно организовать яркое освещение, при котором будет комфортно читать, рассчитывайте 5 Ватт на 1 кв. метр.
- Для помещений, где яркость света не критична (прихожая, прачечная, кладовая), рассчитывайте 3 – 3,5 Вт. на кв. метр.

Учитывайте, что много света никогда не бывает! Например, если вы установите точечные светильники в комнате из расчета 7 Вт. на кв. метр – будет довольно комфортно. При использовании раздельного выключателя можно смело рассчитывать до 10 Вт. на кв. метр! В солнечный летний день на каждый кв. метр выходит до 100 000 Люксов. При освещении 1 кв. метра светильником мощностью 10 Вт, ваше освещение будет максимум 7 000 Люксов.
Вывод. Используйте простые формулы для расчета количества светильников. Нас они еще ни разу не подводили!
Какие точечные светильники использовать для акцентного света, а какие для основного освещения.
Чтобы организовать направленное освещение, например, для рабочей зоны на кухне, необходимы источники света с отражателем. Светодиодные лампы с отражателем оборудуются LED матрицей по технологии COB. Если не усложнять, COB – это один большой светодиод. Такие точечные светильники будут светить с углом рассеивания 35-40 градусов. В итоге, получится акцентное освещение для письменного стола, картины, настенной фотогалереи и т.д.

Для основного освещения лучше использовать рассеянный свет. В этом случае в комнате будет меньше теней и глаза будут меньше напрягаться, что повысит общий комфорт. Чтобы угол рассевания был 100-120 градусов необходимо использовать точечные светильники с матовыми лампами. Такие лампы изготовлены на основе светодиодных модулей SMD. SMD – в светильнике или лампе много маленьких светодиодов. Большинство светодиодных моделей светильников и ламп выполнены на основе этой технологии.


Вывод. Для акцентного освещения просите продавцов показать светильники со светодиодами COB. Для рассеянного освещения понадобятся светодиоды SMD.
Вредные советы и мифы на других сайтах.
“Ореол на глянцевых потолках лучше.” Это не так. Лучше всего ореол будет выражаться на матовых потолках.
“Светодиодные лампы и светильники производятся в России, Италии и т.д.” Практически все LED светильники и лампы производятся в Китае. Исключение – светильники Paulmann, источники света для которых закупаются в Китае. Уровень качества при этом может быть очень высоким и зависит от производителя. В интернет магазине Светим.рф все не качественные модели сняты с продажи!
“В ванную можно устанавливать только влагозащищенные светильники.” В ванную комнату можно устанавливать абсолютно любые светильники со светодиодной лампочкой!
Такие утверждения выдают копирайтеры, которые не разбираются в теме освещения. Их задача написать текст согласно техническому заданию заказчика, где обозначено нужное количество символов и слова, которые нужно употребить.
Очень много утверждений, которые вам навредят! Например: “для равномерного освещения используйте шахматный порядок расположения светильников”, “светодиодные источники света не любят переменное напряжение”, “точечные светильники ослепляют”, “компактные светильники дороже” и много другое.
Я крайне не рекомендую читать статьи в интернете о том, как выбрать светильники. Честно пытался найти хотя бы 1 хорошую статью или видео – не смог. Более того, абсолютно везде я встретил вредные и надуманные сведения. Лучше уточните у продавцов – получите намного более достоверную информацию!
Пример одного из топовых видео с Youtube.
Ничего полезного я не услышал:
- “Самые распространенные виды светильников – это светильники MR16 и GX53.” Строго говоря, MR16 и GX53 это не светильники, а типы ламп. Можно говорить на языке автора, тогда пропущен третий вид – G9!
- “Самое главное в светильниках MR16 – компактный размер. Они подходят для маленьких комнат.” Это не так! Такие светильники устанавливаются и в большие помещения. Компактность их заключается в том, что диаметр светильника, по сравнению с моделями GX53, меньше на 1 – 2 см. Даже на низких потолках такие модели не выглядят большими. И это касается далеко не всех моделей, поэтому утверждение весьма спорное. За то глубина врезки светильников MR16, как правило, больше на 3-4 см. Для таких моделей потолки необходимо опускать больше, чем для светильников GX53
- “У светодиодных ламп не возникает потерь в яркости при отражении света, т.к. они святят строго вниз.” Согласен. За то намного больше потерь возникает при свете через декоративную матовую часть.
- “Срок службы светодиодных ламп в 25-30 раз больше, чем у галогенных”. Как правило, срок службы больше в 2 – 3 раза. Проверено на практике тысячами клиентов!
- “Рекомендуемая мощность освещения светильников MR16 – 1.5 кв. метра, для светильников GX53 – 2-3 кв. метра.” Такой подход к расчетам света – лотерея, может и повезет.. Как написано выше, количество светильников зависит от мощности установленных ламп, типа помещения, высоты потолков, марки LED чипов и ваших предпочтений.
Вывод. Можно потерять много денег, нервов и времени, черпая информацию со статейных сайтов и видео. Обращайтесь к профильным профессионалам. В крайнем случае читайте форумы, обращая внимание на дату публикации сообщения.
Внимательного читателя ожидает небольшой подарок. Купон на скидку 10%: PCNA4Y21XA
Если материал оказался полезным, обязательно поделись им в соц. сетях!





