Журнальный столик своими руками в гостиную: выбор материала и полезные советы
- Выбор материала для журнального столика из дерева
- Воплощая идею в предмет мебели: полезные советы
- Делаем журнальный столик
- Ножки для столика своими руками
Люди прибегают к изготовлению мебели для дома не всегда по причине нехватки денег на ее покупку или из-за отсутствия в магазинах либо торговых центрах требуемых предметов мебели. Некоторые умельцы и мастера берут в руки инструменты, так как получают удовольствие от работы с ними и от создания чего-то оригинального в ходе трудового процесса. На вопрос, как сделать журнальный столик своими руками, они знают ответ. Кстати, применяя в работе разные материалы, они получают порой необычные результаты. Дизайн их, как правило, зависит от фантазии и умений мастера.

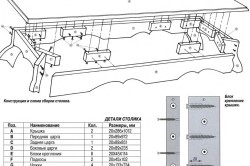
Чертеж журнального столика.
Постараемся подробно рассказать, как сделать журнальный столик своими руками.
Сделать его просто. Это сможет каждый человек, в том числе и тот, кто не является столяром и плотником по профессии. Для создания журнального столика нужны инструменты и материал, а также богатая фантазия и много терпения.
Выбор материала для журнального столика из дерева
Появилась у вас идея создания предмета мебели для вашей гостиной — хорошо. Желательно, чтобы в дизайне помещения новый предмет мебели нашел свое применение. Однако нужно до начала работ позаботиться о материале. Для создания мебели мастера чаще всего применяют древесину, а также брус, клееные панели и фанеру либо ДСП. Приступая к работе с материалом, для начала узнайте характерные особенности его обработки.
Вернуться к оглавлению
Воплощая идею в предмет мебели: полезные советы
У каждого материала имеются свои достоинства, но есть и недостатки. Вот их то надо знать еще до начала всех работ. Например, фанера — это вполне прочный материал, но его фактура не может похвастаться красотой.

Схема деревянного круглого журнального столика.
Далее, ДСП — дешевый и простой в обработке материал; ламинат позволяет создать имитацию под древесину ценной породы. Рисунок фактуры и дизайн их многообразен по выбору. Такой материал крайне неустойчив к влажности. Когда на незаламинированные части попадает вода либо другая жидкость, то ДСП разбухает и теряет привлекательный внешний вид. Важно помнить, что при создании ламинированных плит используют клей, его испарения при высыхании вредны для здоровья людей.
Цельный древесный массив стоит довольно дорого. Некоторые ценные породы обработке поддаются сложно, а также они могут нанести серьезный вред здоровью. К примеру, тис ягодный, который относится к породам красной древесины, является ядовитым. Серьезным недостатком при работе может стать предрасположенность цельного массива древесины к скручиванию либо растрескиванию в ходе его высыхания. Из-за этого портится его внешний вид, да и надежность такого журнального столика будет не лучшей.
В интернете есть фотографии журнальных столиков, которые мастера сделали сами. Дизайн их очень разнообразен. Стоит обратить внимание, что для изготовления столешницы они используют распространенный материал — деревянный щит из клееных брусков.
По такой технологии древесину не коробит, и, высыхая, она не растрескивается. По сравнению с простой древесиной, прочность у такого материала выше, цена дешевле, а материал экологичен.
Вернуться к оглавлению
Делаем журнальный столик

Схема сборки журнального столика.
Любой небольшой журнальный столик обладает стандартной конструкцией. Составные части журнального столика: столешница и ножки. По форме и способу крепления столешница и ножки могут быть различными и зависят только от фантазии самого мастера.
До начала обработки материала для столика нужно решить, какой будет форма столешницы. Это может быть прямоугольная или овальная заготовка. Здесь потребуются линейки или столярные лекала и электролобзик. По ним будут нарисованы контуры на заготовке, а затем при помощи электролобзика выпилена будущая столешница.
Чтобы исключить наличие сколов при выпиливании, необходимо взять пилки для ламината. В том случае, если столешница изготовлена из цельного массива древесины либо клееной древесной плиты, кромку нужно обработать фрезером. Это придаст ей красивый рельеф. После чего кромки нужно обработать мелкой наждачной бумагой. Поверхность столешницы рекомендуется покрыть морилкой и лаком для мебели.
Если вы работаете с ДСП, то после выпиливания вам нужно обработать края шлифмашинкой, чтобы убрать все неровности. Строительным феном можно приклеить кромочную ленту для декора.
Вернуться к оглавлению
Ножки для столика своими руками
Если обратить внимание на журнальные столики на фотографиях, выложенных мастерами, то можно заметить, что ножки можно сделать буквально из чего угодно. Например, склеить между собой несколько дощечек разной формы (квадратной, круглой и пр.). Установить и закрепить ножки к самой столешнице можно на саморезы либо на столярный клей.
В работе решающим является фантазия и желание мастера. Ножки могут быть изготовлены самостоятельно либо использованы уже готовые модели из металла, приобретенные в магазине. Дизайн их может быть любой.
Перед прикручиванием ножек к столешнице необходимо взять сверло меньшего диаметра, по сравнению с диаметром самореза, и просверлить отверстия в местах крепления. Как только ножки будут прикручены к столику, тогда же уже можно будет перенести его в гостиную, где он будет радовать ваш глаз. Хозяин журнального столика своими руками, который он сделал, через него показывает свою индивидуальность и свой творческий потенциал.
Журнальный столик в гостиную: идеи, рекомендации по его размещению в интерьере, фото

Из этой статьи вы узнаете:
Из каких материалов делают журнальные столики в гостиную
Каким может быть стиль журнального столика в интерьере гостиной
Какой формы выбрать журнальный столик в гостиную
Как можно создать журнальный столик в гостиную своими руками
Многие не представляют гостиную в своем доме без такого предмета мебели, как журнальный столик, вокруг которого можно устроить уютное чаепитие. Изящный и подобранный к стилю комнаты, он будет радовать глаз и вам, и гостям. Если правильно выбрать дизайн, стол придаст неповторимость и эксклюзивность вашему дому. Купить готовый или сделать на заказ журнальный столик в гостиную – выбор и фантазия в этом деле не имеют границ. В нашей статье вы найдете полезную информацию о том, на столиках из каких материалов стоит остановить свой выбор. Вам также будет предложен фото-каталог журнальных столиков для гостиной на любой вкус.
Из какого материала выбрать журнальный столик в гостиную
- Дерево.
Широчайший выбор журнальных столиков можно найти в магазинах. Изготовители используют всевозможные материалы, но большинство, конечно, производят из дерева. Это не всегда удобно, так как ценник на деревянные изделия достаточно высок, а само дерево нуждается в бережном обращении и постоянном уходе.
Альтернатива, конечно же, тоже есть: работа может быть выполнена из таких материалов, как МДФ и ДСП. Но надо учитывать, что использование предметов из такого сырья в местах с повышенной влажностью приведет к деформации и ухудшению их качества. Важно помнить, что столики, покрытые лаком, хоть и радуют глаз, но требуют заботы и аккуратного обращения.
Самые популярные статьи по выбору мебели для дома:
Модели, сделанные из дерева, экологичны и представлены в магазинах огромным выбором оттенков и фактур. Правильно подобранные столики многофункциональны и подойдут под интерьер любого помещения – от кухни до спальни.
Журнальные столики в гостиную, сделанные из стекла, популярны среди минималистов из-за отличной сочетаемости с предметами интерьера в стиле хай-тэк. Они смотрятся стильно и не скрадывают пространство. Стекло обычно используется только для изготовления столешниц, а для ножек – дерево и металл. Стеклянные предметы требуют осторожного обращения и аккуратности для предотвращения царапин и сколов, поэтому рекомендовано отдавать предпочтение более долговечному закаленному стеклу.
Кованые столики из металла помогают, например, создать стиль прованс в интерьере. Они отличаются прочностью и долговечностью, но также дороги и тяжелы, что делает их достаточно неудобными в обращении.
Журнальный столик в интерьере гостиной
Стильный журнальный столик служит завершающим штрихом в любом интерьере. Для создания уюта его можно обставить элементами или аксессуарами, похожими по стилю на окружающие предметы мебели. Функциональность данных предметов обстановки будет зависеть уже от ваших предпочтений, но чаще всего их используют вместо подставки для всевозможных предметов, находящихся в гостиной. Выбор столиков сейчас неограничен, и если покупать готовое изделие, то все, что нужно учитывать, – это площадь комнаты и ее оформление.
Журнальный столик в гостиную в классическом стиле (+ фото)
Любители традиционного интерьера ценят мебель, выполненную из древесины. Изогнутые ножки и другие кованые элементы служат декоративным компонентом в таких изделиях. Массив для типичного деревянного столика создается либо прямоугольной, либо овальной формы с опорами, выполненными в винтажном стиле, со столешницей и полками под ней. Элементы мебели из дерева отлично смотрятся как в окружении простых, так и изысканных деталей интерьера.
Различные методы используются для украшения классических предметов мебели. Для этого древесину часто инкрустируют камнями и металлами, добавляют резьбу и декупаж, покрывают лаком или воском, придают состаренный вид. Можно встретить оригинальные журнальные столики для гостиной в форме капли, подсвечника или кленового листа, выстроенные одним блоком или несколькими, которые смотрятся стильно и украшают помещение. Словом, если вы хотите изящный и впечатляющий журнальный столик в гостиную, классика всегда придет вам на помощь!
Современные журнальные столики для гостиной
Они изготавливаются из разнообразных материалов, и акцент делается на стиль и технологичность. Простой дизайн и минимализм в декоре придают таким предметам современность и актуальность. Рассматриваются неожиданные геометрические формы и конфигурации, которые привнесут изюминку в общий стиль.
Стеклянные журнальные столики в гостиную в стиле хай-тек универсальны, и их легко сочетать с другой мебелью. Для большей стилизации используются столешницы и ножки интересных форм, сделанные из различных материалов, а для многих видов дизайна требуется глянцевое, тонированное или темное стекло. Нередко для практичности и большей вместительности используются двойные столешницы.
Стеклу можно придать разнообразные формы и использовать его для создания стильного столика, не нуждающегося в лишних деталях. Но в то же время сочетание стеклянных столешниц с деревом и резными деталями придаст изделию изысканность, утонченность и своеобразную невесомость.
Журнальные столики в стиле кантри
Помещения в стиле кантри отличаются простотой, естественностью и близостью к природе. Нехитрая меблировка, а также плетеные и деревянные элементы без тщательной отделки впишутся в такой дизайн как нельзя кстати. Столик в данном стиле может быть представлен необработанным деревянным массивом, который станет отличной частью интерьера. Декор может быть выбран на ваше усмотрение, но надо помнить про природную тематику.
Журнальные столики в стиле прованс
Если ваш зал оформлен в средиземноморском стиле прованс, то он, скорее всего, утопает в светлых оттенках и лучах солнца, а это значит, что можно смело фантазировать рядом с таким журнальным столиком. Чтобы гармонировать со стилем, он, вероятно, будет сделан из дерева или металла, покрашен в спокойный цвет и «усыпан» мастерски изготовленными деталями.
Журнальные столики в стиле лофт
Как правило, при упоминании стиля лофт мы представляем просторное помещение, в котором стены нейтрального цвета либо с открытой кирпичной кладкой, причем коммуникации выведены наружу. Такой стиль предполагает предельно простые элементы меблировки, поэтому стекло и металл считаются наиболее подходящими материалами для такого дизайна.
Желательно, чтобы выбранный столик не выделялся из интерьера своей высотой, а, наоборот, гармонировал с остальной меблировкой зала или гостиной. Он должен быть функциональным, с достаточно широкой столешницей, за которой можно посидеть с чашкой кофе и оставить ее там при необходимости.
Если вы хотите себе хороший журнальный столик в гостиную, купить его сегодня не составит труда. В магазин желательно прийти, предварительно измерив площадь, которая будет отведена под него.
Журнальный столик в интерьере гостиной: фото
Какой формы выбрать журнальный столик в гостиную
- Круглые журнальные столики для гостиной.
Очень часто удобство при эксплуатации играет решающую роль в выборе мебели. Поэтому для малогабаритных квартир предпочтение может отдаваться круглым столикам, так как благодаря обтекаемой форме они экономят пространство. Любому интерьеру подойдут небольшие изящные модели на одной ножке. Также круглые изделия удобны в использовании, если вокруг них расставлены диваны углового типа.
- Овальный журнальный столик в гостиную.
Массивное изделие визуально уменьшит небольшое помещение, поэтому необходимо подобрать модель, которая бы идеально вписывалась в гостиную и по размеру, и по стилю. Столик овальной формы удобен тем, что его можно установить вдоль любого длинного предмета мебели, а рядом разместить кресла или стулья. Существуют классические модели как овальных, так и круглых столов, но всегда имеются дополнения в виде различных элементов для повышения их функциональности.
- Квадратный журнальный столик в гостиную.
Квадратный столик легко установить в зале любого размера, и он сразу станет центральным объектом в дизайне. Классическая квадратная модель – это столешница с четырьмя ножками, которую легко дополнить полочками для увеличения функциональности. Темное стекло актуально и хорошо сочетается с меблировкой в стиле хай-тек. Мобильные изделия на колесиках пользуются популярностью среди минималистов, которые также предпочтут невысокие и строгие модели.
- Журнально-обеденные столы-трансформеры для гостиной.
Изделия трансформеры удобны тем, что в зависимости от обстоятельств их габариты легко изменить. Например, для таких событий, как приход гостей или празднование торжества, можно превратить журнальный столик в полноразмерную модель. Умный механизм даже поможет отрегулировать высоту изделия путем поднятия столешницы. Складные столы занимают минимум места и экономят пространство в небольших помещениях.
Некоторые изделия имеют встроенные полки, которые открываются только при их развороте. От глаз они скрыты под главной столешницей и не занимают много места.
Стильный столик станет центром и зоной комфорта в вашей гостиной и будет радовать вас и ваших гостей, заглянувших на чашку чая. Он придаст характер помещению, украсит интерьер и создаст уют. Стильно и гармонично подобранные аксессуары будут сочетаться и придавать гостиной особую атмосферу.
Идеи для создания журнального столика в гостиную своими руками
Если вы творческий и талантливый человек, и вам интересно создание эксклюзивных и уникальных предметов интерьера, то, возможно, вам помогут наши идеи по созданию журнальных столиков.
Если разрезать обычную винную бочку вдоль и поставить на небольшие ножки, то можно получить отличный столик. Закаленное стекло станет столешницей, а пустоту внутри можно заполнить декоративными элементами по вашему желанию. В качестве столешницы можно использовать и сруб дерева, если его положить на предварительно срезанный верх бочки.
- Швейная машинка.
Старинная нерабочая швейная машинка тоже может стать отличным столиком. Имеющиеся ножки надо привести в порядок и тщательно покрасить, а швейный аппарат накрыть срезом закаленного стекла, которое будет служить столешницей.
В наши дни мало кто использует старые сундуки по назначению. Однако отреставрированному в винтажном стиле и залакированному изделию можно подарить новую жизнь и сделать его оригинальным аксессуаром в гостиной.
Если добавить ножки старинному чемодану из хорошей кожи, то его можно превратить в отличный журнальный столик в стиле ретро.
Если покрыть неровный сруб дерева лаком и превратить его в основание столика, то каждый раз за чашечкой кофе можно будет любоваться многолетним рисунком колец. Чем интереснее форма среза и чем больше неровностей, тем оригинальнее будет смотреться новый журнальный столик в вашей гостиной.
Когда дело касается выбора элемента меблировки, то начальная стадия ремонта – идеальное время для творчества. Когда же интерьер уже завершен и остается только выбрать журнальный столик, гармонично подходящий по стилю, то с этой задачей можно легко справиться, обратившись в специализированный магазин или самостоятельно создав эксклюзивное изделие.
Журнальный столик в гостиную: фото эксклюзивных вариантов







Журнальный столик в гостиную на любой вкус и кошелек вы можете заказать в нашей компании «Формула мебели».
Что такое «Формула Мебели»? Надежность. Качество. Красота. Универсальность. Невысокие цены. Гарантия. Быстрая доставка. Подъем и сборка. Их сумма равна удачной покупке.
Это формула того, как сделать мебель доступной каждому. С «Формулой Мебели» можно обставить квартиру по доступной цене, но без потери качества, быстро и с хорошим сервисом.
Наша цель – дать возможность людям покупать хорошую мебель по минимальным ценам, чтобы в любой ситуации каждый мог позволить купить себе новый диван, прихожую, кухню и все, что он захочет, все, что нужно для создания комфорта в его квартире. Для этого не нужно сначала собирать деньги, можно просто купить сейчас, а при необходимости оформить рассрочку без переплат. И это у нас получается.
Мы создали большой, прочный «воздушный шар из лоскутов счастья» наших покупателей. На этом «шаре» мы приносим такую возможность в новые места, в новые города, в новые районы, чтобы все люди смогли воспользоваться нашим предложением.
Сейчас у нас открыто уже 28 салонов в 15 городах Пермского края, и их будет еще больше, потому что людям нравится наша мебель и то, как мы ее продаем.
Какой выбрать стол для гостиной: 5 советов и подсказок
Стол является важнейшим атрибутом гостиной, который делает ее функциональной и удобной Стол – один из самых главных атрибутов мебели с огромным количеством функций. Он дополняет и оживляет дизайн любого помещения. Выбирая стол для гостиной, необходимо учесть тот факт, что он является центром, который собирает вокруг себя гостей, родных и близких, поэтому он должен быть максимально комфортным и уютным. Нужно учесть габариты помещения, стиль интерьера и другие дизайнерские хитрости, чтобы точно не ошибиться с выбором.
Столы и тумбы для гостиной
Что может повлиять на выбор стола? Его предназначение. За ним можно принимать пищу, собраться, отмечая торжество или важный день. За столом можно сыграть в настольные игры или поработать за компьютером.
Важные факторы при покупке стола:
Стол и стулья должны быть выполнены в едином стиле
Стол должен быть удобным для сидения, стул – свободно выдвигаться. На одного человека должно приходиться как минимум 60 см длины стола, если у стульев будут отсутствовать подлокотники.
Конструкция стола-подоконника может быть интересным объектом, сохраняющим метраж комнаты и выглядящим крайне необычно на фоне других столов. Модернизировать сам подоконник можно без больших затрат и даже самостоятельно. Тумба может заменять шкаф-купе или комод, служить подставкой для каких-либо предметов.
По типу конструкции тумбы бывают:
Подавляющее большинство тумб для зала – стационарные. Если необходимо часто передвигать мебель, стоит остановиться на выборе мобильной тумбы на колесиках. Стационарная же модель может быть на ножках и без них.
Журнальный столик в гостиную
Подавляющее количество гостиных комнат снабжено диваном и телевизором. Нельзя не согласиться, что такой небольшой и удобный предмет интерьера добавит в ежедневную жизнь чуть больше теплоты и комфорта.
Журнальный столик отлично вписывается в любой интерьер гостиной, улучшая его эстетические качества
Преимущества журнального столика:
Журнальный столик может использоваться для различных целей. На нем можно хранить газеты, поставить вазу с цветами и статуэтки, кофейные чашки и различные нужные мелочи. Столик с красивым чайным сервизом будет смотреться особенно утонченно.
Гостиная с диваном и столом: обеденный вариант
В том случае, если гостиная поделена на зоны, нужно выбрать качественный стол. Можно подобрать раздвижную обеденную модель, стол из массива дерева или другой вариант. Одна зона будет для принятия пищи, другая – для встречи гостей.
Деревянные стулья с изящными изгибами отлично дополняют стол, расположенный в классической гостиной
Необходимо следовать советам, чтобы не ошибиться с выбором:
Красивый угловой диван можно использовать для зонирования. Мягкая мебель добавит уюта и практичности, однако не нужно ставить его около стола и рабочей зоны – он может легко испачкаться. Барная стойка тоже может разделять пространство. Она может использоваться вместо обеденного стола.
Можно сделать обеденный стол своими руками, изготовление обойдется гораздо дешевле, чем приобретение готового в магазине. Он может быть деревянный или из ДСП, если руки растут из нужного места, результат в любом случае будет хорошим.
Зал со столом-трансформером
Стол-трансформер различается не только конструкцией, но и внешним видом. За несколько секунд такой стол становится полноценным обеденным вариантом, на котором можно разложить столовые приборы и начать трапезу. К тому же диваны и кресла отлично смотрятся рядом со столами-трансформерами.
Стол-трансформер прекрасно подходит для гостиной, сделанной в стиле хай-тек
Среди них выделяются:
Консольные столы-трансформеры играют особую роль в квартире. Они бывают пристенными, навесными и отдельно стоящими. Консоль разнообразна по материалам, у каждой свой дизайн и размер.
Универсальные столы-книжки для гостиной
Стол-книжка назван так потому, что легко открывается и закрывается подобно книге. Его цена намного ниже, чем у обеденного стола, а функциональность гораздо больше.
Среди преимуществ столов-книжек следует отметить возможность складываться до минимальных размеров, экономя при этом место в гостиной
Их преимущества очевидны:
Бывают столы-книжки со встроенным мини-баром, книжки полу-тумбы и столы полу-книжки в виде красивых письменных столов с тумбой, в которую можно положить письменные принадлежности.
Выбираем стол для гостиной (видео)
Стол для гостиной – отличное решение для любой квартиры. Обеденные группы помогают грамотно распределить пространство, совместив столовую и зал и освободив кухню. Журнальный столик привносит некий шарм. Туалетный – может служить уголком красоты. Существуют элитные и классические модели, правильная расстановка которых поспособствует приятному нахождению в доме. Таким образом, столы – это не только необходимые и повседневные вещи, это полезные украшения квартир.
Как выбрать журнальный столик

Журнальный столик — это первое, что приходит на ум сразу же после дивана, когда мы планируем покупать новую мебель для гостиной. И поскольку этот предмет интерьера столь вездесущ, то современный рынок предлагает нам огромное разнообразие на выбор. Следующие факторы могут значительно облегчить вам задачу приобретения журнального столика.
Журнальный столик для гостиной или общей семейной комнаты?
Журнальный столик в комнате, где действительно довольно часто принимают гостей, выполняет скорее декоративную роль, чем функциональную, и не обязательно должен отличаться высокой надежностью.

Стеклянный журнальный столик с мраморной основой Ribbon от Bonaldo
Подумайте о своих привычках (например, класть ноги на стол), прошлом опыте (пятна от разлитых жидкостей, забившиеся крошками стыки, синяки от удара об острый угол ) и непременно имейте все это в виду при покупке журнального столика.

Журнальный столик English Mood от Minacciolo
Журнальный столик в качестве центрального элемента комнаты
Во многих проектах по дизайну интерьера журнальный столик занимает центральное место в помещении. При этом в комнате может быть только один центральный элемент — акцент, который первым обращает на себя внимание посетителей и координирует движение по комнате.
Если вы покупаете журнальный столик в дополнение к уже существующей обстановке, то обратите внимание, есть ли у вас уже такой центральный элемент? Это может быть яркий ковер, диван или что-то другое. В таком случае журнальный столик не сможет играть главную роль в комнате и не должен иметь выделяющийся дизайн.

Простой журнальный столик Drink от Santarossa
- стиль;
- размер;
- материал;
- покрытие и цвет поверхности.

Журнальный столик Saar от Besana

Журнальный столик Dubai от Tonin
Какой материал выбрать?
Посетив несколько мебельных магазинов, можно осознать, что предоставленный нам выбор журнальных столиков действительно ошеломляет разнообразием материалов.
Наиболее очевидным материалом, который приходит на ум, является древесина. Но сегодня даже с ней определиться нелегко, ведь для производства мебели её используют не только в натуральном твердом виде, но и как МДФ, ДСП Проще всего здесь сориентироваться так:
- если требования к качеству высокие (особенно, если дома есть маленькие дети), то выбирайте настоящее дерево;
- если же бюджет ограничен, и столик предположительно не будет подвергаться грубому воздействию, — то искусственные панели.

Деревянные журнальные столики Diamonds от Tonon

Журнальный столик из дерева и стекла Time от Tonon

Журнальный столик Osowa от Tonin

Журнальный столик Sella от Tonon

Журнальный столик из древесины ореха Mosaico от Besana

Журнальный столик с искусственной крокодиловой кожей
Формы журнальных столиков
Журнальные столики сегодня доступны в любых формах, которые только приходят в голову. Поскольку форма комнаты может играть главную роль в выборе журнального столика, мы рассмотрим здесь лишь несколько конфигураций, которые являются наиболее удобными в использовании.
Узкий прямоугольный или овальный журнальный столик хорошо работает в небольших помещениях.

Прямоугольный журнальный столик Episodes от Tonon

Овальный журнальный столик от Bontempi

Круглый журнальный столик Gino Carollo от Bonaldo

Круглый журнальный столик Take Away от Tonon
Дополнительные функции, которые может иметь журнальный столик
Уровень функциональности идеально подходящего для вас журнального столика зависит от того, как именно вы будете его использовать. Большинство столиков имеют одну плоскую поверхность, в то время как существует множество других, предлагающих дополнительные возможности.
Ищите журнальный столик с полками, выдвижными ящиками или отсеками, если нуждаетесь в дополнительных местах для хранения пультов, книг, очков и др. принадлежностей.

Журнальный столик Lucky от Santarossa

Журнальный столик типа «оттоманка»

Журнальный столик Ashley Furniture

Журнальный столик с выдвижными стульями

Журнальный столик Pebble от Bonaldo
И не забудьте о главном!
Сосредоточившись на выборе подходящего стиля и качества журнального столика, не забудьте отметить себе, какими должны быть его размеры. Выбирайте журнальный столик, общая длина которого будет составлять не более чем 2/3 длины вашего дивана. Кроме того, важно, чтобы вокруг кофейного столика оставалось достаточно места для прохода и для ног. Так, расстояние между ним и диваном должно быть не меньше, чем 1,5 длины стопы (в среднем 45 см).
Наконец, последнее и самое важное — ваш журнальный столик должен быть такой же высоты, как и сиденья на вашем диване. Ниже можно, но не выше!
Альтернатива журнальному столику: 7 вариантов
Главная / Советы и идеи / Гид по выбору / Альтернатива журнальному столику: 7 вариантов
Саша Морро Thu, 08 Aug 2019 14:00:36 +0300
Трудно представить гостиную без журнального столика, но что делать, если традиционные модели приелись или загромождают маленькую комнату? Выход есть, и он — в других вариантах, коих множество. Оттоманка, барабан, сундук, табурет, ящик и даже книги — заменить классический журнальный столик можно почти чем угодно, было бы желание. Если же вы не знаете, с чего начать, вам поможет наша сегодняшняя подборка самых популярных вариантов. Кстати, некоторые из них ещё и очень практичные.


Самая популярная альтернатива традиционному журнальному столику — чемодан. Причина проста: это не только красиво, но и удобно, если у вас маленькая квартира, поскольку внутри можно организовать дополнительное место для хранения. Особенно удачно смотрятся настоящие винтажные модели, найти которые нетрудно на дачах, антресолях квартир старшего поколения или на барахолках. Ещё одна полезная идея: вместо одного большого чемодана можно взять два компактных и поставить их друг на друга.


Пуфы хороши по нескольким причинам: во-первых, отсутствие острых углов делает их безопасными для непоседливых детей, во-вторых, их легко передвигать и убирать при необходимости. А если у вас дома собралось много гостей, под рукой сразу же оказывается дополнительное посадочное место. Кроме того, если вы захотите с комфортом посмотреть кино или почитать на диване, пуф лёгким движением руки превращается в удобную подставку для ног.


Недавно мы составляли список вещей, которые должны быть в маленькой квартире, и среди прочего отметили комплекты складных столиков. Как вариант — вместо классических столиков-матрёшек можно использовать несколько небольших тумбочек, составив из них композицию. Выглядят такие наборы оригинально, а если понадобится освободить немного места, унести 1-2 тумбочки в другую комнату куда проще, чем двигать один большой кофейный столик.


Несколько лет назад наблюдался настоящий модный бум на прозрачные сумки и рюкзаки. Отношение к тренду было неоднозначное: одних такая оригинальность привлекала, другие были категорически против выставлять содержимое своей сумки напоказ. Если вы же относитесь к первой категории, рекомендуем перенести этот эксперимент в интерьер и заменить классический журнальный столик на прозрачный ящик. Внутрь можно поместить книги в красивых обложках, интересные мелочи или даже поставить какой-нибудь арт-объект, превратив ящик в своеобразную витрину.


Любители экостиля должны оценить такую замену обычному столику, как брёвна или спил старого дерева. Дерево само по себе смотрится в интерьере выигрышно, поэтому импровизированный журнальный столик можно оставить необработанным, хотя для более долгой службы будет нелишним покрыть его лаком.
Журнальный столик своими руками. Журнальный столик: 5 необычных мастер-классов
В современных магазинах несомненно есть огромный выбор самых разных дизайнерских журнальных столиков. Конечно же, ценник на такие изделия порой удивляет и даже шокирует. Поэтому рекомендуем попробовать сделать интересный, стильный вариант своими руками. Благодаря этому вы не только сэкономите приличную сумму, но и реализуете свой творческий потенциал.





Стеклянный журнальный столик
Когда речь идет о журнальном столике, в первую очередь возникает ассоциация со стеклянным изделием. Это не удивительно, ведь раньше они были особенно популярными. Но все же, предлагаем сделать чуть более современный вариант, который станет стильным украшением вашего дома.

- стеклянная плита;
- листы фанеры или ОСБ-плиты;
- пила;
- рулетка;
- ручка;
- лист бумаги;
- наждачная бумага;
- клей для стекла и дерева;
- кисть;
- краска.

На листе бумаги делаем схематический чертеж столика. Размеры должны соответствовать вашим требованиям и размерам помещения.

Измеряем толщину фанеры или ОСБ-плиты.

В данном случае листы фанеры соединяются между собой с помощью вырезанных зазоров. Поэтому они должны иметь ширину, которая совпадает с толщиной деревянной заготовки. Для удобства делаем отметки с правильными размерами.

Выпиливаем зазоры согласно отметкам.

Соединяем между собой детали каркаса. Обратите внимание на то, что он должен ровно стоять на полу и не шататься.

Поверх деревянного каркаса кладем стеклянную плиту. Также можно зафиксировать детали с помощью клея для стекла и дерева.

При желании можно обработать журнальный столик наждачной бумагой и покрасить в подходящий к интерьеру оттенок.

Стеклянные столики могут выглядеть абсолютно по-разному, в зависимости от того, какие материалы вы планируете использовать в работе.

Журнальный столик из дерева
Любителям деревянных предметов в интерьере предлагаем обратить внимание на необычные журнальные столики. Они выглядят по-настоящему роскошно несмотря на то, что сделаны своими руками. 
- бревна;
- нож для дерева;
- наждачная бумага;
- шлифовальная машинка;
- шурупы;
- дрель;
- колеса небольшого размера – 4 шт.;
- гаечный ключ;
- грунтовка;
- валик;
- кисть;
- карандаш;
- паркетный лак.

Для начала стоит отметить, что перед работой дерево необходимо высушить. После этого с помощью ножа отделяем кору.


Так как на дереве всегда есть довольно много шероховатостей, его обязательно нужно обработать. Для этого используем наждачную бумагу и шлифовальную машинку. Опилки и пыль убираем мокрой тряпкой.
Переворачиваем бревно нижней частью к верху. Равномерно распределяем колесики и делаем отметки в тех местах, где должны быть шурупы.

Выбираем подходящее по размеру сверло и делаем отверстия согласно отметок. 
Распределяем колесики и все шурупы. После этого закрепляем каждый из них с помощью гаечного ключа.

Переворачиваем деревянный столик и проверяем его устойчивость. 
Покрываем поверхность дерева грунтовкой.

Наносим паркетный лак с помощью валика и оставляем до полного высыхания. 
Красивый деревянный столик готов.

При желании его можно окрасить в любой оттенок.

Если этот вариант кажется вам слишком громоздким, то предлагаем еще один мастер-класс. С его помощью можно сделать красивый журнальный столик из березы.

Подготовим такие материалы:
- листы фанеры;
- березовые поленья;
- столярный клей;
- пила;
- шпатель;
- шурупы;
- шуруповерт;
- колесики;
- штукатурка.

Из фанеры вырезаем основу для стола, а также боковые стороны и столешницу. Собираем боковые стороны и устанавливаем их по центру основы. Учитывайте, что основа обязательно должна выступать, так как именно к ней и будут прикрепляться поленья.

Подготовленные поленья приклеиваем к деревянной заготовке с помощью столярного клея. Для надежности можно дополнительно их зафиксировать изнутри ящика шурупами.

Прикрепляем столешницу к ящику.

Несколько поленьев распиливаем на части небольшой толщины. Приклеиваем их к столешнице с помощью столярного клея.

Заполняем пустое пространство штукатуркой. Удаляем излишки и оставляем до высыхания.

Ко дну столика прикрепляем колесики и переворачиваем конструкции обратно. Стильный журнальный столик готов!

На самом деле существует множество вариантов журнального столика из дерева.






Лаконичный столик из труб

- медная труба;
- труборез;
- хомуты для крепления;
- эпоксидный клей;
- медные колпачки;
- доски;
- медные тройники.

Для начала необходимо подготовить детали из трубы. Можно использовать размеры, указанные на фото или же использовать подходящие вам параметры.

После того, как все детали будут готовы, можно смело приступать к сборке нижней части. В процессе ориентируйтесь на схему, которая указана на фото.

Постепенно собираем заготовку для столика.

Если вы уверены в том, что все детали хорошо соединяются между собой, то для надежного крепления можно воспользоваться клеем.

Прикрепляем доски к журнальному столику.

Красивый, необычный, лаконичный столик своими руками готов!

Необычный журнальный столик из пенопласта
С каждым годом становятся все более популярными необычные дизайнерские столики. К примеру, вариант из бетона смотрится очень красиво, но в то же время обладает рядом недостатков. Конечно же, он имеет высокую стоимость. Также он невероятно тяжелый, что не всегда удобно. Поэтому предлагаем сделать альтернативный вариант из пенопласта.

- пенопласт;
- шлифовальная машинка;
- цемент;
- шпатель;
- аэрозольный клей;
- наждачная бумага;
- ножовка;
- краска;
- нож.

Разрезаем пенопласт на квадраты одинакового размера и складываем их друг на друга.

Склеиваем заготовки между собой аэрозольным клеем. Придаем заготовку форму цилиндра, обрезая углы.

Шлифуем поверхность наждачной бумагой, чтобы цилиндр имел более правильную форму.

Наносим цементный раствор на всю поверхность заготовки из пенопласта. После высыхания нужно нанести еще один слой. Учитывайте, количество слоев зависит от того, насколько гладким вы хотите видеть журнальный столик.

После высыхания обрабатываем столик шлифовальной машинкой, чтобы добиться гладкости. Стильный, оригинальный столик из пенопласта готов!

Журнальный столик: необычные идеи своими руками

Журнальный столик: необычные идеи своими руками
Процесс создания журнального столика довольно сложный, порой даже слишком. Но результат определенно того стоит. Ведь такие предметы интерьера, сделанные своими руками, всегда смотрятся особенно красиво.










Процесс создания журнального столика довольно сложный, порой даже слишком. Но результат определенно того стоит. Ведь такие предметы интерьера, сделанные своими руками, всегда смотрятся особенно красиво.




