Вешалка своими руками – советы, инструкции, 115 фото и мастер-класс по созданию стильных моделей
Именно прихожую видят первым делом гости. Это лицо квартиры, которое характеризует хозяина. Для лучшего оформления данного участка, следует помнить о пространстве. Большой шкаф в этом случае не уместен. Поэтому актуальный вопрос, как сделать вешалку своими руками.
Обо всех нюансах этого процесса немного ниже.
Краткое содержимое статьи:
Характеристика
Размещение настенных вешалок для одежды возможно в разных местах, не исключение и прихожая. Это может быть кухня, или ванная комната. Важно сделать из этого изделия необычное дополнение интерьера. При правильном подходе обычная вешалка станет ярким акцентом, сделанном в нужном вам стилевом направлении.

Изделие должно соответствовать определенным требованиям. Стильно смотрится простая, легкая, но прочная конструкция, с доступными и компактными материалами.
Крепление отличается по способу монтажных работ. Как видно на фото вешалки, выделяют настенные, потолочные, а также передвижные изделия.
Применяя настенные конструкции, предпочтение в изготовлении отдают угловой конструкции. Дизайнеры советуют комбинировать несколько типов. Например, это может быть настенная конструкция в сочетании с опорой, например, на пол.

Важно! Не применяются напольные конструкции в ванной и кухне, так как это неуместно. Ведь вешалки занимают много места, мешают рационально разместить другие необходимые предметы.
Отличаются изделия по способу подвешивания. Известны конструкции с крючками, со штангой, предназначенной под плечики. Первый вариант станет выходом, если вам необходимо рационально размещать вещи, экономя свободное пространство.

Преимущество второго варианта в качестве. Ведь можно вешать вещи на плечики, не боясь, что она помнется, потеряет свою привлекательность.

Выбор материала
Наиболее распространенный вариант – это изготовление вешалки из дерева. Популярны кованые конструкции, но не всегда они подходят в стилевую композицию вашего интерьера.
Часто делают вешалку из металла. Чаще всего крючки закрепляют с помощью клея, саморезов, магнитов. Можно использовать для этих целей присоски.

Стоит определиться, для каких целей будет использоваться изделие. Если вы будете вешать верхнюю одежду, тогда наиболее оптимальным вариантом считается применение саморезов. Ведь они помогут выдержать большой вес.


Остальные способы применяют в ванной комнате, или же кухне. Они легко выдержат полотенца, прихватки.

Рабочий процесс
Стоит рассмотреть, какие есть идеи как сделать вешалку. Рассмотрим наиболее простой вариант, которые можно по-разному интерпретировать, соединять, добавлять свое.
Следует приготовить материал. Далее для рабочего процесса обязательно нужен лобзик. Для крепежа потребуется дополнительный материал, перфоратор. Необходим также уровень, уголок, рулетка. Для чертежей приготовьте карандаш, или же маркер.

Наиболее простым вариантом изготовления считается планка с крючками. Необходимо взять деревянную дощечку.

Обратите внимание! Для качественного изделия следует тщательно подобрать дощечку. Ее поверхность должна быть идеально ровной, без трещин, неровностей. Материал должен быть хорошо высушенный. Только после соблюдения всех этих правил можно приступать к работе.



Заметить деревянную дощечку можно листом ДСП, или же МДФ. Важно учитывать соотношения длины, которая будет подходить под ваши индивидуальные потребности.

Далее дощечку из дерева покрывают лаком, возможен вариант применения морилки. Затем просверлите несколько отверстий зависимо от длины изделия.
Между отверстиями должно быть такое расстояние, чтобы отступ составлял приблизительно 5 см. Для ровного расположения отверстий необходимо применение строительного уровня. В их поверхность вставляют дюбеля. В основу прикручиваются саморезы. На планку необходимо прикрепить крючки. Зависимо от крепежного материала определяется прочность всей конструкции.
Вместо стандартных крючков можно использовать несколько интересных их вариаций. Часто для этих целей используют старые гаечные ключи. В первую очередь, их необходимо подготовить к работе, то есть почистить, полировать. Далее их загибают, затем привинчивают к планке.

Часто применяют вилки из стали. Они также идеально подойдут для этих целей. Избегайте выбора алюминиевого материала, так как он хрупкий по своей структуре. При подходящем материале зубчикам можно придать достаточно интересную форму.

Еще один вариант – деревянные сучки. Причем совсем не обязательно размещать их ровно. Часто рисуют нотный стан, и крючки размещают в соответствии с расположением нот.



Выводы
Отлично вписывается в стилевое направление помещения самодельное изделие. Вешалки не являются исключением. Такие конструкции достаточно легко сделать самостоятельно, усовершенствовать стандартные варианты, дополнить их своими пожеланиями, фантазией.
Дизайнеры советуют, не боятся экспериментировать, комбинировать разные способы, создавать что-то свое. Такая вещь, несомненно, украсит вашу прихожую, охарактеризует вас как творческую и талантливую личность.
Настенная вешалка в прихожую: 5 мастер-классов и идеи!
В прихожей никак не обойтись без вешалки. Конечно, верхнюю одежду можно вешать и сразу в шкаф, но это дольше и не так практично. Настенная вешалка очень удобна для узких и маленьких прихожих, она довольно вместительная и не занимает много места.

Предлагаем вам 5 мастер-классов по изготовлению настенной вешалок своими руками из подручных средств: дерева, кожи, веток или труб, а также вдохновляющие фото-идеи.
С перфорированного листа
Эта вешалка во всех смыслах отобразит фразу «а еще я крестиком вышивать умею», покажет вашу креативность и станет хорошим украшением дома.

Материалы
Для того, чтобы ее создать, понадобятся следующие материалы:
- пластиковая или металлическая панель с перфорацией,
- разноцветные нитки мулине (в принципе подойдут и нитки для вязания),
- ножницы,
- крючки (в данном случае 4 штуки с шариком на конце).
СОВЕТ: где взять такой перфорированный лист? В любом строительном магазине или магазине для мебели — спросите перфорированный лист . И вам отрежут нужный размер
Порядок работ:

- Покупаем перфорированный лист нужного размера.
- Делаете обычную вышивку крестиком нитками, только полотно большего размера.
- Можете выбрать любое понравившееся слово, или простенькую картинку (сердечко, например), главное – рассчитайте, чтобы все поместилось и промежутки между буквами были одинаковыми.
- Когда надпись будет готова, прикрепите крючки через отверстия панели и повесьте вешалку на стену (даже отверстий для креплений сверлить не надо, они уже есть).

Вешалка из дерева
Если у вас на даче завалялся поддон, то этот мастер-класс поможет найти для него полезное применение. Если же такового нет, то вешалку можно сделать и с обычной деревянной доски.

Необходимые материалы:
- Паллет или деревянная доска
- Крючки
- Краска и емкость для краски
- Кисть или валик
- Защитные перчатки
- Сверло
- Лобзик
- Шлифовальная машинка или наждачная бумага
- Измерительная лента
- Карандаш
- Ткань для протирки дерева
Пошаговая инструкция:
Шаг 1: Подготовка древесины

- Отделите одну доску от поддона (или возьмите обычную деревянную доску), очистите ее от грязи. Обрежьте до нужного размера, если она слишком большая.
- С помощью шлифовальной машинки сделайте поверхность ровной и гладкой, если машинки нет, можно использовать наждачную бумагу вручную, это займет больше времени, но нужного результата можно достичь.
Шаг 2: Наметьте, где будут крючки

С помощью измерительной ленты отметьте точки, где будете крепить крючки. Они могут располагаться по одной линии через равные промежутки, или выше-ниже через один, как вам больше нравится.
Шаг 3: Просверлите отверстия для крючков

- Сделайте сверлом отверстия для крючков (предварительно проверьте, чтобы ширина соответствовала нужному размеру).
- После завершения очистите доску от пыли.
Шаг 4: Покрасьте доски

- Выберите цвет и тип краски, зависимо от ваших предпочтений и интерьера. Здесь использовалась акриловая краска на водной основе ярко-синего цвета.
- Краску можно наносить валиком или кистью, вдоль и поперек доски, равномерно заполняя все пространство, последний шар должен проходить вдоль.
По желанию, перед покраской можете использовать антисептик для дерева, чтобы обеспечить его долгую годность.
Шаг 5: Вставьте крепления

- На задней стороне доски вставьте крепления, за которые будете подвешивать доску к стене. Они должны быть расположены симметрично друг к другу, относительно средины доски.
- Здесь использовались крючки, которые вкручиваются в просверленные ранее отверстия. Их просто прикрепить, главное, чтобы был соответствующий диаметр.
Создайте свой собственный дизайн – подберите цвет, разрисуйте узорами, выберите место расположения крючков, а также их цвет и размер. Все готово!

Из медной трубы
Такая вешалка особенно подойдет любителям шляп. Для них трудно найти место, где бы они хранились и не мялись, в шкафу это занимает слишком много места. Это же отличный вариант и для использования с прямой целью – для одежды, и для декорирования помещения. Конечно, кроме шляп сюда поместится и вешалка для одежды.

Необходимые материалы:
- Медная труба
- Ножницы
- Прищепки
- Веревка

Пошаговая инструкция:
Шаг 1: Заготовьте основу
Обрежьте веревку до такого размера, какого хватит для подвешивания вешалки. Пропустите веревку через медную трубу.

Шаг 2: Прикрепите веревки для подвешивания шляп
Отрежьте еще несколько кусков веревки и привяжите их на трубу, оставляя достаточный интервал между ними, чтобы шляпы потом не мешали друг другу.

Шаг 3: Повесьте вешалку
Прикрепите концы веревки с медной трубой к стене или потолку (для этого там должны иметься крючки или труба). На свисающие с трубы веревки прикрепите прищепки, на них теперь можете вешать шляпы. Также можете повесить на трубу вешалку для одежды.


СОВЕТ: Длину трубы выбирайте, зависимо от количества свободного места на стене, шляп и одежды.

Как видите, делается очень быстро, даже за пол часа можно успеть, а выглядит очень оригинально.
Вешалка из кожаных ремней
Такая настенная вешалка подойдет и в прихожую, и в кухню, и в ванную комнату. По типу походит на вешалку, описанную в предыдущем мастер-классе, но ее применение более универсальное. Красиво дополнит интерьер вашей квартиры, требуя при этом для изготовления совсем немного усилий и времени.

Необходимые материалы:
- Кожаные ремни (2 штуки из достаточно мягкой кожи)
- Два маленьких кусочка кожи (более жесткой)
- Деревянная палка (из ветки дерева)
- S-образные крючки
- Ножницы
- Нитки и игла (которые подойдут для кожи)
- Пробойник для кожи
Пошаговая инструкция:
Шаг 1: Заготовка поясов

- Обрежьте до нужной длины два кожаных ремня, они должны быть одинаковыми. Оберните ремнем палку и отметьте, сколько нужно на ее обхват.
- В месте, где ремень сходится после обхвата, его нужно сшить, чтобы зафиксировать палку, и она не выпадала. То же самое проделайте со вторым ремнем.
- Чтобы шва не было видно, сделайте декоративные ремешки из кожи: узким ремешком обхватите прикрепленный к палке ремень, в месте шва, и сшейте его, соединив концы (со вторым ремнем то же самое).
Шаг 2: Крепим вешалку

Пробойником для кожи сверху ремней (по центру ширины) сделайте отверстия, за которые подвесьте данную конструкцию на стену или потолок (на ранее прикрепленные крючки).
Шаг 3: Вешаем крючки

Повесьте на деревянную палку нужное количество S-образных крючков и вешалка готова к использованию.

Из веток и срезов
Ветки и срезы отличный материал для настенной вешалки. Во первых — это очень бюджетно! И во вторых — дерево никогда не выйдет из моды и прекрасно дополнит стиль любой квартиры!
Из веток можно изготовить множество поделок для дома — об этом в статье «40 идей поделок для дома из веток».



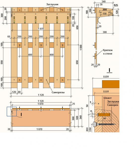
Из паллет
Если вы собираетесь сделать вешалку на стену и выбираете дешевый и быстрый вариант, тогда вешалка из деревянных досок или паллетов – это именно то, что нужно. Если вы думаете, что она будет выглядеть обыкновенной и неоригинальной, посмотрите подборку фото внизу и убедитесь, что из этих материалов можно создать действительно уникальную вещь, которая украсит интерьер квартиры.

Подберите краску (или просто обработайте дерево антисептиком, сохранив натуральный цвет), крючки, придайте доске нужную форму, придумайте свой собственный способ задекорировать доски.


Из дерева можно сделать и более сложные вешалки. Точнее дело даже не в сложности, они трудоемкие, на них нужно уделить больше времени.
Технология изготовления вешалки из подручных средств
Подытожив все мастер-классы, хочется вывести единую формулу для изготовления и креатива над вешалками. Условно можно разделить:
- Основа — может быть любой предмет от готовой доски до старых предметов.
- Крючки для вешалки — не обязательно покупать, можно изъять их из плечиков для одежды.

Основа из подручных средств
Также для изготовления можно использовать вещи, на первый взгляд совсем для этого не подходящие: лыжи, весла, линейки и т.д. на сколько хватит фантазии. Чудесный способ найти применение вещам, завалявшимся в кладовке.

Крючки для вешалки
Крючки тоже не обязательно должны быть стандартными (хотя и их спектр выбора довольно широкий). Начните смотреть на вещи с мыслью «а где же еще вас можно применить?». Уверена, что немного потренировав себя, интересные идеи начнут приходить все чаще, и это касается не только вешалок, конечно же.
Прикрепите отдельные крючки на стене, их дизайн должен выглядеть как элемент декора, даже если на них не будет никаких вещей.


Идеи настенных вешалок
Дизайнер все больше и больше предлагают идей креативных и функциональных вешалок для одежды. Порой, конструкции их достаточно элементарны и не сложны для домашнего выполнения.
Металл, конечно, более сложный в работе, но при желании создать такую вешалку, это не составит труда. Сделайте ответвления в форме дерева или повесьте вешалки на трубу – получится прочно и функционально.


Все эти фото, это частичка того, что можно создать своими руками. Берите понравившиеся элементы, комбинируйте, и главное – получайте от этого всего удовольствие!
Настенная вешалка в прихожую: купить или сделать своими руками
Первое впечатление о хозяине квартиры начинается с прихожей. Здесь не всегда есть возможность разместить габаритную мебель. Вполне достаточно настенной вешалки. От её дизайна и материала, из которого она сделана, зависит удобство пользования и долговечность.
В зависимости от количества членов семьи настенная вешалка в прихожей может быть большой или маленькой, на одну или на две стены. Двойная вешалка на две стены называется угловой. Недостаток у такой вешалки один: для того чтобы её установить необходимо сверлить стены и устанавливать дюбеля. Для этого нужен перфоратор или надо пригласить специалиста.

Какие бывают настенные вешалки
Определимся сразу, настенные вешалки это те, которые вешают на стену. Делают их из различных материалов:
Стилей мебели в интерьере много. Поскольку большинство населения не живёт в царских палатах, то для массового потребителя наиболее подходят стили:
Если прихожая небольшая настенная вешалка решает много проблем. Дополнительно вешалки комплектуют тумбами, зеркалами, полками. В зависимости от высоты помещения конструктивные элементы располагают горизонтально или вертикально.

В небольших прихожих можно выбрать конструкцию, занимающую минимум пространства. Конструктивно их выполняют в сборе или разборными. Сборные конструкции собираются на предприятии и продаются в готовом виде. К сборным можно отнести деревянные из массива и металлические. Разборные необходимо собирать дома из купленных деталей.

Вешалки из массива
Для деревянных вешалок в прихожую используют различные породы древесины: дуб, бук, ясень, берёзу, ель, сосну. Крючки бывают деревянные или металлические. Современные протравы для дерева позволяют придать древесине любые оттенки.

Варианты конструкции бывают с полкой для хранения головных уборов или без неё. Большие вешалки могут комплектоваться зеркалами, полками, ящиками для хранения мелочи, обуви.

Деревянные изделия всегда дорогие. Причём следует заметить, что мягкая древесина сосны или ели может стоить дороже дуба или бука. Это связано не с ценой исходного материала, а с трудностями технологической обработки поверхности. Мягкая древесина ели обрабатывается плохо, после шлифовки остаются риски от абразива. Массив покрывают лаками, воском или просто красят. Преимущества изделий из массива это их экологичность и долгая служба.

Вешалки из плит ДСП, ЛДСП, МДФ
Древесно-стружечные плиты и плиты МДФ в мебельном производстве занимают прочные позиции. Они недорогие, покрываются ламинированными плёнками под ценные породы древесины, их не коробит, они держат геометрические размеры весь период эксплуатации.

МДФ это мелкодисперсная фракция древесноволокнистой плиты. Они отлично фрезеруются, покрываются красками, лаками, плёнками под ценные породы дерева. По своим потребительским качествам МДФ превосходят ДСП, но они дороже.

Плиты из ДСП, ЛДСП и МДФ продаются в готовом виде к работе для домашних мастеров. Надо только после раскроя заклеить торцы ламинатом или специальными пластмассовыми накладками.

Металлические
Оформление настенных вешалок из кованого металла придаёт прихожей новизну и оригинальность. Конструктивно она может быть выполнена в разных вариантах: с полочкой для головных уборов или без, с декоративной сеткой, отделяющей одежду от стены, с разными декоративно оформленными крючками.

Однако для полноты картины для металлической вешалки нужны дополнительные изделия, изготовленные методом ковки: подставка для обуви, зеркало, ключница и другие.

Комбинированные
Для комбинированных вешалок применяют все известные материалы. Здесь нет ограничений. Внешний вид зависят от фантазии дизайнера. Выбор материалов для изготовления настенных вешалок огромен.

Обратите внимание на крючки. Предпочтение надо отдавать металлическим. Зимой на крючках будет вешаться тяжёлая одежда: пальто, дублёнки, куртки. От их прочности будет зависеть дальнейшая эксплуатация мебели.
Выбор цвета
Так как в прихожей нет окон, выбор цветового решения мебели играет огромную роль. Имейте в виду, что белый цвет расширяет пространство, а тёмные цвета мебели суживают. Выбирайте настенные вешалки светлых оттенков. Если прихожая соединена с другими комнатами, то в этом случае стиль прихожей должен гармонизировать с общей комнатой.

Как выбрать настенную вешалку
Выбирать необходимо исходя из:
- количества членов семьи;
- дизайна;
- финансовых возможностей;
- сборной или неразборной конструкции.
Перед покупкой определитесь с дополнительными аксессуарами:
- обувные секции;
- полки;
- навесные или напольные ящики;
- обувница;
- зеркала.
Лидеры производства этого типа мебели это Икеа и Леруа.
Фирма Икеа помимо настенных вешалок в сборе предлагает сотни вариантов крючков для одежды из различных материалов, начиная от пластмассы и заканчивая металлическими крючками, анодированными под золото или серебро.

Не отстаёт от своего конкурента и фирма Леруа Мерлен. Главное, не растеряться среди сотен вариантов крючков для одежды. Обе фирмы применяют современные материалы МДФ, ДСП, металл, пластмассу, стекло.

Как сделать настенную вешалку самому
Чтобы не терять зря время и не переоценивать свои силы, скажем сразу, что можно сделать самостоятельно, недорого и с минимумом инструментов, а что нет. Сделать вешалку из массива древесины, не имея специализированного инструмента и навыков работы, нельзя. Покупать циркулярную пилу, фрезер, шлифовальную машину и другие инструменты не имеет смысла. За эти деньги можно купить несколько изделий.

Реально можно сделать настенную вешалку из кованых элементов плюс ДСП или МДФ панели. А также можно использовать ламинированную ДСП.

Порядок действий
- Подберите фото из интернета и сделайте свою конструкцию. Сделайте эскиз будущей вешалки со всеми размерами.
- Предусмотрите вертикальные или горизонтальные планки, отделяющие одежду от стены, для того чтобы не обтирать ее.
- Подберите необходимую фактуру ДСП ламинированной плёнки и закажите раскрой по своим размерам в строительном гипермаркете.
- Зашлифуйте и заклейте торцы специальной плёнкой на клею ПВА.
- Если будут соединения на шурупах или мебельных стяжках подберите специальные пластмассовые заглушки, чтобы скрыть их.
- Выбирайте крючки с большим количеством шурупов для крепления, чем два. Учтите ДСП это стружка и опилки. Перед вкручиванием саморезов просверлите отверстие диаметром 1 мм и капните в него несколько капель клея ПВА.
- То же самое касается и креплений на стену. Смотрите, чтобы шурупы не вылезли на лицевую сторону.
- Просверлите в стене перфоратором отверстия под пластмассовые дюбели и вбейте их в стену.
- Установите крючки или петли, на которые будет устанавливаться настенная вешалка.
- Установите вешалку на место.

Несколько дельных советов вместо эпилога
Если хотите использовать в конструкции натуральную древесину, купите в строительном гипермаркете деревянные ступени или подступени. Их продают как комплектующие к деревянным лестницам из разных пород древесины. Материал уже отшлифованный и готовый к употреблению. Покройте заготовку бейцем или цветным лаком несколько раз и отшлифуйте, а затем отполируйте суконкой.
Таким же способом можно сделать и кованую настенную вешалку. Купите в специализированном магазине необходимые металлические детали (розочки, завитушки, шишки) будущей настенной вешалки. Соберите будущую конструкцию прямо в магазине, чтобы убедиться в правильности выбора и дизайна. Найдите сварщика и он сварит вашу вешалку. Остаётся только подобрать необходимый цвет краски по металлу. Перед покраской металлические части вешалки грунтуют специальной грунтовкой по металлу. После покраски изделие покрывают прозрачным лаком.
Когда вешалка на стену выбрана, обратите внимание на последние новшества в дизайне прихожих.
Как можно своими руками сделать хорошую настенную вешалку для одежды
Вешалки для верхней одежды нужны в любом коридоре как дома, так и квартиры. Они являются неотъемлемым атрибутом практичности и дизайна. И особенно это касается узких коридорчиков, где совсем мало места для того, чтобы установить полноценный шкафчик.

Рисунок 1. Для сооружения настенной вешалки используйте ламинированное ДСП толщиной 16 мм.
Сегодня дизайнеры предлагают массу вариантов вешалок на стены — от самых дешевых до дорогих конструкций. Но ведь будет намного выгоднее и приятнее соорудить такую несложную вешалку своими руками. Тем более что это не так сложно, как вам может сначала показаться. Как сделать вешалку самому? Рассмотрим несколько хороших вариантов вешалок для коридоров.
Стандартный вариант настенной вешалки
Материал и инструменты
Для начала подробно распишем, как соорудить современную деревянную вешалку, на которую можно будет вешать не только пальто, но и класть шапки и шарфы. Выглядеть в итоге настенная конструкция будет примерно так (рисунок 1). Перед работой сразу запаситесь такими инструментами и материалами:

Чертеж настенной вешалки.
- Ламинированные ДСП. Вам будет нужно две детали размерами 25 на 80 см для боковых планок. Можно их делать прямыми, а не фигурными, как показано на рисунке.
- 2 задние планки 125 на 12 см.
- 4 одинаковых планки размерами 18 на 80 см для основных вертикальных внутренних стеночек.
- Полочка для шапок размерами около 135 на 25-30 см.
- Молоток.
- Строительный уровень и отвес.
- Кромка ПВХ для отделки краев ДСП.
- Электролобзик или шлифовальная машинка.
- Линейка и карандаш (мел) для разметки.
- Утюг.
- Столярный клей.
- Ножницы по металлу или строительный нож.
- Мягкая тряпочка.
- Наждачная бумага.
- 6 больших и 2 маленьких металлических крючка (как на рисунке).
- Саморезы.
- Шуруповерт или перфоратор.
- Дюбеля.
При выборе основного материала (ДСП) предпочтительно выбирать листы толщиной не менее 15 мм. При этом фактура и цвет подбираются в коридоре самостоятельно. Учтите, что можно заказать планки необходимых размеров, а можно вырезать их и самостоятельно лобзиком, потом зашлифовать и оклеить лентой, которая сажается на клей и прижимается раскаленным утюгом.
Отделка своими руками займет больше времени, но на нее вы потратите меньше денег. Планки же на заказ будут стоить дорого, но при этом специалисты смогут их сделать очень быстро и качественно. Зато одежда никогда не зацепится за небольшие погрешности на древесине.
Сборка и крепление

Схема сборки настенной вешалки.
Когда подготовка основных деталей будет закончена, можете смело приступать к сборке и креплению вешалки. Сначала делаются разметки на стене. Желательно вешать уже готовую конструкцию на 4 самореза: 2 сверху и 2 снизу по краям. Так она будет намного надежнее держаться. При разметке обязательно пользуйтесь рулеткой и карандашом и проверяйте все по несколько раз, чтобы ничего не испортить.
После этого начинайте собирать конструкцию. Сначала соедините передние вертикальные планки с задними горизонтальными. При этом очень важно все измерить правильно, так чтобы расстояние между вертикальными планками было одинаковым. И только потом все можно крепить на саморезы с задней части.
После этого сверху прибивается гвоздиками или на те же саморезы, насаживается полка для шапок. Во время работы проверяйте все уровнем, чтобы не было погрешностей. В противном случае вешалка окажется кривой. Металлические крючки крепятся в зависимости от того какого они вида.
Далее вам останется всего лишь закрепить вешалку на стене. Для этого вы можете воспользоваться саморезами или же использовать крючки. В любом случае в намеченные места сначала вбиваются дюбеля, а потом уже осуществляется крепление. После того как повесите конструкцию, еще раз убедитесь в ее надежности и ровности, после чего можете смело эксплуатировать вешалку.
Нестандартные варианты вешалок
А теперь рассмотрим кратко несколько самых простых, дешевых вариантов вешалок. Конечно, плечики не будут такими большими и красивыми, но по своей функциональности они вполне хороши. Да и смотрятся они очень интересно, так как являются нестандартными.
Вешалки из металлических приборов

Рисунок 2. Вилки можно использовать как алюминиевые, так и стальные.
Вешалка для одежды из обычных ложек или столовых вилок. Для этого вам понадобится лишь нужное количество вилок, дюбеля, гвоздей и одна деревянная планка, на которую вилки будут крепиться, так как на стене они смотреться будут не так красиво.
Ручки вилок необходимо согнуть так, чтобы они стали крючками. А сами зубчики при этом можете оставить такими же либо тоже согнуть немного в сторону по принципу веера для придания им декоративности. Под самими зубчиками делаются отверстия под гвозди.
Затем на стене делаются разметки, на которые крепится деревянное полотно. А уже на самом полотне размечаются места для вилок-крючков, куда они потом и крепятся. Крепление происходит на обычные гвозди. В итоге готовый вариант вешалки будет выглядеть примерно так (рисунок 2).
По такому же принципу можно в качестве вешалок использовать, к примеру, не вилки, а гаечные ключи. Это будет уже своеобразное декорирование. Но для определенных стилей оно окажется вполне уместным. Только вот сгибать такой гаечный ключ будет намного тяжелее (рисунок 3).
Природные конструкции из сучков

Рисунок 3. Чтобы гаечный ключ легче гнулся, его нужно предварительно нагреть.
Другим практически беззатратным и оригинальным вариантом вешалки для верхней одежды являются обычные деревянные сучки (рисунок 4). Для этого сначала нужно подобрать максимально необычные красивые сучки в нужном количестве, а затем подготовить их тщательно.
Сначала нужно их хорошо очистить от отстающей коры и высушить (только в тени, а не под прямыми солнечными лучами). На это обычно уходит около недели-двух. Затем нужно их пропитать специальной грунтовкой от гниения древесины с легким антисептиком, можно еще использовать олифу. А после полного впитывания жидкости нужно покрыть сучки лаком.
Если вы хотите, чтобы такая природная вешалка блестела, то необходимо наносить несколько слоев лака, времени на просушку уйдет больше, но в итоге получится глянцевое покрытие. Один или два слоя дают легкий блеск или же матовость на дереве, но при этом древесина остается такой же защищенной.
Крючки такие крепить непосредственно к стене тоже не рекомендуется, чтобы не испортились обои. Лучше всего воспользоваться ДСП панелью нужного размера, которую необходимо повесить на стену, а уже на панель при помощи гвоздей прикрепить сучки. Такая вешалка для одежды хорошо смотрится в коридоре, если стены из пробки, или же на обоях изображены природные элементы. Допустимо и сочетание с однотонными обоями.
Деревянный щит с крючками

Рисунок 4. Веточки и сучки можно окрасить в любой цвет или просто покрыть лаком.
Самым простым решением является использование обыкновенного щита из дерева и покупных крючков, которые можно будет даже располагать хаотично. В такой вешалке для верхней одежды вы не усмотрите большой оригинальности, зато сделаете ее совершенно без проблем — быстро и дешево.
Выбирается размер щита, который затем вырезается из дерева. Края обрабатываются наждачной бумагой, после чего отделываются специальной кромкой или тщательно покрываются несколькими слоями краски или же лака. В том же случае если щит выбрали вы из необработанной древесины, его тоже необходимо тщательно зашкурить, потом смахнуть пыль и покрыть лаком или краской.
Если вас не устраивает цвет щита, можно его перекрасить. Отлично еще смотрится авторское декорирование бронзовой или серебристой краской, которая придает эффект старины и одновременно делает вешалку более богатой. А можно нанести и простые рисунки разными цветами. После высыхания поверхность покрывается слоем лака.
Далее разметьте карандашом места примерных креплений крючков и прибейте их. После этого вам останется всего лишь прикрепить полотно к стене при помощи дюбелей и гвоздей. Как вы уже поняли, даже такая простая вешалка для одежды может быть оригинальной.
Итак, как сделать вешалку в коридор для верхней одежды теперь ясно.
Можно из этого всего сделать вывод, что для любого бюджета и коридорного помещения подобрать вешалку нет никаких особенных проблем. Ведь материалы могут быть не только дорогими, но и практически бесплатными.
Сейчас в магазинах продаются различные конструкции настенных вешалок. Но ведь все они имеют свои стандартные размеры. А вот самодельное полотно вы сможете регулировать сами. К тому же сделанную своими руками вешалку такого типа можно крепить не только к стене, но и к поверхности шкафа, что поможет сэкономить место.
Красивая напольная и настенная вешалка своими руками – фото идеи
Для уюта в доме и функциональности вашей мебели, вешалка для вещей просто необходима для прихожей. Виды вешалок очень разные напольные, настенные или используют обычные тремпеля.

Современные хозяйки выбирают вешалки не только по функциональности, но и уникальностью. Оригинальный дизайн вешалки можно выполнить самостоятельно, своими руками.

Настенная деревянная вешалка
Вешалка настенная является самой простой, ее можно сделать, не имея особых столярных навыков своими руками.

Во – первых надо выяснить где именно будет находиться вешалка, это может быть прихожая дома, гараж чтобы что – то повесить временно или дача.

Для красивой и качественной вешалки стоит определенно приобрести материал из дерева, например, доску сейчас можно прикупить уже обработанную доску. Длина дерева нужна примерно до одного метра, или по вашему пожеланию.

На обработанную доску, отшлифованную, обработанную специальным средством для долгого срока службы, и покрытым лаком. Затем на подготовленную доску можно крепить крючки, в одну, две или три ряда.

Вешалка настенная в других комнатах:
- На внутренней стороне ванной комнаты для вещей, халата и полотенец;
- В личной комнате на двери для сумок, кофты или шляпы;
- Для кладовой или рабочей зоны, для спецодежды или пуховиков;
- Перед входом в частный дом для зонтов.

Настенная вешалка может быть любой другой формы, не только прямоугольной она может быть закругленной, выполнена рейками, в виде облака или дерева. Выбор формы завит от того куда именно занесет вас ваша фантазия или предпочтения.

В качестве детали, на которую будет вешаться одежда, так же может быть выполнена оригинальным способом не обязательно использовать стандартные крючки. Это может быть держалки столовых приборов, гаечные ключи или какая – либо фурнитура из мебели.

Материал, из которого состоит наш «крючок» может быть также из дерева, металла или пластика. Для крючка из дерева потребуется уже известная процедура, отшлифовки и покрытия лаком. Выполняются такие действия, в первую очередь, чтобы не было заноз, и ваша вещь не портилась.

Другой простой вариант настенной вешалки это использовать параллельные вертикально или горизонтально установленные доски. Такое расположение досок позволит вам защитить вещи от побелки, или защитить стену от промокших вещей.

Размер досок определяете сами по вашему предпочтению, но не выбирайте тонкие доски, берите с толщиной от 15 миллиметров. На сборку такой конструкции потратится больше материала и времени, но это будет полноценной вешалкой для вещей в вашу прихожую.

Напольная вешалка
Еще один вид вешалки, отличающиеся своей элегантностью и множеством вариаций внешнего вида, формой и материалом из которого может состоять. Такой вид вешалок удобный, чаще всего можно увидеть в кафе, ресторане, гостинице или других общественных местах.

Особенность напольной вешалки это ее мобильность, можно постоянно менять место и двигать вешалку, например, летом можно вынести на веранду, или беседку.

Соорудить такую вешалку своими руками не представляет особого труда. Варианты идей для напольной вешалки:
- Для устойчивости используют основание для новогодних елок, для столба берут черенок от лопаты, на которую прикручиваются заранее подготовленные крючки;
- Также в качестве стойки применяют пластиковую трубу, а в виде крючков прикрепляют муфты;
- Сухая ветка на вид как рожки, которую можно установить на основу или на дополнительный столб;
- Как вариант сварить из металлических труб разного диаметра, но стоит после сварки тщательно обработать поверхность и покрасить;
- Старый штатив от фотоаппарата, идеально подойдет для основы вешалки.

Для вывода можно смело сказать, что сделать вешалку своими руками вполне возможно. Но не просто сделать, но и творчески и уникально украсить, в этом вас некто не ограничивает. Разнообразия форм для вешалок позволяет подобрать конструкцию для вашего интерьера и цветовой палитры.
Фото идеи самодельных вешалок













































Вопрос-ответ
Несмотря на то из чего состоит ваша стена, то определенно нужно подготовить место, куда будет крепиться вешалка. Для бетонной стены в качестве крепежа используют особые гвозди, они называются дюбелям. Для стены из гипсокортона еще на начальных этапах, между профилем устанавливается брус, чтобы вешалка крепилась к нему, а не в пустоту.
То, что вешалка будет находиться в помещении, это не значит, что не могут завестись маленькие вредители. Для постоянного использования и долгого срока службы вашей части мебели, обязательно стоит обрабатывать древесину противогрибковым и средством от вредителей. А после заняться уже внешним видом дерева.
Как сделать вешалку из качественного дерева своими руками
На первый взгляд, казалось бы – обычная вещь. Однако без нее сложно представить дом, квартиру, офис и даже театр, который, как известно, «начинается с вешалки».
Деревянные вещи всегда являлись качественными и долговечными, а также полезными в быту.
Моделей данного приспособления существует огромное множество – от простых крючков на стене до плечиков в шкафу. Но все они имеют одно назначение – сохранять вещи в опрятном, расправленном виде.
Виды дизайна и конструкции
Очень важен в интерьере помещения внешний вид самой конструкции. Он должен не только вписываться в общую концепцию, но и быть приятным для глаз. Особую атмосферу обстановке в прихожей создадут настенные вешалки из дерева сделанные из подручных средств своими руками. Для их изготовления не обязательно быть мастером – достаточно проявить немного творчества, фантазии и желания творить.
Вешалка из дерева сделанная своими руками будет выглядеть привлекательно и самобытно, что непременно заметят гости.
Изготовить приспособление можно из любых подручных средств: проволоки, крышек от духов, пробок от бутылок. Также из природных материалов, будь-то оригинальная ветка дерева или рога оленя, лося.
Особых навыков и умений создателю не понадобится – это под силу каждому желающему.
Перед изготовлением вешалки необходимо обратить внимание на особенности прихожей и ее форму. Для простых помещений подойдет любая модель. Если коридор достаточно длинный, лучше отдать предпочтение длинной вешалке.
Самым простым и распространенным типом конструкции принято считать деревянную доску с расположенными на ней крючками, крепящуюся к стене помещения. Возможно наличие полочек, предназначенных для головных уборов.
Основа конструкции может быть изготовлена из двух или трех более мелких досок, закрепленных между собой.
Настенные вешалки из дерева используют не только в прихожей, а также в ванной, детской комнате или на кухне. Чтобы добавить креативности в интерьер – ее можно сделать своими руками.
Основные требования – прочность, легкость, простота, компактность, доступность материалов.
По видам монтажа конструкция может быть потолочной, настенной или передвижной.
В настенном варианте вешалки для одежды из дерева сделанной своими руками возможно применение угловой конструкции. Напольное приспособление способно удерживать больший вес, нежели навесное. Но следует учитывать, что напольная конструкция занимает много полезного пространства, поэтому их не используют в ванной или на кухне.
Неотъемлемая часть любого коридора, а также предмет, который просто необходим в каждой квартире.
Вешалка из дерева и пример чертежа приспособления
При желании проявить творческий потенциал, можно комбинировать различные варианты. Например, можно сконструировать настенную вешалку с усиленной дополненной опорой на пол. Также можно создать отличную конструкцию в детскую, выполнив основную часть в виде облака или дерева.
В прихожую подойдет оригинальная вешалка заборчик своими руками или рога.
Данные приспособления разделяются по типу подвешивания одежды:
- с крючками;
- со штангой под плечики.
В первом случае вешалка с крючками занимает меньше места, но одежда на ней может мяться. Во втором – на плечиках можно повесить любой наряд, и при этом он останется опрятным и не мятым.
Настенную вешалку можно соорудить самостоятельно, используя все нужные инструменты.
Оригинальный внешний вид и завершенность изделию можно придать, используя различные способы декорирования:
- украсить декупажем;
- покрыть кракелюром или глизалью;
- расписать красками.
Вариант материала может быть разным, лучше всего конечно дерево.
Для начала, используя металлическую щетку, необходимо очистить деревянную поверхность вешалки от грязи, пыли и жира. После очистки, используя пульверизатор или валик, нужно нанести слой грунтовки, очень тщательно заполняя все трещинки.
Используя способ декупажа, возможно создание изделий, которые оригинально впишутся в любой интерьер.
Можно воссоздать элементы рисунка на мебели с эффектом старины.
Для работы используют заготовки с рисунками и ножницы. Изнаночная сторона картинки намазывается клеем и накладывается на деревянную поверхность и выравнивается, чтобы избежать образования воздушных пузырьков. После подсыхания клея поверхность изделия покрывают мебельным лаком. Завершить работу лучше, используя кракелюр.
Есть и более интересные варианты такой поделки.
Глизаль – это прозрачная краска, образующая фактурную поверхность. Ее разводят водой и с помощью фактурной губки наносят на поверхность, создавая необходимый узор. Делать это нужно быстро, так как в течение получаса все затвердевает.
Кракелюром называется вид лака, который используют для получения эффекта искусственного состаривания дерева.
Напольная и настенные вешалки считаются некой классикой.
Материалы и инструменты для работы
Необходимый инвентарь для самодельной деревянной вешалки можно купить в любом строительном магазине.
Подготавливаем доску, которая будет нам служить настенной вешалкой.
- пила-болгарка;
- шуруповерт или дрель;
- дюбеля;
- саморезы;
- отвертка;
- уровень, карандаш, рулетка;
- наждачная бумага;
- крючки, магниты, присоски, клей;
- лобзик;
- материал для изготовления вешалки.
В зависимости от её состояния, приводим её в идеальный вид. Если нужно – шкурим и покрываем лаком.
Для декора понадобятся:
- лак кракелюр или глизаль;
- заготовки рисунков для декупажа;
- клей и фактурная губка;
- малярная кисть или валик;
- грунтовка.
Настенная вешалка из дерева: изготовление
Настенная вешалка – достаточно простая конструкция. Однако необходимо весьма серьезно подходить к ее созданию, и тогда она прослужит долго.
Дополнительно есть вариант сделать полочку, чтобы можно было там размещать шарфик, шапку, и прочие мелкие вещи.
Основу для вешалки нужно выбирать из сухой крепкой древесины без трещин. Отличный вариант – доска или обрез бруса.
Длина заготовки должна соответствовать длине конструкции. Для начала древесину обрабатывают антисептиком. Затем ее стоит обработать, к примеру, наждачной бумагой, чтобы избежать заноз при эксплуатации. После на панели закрепляют крючки в два или ряда.
С помощью различного вида крючков можно сделать акцент на том или ином стиле интерьера.
На фото можно посмотреть чертежи для вешалки в прихожую.
Чертеж настенной вешалки.
Такая конструкция подойдет для прихожей, спальни, кладовой или бани. А если вешалку украсить изображениями персонажей любимых сказочных или мультяшных героев, она станет отличным дополнением детской комнаты, и дети будут с удовольствием следить за своей одеждой.
Под словом «дерево» зачастую имеется в виду не просто деревянный материал, а именно куски настоящего природного дерева.
Не стоит крепить вешалку на стену, покрытую штукатуркой, чтобы не испачкать одежду. Под нее лучше поместить лист фанеры, полиэтилена или толстой бумаги.
Если подойти творчески к процессу создания, панель можно выполнить в виде солнца, сердца, овала или волны. В качестве своими руками сделанных крючков для вешалки использовать катушки от ниток, сухие ветки или корни. Готовое изделие покрывается лаком.
Вешалка плечики для шкафа своими руками
При изготовлении вешалки для плечиков в шкаф своими руками понадобятся проволока крупного сечения, маленькая пластиковая бутылка, надетая на основу из проволоки, согнутая по углам металлическая пластина, обрез ветки подходящей формы.
Вешалка, несомненно, привлечёт к себе внимание, а также скрасит скучную атмосферу помещения.
Для начала нужно обернуть основу плечиков, используя тонкий поролон. Затем эту основу обшить тканью подходящей по цвету. После подбирают крючок и вешают в шкаф. Своими руками можно декорировать детскую вешалку при помощи смешной мордочки или же украсить ленточками, кружевом.
Вешалка-плечики из фанеры
Существует множество различных способов изготовления вешалок плечиков для одежды своими руками. Такую конструкцию можно смастерить за полчаса.
Для вешалки, сделанной из фанеры, потребуется: ватман, наждачная бумага, карандаш и электролобзик, сам материал.
На листе размера А2 делается чертеж. Ширина плечиков – 40 см, фанеру лучше использовать толщиной 15 мм.
Необходимо вырезать шаблон, который затем перенести на фанерный лист. После этого электролобзиком выпиливается рисунок, нанесенный на фанеру. Полученную заготовку обрабатывают наждачной бумагой – сначала крупной, затем мелкой.
Готовую вешалку из ДСП можно покрыть лаком.
С перфорированного листа самостоятельно
Вешалка из перфорированного листа во всех смыслах станет отображением фразы «а я еще крестиком вышивать умею». Раскроет талант и креативность, станет оригинальным украшением дома.
Материалы для изготовления:
- металлическая или пластиковая панель с перфорацией;
- крючки (4 штуки);
- разноцветные нитки мулине (возможно использование пряжи для вязания);
- ножницы.
Перфорированный лист можно купить в любом строительном или мебельном магазине.
Покупается материал необходимого размера и выполняется вышивка крестиком при помощи ниток для вышивания. Подойдет простой рисунок или понравившееся слово. Главное – правильно все рассчитать, чтоб промежутки между буквами были одинаковыми, а также, чтобы не выйти за контуры листа. После выполнения вышивки необходимо закрепить крючки в уже готовых отверстиях панели. Остается повесить вешалку, опять используя уже готовые отверстия панели.
Неординарные идеи для деревянной вешалки
Исходя из технологии изготовления вешалки из подручных материалов, можно вывести единую формулу креативности создания. Основа может состоять из любых элементов – от готовой доски до использования старых предметов.
Не обязательно покупать стандартные заводские крючки для вешалки – их можно сделать своими руками из подручных средств или изъять из плечиков для одежды.
Прикрепленные отдельные крючки на стене должны смотреться как элементы декора.
Вешалки для детской одежды в виде фигурок животных можно выпилить лобзиком из фанеры (ДСП) своими руками и раскрасить их яркими цветами, украсить аппликацией.
Старые или сломанные игрушки можно приспособить для изготовления крючков. Такую вешалку можно сделать, используя пару шурупов и клеевой пистолет. Она станет украшением прихожей или детской комнаты.
Любители парфюмерии могут использовать крышечки от любых духов в качестве крючков на вешалке.
Такая вешалка – весьма креативное решение.
Морские камушки, которые обычно привозят с моря, а потом не знают, куда их деть – будут очень стильно выглядеть на стене. Чтобы как можно проще собрать такую вешалку понадобятся: доска, шурупы и металлические цилиндры (должны быть немного шире и чуть короче шурупов). Их необходимо вставить в цилиндры и вкрутить в основание доски. Затем на шляпки шурупов наносится универсальный клей, и приклеиваются камни.
Крючки для вешалки в скандинавском стиле из дерева можно изготовить из толстых раздвоенных веток, собрав их в парке или во дворе. Такие конструкции отлично подойдут для шарфов и шляп.
Нет ничего проще, чем подобрать несколько саморезов и прикрепить к доске несколько деревянных катушек от старых ниток.
Подарите столовым приборам вторую жизнь, а себе – прекрасную неординарную вешалку.
Отличным решением для самодельных крючков будет использование старых гаечных ключей. Правда, чтобы их согнуть – придется вначале раскалить на огне докрасна. Вешалка с такими крючками будет отличным декором для гаража, техстанции.
Прежде чем начать изготовление новой вешалки, стоит обратить внимание на стиль интерьера прихожей или комнаты. Используя различные виды крючков, можно усилить акцент. Неординарная вешалка, несомненно, привлечет к себе внимание и станет украшением помещения.








