Как выбрать инсталляцию для унитаза: обзор конструкций и советы перед покупкой

Помимо традиционных унитазов, большую популярность приобрели подвесные конструкции, позволяющие оптимально использовать полезную площадь помещения. Да и с эстетической точки зрения они выглядят гораздо лучше напольных моделей. Согласны?
Рынок сантехнического оборудования предлагает несколько вариантов, каждый из которых имеет свои особенности монтажа и эксплуатации. Мы подскажем, как выбрать инсталляцию для унитаза, какие характеристики и параметры при этом важно учесть.
Кроме того, опишем схему работы подвесной системы, обозначим ее плюсы и минусы, а также назовем лучших производителей сантехники. Материал содержит видеоролик с советами эксперта по выбору инсталляций.
Что такое система инсталляции?
Под этим названием подразумевается стальная конструкция, которая монтируется в стену. Она является каркасом, на который крепится необходимая арматура, унитаз либо иные виды гигиенических приборов (раковина, биде).

Все технические коммуникации закрываются гипсокартонной фальшстеной, что придает интерьеру приятный аккуратный дизайн. На виду остается занимающий минимум места подвесной унитаз и панель с кнопкой для слива.
Составные части системы
Целостный комплект состоит из следующих компонентов.
Инсталляция. Этот важный элемент представляет собой конструкцию из прочной стали, на которую обычно наносится антикоррозийное покрытие. На каркас закрепляется гидравлическая обвязка унитаза и/или иной сантехники, а также устанавливаются соединительные компоненты (муфты, крепежные шпильки).
К конструкции монтируется бачок для унитаза, который играет важную роль при эксплуатации системы, поскольку от этого компонента во многом зависит ее качество и долговечность.
Чтобы исключить коррозию и протекание, бачок обычно выполняют из высококачественной пластмассы, а для прокладки смывного клапана используют силикон или улучшенную резину.
Для предотвращения перелива воды, что может привести к затоплению квартиры, предусматривается возможность аварийного слива. Изготовители современной сантехники соблюдают европейские стандарты, по которым уровень шума при эксплуатации бачка не должен превышать 17 дБ.
Унитаз. Современные конструкции систем инсталляций, как правило, универсальны: они подходят для гигиенических приборов различных марок. Помимо подвесных моделей каркасы применяются также для некоторых вариантов напольной сантехники, а именно для модификаций со «скрытым бачком».
Представленные в продаже гигиенические приборы имеют разнообразный цвет (от традиционного белого до черного и кислотно-ярких тонов), отделку и дизайн. Большинство моделей традиционно выполняются из фаянса или фарфора, однако можно встретить варианты из других материалов: акрила, металла, стекла.
Выбирая модель, желательно обратить внимание на крышку для унитаза: они могут быть обычными или с «полулифтом». Последний вариант гарантирует плавное закрывание, что предотвращает сантехнику от механических повреждений при резком захлопывании.

Кнопка смыва. Небольшим, но важным компонентом системы инсталляции является внешняя панель с кнопкой смыва.
Эта деталь может иметь различные модификации:
- с режимом «смыв-стоп» – в этом случае смывание можно остановить повторным нажатием панели;
- с двумя вариантами смыва – экономичным, предусматривающим сливание половины бачка, и общим с полным сливом;
- бесконтактные – приводятся в действие при помощи инфракрасных лучей.
Панели смыва могут значительно отличаться по цвету и дизайну, часто они являются настоящим украшением туалета или ванной.
Плюсы и минусы инсталляции для унитаза
Подвесные конструкции имеют свои достоинства и недостатки.

К преимуществам относятся такие факторы:
- Оптимальное использование полезной площади – подвесная сантехника занимает меньше места, нежели обычные унитазы.
- Визуальное расширение помещения. Небольшие габариты гигиенических приборов, как и отсутствие бачка, позволяют избежать нагромождения предметов.
- Эстетичность, благодаря тому, что все технические детали оказываются спрятанными в стену.
- Гигиеничность. У подвесного унитаза отсутствует ножка, где часто скапливаются бактерии. Кроме того, он оставляет пол целиком открытым, что облегчает уборку помещения.
- Экономичность. Многие модели имеют приспособления для половинного слива воды, что позволяет сократить ее расход.
- Низкий уровень шумов. Применение систем инсталляций позволяет снизить шумы, связанные с работой бачка, поскольку конструкция имеет дополнительный звукопоглощающий слой.
- Надежность. Подобные конструкции рассчитаны на длительное применение. Многие производители дают гарантию в 10 лет, в реальности модели могут служить и более долгое время.
Очевидно, что подобные сантехнические устройства обладают множеством достоинств.
К недостаткам подвесных моделей относят:
- Монтаж конструкции требует внимательности и тщательности в работе. При установке важно учесть множество нюансов: высоту размещение каркаса, его положение в стене и другие характеристики.
- Фальшстена преграждает свободный доступ к общим коммуникациям, который может потребоваться, например, в случае централизованной замены сантехоборудования в доме. При возникновении такой необходимости придется вскрывать перегородку, выполнять демонтаж облицовки или другой отделки, а затем вновь заделывать поврежденный участок.
- Подвесные унитазы, предусматривающие систему инсталляции, стоят несколько дороже, нежели традиционные варианты гигиенических приборов.
При выборе сантехнических устройств необходимо расставить приоритеты, оценив, насколько для вас важны перечисленные выше особенности подвесной сантехники, а затем сделать осознанный выбор.
Как правильно выбрать инсталляцию для унитаза плюс рейтинг лучших моделей

Подвесной унитаз можно установить почти в любом санузле, для этого даже не обязательно наличие капитальной стены. Подобрать инсталляцию в зависимости от технических условий не проблема, производители учитывают разные нюансы. Цены широко варьируются, и расхожее мнение, что подвесной унитаз – это безумно дорого, является заблуждением. Но чтобы монтаж и использование такой сантехники не омрачило жизнь, стоит разобраться в ее устройстве.
Система смыва
Существует несколько видов инсталляций, намного больше брендов и моделей, но у всех есть общий узел – система смыва, состоящая из панели с кнопкой, сливного устройства, бачка и обвязки.
Смывная панель бывает более 10-20 см в длину и ширину. Это обусловлено двойным функционалом: помимо управления спуском воды она декорирует ревизионное окно, предусмотренное для ремонта арматуры бачка. Кнопки выпускаются из пластика, металла или стекла.

Совет! Дизайн столь заметной детали важен, поэтому выбор часто начинают именно с нее. Оставив это на потом, вы рискуете оказаться в ситуации, когда все кнопки, совместимые с заказанной инсталляцией, не впишутся в интерьер. Универсальна в этом плане продукция немецкой фирмы Tece: ее смывные панели подходят к любым инсталляциям бренда при совпадении конструктива. А у компании Geberit, например, есть четкое разграничение по сериям, лишь в рамках которых возможна совместимость кнопок с модулями.
Сливные устройства делятся на механические, пневматические и электронные. Механика работает по тому же принципу, что и в обычном унитазе, открывая клапан воздействием толкателя на систему передач. Благодаря простоте подобные узлы надежней прочих и дешевле.
Пневматический смыв активируется посредством сжатого воздуха, вытесняемого из эластичного резервуара под кнопкой, когда на нее нажимают. Импульс передается на арматуру бачка по гибкой трубке. Плюс в том, что такую панель можно разместить на расстоянии до 2,5 метров от унитаза.
Электронные конструкции оснащаются автоматическим приводом. Смыв запускается инфракрасным датчиком, когда человек покидает уборную, или прикосновением к сенсорной панели. Наличие второй опции в домашнем туалете желательно, ведь ершиком удобней пользоваться во время смыва или после. Недостаток этого варианта – высокая стоимость.
Сенсорная смывная панель Viega.
Также бывают экономичные системы – двухрежимные и с опцией «смыв-стоп». Первые позволяют выбор между сливом всей воды из бачка или половины (порой 2/3), вторые останавливают процесс повторным нажатием на любой стадии.
Иногда полезна опция, противоположная предыдущим. В ряде моделей предлагается режим непрерывного смыва, когда поток воды не останавливается автоматически, требуется ручное отключение.
Бачки скрытого монтажа изготавливают из пластика. Их внешний вид по понятным причинам не важен. При выборе надо обратить внимание, с какой стороны сделана подводка воды. У бюджетных моделей обычно лишь один вариант, у более дорогих возможны несколько. Хороший бачок имеет изоляцию от конденсата (это важно, чтобы в холодное время года за облицовкой не выросла плесень), а также достаточно просторное для проведения осмотра и ремонта ревизионное окно.

Бывают модели без резервуара, осуществляющие смыв потоком, поступающим непосредственно из трубопровода, под контролем системы управления. Их глубина меньше за счет отсутствия бачка, но качество смыва зависит от напора в водопроводе.
Обвязка включает впускную и смывную гарнитуру. Здесь все стандартно, выбирать особо нечего, кроме отсутствия или наличия звукоизолирующей панельки поверх впускной трубки. Выпуск чаще всего оснащается переходником 90/110 мм.
Виды инсталляций
Блочные (навесные) модули состоят из установочной консоли, на которой держится смывной бачок и обвязка. Подобное оборудование крепится только на капитальную стену, прячется в предварительно выдолбленную или уже имеющуюся нишу, после установки может быть замуровано или закрыто панелью. Конструкции такого типа – оптимальный вариант, когда надежная стена позади унитаза есть, а свободного места спереди недостает.
Блочный модуль Alca.
Инсталляция для приставного унитаза устроена еще проще: это бачок скрытого монтажа, оснащенный кронштейнами и впускной арматурой. Устанавливается в нишу, крепление возможно как на лицевой стене, так и на задней. Иногда этот тип модулей, самый недорогой, покупают для подвешивания унитаза непосредственно на капитальную стену или бетонную стяжку. Надежность и прочие аспекты подобных решений зависят от мастерства исполнителя.
Примерно так выглядит установка подвесного унитаза на стяжку. Как видите, об экономии пространства речь не идет.
Рамные инсталляции. Основу конструкции представляет жесткий каркас из толстого стального профиля, который принимает на себя вес прочих элементов и сидящего на унитазе человека, сохраняя при этом свою форму.
Устройство рамного модуля.
Такие модели обгоняют по средней стоимости остальные виды установочных систем для унитазов, что не мешает им быть наиболее популярными. Дело в следующих преимуществах:
- Рамные конструкции крепятся комбинированно к стене и полу. Основная нагрузка приходится на ножки, к вертикальному креплению приложится лишь часть силы от изгибающего момента. Это снижает требования к прочности стены.
- Установить рамную инсталляцию можно в перегородку из гипсокартона или вовсе посередине санузла. Для таких целей выпускаются модели с двойной рамой, крепящиеся только к полу четырьмя ножками.
- Не требуется подготовка ниши позади унитаза, модуль собирается возле стены. При этом конструкция отнимает от помещения немного площади. Но экономия пространства по сравнению с установкой напольного унитаза все же есть за счет того, что бачок здесь более тонкий.
Рамные модели позволяют разместить сантехнику в любой части ванной комнаты, куда реально подвести воду и канализацию. Если вдоль стен места для обустройства туалета не нашлось, выручит угловая конструкция, например, из линейки Eco Plus фирмы Viega. А когда требуется навесить вдоль одной стены или перегородки несколько приборов – есть линейные инсталляции. Соответствующие модули найдутся и для двухстороннего монтажа.
Угловая инсталляция
Габариты инсталляций
Стандартные размеры рамных моделей таковы (в среднем):
- ширина – 50 см,
- высота – 112 см плюс 20 см выдвижные опоры,
- глубина – 15-30 см.
Блочные конструкции компактней:
- ширина – 50 см,
- высота – 78-100 см,
- глубина – 10-15 см.
Высота модуля чаще волнует пользователей при установке под окном. Проблема решаема, у каждого серьезного производителя найдется рамный комплект высотой 82 см – этого минимума достаточно, чтобы вписаться в заданное пространство. Обычно такие модели предусматривают фронтальное и верхнее (на подоконнике) расположение панели смыва, поскольку в первом варианте кнопка окажется за поднятой крышкой унитаза, что не всем удобно.
Пример описанной установки, на подоконнике видна клавиша смыва.
Глубина также не часто становится решающим фактором, но и на этот случай есть решение: компания Tece предлагает модуль TECEbox (8 см), а марка Geberit выпускает комплект Duofix 111.796.00.1 (аналогично). Подобные лоты есть у брендов Roca и Viega, но они толще на пару сантиметров.
Важно! Компактность по одним показателям достигается за счет увеличения других. Инсталляция TECEboх имеет ширину 64,5 см, иначе при глубине 8 см пришлось бы уменьшить объем смывного бака. Это и сделали в Geberit – вместимость резервуара их сверхтонкого модуля всего 6 л.
Если стандартная рама не вписывается по ширине, на помощь снова приходит Geberit с моделью на 41 см. Надо поуже – тогда можно выбрать инсталляцию для унитаза Wisa Exellent XS на 38 см, Ideal Standard на 35 или Migliore Quadra на 30. Обратите внимание, что все они имеют прирост по глубине.
Рейтинг лучших инсталляций
Некоторые модули пользователи ищут в интернете чаще других. Приведенный ниже ТОП-10 демонстрирует, какими инсталляциями россияне больше интересовались в 2018 году.
① Grohe Rapid SL

Конструкция отличается простотой установки, для подключения к водопроводу не требуются инструменты. Кнопка входит в комплект, система смыва – пневматика. Модель имеет повышенный уровень шумоизоляции и три режима смыва.
② Grohe Solido Perfect
Самонесущая стальная конструкция подготовлена к облицовке, в комплекте имеется весь необходимый крепеж. Унитаз также входит в набор, сиденье и крышка с микролифтом. Бачок изолирован от конденсата, подключается без инструмента, подвод воды трехсторонний. Пневматический смыв на два режима.
③ Roca Dama Senso

Готовый комплект с унитазом. Стальная рама с порошковым напылением, ножки повышенной прочности из гальванической стали. Модель комплектуется фаянсовой чашей с системой антивсплеск, полочки нет, сиденье с плавным опусканием. В комплекте имеется брендированная смывная панель на две кнопки.
④ Roca The Gap

Модуль поставляется с безободковым унитазом прямоугольной формы, для которого характерен каскадный смыв. Также в коробке найдете панель с двумя кнопками. Бачок имеет шумоизоляцию и силиконовый клапан.
⑤ Geberit Duofix Delta

Самонесущая рама стандартных габаритов имеет порошковое напыление внутри и снаружи, оцинкованные ножки регулируются бесступенчато в диапазоне от 0 до 20 см. Бачок UP100 толщиной 12 см защищен от конденсата, подвод воды задний и верхний, подключение без инструментов.
⑥ Vitra Normus

Рамная конструкция с центральным расположением ножек. Унитаз в комплекте, смыв механический, двухрежимный. Поставляется с полным набором крепежа, сделано в Турции. Бюджетная модель.
⑦ Cersanit Link Pro

Поставляется с безободковым унитазом Carina CleanOn и стеклянной панелью смыва Blick. Подключение воды предусмотрено с боку и сзади, смыв механический, двухрежимный. Сделано в Польше.
⑧ Ideal Standard Connect

Инсталляция класса премиум с фарфоровым унитазом овальной формы. Модуль отличается компактностью, ширина всего 35 см.
⑨ Cersanit Vector

Особенность – компактная рама шириной 39,5 см. Поставляется с округлым унитазом Delfi, имеющим защиту от брызг. Сиденье и крышка из термопласта крепятся хромированными петлями из нержавеющей стали, оснащены микролифтом.
⑩ AM PM Bliss L

Самая дорогая конструкция топа ценой около 30 тыс. руб. Оснащается компактной фарфоровой чашей с особо гладкой поверхностью и стальным креплением сиденья и крышки. Механическая система двойного смыва комплектуется глянцевой кнопкой. Производитель дает 10 лет гарантии на эту инсталляцию.
Из блочных инсталляций стоит отметить Alcaplast a100/1000 Alcamodul, это самая бюджетная инсталляция с опорой на стену. Бачок изолирован от конденсата полистиролом, что упрощает замуровывание. Консоль высокой жесткости выдерживает стандартную нагрузку 400 кг. Допускается использование любых кнопок Alcaplast, набор включает необходимый крепеж.

Подвесные унитазы в интерьере
Установке чаши на угловую инсталляцию есть альтернатива. Фирма Vitra выпускает подвесную модель, адаптированную для размещения в углу, которая монтируется на пристенную раму.
Унитаз Vitra, коллекция Espace.
Классические формы по-прежнему востребованы, о чем свидетельствует популярность унитазов Roca Mateo.
Подвесная чаша Roca Mateo, санфаянс.
Прочно укоренились в интерьрах прямоугольные модели.
Подвесной унитаз без ободка Vitra T4.
Сферическая подвесная чаша соответствует канонам фэн-шуя, да и просто красиво смотрится.
Villeroy & Boch, коллекция Pure Stone.
Благодаря оригинальному дизайну некоторые унитазы становятся не просто сантехническими приборами, а полноправными предметами интерьера.
Унитаз и биде ArtCeram Blend.
Необходимость сооружения фальшстены отпадает с модулями Geberit Monolith. Самонесущая конструкция закрыта стеклянным фасадом, сверху и по бокам обшита алюминием, предлагается в пяти цветах. Смыв активируется сенсором. Имеется светодиодная подсветка с датчиком освещенности, система очистки воздуха с угольным фильтром и почти бесшумным вентилятором. Обе опции включаются автоматически при появлении человека вблизи унитаза.
Модуль Geberit Monolith с чашей.
Почему цены такие разные
Отчего так отличаются цифры на ценниках инсталляций? Разброс возникает не только из-за неодинаковой престижности брендов. На стоимость, в числе прочего, влияет толщина стенок бачка, насколько качественный материал использован. Имеют большое значение характеристики рамы – прочность, готовность к облицовке, возможность регулировки высоты установки унитаза. Качество арматуры вносит свою лепту в удорожание, также серьезен вклад опций, облегчающих монтаж, повышающих его точность. Продвинутые модели оснащаются системой очистки воздуха.
Подбирать инсталляцию проще, определив приоритеты и здраво оценив необходимость некоторых преимуществ. Например, все модули выдерживают нагрузку 400 кг, а некоторые производители заявляют о повышенной прочности рамы. Запас тут необходим, но вряд ли на сиденье вашего унитаза опустится объект весом полтонны. Однако если встает дилемма, на унитазе сэкономить или на инсталляции, предпочтение отдается тому, что останется по ту сторону фальшстены.
ТОП-7 лучших инсталляций для унитаза: системы смыва, виды, какую выбрать, отзывы
Инсталляция является специальной конструкцией, которая предназначена для установки техники подвесного типа. Чаще всего она сделана из стали высокой прочности и качества. Инсталляция быстро вытеснила из обихода стандартный унитаз, особенно если речь идет об общественных заведениях. С ее помощью легко спрятать коммуникацию, благодаря чему в ванной комнате будет больше свободного места. В данной статье мы подробнее поговорим про лучшие модели, их сильные и слабые стороны, узнаем, как правильно выбрать в магазине и установить дома.


В настоящий момент существует 2 вида инсталляций:
- Рамная. Данная конструкция полностью соответствует своему названию. Все элементы прибора соединены в одну конструкцию посредством использования специальной стальной рамы и шпилек. Унитаз и бачок крепятся к ней вместе со сливной системой. Фиксирование осуществляется в четырех точках: 2 на стене и 2 на полу.
- Блочная конструкция предполагает установку исключительно на надежные и устойчивые стены. Сборка такой конструкции производится в специальной закрывающейся нише, подготовленной заранее. Крепление производится только на основания с повышенной прочностью.
ТОП-7 лучших инсталляций для унитаза
Мы проанализировали большое число инсталляций и включили в наш рейтинг лучшие и качественные варианты:
- GEBERIT Duofix;
- TECE 9300000;
- Grohe Rapid SL 38772001;
- GEBERIT DuofixBasic;
- viega Eco Plus;
- Ideal STANDARD W3710AA;
- Villeroy & Boch ViConnect 92246100.
Предлагаем приступить к более подробному изучению всех перечисленных выше позиций.
GEBERIT Duofix

Представляет собой готовое решение, состоящие из унитаза и инсталляции. Благодаря данной модели любая туалетная комната будет казаться намного просторнее, поскольку всевозможные коммуникации будут спрятаны в стену. Пользователь будет видеть только панель из пластика с двумя управляющими сливными клавишами.
| Высота | 112 см |
| Габариты | 53х36х34 см |
| Механизм слива | пневматическая кнопка |
| Материал конструкции | фарфор |
| Направление выпуска | горизонтальное |
| Тип унитаза | подвесной, готовое решение |
Цена: от 35 000 до 40 000 рублей.
Плюсы
- предусмотрена функция антивсплеска;
- кнопка слива пневматического типа;
- объем бачка составляет 3-5 литров;
- удобный горизонтальный выпуск в стену;
- простое и понятное управление.
Минусы
- довольно сложная установка.
Купили инсталляцию с целью домашней установки. Совсем недавно узнала о данной конструкции и решила установить в загородном доме, поскольку это красиво выглядит и занимает мало места. В установке воспользовалась услугой мастера, поэтому ничего не могу сказать по поводу сложности монтажа. Использование крайне простое. Полностью довольна покупкой и своим решением!
TECE 9300000

У представленной инсталляции есть специальное отверстие в раме, которое поддается легкому интегрированию в систему профильного типа, деревянные и металлические конструкции. Модуль способен выдерживать нагрузку вплоть до 400 килограмм. Высота всех опор поддается строгой регулировке не более 200 миллиметров.
| Габариты конструкции | 50х60х112 см |
| Высота и глубина монтажа | 112х18 см |
| Объем смывного бачка | 10 л |
| Страна производителя | Германия |
| Метод крепления | капельная система, пол |
Цена: от 12 000 до 14 000 рублей.
Плюсы
- допускается дополнительное подключение системы отведения воздуха в вентканал;
- легко устанавливается в конструкции различного типа;
- максимальная нагрузка составляет 400 кг;
- допускается самостоятельное регулирование высоты опор.
Минусы
- прокладка шумоизоляционного типа не входит в комплект.
Муж быстро справился с установкой данного устройства. Мне понравилось минимальное занимаемое место в комнате. Раньше унитаз доставлял много неудобств во время уборки, но сейчас такая проблема давно уже не возникает.
Grohe Rapid SL 38772001

Следующее место рейтинга занимает готовое решение для любой современной ванной комнаты. Комплект имеет универсальный дизайн, благодаря чему отлично впишется в любой интерьер. Коммуникации будут надежно спрятаны от человеческого глаза, благодаря чему процесс уборки в помещении не будет создавать весомых трудностей.
| Размер конструкции | 56х36.5х35 см |
| Механизм слива | пневматическая кнопка |
| Расстояние между осями | 18 см |
| Цвет | белый |
| Объем бачка | 3-6 л |
Цена: от 25 000 до 30 000 рублей.
Плюсы
- надежная рама из нержавеющей стали отличается повышенной прочностью;
- пневматическое управление заключается в двух кнопках;
- чаша слива легко поддается очистке и долгое время сохраняет свой первоначальный вид;
- сиденье изготовлено из дюропласта, обладающего повышенной устойчивостью к износу.
Минусы
- белый цвет конструкции привлекает на себя загрязнения.
Решили с женой купить инсталляцию для установки унитаза. Недавно узнали по поводу такого способа установки и внимательно изучили его. Нам понравились преимущества данной установки, поэтому уже через несколько дней мы купили описанную выше модель. В использовании она не доставляет никакого дискомфорта.
GEBERIT DuofixBasic

Представленная система инсталляции позволяет расположить унитаз в разных точках пространства, самой популярной из которых является монтаж в стене. Система позволяет аккуратно скрыть подводимые коммуникации и хорошо сэкономить пространство в компактной ванной комнате.
| Габариты | 500х1120х120 мм |
| Установка | скрытая |
| Максимальная нагрузка | 400 кг |
Цена: от 10 000 до 12 000 рублей.
Плюсы
- бачок наделен надежной герметизацией от попадания конденсата (толщина 12 мм);
- большой объем смывной воды поддается настройке;
- воду можно подводить сзади или сверху;
- подводка легко присоединяется без дополнительных инструментов;
- двойной смыв;
- работает с использованием технологии бесшумного типа;
- надежные ножки оцинкованного типа.
Минусы
- не обнаружено в ходе тестирования.
Производитель действительно постарался над созданием своей конструкции. Самостоятельно справился с установкой, предварительно изучив инструкцию. Монтаж довольно простой и понятный. В использовании не постигли никакие трудности, что является большим плюсом. Материалы конструкции довольно качественные, поэтому можно быть на 100 процентов уверенным в длительности службы инсталляции.
Viega Eco Plus

Главной отличительной особенностью инсталляции считается необычная конструкция. Она способна адаптироваться под использование людьми с ограниченными возможностями. Главная рама изготовлена из прочной стали с напылением порошкового типа. Допускается возможность самостоятельного регулирования высоты. Смывной бак оборудован вентилем углового типа, обеспечивающим подключение воды.
| Размер | 49х20х113 см |
| Страна производителя | Германия |
| Монтажная глубина и высота | 20-113 см |
Цена: от 14 000 до 16 000 рублей.
Плюсы
- большой объем смывного бачка (6-9 литров);
- есть две кнопки слива;
- качественная сборка от надежного производителя из Германии.
Минусы
- кнопки могут заедать после некоторого времени использования.
Большим плюсом тут могу отметить вместительный сливной бачок и удобные кнопки слива. Краска с них не слезает, а поверхность не царапается, благодаря чему они прослужат долгое время без смены своего первоначального вида.
Ideal STANDARD W3710AA

Следующее место рейтинга занимает довольно узкая инсталляция, оборудованная бачком монтажа скрытого типа. Есть хромированная клавиша с двойным сливом с фирменным логотипом. Модель порадует любого покупателя своей простой установкой и качественной сборкой.
| Способ крепления | пол, стена |
| Монтажная высота | 110-130 см |
| Максимальная нагрузка | 400 кг |
| Объем бака | 6-3 л |
| Расстояние между болтами | 18-23 см |
Цена: от 9 000 до 12 000 рублей.
Плюсы
- простое механическое управление бачком;
- есть специальное покрытие против появления конденсата;
- конструкция имеет стандартный цвет – глянцевый хром;
- есть два режима смыва: большой и малый.
Минусы
- кнопка большого слива быстро стирается.
Простая конструкция и управление стали главными параметрами выбора для меня. Конструкция полностью устроила по всем требованиям, а еще порадовала качественной сборкой, за что стоит сказать большое спасибо производителю. Гарантирует стабильную и долгую работу унитаза независимо от нагрузок.
Villeroy & Boch ViConnect 92246100
У данной модели диапазон регулировки ножек варьируется от 0 до 200 миллиметров. Регулирование глубины элемента составляет 135-205 мм и включает в работу пару настенных держателей. Отличается качественным, устойчивым к механическим повреждениям покрытием кнопок слива.
| Ширина и глубина | 525х135 мм |
| Вес | 14 кг |
| Габариты | 52х112х20 см |
Цена: от 12 000 до 14 000 рублей.
Плюсы
- предполагает 4 точки крепления;
- есть защита для смывной трубы;
- в комплекте предусмотрена удобная конструкция по монтажу;
- большой объем сливного бака (7.5 л).
Минусы
- установка требует наличие опыта у пользователя.
Купила год назад. Установку производили специалисты, поскольку сам бы с ней справился, но качество было бы намного хуже, а она оказывает прямое влияние на срок службы. Отличный материал покрытия кнопок. Они всегда остаются в первоначальном состоянии, то есть не портятся, совсем нет царапин. Большой бак со сливной водой позволяет сразу очистить все загрязнения и на ждать долго времени для набора новой партии.
Сравнение моделей
Чтобы вам было легче сравнить описанные ранее модели, мы решили организовать все их главные характеристики в одну таблицу. Так вы сможете выбрать понравившиеся инсталляции и сравнить их между собой с целью выявления лучшего варианта покупки.
| Название модели | Габариты (см) | Вместимость смывного бачка (л) | Высота монтажа (см) | Стоимость (рублей) |
| GEBERIT Duofix | 53х36х34 | 6-10 | 112 | 35 000 – 40 000 |
| TECE 9300000 | 50х60х112 | 10 | 110-120 | 12 000 – 14 000 |
| Grohe Rapid SL 38772001 | 56х36.5х35 | 3-6 л | 110 | 25 000 – 30 000 |
| GEBERIT DuofixBasic | 50х112х12 | 3-6 | 112 | 10 000 – 12 000 |
| Viega Eco Plus | 49х20х113 | 10 | 113 | 14 000 – 16 000 |
| Ideal STANDARD W3710AA | 52х22х100 | 6-3 | 110-130 | 9 000 – 12 000 |
| Villeroy & Boch ViConnect 92246100 | 52х112х20 | 10 | 112 | 12 000 – 14 000 |
Как установить

Чтобы провести установку инсталляции самостоятельно, надо использовать крепежные элементы, которые входят в комплектацию, либо купить их самостоятельно. Рекомендуется брать их с запасом, поскольку чаще всего возникает проблема нехватки болтов и крепежей. Они обязательно должны быть прочными и качественными, поскольку инсталляция часто подвержена высоким нагрузкам.
Любая модель инсталляции имеет крепления, позволяющие расположить ее в горизонтальной и вертикальной плоскостях. Нужно заранее нанести отметки для предполагаемой установки и проделать отверстия. Посредством использования болтов и гаек регулирующего типа корпус инсталляции устанавливается и надежно фиксируется.
Главное в этом деле – правильно задать положение в пространстве с помощью соответствующего крепежа, который отвечает за горизонтальную либо вертикальную ориентацию. Чтобы правильно выставить корпус изделия, нужно воспользоваться строительным уровнем. Отрегулировать горизонтальную часть конструкции можно с помощью ножек несущей рамы. Они предполагают фиксирование в конкретном положении на необходимой высоте. Чтобы отрегулировать корпус по вертикали, нужно выполнить подгонку анкера, а после надежно его законтрогаить.
Занимаясь монтажом конструкции, следует соблюдать повышенную точность и внимательность, чтобы обеспечить надежную фиксацию и дальнейшее безопасное использование. От качественной установки зависит устойчивость устройства во время нагрузок.
Советы по выбору

Сделать правильный выбор и не пожалеть о нем через некоторое время использования помогут несколько советов от опытных покупателей:
- Первым делом следует ознакомиться с составом конструкции. Чаще всего модели крепятся на стену, но бывают и такие, которые имеют опору на пол.
- Чтобы не столкнуться в дальнейшем со сложностями в установке, нужно сразу учесть все особенности в подводе коммуникаций.
- Убедитесь, удобно ли будет обслуживать сантехнику через специальное рабочее окошко.
- В настоящее время появились уже бесконтактные сливные кнопки, но самыми надежными и функциональными по прежнему считается двухрежимный вариант.
- С целью экономии средств лучше сразу выбирать комплект, чем покупать каждый элемент отдельно.
- Перед покупкой следует ознакомиться с отзывами покупателей, поскольку они не будут умалчивать о трудностях и недостатках, как это делает производитель.
6 лучших инсталляций для унитазов
Чтобы эстетично закрепить унитаз, без зигзагообразной трубы в полу и громоздкого бочка сзади, используют сантехнические инсталляции. Это небольшая металлоконструкция с резервуаром для воды и приемной горловиной, от которой можно производить подключение к сливным коммуникациям. Все изделие размещается за фальшь стеной, через которую проходят мощные шпильки для фиксации унитаза в подвесном состоянии. Это исключает напольное размещение сантехнических конструкций, что помогает лучше поддерживать чистоту в подобных помещениях. Но инсталляции для унитазов бывают разной конструкции и особенностей, хорошо подходящих под одни монтажные условия, и делающие приспособление абсолютно неприменимым в других ситуациях. Поскольку стоят они не дешево, необходимо знать такие отличия. Чтобы помочь покупателю понять какую металлоконструкцию приобрести для каждого конкретного случая, написана эта статья.

Инсталляцию для унитаза какой фирмы выбрать
Этот рынок делят различные компании, которые борются за покупателей своеобразными моделями конструкций и практическими приспособлениями в сантехнических изделиях.
Самыми известными представителями сегмента являются:
Компания с логотипом дельфина на всей своей продукции относится к польскому бренду, являющемуся Акционерным Обществом Cersanit. Его деятельность началась в 1998 году, и основной спецификацией служит керамическая продукция и комплектующие по ее установке.
Grohe – это более известная корпорация со штаб-квартирой в Дюссельдорфе, которая впервые появилась на рынке сантехники еще в 1936 году. Немецкое качество проявляется в высокой точности и надежной работе запорной арматуры, смесителей и других аксессуаров. Продукция разрабатывается не только для частных нужд розничных покупателей, но и с целью коммерческого применения для огромных строительных компаний. На мировом рынке сантехники эта фирма представляет 8% всей имеющейся продукции.
Geberit берет свое начало в Швейцарии и уже более 100 лет внедряет новые технологии в смывочные системы. Сегодня компания имеет 17 производств, размещенных в Германии, Италии, Швейцарии, Австрии, США, Китае и Словении.
Vidima и AlcaPlast — это болгарская и чешская компании, которые популярны благодаря доступным ценам и интересному ассортименту сантехнической продукции.
Лучшие инсталляции для подвесных унитазов с напольной нагрузкой
Хотя все инсталляции крепятся к стене и предназначены для фиксации подвесных унитазов, сама металлоконструкция может различаться по концентрации степени нагрузки. Поскольку необходимо удерживать вес набранного бачка и прикрученного унитаза, а вместе с ним еще и человека, то чаще всего используют инсталляции с пристенной установкой, которые большую часть веса переносят благодаря креплению к полу. Такие модели отличаются более толстыми ножками и мощной рамой. Вот лучшие варианты по отзывам потребителей.
Cersanit Delfi S-Set-Delfi/Leon/Cg-w – простая и прочная

Эта инсталляция отличается наличием всего необходимого для быстрой установки подвесного сантехнического устройства. Рама имеет общую прямоугольную форму и одну поперечину в месте фиксации унитаза. Для крепления к стене предусмотрены две шпильки вверху и одна по центру конструкции. Ножки регулируются по высоте выездным движением и стопорятся зажимами.
В комплекте сразу идет унитаз и кнопка слива на две фазы опустошения емкости: полную и частичную. К модели прилагается сиденье и круг. Предусмотрен переходник с горловины унитаза (80 мм) на подключение к канализации (100 мм). Рама отличается не очень большой шириной в 350 мм, что позволяет установить ее практически в любую нишу. Для монтажа ничего не требуется докупать.
Достоинства:
- дешевая;
- все переходники в комплекте;
- узкая рама;
- большой запас регулировки по высоте;
- унитаз в комплекте.
Недостатки:
- кнопка слива со временем разбалтывается и блокирует нажатие;
- минимальная высота расположения сиденья – 500 мм от пола;
- мало витков резьбы на шпильках;
- сиденье плохо подходит по форме.
Geberit Duofix 111.300.00.5 – для тяжелых людей

Швейцарские разработчики предусмотрели инсталляцию и для с людей с крупной комплекцией. Мощная рама сварена из толстого профиля, где стойки являются очень прочными. Кроме верхней и нижней перемычек, предусмотрена усиленная вставка на уровне крепления унитаза, выполненная из широкой прямоугольной трубы. Выезжающие ножки обработаны цинком для сопротивления коррозии и снабжены широкими упорочными пластинами с монтажными отверстиями. Это позволяет выдерживать вес пользователя до 150 кг.
Модель снабжена бачком, который спускает три или шесть литров воды в зависимости от нажатой части клавиши. В комплекте идет колено смыва и трубка для подвода воды. Рама покрыта порошковой краской и имеет 50 мм в ширину и 112 мм в высоту.
Ее можно установить как перед глухой стеной и закрыть гипсокартоном, так и за несущей опорой. Допускается монтаж между тонкими перегородками, потому что основная нагрузка приходится на напольные шпильки, составляющие в длину 200 мм.
Достоинства:
- гарантия 10 лет на сливное устройство;
- цельный бачок (без швов);
- усиленная рама для больших нагрузок;
- качественная сборка;
- простая установка;
- возможен монтаж в углу.
Недостатки:
- маленький выбор кнопок;
- сложно обслуживать, если потечет;
- высота рамы 112 см не везде помещается в ниши, под полки.
Grohe Rap >
Немецкие разработчики смогли совместить прочную конструкцию с большими возможностями по установке. Профильная труба надежно удерживает бачок с вместимостью воды на 9 литров, унитаз и вес среднего пользователя.
Особенностью модели является ее универсальность в подключении. Подвод воды можно осуществить с любой стороны и сзади. Конструкция позволяет одиночное и рядное применение, что удобно для офисных туалетов и Торговых Центров.
Слив может осуществляться тремя способами: короткий (старт/стоп), объемный и непрерывный для чистки. У изделия большие возможности и по регулировке глубины подключения, расстоянию между рамой и унитазом, установкой высоты. Кроме кнопки и бачка предоставляется накладная декоративная панель и окошко для обслуживания. В комплекте идет прокладка, которая изолирует звук набирающегося бачка.
Достоинства:
- надежная металлоконструкция;
- широкие возможности подключения;
- бесшумный набор;
- экономный расход воды;
- рама с порошковой покраской;
- пневмокнопка в комплекте;
- изоляция от конденсирования влаги.
Недостатки:
- маленькое окно для обслуживания;
- хромированное покрытие на кнопке со временем облезет.
Wisa 8050.435051 – все включено

Этот продукт от нидерландских разработчиков сразу имеет все необходимое для оборудования санузла. В дорогой комплект уже входит унитаз, рама инсталляции, бачок, кнопка смыва и все коммуникации. Производитель приложил к изделию две прокладки: для шумоизоляции между унитазом и стенным перекрытием, а вторую для декоративного закрытия служебного окошка.
Рама инсталляции отличается узкими габаритами – 380 мм, что удобно для размещения в стандартных нишах под трубы. Это поможет сэкономить полезное пространство в ванной комнате и минимально выдвигать фальшивую стену вглубь помещения.
Комплект снабжен бачком на 6 литров. Керамический унитаз уже включен в стоимость набора и имеет габариты 530х359х445 мм. На все предоставляется гарантия до 10 лет.
Достоинства:
- унитаз в комплекте;
- длительная гарантия;
- узкая рама;
- подходит под любые габариты;
- качественная сборка;
- хромированная кнопка смыва;
- равномерный слив по всей окружности.
Недостатки:
- тяжелая конструкция;
- сложно найти запчасти (мембрану);
- прокладка между стыком и унитазом вылезет наружу.
Лучшие инсталляции для подвесных унитазов с настенной нагрузкой
Когда за унитазом расположена капитальная стена, то можно всю нагрузку расположить на ней. Для этого инсталляция крепится большими анкерами к вертикальной плоскости и может не иметь вообще, или, лишь в качестве тоненьких дополнений, упоры в пол. Такие модели дешевле и занимают меньше места, что позволяет установить их практически в любой квартире. Вот лучшие изделия такого рода.
AlcaPlast A100/1000 Alcamodul – самый экономный вариант для квартиры

Этот продукт от чешских разработчиков является одним из самых доступных по цене и компактным по габаритам, чтобы легко вписаться в любую ограниченную площадь. Модель отличается полным отсутствием напольного крепления. Вся нагрузка (вес бочка, унитаза и пользователя) будет приходиться на стену, поэтому крепить конструкцию можно только к кирпичной перегородке, которая достаточно толстая (200 мм и более).
Металлоконструкция имеет небольшой уголок внизу с отводами под крепление. Смывной бачок в верхней части снабжен дополнительными петлями под монтажные шпильки. Унитаз фиксируется к нижнему уголку через фальшивую стену.
В комплекте идет небольшое колено-переходник для подключения к канализации. На бачке предусмотрена овальная кнопка с вертикальным делением на большой и малый слив.
Достоинства:
- низкая стоимость;
- простая установка;
- двойной слив;
- компактные размеры с максимальной длиной в 105 см;
- большие возможности по регулировки высоты из-за отсутствия напольного крепления.
Недостатки:
- подойдет только для фиксации в несущие стены;
- не для тяжелых людей.
Как выбрать и установить инсталляцию для унитаза
Наше представление о «хорошем ремонте в ванной и туалете» меняются очень стремительно. Еще несколкьо лет назад выясняли какой из унитазов лучше — компакт или с отдельным бачком, сегодня — устанавливают подвесные унитазы и другую сантехнику и спорят, какая инсталляция для унитаза лучше.
Что такое инсталляция для унитаза и какие они бывают
В последнее время все чаще устанавливают подвесные унитазы и биде. Конструкция, на которой они смонтированы и называется инсталляцией. Кроме веса сантехнической чаши, инсталляция удерживает также канализационные и водопроводные вводы, а некоторые модели еще и бачок для воды. Бачок сделан из полимера, доступ к нему ограничен, так как он закрывается потом плиткой или другой наружной отделкой. После монтажа возможна только регулировка с доступом через кнопку слива. Именно по этой причине лучше выбирать сантехнику этого типа хорошего качества — при проблемах придется все переделывать — сбивать отделку, менять бачок, потом все по-новой делать, а это далеко не дешево.
Есть инсталляции двух видов: блочные и рамные. Блочные иначе можно назвать приставными — они крепятся к капитальной стене (на фото ниже). То есть для их монтажа требуется стена с достаточной несущей способностью.

Блочная инсталляция для унитаза или биде крепится к прочной стене
Рамные инсталляции крепиться могут к полу и к стене, могут иметь только две точки крепления к полу. Отличаются тем, что не требуют наличия надежной стены — рама у них более массивная и обязательно упирается в пол. Рамная инсталляция для унитаза может устанавливаться даже в гипсокартонной стене.

Рамная инсталляция для унитаза встраивается в перегородку, но стоит самостоятельно
Независимо от типа процесс монтажа инсталляции для унитаза — дело грязное, так что работы надо начинать до финишной отделки стен в ванной или туалете. Рамная инсталляция для унитаза устанавливается вообще на стадии создания перегородки или монтируется в подготовленную нишу.
На что обратить внимание при выборе
Инсталляции под унитаз продаются как в комплекте с чашей, так и отдельно. Проще, естественно, купить все в комплекте. Тогда все размеры точно будут совпадать. Если чаша уже имеется, необходимо будет смотреть на габариты рамы и расстояние между крепежными элементами — оно должно совпадать с монтажными отверстиями в унитазе.
Очень полезно, если рама имеет возможность регулировки по высоте — можно выставить чашу на нужный именно вам уровень. Обратите внимание также на тип окраски. Лучший вариант — порошковая окраска. Она надежна, создает жесткую долговечную пленку, которая хорошо держится на металле. Все остальные типы краски хуже держаться.

Размеры инсталляции Grohe Rapid Sl (Германия)
При выборе инсталляции для унитаза стоит обратить внимание на комплектацию. Обычно вместе с рамой идут элементы крепления — для подвески унитаза, арматура для фиксации канализационных и водопроводных труб. Некоторые фирмы в базовую комплектацию также включают бачок и кнопку слива. Слив, кстати, может быть двухрежимным. Он более экономный, так как при нажатии большой кнопки сливается 6-9 литров, малой — всего 3-4 литра воды. Хорошо если слив регулируемый — объем спускаемой воды можно подстроить под конкретную форму унитаза.
Какой из типов инсталляций под унитаз и биде лучше? Более надежной считается рамная конструкция — в ней обычно используются более толстый металл, но и стоит она дороже. В любом случае, при выборе рамы для подвесного унитаза обращайте внимание на прочность конструкции — она не должна шататься, ее элементы не должны прогибаться. Осмотрите сварные швы и качество окраски — не должно быть даже небольших огрехов.
И немного о производителях. Лучшими считаются инсталляции для унитаза произведенные в Германии и Италии. Но их сантехника дорогая. Не хуже качеством оборудование для ванных комнат и туалетов делают в Чехии и Болгарии, а ценовой диапазон на их изделия — средний. Наиболее дешевые инсталляции и подвесные унитазы — китайские, но с ними связываться рискованно — могут работать нормально, а могут быстро выйти из строя.
Установка инсталляции унитаза
Монтаж начинается после того, как выровняли пол. Если выбран блочный тип инсталляции, то выровнены должны быть и стены. Как уже говорили, монтаж блочной инсталляции возможен только на стену с хорошей несущей способностью. Обычно это несущие стены, так как обычные перегородки могут обвалиться.
Прежде всего необходимо определиться с местом установки унитаза. В зависимости от типа инсталляции понадобиться крепить ее к полу или к стене. К предполагаемому месту установки необходимо подвести канализационные трубы и воду. Патрубки этих систем должны располагаться в непосредственной близости от выбранного места монтажа.
Далее речь пойдет об установке инсталляции для сантехники рамного типа.
Закрепляем раму к полу
Потом раму выставляем на то место, где она должна стоять, проверяем вертикальность, горизонтальность. Затем, карандашом или маркером, делаем отметки в местах крепления — в раме есть отверстия.

Выставляют раму, делают отметки под крепеж
Отодвинув раму по отметкам сверлим отверстия — под размер крепежных элементов. При установке в бетон используют обычно дюбеля со шляпками под шестигранный ключ. После того как отверстия сделаны, раму ставят на место, вставляют и закручивают дюбеля.
Выставляем требуемую высоту установки чаши унитаза
Большинство рам инсталляции для унитаза имеют регулируемую высоту. При выборе высота считается от уровня чистового пола — фактически от уровня уложенного напольного покрытия. Если покрытия пока нет, его толщину надо прибавить к требуемой высоте.

Назначение элементов инсталляции под унитаз
Для выставления высоты ножки рамы сделаны регулируемыми. Они фиксируются прижимными болтами. Для регулировки ослабляем эти болты (находятся в нижней части рамы на ножках), выставляем нужную высоту, проверяем горизонтальность верхней планки, после чего снова затягиваем болты.
Крепим к стене
Для крепления к стене в комплекте идут специальные регулируемые болты. Одним концом они крепятся к верхним углам рамы, вторым фиксируются на стене (дюбелями подходящего типа).

Крепеж рамы инсталляции к стене
После чего инсталляция для унитаза выставляется строго вертикально. К боковым стойкам прикладывают строительный уровень, вращая гайку на крепеже изменяют положение рамы относительно стены.

Такой регулируемый крепеж у инсталляций немецкой фирмы Grohe (Грох)
Процедура важная, но несложная. Выставляем все с максимальной точностью, проверяем несколько раз во всех плоскостях. Все должно стоять идеально ровно. После регулировки подвижный язычок на крепеже (на фото он под пальцем) вдавливаем. Он зажимает винт, рама жестко закреплена.

У фирмы Грох есть еще дополнительный фиксатор — пластиковая скоба, которая зажимает резьбу. Ее устанавливаем возле флажка (на фото).
Подключение канализации и воды
Следующий этап — соединение патрубка, закрепленного на раме, с канализационным выводом. В некоторых комплектах есть заводские колена, если их нет придется искать подходящее или ставить гофрированную сантехническую трубу.

Подключение канализации к инсталляции унитаза
Другой вариант — на раме имеется пластиковый хомут, в который вставляется канализационный патрубок (на фото выше). В этом случае четко оговаривается сечение труб.
Холодная вода подключается к патрубку на бачке. Подводить можно любой трубой, но важно сделать соединение надежным. Потому использовать металлопластиковые трубы с пресс-фитингами не рекомендуется — они требуют периодической подтяжки, что в данном случае сделать проблематично. То есть, остается не так много вариантов — полипропилен, медная труба, полиэтиленовые трубы, соединенные пайкой.

Соединение входа водопровода с бачком
Переходник и входа в бачок соединяем гибким шлангом. Его также выбирайте тщательно, лучше в оплетке из хорошей нержавейки. В идеале — купите фирменный шланг.
Отделочные работы
Так как любая инсталляция для унитаза предполагает наличие отделки, весь процесс монтажа делится на две части — до отделки и после. Первая закончена, далее следует отделка.
Обычно установленную раму зашивают гипсокартоном. По инструкции требуется установить два листа. Сначала все габариты переносят на стену, по нанесенному контуру монтируют профиль, а к нему уже крепится листы гипсокартона.

Собранная рама готова к отделке
Перед началом работ необходимо установить на раму коробку под кнопку. На период отделочных работ она будет защищать внутренность от попадания грязи. На листах необходимо вырезать несколько отверстий: под кнопку, вывод канализации и впуск воды от бачка, две шпильки для навешивания чаши унитаза. Для этого вырезанный по размерам лист ставят на место, затем карандашом обводят все необходимые элементы. По начерченному контуру вырезают отверстия. Подготовив два листа, их устанавливают и крепят к смонтированному ранее каркасу. После установки ГКЛ, укладывается на клей плитка.
Установка кнопки и навешивание чаши
После отделки коробка под кнопку обрезается — ее края должны быть на одном уровне с плиткой. Отрезанная крышка обнажает два отверстия под болты. Именно на них будет держаться кнопка для слива.

Обрезаем лишние стенки коробки
Перед монтажом к кнопке подключается шланг (если слив пневматический) или трос (если слив механический). Затем она устанавливается на место и затягивается двумя болтами (по углам в диагональ или как на фото друг напротив друга).

Один из типов механизма слива и болты для крепления кнопки
Установка чаши начинается с монтажа прокладки. Ее насаживают на шпильки. Отверстия под канализацию и спуск воды по кругу обрабатываем сантехническим силиконом.

Установка прокладки и обмазка силиконом
Далее патрубки устанавливаем в унитаз и всю конструкцию навешиваем на шпильки. На торчащие шпильки надеваем резиновые прокладки и затягиваем болты.

Затягиваем болты для закрепления чаши
Можно считать, что подвесной унитаз установлен. Остались последние штрихи — срезаем излишки резиновой подкладки. Делать это можно острым ножом для бумаги. Просто проводим по контуру чаши, срезая лишнее.

Срезаем излишки резины
Для лучшей герметизации стык промазывают силиконом. Уложив полоску, ее сразу ровняют, излишки тут же стирают. Ровнять лучше чем-то гладким и округлым, например, ручкой чайной ложки. На этом все, можно проверять работу.
Видео по установке инсталляций унитаза разных фирм
Как выбрать инсталляцию для унитаза: 5 важных критериев и рейтинг производителей


Сантехника подвесного типа выигрывает у стандартного аналога. Она экономит место в помещении. Отсутствие опоры на пол, вокруг которой накапливается грязь, облегчает уборку. Да и выглядит парящий в воздухе прибор намного привлекательнее. Единственная сложность, с которой сталкивается будущий владелец, заключается в правильном монтаже. Разберемся, как выбрать инсталляцию для подвесного унитаза. Без этого невозможна качественная установка.
Все о выборе инсталляции для подвесного унитаза
Выбор инсталляции для унитаза
Инсталляция — опорная система, на которой закреплен сантехнический прибор. Это механическая конструкция с подвижными элементами, сделанными из металла, резины, пластика, т.п. От ее надежности зависит, как долго прослужит сантехника. Разберем важные критерии выбора.
1. Тип рамы
В продажу поступают устройства двух типов, отличающихся техническими характеристиками и особенностями установки.
Навесная или блочная модель
Это установочная консоль, на ней закреплен бак для воды и вся необходимая обвязка. Компактная система предназначена для монтажа только на капитальную стену. Она ставится в существующую или предварительно подготовленную нишу, соединяется с сантехникой. После монтажа закрывается декоративной панелью или замуровывается. Простая и надежная модель, но использовать ее для перегородок запрещено.

Унитаз с инсталляцией подвесной Ideal STANDARD Connect
Рамная инсталляция
Универсальный вариант, состоящий из металлического каркаса с арматурой, на которую крепится оборудование. Рама дает возможность поставить подвесную сантехнику в любом месте, до которого можно проложить инженерные коммуникации. Это может быть стена под окном, перегородка, угол, т.д. При выборе каркаса важно правильно определить надежность основания и подобрать подходящий для него тип крепления. Их может быть три.
- Напольный. Опора системы приходится на усиленные ножки. Используется для непрочных перегородок из гипсокартона, пеноблоков, т.п.
- Настенный. Каркас закрепляется на стену, вся масса оборудования приходится на нее.
- Комбинированный. Крепление производится в четырех точках в горизонтальной и вертикальной плоскостях.

Для каркасов всех типов предусмотрены регулируемые по высоте ножки. Поэтому есть возможность выбирать любую высоту от пола до сидения. Существуют линейные, двухсторонние, угловые модификации, а также рамы, предназначенные для установки под окном. В ходе монтажа любой модели можно сделать дополнительную полочку или нишу. Цена рамных систем выше, чем блочных.

Унитаз с инсталляцией подвесной Roca
2. Совместимость с сантехническим прибором
Межосевое расстояние креплений унитаза должно совпадать с соответствующими элементами рамы. Существует всего два варианта: 0,18 и 0,23 м. Причем первый самый распространенный. Второй встречается очень редко. Тем не менее, нужно убедиться в совместимости выбранного оборудования.
Обращают внимание на бачок. Объема должно хватать для смывания. Супертонкие каркасы не могут вместить емкость большого объема. В результате количество воды уменьшается, ее может быть недостаточно. Для подвесных систем делают баки из пластика. Нужно убедиться, что материал качественный, а изделие цельнолитое. Есть еще сборные бачки, за счет присутствия швов их срок эксплуатации меньше.

Унитаз с инсталляцией подвесной Grohe
3. Размеры изделия
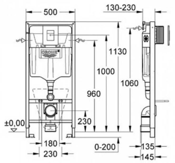
Габариты важны, особенно если место под установку уже выбрано. Разные типы систем отличаются своими размерами. Так, стандартные навесные имеют высоту 1 м, ширину 0,5 м, глубину 0,1-0,15 м. Рамные больше: высота от 0,8 до 1,4 м, ширина 0,5-0,6 м, глубина от 0,15 до 0,3 м. Все крупные производители выпускают нестандартные модификации, предназначенные для определенных условий. Так, в продаже можно найти угловые и низкие каркасы. Последние ставятся под окном или в низкие перегородки. В них обязательно присутствует дополнительная опция, позволяющая размещать кнопку смыва не только фронтально, но и поверх рамной плоскости, чтобы было удобно пользоваться. Для экономии свободного пространства производится компактное оборудование. Его глубина всего 0,8-0,1 м. Вариантов, какой лучше выбрать унитаз с инсталляциейˆ много. Для каждого случая можно подобрать свое решение.

4. Кнопка смыва
Выбрать смывную клавишу не сложно. Сначала определяют тип механизма.
Тип механизма
- С механическим приводом. Функционирует аналогично стандартному унитазному бачку, где толкатель через систему передач активирует спуск воды. Узел предельно прост, но при этом очень надежен.
- С пневматическим приводом. Активация сброса жидкости происходит посредством сжатого воздуха. Он вытесняется из небольшого резервуара, движется по гибкой трубке. Пневмоузлы могут располагаться на расстоянии до 250 см от сантехники.
- Электроника с инфракрасным датчиком. Автоматика запускается при срабатывании детектора на прикосновение к панели или на движение человека у выхода. Удобный, но он же самый дорогой вариант.

Смывная клавиша может идти в комплекте с каркасом. Это будет стандартный элемент без особых изысков. Обычно он белый или хромированный. Можно выбрать клавишу отдельно. В этом случае кнопка будет с привлекательным дизайном. Важно, чтобы она была совместима с основной панелью. Среди клавиш есть сенсорные и антивандальные. Последние предназначены, скорее, для мест общего пользования.

Унитаз с инсталляцией подвесной Santek Нео
Режим смыва
При выборе клавиши обращают внимание на режим смыва.
- Смыв-стоп. Поток воды останавливается при повторном нажатии на кнопку.
- Двойной. Пользователь может выбрать либо полный слив бака, либо экономичный, когда расходуется половина резервуара.
Относительно недавно появились рамки, которые монтируются заподлицо с облицовкой. Это дает возможность установить панель для клавиши на одном уровне с остальной отделкой. Нужно знать, что через отверстие в смывной панели осуществляется доступ к механизму бачка. Если появляется необходимость, его можно отремонтировать или заменить. Поэтому нужно проследить, чтобы размеры технологического отверстия соответствовали габаритам механизма.
5. Дополнительные функции
Хорошим бонусом к раме станет дополнительный функционал, который делает использование оборудования комфортным. Так, для панели смывной кнопки разработана магнитная рамка. Она обеспечивает доступ к внутренней части конструкции. В ней размещается небольшой контейнер, куда закладываются таблетки для дезинфекции воды в баке. Наличие магнитной защелки облегчает доступ к контейнеру.

Унитаз с инсталляцией подвесной Cersanit Delfi + Black
Еще одно функциональное дополнение — очистка воздуха. Реализовывается оно разными способами. Самый простой — отведение от смывного колена установочной системы дополнительного патрубка. Он подводится и подключается к общей вентиляционной системе. Более сложное, но при этом эффективное решение заключается в подключении принудительной вентиляции через сливное отверстие.
Для этого каркас дополнительно комплектуется небольшим вытяжным вентилятором, угольным фильтром и контроллером. При срабатывании датчика контроллер запускает вентилятор, который засасывает загрязненный воздух и подводит его к фильтру. Прошедший через фильтр поток очищается и подается в комнату.



