Как сделать дверной проем
Во время капитального ремонта либо частичного обновления жилья возникает необходимость обустройства нового прохода между помещениями. Изменения конструкции здания — серьезное вмешательство. Требуются специальные навыки и знания, как сделать дверной проем безопасно и в соответствии с правилами.
Виды проемов
Первое, что понадобится — выбрать вид будущего проема, сочетающийся с интерьером помещения.
Перед началом работ необходимо получить разрешение от БТИ на разборку части перегородки.
Стандартные разновидности проемов:
- Прямоугольный — проход П-образной формы, ширина зависит от параметров планируемых дверей. При отсутствии створки потребуется отделка обналичниками, шторами, другими элементами.
- Арочный — в большинстве случаев не предполагает установку дверей. Арка оформляется как правильной, так и произвольной формы. Смежные помещения должны соответствовать по стилю интерьера. Размеры прохода рассчитываются, исходя из пропорций соединенных комнат.
Прямоугольный проход легко трансформируется в арку при помощи сегментов, установленных по периметру отверстия. Встречаются входные конструкции нетипичной формы, которые устанавливаются в гипсокартонных перегородках.
Проем в несущей стене
Определить несущие конструкции можно по техническому плану помещения. Капитальные перекрытия выделяются жирными линиями. При визуальном осмотре основные стены выглядят толще остальных.
Реконструкция перегородок без разрешающих документов облагается штрафными санкциями, требует обязательной переустановки либо замурования конструкции.
Нарушение несущей стены может привести к непоправимым последствиям и полному разрушению здания.
Демонтаж части перекрытия необходимо производить после укрепления конструкции перемычкой.
Проем в межкомнатной перегородке
Сделать дверной проем в ненесущем перекрытии менее проблематично. Все согласования происходят после выполненных работ. Потребуется отобразить изменения на копии квартирного плана и подать заявление на прием скорректированного варианта.
Правила разметки проема
Перед началом демонтажно-строительных работ обязательно нужно удостовериться, что нагрузка на стену после реконструкции соответствует установленным нормам. Каждому типу здания и виду конструкции прописаны отдельные стандарты. Основные правила регламентируются СНиП и ГОСТами.
Стандарты и размеры
Габариты дверной конструкции согласно ГОСТу:
- Высота проемов установлена в пределах 1,9-2 м.
- Санузел: ширина 0,5-0,6 м, толщина короба — 5-7 см.
- Кухня: ширина панели — 0,7 м, коробка — 7 см.
- Ширина прохода в гостиную с двумя створками — 120 см, толщина конструкции — 0,7-2 м.
- Стандартная ширина межкомнатной конструкции — 0,7-0,8 м, входной — 0,9-1 м;
- Максимально допустимый размер расширения прохода — 2,1 м.
Толщина блоков серийного производства не превышает 128 мм. Чтобы подогнать коробку по толщине простенка, используют доборы — специальные планки, дополняющие короб при недостаточной ширине конструкции.
Для правильного вычисления ширины прохода необходимо суммировать замеры полотна, двух вертикальных стоек, величину швов и притворных зазоров. К полученной цифре прибавляется 1-2 см на погрешности.
Расчет высоты осуществляется с учетом порога. При его наличии к замерам створки добавляют 10 см, в случае отсутствия — 6 см.
Набор необходимого инвентаря
Список инструментов, которые могут понадобиться, чтобы сделать дверной проем в стене:
- Кувалда — основной инструмент для пробивания перегородок.
- Перфоратором просверливаются отметки для обозначения разметки будущего отверстия.
- Угловое шлифовальное приспособление, оснащенное кругом для разрезания камней. При помощи такой машинки формируются аккуратные края отверстия в бетонных, кирпичных и деревянных перекрытиях. Работы выполняются по обе стороны простенка.
- Для зачистки швов кирпичной кладки применяется зубило.
- Резак с алмазным диском предназначен для одностороннего прорезания перекрытий толщиной до 400 мм. Усовершенствованные модели оснащены встроенным пылесосом с водой, предотвращающим распространение пыли по периметру.
Рекомендуется иметь запас мешков для строительных отходов, специальной одежды, перчаток, респираторов, приобрести защитные очки.
Технология вырезания проема
Порядок действий зависит от материала, из которого изготовлена перегородка. Первый этап — нанесение разметки.
Для тонких бетонных перегородок достаточно нанесения разметки с одной стороны. Более толстые и кирпичные стены требуют двусторонней разборки с соответствующими отметками. Удостовериться в точности расчетов можно простым методом:
- границы отверстия отображаются на одной поверхности;
- точки по углам просверливаются при помощи бура;
- с обратной стороны точки соединяются, образуя идентичные контуры проема.
При размещении отметок на поверхности перекрытия нужно контролировать вертикальность боковых линий контура.
Демонтаж гипсолитовых перекрытий возможен путем распиливания либо разбивания блоков кувалдой.
Отверстия в сооружениях из пеноблоков создаются алмазной резкой и отбойным молотком, усиливаются стальными уголками.
Отверстие в перегородке из бетона
Если планируется демонтаж больших кусков опорной конструкции, необходимо продумать амортизирующее покрытие на место падения фрагментов.
Следующий шаг — проверка периметра на наличие электропроводки. Площадь планируемого прохода разбивается на участки. Разбор производится поэтапно. Фрагменты поочередно выбиваются из просверленных либо прорезанных секторов. Во многих частях понадобится срезать арматуру.
Для вырезания отверстия в монолитных бетонных блоках не требуется предварительная установка перемычки. В большинстве случаев подобные перегородки обладают средней толщиной. Кирпичные опоры нередко складываются в половину кирпича. Поэтому укрепление осуществляется для готового прохода.
По аналогичной схеме выполняется реконструкция шлакоблочных перекрытий. Сложность работы со шлакоблоком заключается в его структуре. Каждый блок состоит из полых воздушных подушек, разделенных перегородками. Удобнее всего вскрывать полости перфоратором, затем приступать к сбиванию перемычек.
Проем в цельной кирпичной стене
До реконструкции нужно удалить старое покрытие с поверхности кладки. Линия, начинающая дверной проем в кирпичной стене, всегда совпадает с уровнем шва кирпичной кладки. Нельзя разрезать кирпичи пополам. Если высота проема запланирована до точки, находящейся посередине кирпича, следует увеличить длину конструкции до ближайшего шва между кирпичами.
Перед пробиванием отверстия устанавливается поддержка в виде перемычки. Для этого над входом нужно сделать штробы, соответствующие параметрам уголка. Два уголка вкладываются в пазы и закрепляются болтами. После разбора кирпича вертикальные части укрепляются швеллерами либо уголками, свариваются с перемычкой.
Реконструкция гипсокартонных перекрытий
Устройство дверного проема осуществляется на этапе оборудования каркаса конструкции. Перегородка состоит из направляющих элементов, алюминиевых профилей, слоя наполнителя и внешней обшивки — листами гипсокартона.
Перекрытие устанавливается параллельно стене. Верхняя часть прикручивается к потолку при помощи направляющих профилей, стойки монтируются вертикально. Проход формируется между двумя такими блоками. Вход по высоте ограничивается отрезком профиля. Для увеличения жесткости в боковые элементы монтируются деревянные брусья. На завершающей стадии стенки каркаса зашиваются гипсокартоном.
Проем в деревянной стене
Двери обустраиваются сразу после установки сруба либо в полностью построенном здании. Главный инструмент для вырезания отверстия — электрическая или бензопила. Также понадобятся бруски длиной от потолка до пола, приблизительной шириной — 10 см. Заготовки необходимы для укрепления конструкции на время проведения работ. Деревянные перекрытия часто прогибаются при нарушении их целостности. Чтобы деформации не произошло, перекрытие фиксируется брусками с двух сторон вблизи запланированной реконструкции. Стойки стягиваются длинными болтами.
Верхняя часть входа в дом из бревен укрепляется перемычкой. При нанесении контура прохода необходимо оставлять вверху и внизу пятую часть целого бревна.
Чтобы склеенный брус не расслаивался при распиливании, область срезания усиливают временными брусками на гвоздях. В готовое отверстие устанавливаются обсадные коробки, предназначенные для крепления полотен в деревянных строениях.
В каркасных зданиях сначала снимается обшивка с утеплителем. В проход монтируется каркас из бруса. Готовая конструкция зашивается прежней обшивкой.
Укрепление дверного проема
Частичная срезка перегородки, особенно на нижнем уровне многоэтажного здания, требует укрепления проема.
Для укрепления части стены, находящейся над проходом, используются следующие материалы:
- швеллер — металлические рамы в форме буквы «П», принимающие на себя нагрузку впоследствии частичного демонтажа стены;
- уголок — угловые элементы для размещения с двух сторон по краю отверстия, сваренные полосками из металла;
- двутавр — балки Н-образного профиля, изготавливаются из металла, дерева, стеклопластика.
От толщины и высоты оставшегося простенка зависят параметры профиля, подпирающего конструкцию. Также значение имеет ширина проема. Конструкции с широким проемом недостаточно прочные. Для надежного усиления одна горизонтальная перемычка не годится. Нужно закрепить вертикальные участки в связи с постоянным механическим воздействием.
Отверстия кирпичных перегородок усиливают швеллером шириной на 60 см больше прохода. В торцах проема прорезаются окна для крепления перемычки. Если стены толстые, производится двусторонний монтаж швеллеров. Пустое пространство заливается раствором бетона.
Панельные конструкции усиливаются аналогичным способом, применяя швеллер либо двутавр. Вмурованную перемычку соединяют с вертикальными стойками.
В фигурных арках обязательно укрепляют бока обвязками, обеспечивающими равномерное распределение нагрузки на газобетонные блоки. Для верхней перемычки используют гнутый швеллер.
Отделка проема
Существуют разнообразные способы, как сделать отделку проема для межкомнатной двери:
- покрытие из натурального либо искусственного камня;
- обшивка деревом;
- декорирование штукатуркой;
- отделка гипсокартоном.
Перепланировка помещения для установки новой двери возможна своими руками. Нужно учесть нормативы безопасности, собрать необходимый инвентарь, выбрать правильное расположение и дизайн готового прохода
Обустройство дверного проема без двери: примеры отделки на фото
Дверной проем без двери позволяет визуально расширить пространство, скорректировать его зрительную восприимчивость, объединить несколько помещений в единую зону, придать интерьеру легкость, свободу с условно выраженными границами. Чтобы такой проем выглядел завершенным, потребуется отделка различными материалами. Как оформить открытый дверной проем — читайте в нашей статье с фото примерами.

Преимущества
Дверные проемы без двери обладают следующими преимуществами:
- Экономия пространства за счет отсутствия свободного места по траектории открывания дверной створки. Для нормальной работы распашной двери требуется минимум 1 м2 площади, который следует оставить свободным, не загромождая мебелью и другими предметами интерьера;
- Большее количества света, особенно это актуально для смежных помещений, одно из которых не имеет окна либо оснащено маленьким окном. Открытый дверной проем позволит естественному освещению проникнуть в темную комнату;
- Циркуляция воздуха, актуальная для малогабаритных помещений с недостаточным уровнем вентилирования, например, из-за отсутствия окна;
- Объединение пространства за счет двух комнат, оформленных в одном стиле, между которыми появится условное разграничение в виде открытого проема;
- Визуальное расширение пространства при помощи присоединения небольших помещений к основному, например, балкона или лоджии к комнате;
- Зонирование. Подобный эффект используется при разделении одного большого помещения на два меньших, при этом сохраняя свободу и легкость пространства за счет открытого дверного портала;
- Простота в уходе, так как не требуется регулярное протирание створок, стекол внутри них, смазывания запоров и петель;
- Кроме того, стильно оформленный дверной проем без двери позволяет придать помещению оригинальный и неповторимый вид за счет формы, фактуры или оттенка.

Разновидности
Открытые дверные порталы могут иметь классическую прямоугольную форму, мало отличаясь от привычной дверной конструкции, либо выполнены в виде арок всевозможных форм и размеров.
По форме арочный проем может быть:
- Римский (романтический) со сводом в форме половины окружности, по диаметру равной ширине проема;
- Турецкий характеризуется восточным оформлением свода в виде купола;
- Британский считается уменьшенным вариантом римского арочного проема, так как свод выполнен в виде усеченной окружности;
- Эллипсоидный считается более вытянутым аналогом романтического арочного проема;
- Славянский проем отличается плавными скругленными углами классической прямоугольной формы прохода;
- Готический отличается стрельчатой формой свода, верхние края которого тянутся в единую точку;
- Тайский проем имеет форму рассеченной пополам арки, одну из половин которой заменили стеной;
- Фрамуга имеет глухой свод, оформленный витражным, рельефным, матовым, зеркальным стеклом или другим пропускающим свет материалом.
Также встречаются арочные проемы необычных узорчатых форм и полностью круглые порталы.
Варианты оформления
Дверной проем без двери не будет иметь завершенный внешний вид без оформления различными отделочными материалами. Отделка может быть выполнена панелями из пластика, мдф, ДСП, натурального шпона, ламинатом, гипсокартоном, клинкерной или мозаичной плиткой, натуральной древесиной, евровагонкой, обоями, кирпичом, лепниной, штукатуркой, натуральным и искусственным камнем. Кроме того, в продаже имеются уже готовые арки и наличники для оформления проемов.
ПВХ панели
На вопрос: «чем отделать дверной проем?» первыми на ум приходят панели из пластика. Доступная стоимость, разнообразие текстур и цветовых решений, а также гибкость материала позволяет оформить проем любой формы. Простой и легкий монтаж можно выполнить самостоятельно без привлечения специалистов. В продаже имеются уже готовые комплекты для арочных проемов без двери из пластика. Комплект состоит из 4 длинных наличников, предназначенных для крепления на вертикальные части проема, между которыми вставляются 2 доборных планки, и 2 коротких горизонтальных наличников и 1 доборной планки для оформления верхней части проема.

Открытые арочные проемы, оформленные пластиковыми панелями, гармонично вписываются в любой интерьер. Например, пластиковая имитация металла или камня прекрасно впишется в современные стили хай-тек или техно, а панели в мелкий цветочек на пастельном тоне – стильное дополнение в прованс.
Панели МДФ
Наиболее популярной является отделка дверного проема без двери панелями из мдф. Легкие, достаточно гибкие панели весьма просто монтируются своими руками. Имитация натуральной древесины позволяет стильно и недорого оформить портал, за которым в будущем потребуется минимум ухода. Не рекомендуется использовать подобную отделку в помещениях с повышенной влажностью, так как панели деформируются, набирая влагу.

Штукатурка
Качественная, прочная отделка межкомнатных проемов из штукатурки отличается визуальной глубиной и осязаемой фактурой. Уровень пористости и оттенок позволяют штукатуре имитировать натуральный камень, мрамор, текстиль (шелк, бархат и прочее). Структура материала в сочетании с определенными навыками и специализированным инструментом позволяет создавать различные узоры и эффекты на поверхности портала без дверей.

Штукатурка является универсальным отделочным материалом, который прекрасно впишется в любой интерьер. В зависимости от цвета и фактуры оштукатуренный проем может быть как гармоничным продолжением интерьера, так и ярким акцентом внутри него.
Аналогом штукатурки являются отделка межкомнатных проемов жидкими обоями, которые также наносятся на поверхность шпателем и подходят для создания различных узоров. Жидкие обои отличаются от штукатурки более мягкой фактурой и визуальной легкостью. Для поклонников оформления интерьера обоями подойдет отделка проема без дверей виниловыми или флизелиновыми обоями, который может быть как продолжением стены, так и яркой границей входа в помещение. Ниже на фото представлены варианты отделки дверных порталов обоями.

Декоративный камень
Натуральный камень создает роскошную, уютную атмосферу в помещениях, выполненных в стилях лофт, минимализм, этнический, кантри, шале, средиземноморский. Для оформления открытого проема подобным материалом требуется определенная сноровка и опыт, с помощью которого оценивается возможность монтажа достаточно тяжелого материала. Поэтому рекомендуется пригласить специалиста, который не только оценит риски и возможность подобной отделки, но и не испортит дорогостоящий материал.

Бюджетной заменой натуральному камню является искусственный. Малый вес кирпичиков позволяет самостоятельно оформить дверной проход даже на гипсокартоновых стенах. Как отделать проем между комнатами декоративным камнем, можно посмотреть в видео ниже. Там же показано, как придать искусственному камню натуральность при помощи нанесения акрилового лака, который также защищает отделку проема без двери от попадания в поры мелких частиц пыли и грязи.
Клинкерная плитка
Клинкером называют керамическую плитку вытянутой прямоугольной формы, которая выкладывается в «разбег» по типу кирпичной кладки. Выступающие края плитки в каждом втором ряду при оформлении дверного проема не спиливаются, создавая эффект рваного края. Клинкер выполняется не только в виде горизонтальных плиток, но и угловых элементов, позволяющих оформить углы без подготовительных работ по резке и подгонке. Палитра оттенков позволяет подобрать плитку практически в любой интерьер.

Лепнина
Конструкции из лепнины обычно используются в стилях ампир, классика и античный. Проемы без дверей, оформленные колонами по бокам и пилястрами, визуально вытягивают помещение, что особенно актуально для комнат со средними или низкими потолками. Не рекомендуется подобное стилистическое решение в небольших комнатах, так как рельеф и множество мелких элементов попросту «съедят» свободное пространство. Какой должна быть отделка лепниной дверного портала, можно увидеть в фото примерах чуть ниже.

При выборе материала рекомендуется обратить внимание на лепнину из полиуретана, так как она в отличие от гипсовой более легкая, гибкая и прочная. Такая лепнина не боится ударов, возможных при падении и перевозках, не требует особых навыков при сборке.
Текстиль
Бюджетная отделка проемов между комнатами в краткие сроки может быть выполнена из текстиля. Шторы могут быть выполнены из тонкой невесомой материи для малогабаритных помещений либо в виде плотных портьер, гармонично сочетающийся в классических интерьерах. Для комнат без двери с невысокими потолками оптимальным вариантом будут нитяные шторы, которые создадут иллюзию более высокого пространства. Текстиль может как свободно ниспадать складками, так и быть зафиксирован с одного или двух боков при помощи лент, отрезов ткани, цепочек или шпагата.

Главным достоинством такого оформления является возможность в любой момент снять текстиль для замены на другой вариант или стирки.
Интересные варианты оформления
При планировке помещения многие задаются вопросом, как красиво отделать дверной проем? Все большую популярность набирает стильное и практичное оформление прохода без двери, встроенного в зону хранения, занимающую всю площадь стены от пола до потолка. В зависимости от предпочтений владельцев зона хранения оформляется как большая полка для книг, статуэток, фотографий и других приятных мелочей. В спальне стена с полками может заменить полноценный шкаф под одежду.

Небольшой дверной проем, например, между столовой и кухней, гостиной и лоджией, интересно дополняется окнами по бокам, через которые дополнительно проникает солнечный свет, придавая помещению легкость и невесомость. Боковые окна заменяют встроенными нишами с подсветкой, полочками, узкими шкафчиками, декоративными элементами из металла или пластика, на которые крепятся фоторамки, картины, вьющиеся растения.

Любителям природы и натуральных стилей интересным решением для оформления станет живая зеленая рамка или стена изо мха вокруг открытого портала. Встроенная система капельного полива и удобрения дает владельцам такого украшения возможность любоваться натуральной зеленью на протяжении многих лет без приложения каких-либо усилий.
Размеры открытых дверных проемов
Стиль интерьера зависит не только от материалов для отделки открытого дверного прохода, но и от его формы и размера. Так, например, широкий, практически во всю длину стены проем объединяет два помещения, создавая иллюзию свободного, светлого и воздушного пространства. При этом в зависимости от оформления проема объединенное пространство может выглядеть цельным либо иметь условное разграничение.

Прямоугольный проем высотой до потолка позволяет визуально приподнять невысокий потолок, вытягивая помещение. Кроме того, подобная высота проема акцентирует на себе внимание и задает интерьеру определенный ориентир.
Полукруглый или куполообразный арочный проем смягчает пространство, настраивая на расслабление и комфорт. Римская арка прекрасно смотрится как в проеме стены небольшой толщины, так и в качестве небольшого тамбура или коридорчика с потолком, продолжающим контуры прохода. Полукруглая форма свода проема без двери считается наиболее востребованной среди владельцев квартир и домов.

Тайский арочный проем, состоящий из прямого угла с одной стороны и окружности с другой, позволяет создать неповторимый интерьер. Большой холл интересно обыгрывается при обустройстве двух тайских проемов, расположенных прямоугольными углами друг другу и разделенными небольшим простенком. Такая конструкция смотрится как большой полукруг, поделенный пополам.

Оригинальный, неповторимый интерьер создается при помощи фигурного открытого проема. Объемные узоры и завитки в виде застывшей волны, асимметрия, контрастные отделочные материалы и дополнение портала подсветкой, полками, нишами или колонами станут стильным акцентом и ориентиром для всего интерьера.
Как сделать дверной проем в квартире
Устраивая ремонт в квартире, многие люди не просто меняют обои на новые, красят стены, потолок, но также кардинально меняют дизайн помещения, делают его полную или частичную перепланировку.

Структура листа гипсокартона.
Если вы задались именно этой целью, то вопрос о том, как сделать дверной проем из гипсокартона будет для вас актуальным. Почему стоит отдать преимущество дверному проему именно из данного материала?
Все очень просто: гипсокартон — это очень удобный в использовании материал. Отделка гипсокартоном очень удобна и малозатратна. Работать с ним легко, не пыльно, да и сделать это сможет каждый. Работая с гипсокартоном, не требуются какие-то специальные умения и навыки.
Приступаем к работе
Дизайн вашей квартиры подразумевает монтаж гипсокартонного дверного проема? Как правильно сделать металлический каркас для будущей двери? Ведь нужно учитывать абсолютно все моменты, которые, на первый взгляд, могут даже показаться мелкими, и не столь важными. Дверной проем из гипсокартона должен быть сделан таким образом, чтобы в дальнейшем дверь правильно функционировала, а сам проем не подвергся разрушениям.

Виды гипсокартона, область применения и их маркировка по цветам
Допустим, вы решили выровнять стены своей квартиры, используя гипсокартон. Начинать работу нужно с определения точных контуров, к которым в будущем будет производиться монтаж профилей. Это очень важный момент, ведь если профили будут установлены неправильно, стена не получится ровной, соответственно, дверной проем идеально ровным уже не будет, а это очень важно. Решать подобные вопросы и проблемы нужно сразу, иначе потом будет уже поздно. Итак, работа по созданию каркаса выполнена, далее следует обшивка стены гипсокартоном. И лишь тогда, когда дело доходит до дверного проема, возникает вопрос: что делать дальше? От того, как будет выглядеть ваш дверной проем из гипсокартона, зависит эстетический вид вашей квартиры, ее дизайн. Если изначально каркас будет установлен неверно, стены дверного проема не будут строго вертикальными, о правильной и красивой установке наличников придется позабыть. Поэтому, если вы задались целью сделать все идеально, лучше несколько раз отмерить, лишний раз подстраховаться и проверить отвесом положение направляющих профилей как минимум в нескольких точках по всей длине стены.
Проем из гипсокартона

Схема устройства перегородки из гипсокартона с дверным проемом: 1 – вертикальный брус; 2 – горизонтальная распорка; 3 – дверная балка; 4 – потолочный брус; 5 – гипсокартон; 6 – напольный брус.
Сбор и монтаж каркаса дверного проема требует более тщательного внимания. Устанавливать две стойки, которые в итоге будут обрамлять дверной проем, необходимо, конечно же, из расчетов ширины будущей двери, с учетом двух откосов. Также необходимо оставить место между готовой коробкой и дверными откосами. Это пространство в дальнейшем будет заполнено монтажной пеной. Сами производители монтажной пены не рекомендуют оставлять расстояние больше, чем 3 см и меньше 1 см. Следовательно, среднее расстояние равно 1,5 см. Вверху и внизу дверного проема устанавливаются строго горизонтально несущие профили.
Для создания более прочной конструкции дверного проема необходимо отрезать 4 стоечных профиля по высоте равной двери. Подобные расчеты удобнее проводить, конечно же, когда дверь заранее куплена, а проем подготовлен. Каждый из 4-х готовых профилей попарно вставляется в другой, замыкая его и образуя 4 ровных угла. Таким образом, получаются две вертикальные стойки. Готовые стойки так же скрепляются между собой саморезами. Располагая их ровно вертикально, сверху при помощи саморезов и металлических накладок прикрепляем горизонтальную перемычку. Заранее нужно сделать на стойках отметки, учитывая высоту дверной коробки и высоту напольного покрытия. Сбор конструкции должен проходить строго по уровню, во избежание кривизны каркаса.
Готовая коробка вставляется в проем из гипсокартона и закрепляется на нем при помощи длинных шурупов либо болтов. После этого вся поверхность каркаса обшивается гипсокартоном при помощи шуруповерта и металлических саморезов. Далее следует та отделка проема из гипсокартона, которую вы для себя выбрали.
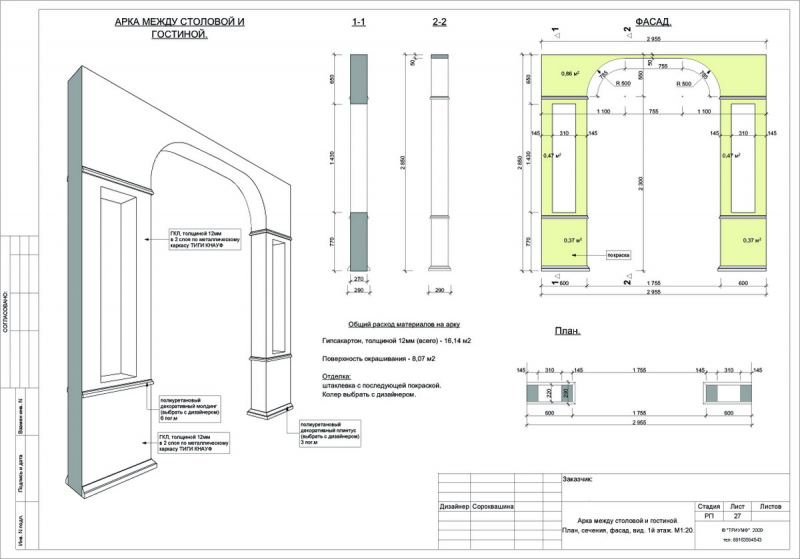
Арка из гипсокартона

Чертеж арки из гипсокартона.
Таким образом, как создавать обыкновенный дверной проем из гипсокартона, нам известно. Это именно те проемы, в которые можно будет вставить готовую дверь. Но сейчас большой популярностью пользуются гипсокартонные арки. Арка используется, как правило, в тех случаях, когда нет необходимости устанавливать дверь. Служит подобная арка как средство разделения комнат. Техника создания и монтаж более сложные, чем в предыдущей, но основные этапы работы остаются неизменными.
Арка может сделать дизайн вашей квартиры неповторимым, интересным и внешне сложным. Монтаж гипсокартонной арки потребует использование таких инструментов, как:
- дрель или перфоратор;
- отвертка либо шуруповерт;
- строительный лобзик;
- строительный или канцелярский нож;
- монтировка.
Материалы, необходимые для создания арки:
- 2 направляющих металлических профиля;
- саморезы по металлу (порядка 100 шт);
- шурупы, дюбели (около 50 шт);
- листы гипсокартона.

Инструменты для работы с гипсокартоном.
Первое, что необходимо сделать — это очень аккуратно демонтировать старую дверь. Делать это нужно так, чтобы стена не подверглась разрушению и не осыпалась. Используя перфоратор, необходимо высверлить в 2 ряда отверстия для укрепления направляющих профилей. Затем при помощи шурупов и дюбелей направляющие крепятся к проему. В итоге должна получиться конструкция, напоминающая букву П. Принцип установки конструкции тот же, что и в первом случае.
Далее отрезаем с помощью ножниц по металлу необходимой длины профиль. Он будет служить как раз изгибом для нашей арки. С периодичностью в 4-6 см необходимо сделать на нем вертикальные насечки, напоминающие вырезанный треугольник. Это те самые места, в которых профиль будет изгибаться. Готовый изогнутый профиль прикрепляем при помощи саморезов и шуруповерта к установленной в дверном проеме п-образной конструкции. Итак, когда верхняя часть нашей арки готова, изгиб сформирован, можно приступать к обшивке готового каркаса гипсокартоном. Используя саморезы, необходимые листы гипсокартона прикручиваются к профилям. Для обшивки изгиба (дуги) отрезается необходимый по ширине и длине лист гипсокартона. Он предварительно смачивается водой. Не стоит бояться, что он потеряет свою форму, ведь после высыхания все свойства к нему снова вернуться, он, как и прежде, станет прочным материалом. Наша арка полностью готова, следующим этапом будет отделка.
Отделка и дизайн может быть какой угодно: вы можете спокойно отштукатурить готовую арку, покрасить ее, и даже облицовать плиткой.
Сделать дверные проемы из гипсокартона оказалось очень легко, экономично и малозатратно по времени. Но результат будет на лицо. Благодаря этим небольшим правилам вы сможете сделать ремонт в вашей квартире интересным, стильным и красивым.
Как сделать новый дверной проем в кирпичной перегородке
![]()

Как сделать новый дверной проем в кирпичной перегородке
Красный кирпич имеет размеры
250х120х65 мм. Поэтому сделать новый проем в стене точно по размеру устанавливаемой дверной коробки + 2-5 см зазор для монтажа можно только одним способом – прорезав болгаркой кирпич с двух сторон перегородки. В остальных случаях желательно сбить немного штукатурный слой и посмотреть где расположены вертикальные швы в кладке. С учетом имеющихся швов и выбирается место для нового дверного проема. Далее рассматривается выполнение проема в перегородке, выложенной в полкирпича. Сделать проем в перегородке, выложенной в четверть кирпича, физически еще легче, однако сильно махать молотком, а тем более кувалдой не стоит.
Последовательность выполнения работ следующая:
1. Сначала снимаются плинтуса
Если плинтус цементный, то его можно будет сбить в конце, вместе с последним рядом кирпича. Сбивается цементная штукатурка по контуру дверного проема.
2. Выбивается ряд кирпичей под новую перемычку
на отметке 2.1-2.15 м и сбивается старый цементный раствор с ряда кирпичей над образовавшейся нишей. Ширина выбитого ряда должна быть на 100-300 мм больше ширины коробки устанавливаемой двери. Для установки двери с полотном 60 см необходимо выбить 4 кирпича (на рисунке контур двери и кирпичи, которые нужно выбить, обозначены белым цветом) для двери с полотном 70, 80 и 90 см – 5 кирпичей (пятый кирпич обозначен на рисунке фиолетовым цветом), 6 кирпич выбивать приходится редко, но иногда все же приходится:
какие кирпичи выбивать под перемычку для нового дверного проема в кирпичной перегородке
Чтобы процесс выбивания кирпичей, как минимум первого, сопровождался минимальными потерями прочности всей перегородки, раствор вокруг кирпича желательно предварительно высверлить перфоратором или хотя бы сделать перфорацию раствора вокруг кирпича. Если перегородка выложена давно, качественно и на прочный раствор, то если тупо бить по выбиваемому кирпичу, нагрузка от удара будет, во-первых, перераспределяться и на соседние кирпичи, а значит физических сил для выбивания кирпича придется потратить значительно больше. А во-вторых, в результате перераспределения напряжений раствор может разрушиться совсем не в том месте где наносятся удары. Перфорация уменьшает площадь раствора и таким образом увеличивается вероятность того, что будет выбит именно нужный кирпич. Эта рекомендация действительна и для случаев, когда кладочный раствор слишком слабый и легко разрушается, но особенно для перегородок в четверть киприча.
Так, для примера, прочность кладочного раствора марки М150 на растяжение, через несколько лет после устройства перегородки может достигать 2-2.5 кг/см2. При этом площадь раствора, который следует разрушить, вокруг кирпича в перегородке, выложенной в полкирпича, составляет около 700-800 см2. Соответственно этот раствор выдержит статическую нагрузку до 1.4-2 тонн. Конечно же при работе многокилограммовой кувалдой создаваемая нагрузка на кирпич и на раствор будет ударной, а не статической, но все равно, чтобы выбить кирпич на таком растворе одним ударом кувалды, скорость кувалды в момент касания с выбиваемым кирпичем должна быть достаточно большой, а деформация перегородки достаточно малой. А кроме того, если перегородка достаточно высокая, то чем ближе выбиваемый таким способом кирпич к середине высоты, тем больше вероятность обрушения всей перегородки.
Когда делается перфорация, то площадь раствора вокруг кирпича уменьшается, а кроме того при перфорировании уменьшается прочность оставшегося раствора и значительно снижается перераспределение нагрузок.
Тем не менее, как аккуратно не работай, но при выбивании кирпичей под перемычку могут отвалиться и кирпичи над выбиваемыми. Ничего страшного, их можно будет уложить после устройства перемычки.
3. В образовавшийся проем заводится стандартная бетонная или металлическая перемычка из прокатных профилей
Перемычку нужно класть на раствор. Если нет бетонной перемычки и металлических уголков, можно использовать деревянную, изготовленную по месту или уложить несколько прутьев арматуры диаметром 12-20 мм.
4. Заделываются цементным раствором щели
оставшиеся после укладки перемычки (особенно шов между перемычкой и старым рядом кирпичей). На рисунке 2 новый раствор обозначен темносерым цветом. Небольшие щели можно задуть монтажной пеной, но только не шов между новой перемычкой и старым рядом кирпичей.
5. После установки перемычки необходимо сделать технологический перерыв 5-14 дней
необходимых для того чтобы новый раствор набрал прочность. После этого выбиваются ряды кирпичей так, чтобы ширина нового проема была на 5-15 см шире коробки новой двери.
6. Так как кладка перегородки велась в перевязку, то делать это нужно аккуратно, чтобы не нарушить целостность неразрушаемой части перегородки. Это можно сделать несколькими способами:
6а. Сначала выбить кирпичи
которые полностью мешают новому дверному проему. Половинки кирпичей на высоте
1 м от пола, мешающие новому дверному проему (на фотографии обозначены красным цветом), аккуратно, по частям сбиваются отбойным молотком, перфоратором или молотком и зубилом. Направление удара должно быть не перпендикулярно плоскости перегородки, чтобы не развалить перегородку, удары нужно наносить сверху или снизу. Также можно выбить эти кирпичи полностью, а потом, перед установкой двери, заложить образовавшиеся щели половинками кирпичей. Когда появится пространство, достаточное для того, чтобы завести ударный инструмент на следующий ряд, сбиваются или обрезаются болгаркой остальные мешающие половинки (на рисунке обозначены синим цветом):
Последовательность удаления кирпичей
6b. Срезать кирпичи болкаркой
Половинки кирпичей на высоте
1 м от пола, мешающие новому дверному проему, прорезаются с двух сторон болгаркой с отрезным кругом по камню, а потом сбиваются молотком. Остальные мешающие половинки сбиваются как и в предыдущем случае.
6с. Сразу прорезать болгаркой кирпичи с двух сторон перегородки по контуру нового дверного проема с соответствующим запасом на установку двери, а после этого выбивать кирпичи. Самый пыльный способ. Впрочем любая работа с болгаркой – это куча пыли.
7. Если нижний ряд кирпичей, которые необходимо удалить, находится в цементной стяжке, то его приходится по частям выбивать. Использовать болгарку внизу неудобно да пыли будет больше обычного. После удаления этого ряда поверхность пола выравнивается цементной стяжкой.
Вот в общем и все осталось поставить дверь.
Популярные варианты отделки дверных межкомнатных проемов

Коровин Сергей Дмитриевич
Магистр архитектуры, закончил Самарский Государственный Архитектурно-Строительный Университет. 11 лет опыта в сфере проектирования и строительства.
Один из распространенных вариантов визуального увеличения пространства в помещении – это демонтаж межкомнатных дверей. Такое решение позволяет визуально расширить помещения, создать единое пространство в интерьере. При этом возникает важная задача – отделка дверного проема. В этой статье мы собрали самые популярные и нетривиальные способы решения данного вопроса.
Подготовка проема
Процесс подготовки рабочей поверхности разнится из-за материалов, выбранных в качестве отделочных.
-
Если решено облагородить проем декоративной смесью, необходимо произвести черновую отделку при помощи обычной штукатурки. После этого все поверхности требуется тщательно зачистить с помощью мелкодисперсной шкурки. Это позволит избежать отшелушивания штукатурного слоя. Применение строительного уровня или отвеса позволит сэкономить на финишном материале.
Выравнивание проема штукатуркой при помощи правила и металлических уголков
Гипсокартон по каркасу
Гипсокартон – еще один вариант обшивки дверного проема, в результате которого получается идеально ровная поверхность. Не требует дополнительной обработки, можно красить или клеить обои сразу же после монтажа и затирки стыков.
Выравнивание гипсокартоном без каркаса на клей
Рекомендация для всех, кто проводит ремонтные работы своими руками: обязательно используйте грунтовку для создания наилучшей сцепки поверхности стены и декоративных смесей.
Виды материалов для отделки
Выбор материалов для отделки дверного проема на строительном рынке обширен, найдутся варианты как эконом-класса, так и дорогостоящие альтернативы. Все зависит напрямую от потребностей, желаний и возможностей покупателей, а также нескольких немаловажных аспектов:
- не стоит экономить на количестве и качестве крепежных элементов (к примеру, если делать обрешетку из деревянных брусков, то надо просмотреть их на наличие плесени, гнили и больших трещин);
- при покупке материалов, расфасованных по разным коробкам, следует сверить партии поставок, если они разнятся, то может отличаться и оттенок у содержимого;
- долговечность материала, его способность выдерживать ежедневный контакт с различными внешними воздействиями — вот о чем в первую очередь должны задуматься все мастера.
На примере наиболее популярных вариантов отделки дверного проема рассмотрим более детально рабочий процесс по каждому из них.
Штукатурка
Данный вариант можно назвать самым популярным за счет простоты работ и практичности использования отделочного материала.

Единственное, о чем стоит позаботиться перед началом отделки – накрыть пол пленкой или газетами, чтобы не повредить и не загрязнить поверхность.
- Работу начинают с подготовки проема: зачистка от старых материалов и грунтовка поверхности.
- Установка маячков (следует замешать немного раствора и зафиксировать на стенах перфорированные уголки, выставляя их по строительному уровню).
- Между уголками крепится кладочная армирующая сетка.
- Подготавливается строительная смесь в необходимом количестве.
- Используя несколько шпателей, смесь наносят на стены в хаотичном порядке, после чего при помощи правила разглаживают по поверхности.

Важно помнить, что толщина одного слоя не должна превышать 2 см, в противном случае могут образовываться пустоты или трещины, а это отрицательно скажется на долговечности отделки.
Если же все соблюдено, остается дождаться, пока поверхность высохнет, и можно приступать к финишной отделке: покраске, наклейке обоев или нанесению декоративных смесей.
Клинкерная плитка, мозаика
Данный материал предназначен для облицовки самых разных участков жилого дома, в том числе и дверного проема. Каких-либо особых правил укладки не существует, варианты предлагаются в зависимости от дизайна интерьера:
- с ровным краем;

- ступеньками;

- с зубчатым краем;

- в живописном произвольном порядке.

Облицовка дверного проема плиткой или мозаикой не требует особого инструмента или специальных навыков, рабочий процесс состоит из поэтапных действий:
- после того как поверхности зачищены и отштукатурены, необходимо нанести разметку, согласно которой плитка будет располагаться в дверном проеме;
- подготовить специальный клей (жидкие гвозди используются только в тех случаях, когда поверхность идеально ровная);
- нанести клей шпателем на обратную сторону плитки, распределить его по поверхности, излишки убрать;
- прижать плитку к стене и в течение нескольких секунд удерживать, придавая усилие.
Схема укладки клинкерной плитки
Чтобы изделия фиксировались на поверхности проема равномерно, следует заранее подготовить пластиковые штапики, которые вставляется в швы между плитками. Удаляется он после затвердевания клеевой массы не раньше чем через 24 часа.
Очень важно – если клей попал на поверхность плитки, следует удалить его незамедлительно, поскольку затвердевшую массу удалять очень трудно.
Когда проем будет полностью облагорожен, швы между плиток заделываются специальными затирками, цвет которых подбирается в тон стен или отделочных материалов.
Декоративный камень
Еще один вариант, который используется как альтернатива клинкерной плитке – декоративный камень. У него есть несколько преимуществ перед другими отделочными материалами:
- точная имитация натуральных пород, при этом разновидностей фактур очень много: мрамор, известняк, яшма, кирпич, древесный срез и многие другие.
- переносит повышенную влажность без последствий;
- прост в уходе, т.к. не требует применения специальных средств для удаления грязи с поверхности;
- устойчив к механическим повреждениям при соблюдении правил укладки.

Процесс монтажа очень схож с кладкой клинкерной плитки, но есть несколько важных моментов, о которых не стоит забывать:
- в зависимости от толщины вес изделий может разниться, что может увеличить расход клеевой массы;
- приобретая отделочный материал, осмотрите несколько штук с тыльной стороны, если на поверхности множество пор, они обладают низкой плотностью, что скажется на прочности камня.
Данный отделочный материал встречается в двух видах:
- Натуральный. Изготавливается из натуральных пород, измельченных в крошку. Такие изделия отличаются тяжестью и прочностью при прямых механических воздействиях.
- Искусственный. Его основой служит гипс, в который добавляют красители и полимеры. Главное достоинство – это невысокая цена, которая колеблется в районе 300-800 рублей за квадратный метр.
Деревянные панели, МДФ
Не менее популярным вариантом для отделки дверных откосов являются деревянные или МДФ панели, ламинированные под дерево, которые гармонично вписываются в классический стиль. К преимуществам можно отнести:
- эстетичность;
- долговечность;
- отсутствие видимых дефектов при контакте с водой.

Процесс монтажа панелей из дерева или МДФ потребует от вас приобретения дополнительных материалов – деревянных реек, которые будут использоваться в качестве обрешетки:
- Рейки нарезаются под ширину проема и крепятся с помощью дюбелей и саморезов к стенам.
- Панели также подгоняются под проем с небольшим отступом, для скрытия которого используется торцевой уголок.
- Стартовая панель фиксируется финишными гвоздями.
- Все последующие панели крепятся через шип-паз (система соединения, присутствующая на изделиях).
- С торца конструкция закрывается боковой панелью – наличником, который крепится на гвозди к обрешетке или торцевым уголком.
Фотоинструкция по отделке проема панелями МДФ
Чтобы скрыть крепеж, можно воспользоваться специальным мебельным воском или клейкими заглушками, подобрав их под цвет панелей.
Такая отделка будет выглядеть богато, даже если использовались недорогие МДФ панели с фактурным рисунком под дерево экзотических пород.
Ламинат
Многие отделочники любят ламинат за его гибкость, что позволяет обшивать этим материалом практически любые проемы, углы и закутки, встречающиеся в жилых помещениях. Единственное, о чем стоит побеспокоиться – он плохо переносит влажность и после контакта с водой на торцах изделий могут образовываться вздутия, а такие дефекты не устраняются.

Крепится ламинат с помощью саморезов на обрешетку аналогично отделке панелями ПВХ или МДФ.
Если же стены относительно ровные, то можно воспользоваться жидкими гвоздями и распорками, которые на протяжении нескольких часов будут прижимать материал к поверхности стен.

Лепнина – гипсовая и пенополиуретановая
Один из самых интересных, но по-своему капризных материалов – это лепнина. Используя ее в интерьере для отделки проема двери, следует выдерживать единую концепцию общего дизайна, вписывать в тот стиль, которому присущи колонны, пилястры с капителями и другие подобные элементы декора.
Лепнину на проеме следует сочетать с другими элементами интерьера, например с напольными и потолочными плинтусами
На строительном рынке встречается два вида лепнины:
- Гипсовая. Без нее невозможно представить интерьеры загородных домов, выполненных в венецианском или классическом стиле. А вот в небольших квартирах такие изделия кажутся слишком громоздкими, межкомнатные проемы сужаются не только визуально, но и фактически. Плюс ко всему гипс очень тяжелый и хрупкий материал, в условиях механического воздействия он не прослужит долго.
- Искусственная, а точнее полиуретановая, является доступным аналогом гипса.
К преимуществам пенополиуретанового декора можно отнести также:
- легкость конструкции;
- простоту монтажа: изделия легко режутся канцелярским ножом и крепятся на жидкие гвозди;
- разнообразие готовых форм;
- поверхность полиуретана подходит для окрашивания.
Лепнина идеально смотрится в обрамлении дверного проема с аркой, особенно если ширина позволяет воздвигнуть по краям монолитные опоры-колонны.
Формы дверного проема
Отделка проемов между комнатами без двери сложна не только выбором используемого материала, но и тем, какой формы будет этот самый проем.

Решение этого вопроса повлияет на гармоничность перехода между комнатами, на освещение помещений, сочетание стилей в интерьере и практичность перемещения.
Прямоугольный
Часто встречающийся вариант – прямоугольный. Такой проем остается сразу же после демонтажа дверной коробки и у него есть свои плюсы:
- подходит для всех отделочный материалов;
- не требуется сооружения дополнительных конструкций;
- четко разграничивает два жилых помещения, к примеру, балкон и кухню, при этом визуально расширяя оба;
- отлично походит для современных стилей дизайна интерьера.
Широкий прямоугольный проем позволяет использовать откосы как ниши для предметов интерьера
Арочный
Арка обладает интересной способностью: в помещениях с низкими потолками она их визуально повышает, а в случаях с высокими – наоборот, опускает. При этом, чем шире проем в форме арки, тем ниже кажется потолок.
Многие предпочитают такой вариант за его мягкость, отсутствие острых углов, это делает переходы между комнатами более незаметными. Идеально вписывается арка при выходе в холл, если он достаточно широкий, перемещение между помещениями будет незаметным.
Отсутствие массивного декора дверного проема подчеркивает красоту и сложность остального интерьера
Приятным дополнением являются готовые решения – доборы арочного типа, подготовленные для установки в дверные проемы.
Доборы и развитая окантовка проема подчеркивают сложную форму проема, делая на ней визуальный акцент
Трапециевидный
Данная форма применяется очень редко, связано это с тем, что в небольших площадях подобное решение дает обратный эффект: комната не расширяется, а потолок визуально опускается. Особенно в тех случаях, когда верхняя горизонтальная часть трапеции слишком узкая. Может создаться впечатление, что при оформлении проема хотели сделать арку, но не хватило сил и умений.
Многоугольник хорошо впишется в переход, где планировались или были установлены двустворчатые межкомнатные двери. С помощью гипсокартона можно легко и без усилий превратить прямоугольный просвет в плавную трапецию, закрепив его по углам проема.
Асимметричный
Дверной проем, который воплощает в себе фантазии хозяев жилого помещения – это и есть асимметричная форма. Дизайнеры любят ее за возможность претворять в жизнь самые удивительные решения. Проем перестает быть границей двух комнат, он превращается в украшение квартиры, в тот элемент, который притягивает взгляд и подчеркивает заданный стиль.
Ассиметричный проем – изюминка любого интерьера
Однако и здесь есть нюансы, о которых многие забывают и в процессе работ сталкиваются с трудностями:
- нельзя браться за расширение проема без создания проекта, где будут учтены все возможности несущих стен и перекрытий;
- острые углы и резкие формы оказывают негативное психологическое воздействие на окружающих; необходимо максимально сокращать присутствие раздражительных факторов, чтобы облагороженные проемы служили ее достоинством, а не недостатком.
Оформление шторами
Простой, но весьма интересный вариант декорирования дверного проема с помощью штор – это взгляд в прошлое. Несколько десятилетий назад люди именно так разграничивали жилое пространство, украшая проход деревянными или тканевыми занавесками. Желаемый эффект достигался: визуально вырисовывались границы помещения, при этом не создавалось замкнутости пространства.
Но подобные решения популярны и сейчас, вот только разнообразие форм и материалов стало гораздо больше. Чаще всего используются бамбуковые палочки, очень прочные и издающие приятный звук при столкновении друг с другом. Их можно самостоятельно выкрасить в желаемый оттенок или подобрать готовый вариант под свой интерьер.

Использовать шторы можно где угодно, даже на границе прихожей с ванной, правда это немного интимно, но если владельцам жилища такой вариант интересен, то почему бы и не поэкспериментировать.
Как сделать дверной проем
Содержание статьи:
- Параметры проемов
- Особенности расчета
- Основные разновидности
- Подготовительные работы
- Технология монтажа
- Кирпичная стена
- Бетонная панель
- Гипсокартонная перегородка
- Тонкости оформления
Дверной проем — это неотъемлемая часть любого интерьера или наружной ограждающей конструкции. Он изготавливается как при возведении коробки здания, так и при планировке его внутренних помещений. Причем, форма проема, его размеры и отделка могут быть достаточно разнообразными. В большинстве случаев вход в квартиру, комнату или дом можно выполнить самостоятельно. Об этом пойдет речь в нашем материале.
Параметры дверных проемов

Расчет проемов обычно выполняют на стадии проектирования дома. Исключением может быть небольшая перепланировка помещений, не затрагивающая несущих конструкций, например, изготовление гипсокартонных перегородок с дверями. В расчетах учитывают размеры дверных проемов, внешний вид и способы их укрепления. В настоящее время, несмотря на огромную популярность нестандартных дизайнерских решений, за основу по-прежнему принимаются базовые параметры, соответствующие понятиям СНиПа и ГОСТа.
При расчетах проема в первую очередь учитываются:
-
Высота двери. В обычных домах или квартирах ее величина принимается равной двум метрам с небольшими поправками в большую или меньшую сторону.
Ширина. Ее стандартные значения — 0,7-0,8 м. Входные двери могут иметь ширину 90 и 100 см, двери в туалет и ванну обычно уже — до 70 см.
Высота и ширина двери напрямую влияет на габариты проема. Его размеры берутся несколько больше для возможности монтажа дверной коробки. Если в доме высокие потолки и есть желание создать «парадный» вход, можно отойти от принятых стандартов и увеличить его габариты, но такое решение должно быть согласовано с проектной организацией.
Особенности расчета проема для двери

До того как устанавливать дверной проем, необходимо определиться с его габаритами. При расчетах важно знать размеры дверного полотна и толщину его коробки. Обычные створки изготавливаются по ГОСТу и имеют стандартные размеры:
-
Туалет и ванна: ширина дверного полотна здесь может составлять 600 мм и 500 мм, высота — 1900 или 2000 мм, толщина дверной коробки — 50-70 мм.
Кухня: ширина полотна — 700 мм, высота — 2000 мм, толщина коробки — 70 мм.
Гостиная: при двухстворчатой конструкции дверного блока его ширина составляет 1200 мм, высота — 2000 мм, толщина коробки — 70-200 мм.
Дверные блоки заводского изготовления имеют максимальную толщину 128 мм. Подгонка блока к проему в случае несовпадения их толщины осуществляется при помощи доборных планок и специальных нащельников.
Ширину дверного проема можно определить, если просуммировать значения ширины полотна, двойной толщины боковых стоек коробки, ширину технических швов и зазоров по притворам. На полученное значение, учитывая погрешность 10-20 мм, следует ориентироваться. Это будет оптимальная ширина проема.
Его высоту следует вычислять с учетом отсутствия или наличия порога. Если планируется монтаж двери с порогом, то к значению высоты створки нужно добавить 100 мм или же 60 мм в случае отсутствия порога.
К примеру: требуется определить габариты дверного проема для полотна размерами 190х60 см. Вначале вычисляется ширина входа: 60+3,5х2 (удвоенная толщина стойки) + 0,2 (зазоры по петлям) + 0,4 (зазоры по замку) + 1х2 (зазоры монтажных швов) = 60+7+0,2+0,4+2 = 69,6 см.
Высота проема с порогом вычисляется так: 190+3,5х2+0,3х2 (зазоры по притворам) +1х2+10 = 190+7+0,6+2+10 = 209,6 см. Без порога высота проема будет такая: 190+7+0,6+2+6 = 205,6 см. В итоге получаем: для монтажа двери размерами 190х60 см необходим проем 210х70 см с порогом или 206х70 см без него.
Толщина боковых стенок проема должна быть одинаковой на всем их протяжении. Не следует изготавливать дверной проем с большим запасом по высоте и ширине, так как размер наличника не всегда позволяет замаскировать большие щели.
Основные разновидности дверных проемов

Перед тем как сделать дверной проем, нужно выбрать его оптимальный вид, подходящий к общему стилю интерьера того или иного помещения. Существует несколько видов проемов, на которые стоит обратить внимание:
-
Портал. Это стандартный прямоугольный проем, но его ширину можно увеличивать, в зависимости от того, какие двери планируется установить.
Кроме этого, существуют сложные конструкции дверных проемов, которые отличаются нестандартными решениями в виде уникальных форм и дополнительных элементов. В большинстве случаев такие проемы изготавливаются в гипсокартонных перегородках, так как в этом плане возможности ГКЛ практически безграничны. Ниже мы рассмотрим этапы изготовления дверных проемов в стенах, выполненных из различных материалов.
Подготовительные работы перед изготовлением проема

В строительстве любой серьезный процесс начинается с изготовления чертежа. Поэтому перед началом работы необходимо составить схему стены, на которой будет изображен проем желаемой формы, с указанием его размеров, радиусов кривизны при необходимости таковой и привязки контрольных точек периметра проема к потолочному перекрытию, углам или другим базовым конструкциям.
Дверной проем может изготавливаться на стадии строительства стены или перегородки либо вырезаться в существующей конструкции при перепланировке помещений. Второй случай — наиболее сложный, поэтому сегодня мы уделим ему основное внимание.
Итак, в первую очередь необходимо знать, что устройство дверных проемов в несущих стенах зданий без соответствующего на то разрешения категорически запрещено. Поэтому перед началом такой «диверсии» нужно оформить нужные бумаги и получить одобрение на перепланировку. В противном случае радость от выполненной работы может в лучшем случае омрачиться штрафом, а в худшем — обрушением перекрытия.
Если такой проблемы не существует, следует запастись мешками для строительного мусора, спецодеждой, рабочими перчатками, защитными очками, респиратором и набором инструментов, в который входят:
-
Перфоратор или дрель. Они будут необходимы для сверления стены при обозначении контура будущего дверного проема.
Угловая шлифовальная машинка «болгарка» с режущим кругом по камню. Она позволяет аккуратно вырезать проемы в стенах из кирпича, бетона или дерева. Резка производится с обеих сторон конструкции.
Зубило. Оно пригодится для зачистки швов кирпичной кладки.
Кувалда. Это основное орудие, предназначенное для выбивания материала стены внутри прорезанного контура проема.
Технология монтажа дверного проема
Рассмотрим процесс монтажа проема для двери в стенах, изготовленных из разных материалов.
Изготовление дверного проема в кирпичной стене

Особенностью этого процесса является то, что линия верха проема всегда совпадает с продольным швом кладки в этом месте, так как резка кирпича по ложку недопустима.
Вначале следует выполнить согласно схеме разметку контура проема на стене. Он переносится на конструкцию в натуральную величину при помощи длинной линейки-правила, маркера или кусочка мела. На этом этапе важно соблюдать вертикаль боковых линий проема. Его желаемая высота определяется с учетом количества рядов кладки. Если верх проема приходится на середину кирпичей, его следует поднять выше до близлежащего шва.
После обозначения контура в его двух углах нужно выполнить перфоратором сквозные отверстия. Для этого понадобится бур диаметром 12 мм и длиной не менее толщины стены. Такие отверстия необходимы для обозначения контрольных точек контура проема по другую сторону конструкции.
Затем над верхней линией будущего проема следует вырезать специальную штрабу, то есть полость для закладки перемычки, которая будет удерживать участок стены над проемом, не давая ему обрушиться после вырезания отверстия. Длина полости должна быть больше ширины проема на 1 м. Это обеспечит надежную опору перемычки на боковых сторонах прямоугольного отверстия в стене.
Перемычку можно изготовить из двух швеллеров. Перед монтажом каждого из них в профилях следует выполнить совпадающие отверстия для выполнения стягивающего их крепления. Шаг отверстий — 300 мм.
После этого один из профилей нужно зафиксировать в полости стены раствором, а через его отверстия просверлить перегородку насквозь. Затем с другой стороны конструкции следует вырезать аналогичную штрабу, установить в ней второй швеллер, а потом оба профиля через отверстия стянуть шпильками.
Когда перемычка будет установлена, можно вырезать дверной проем. Лучше всего для этого использовать алмазный резак с промышленным пылесосом. Работу можно вести только с одной стороны стены, так как диаметра его диска вполне достаточно для получения глубоких надрезов.
После ослабления стены лишний материал внутри контура проема следует выбить кувалдой, а потом собрать мусор в мешки. При демонтаже кладки наверняка останутся неповрежденными некоторые кирпичи. Их выбрасывать не следует — после очистки от раствора они могут пригодиться в хозяйстве.
Изготовление проема для двери в бетонной панели

Этот процесс имеет меньшие ограничения по обозначению линий проема и обладает похожим алгоритмом работы: прорисовка контура, монтаж перемычки, вырезание отверстия, удаление из него лишнего материала.
В отличие от кирпичной стены, где ненужную часть кладки можно разбить кувалдой, бетонная конструкция не столь податлива. Поэтому здесь придется контур проема поделить на квадраты и удалять лишние фрагменты стены частями при помощи режущего инструмента и перфоратора. Работу по монтажу дверного проема нужно вести по линиям разметки внутри его контура. Некоторые части будут удаляться с легкостью, для удаления других потребуется резка арматуры стены.
После вырезания проема в бетонной или кирпичной стене требуется выполнить его усиление. Швеллеры перемычки следует соединить сваркой, используя при этом металлические полосы. Такой крепеж осуществляется через каждые 200 мм по длине перемычки.
Боковые стороны проема нужно усилить металлическими уголками. Их верхние концы соединяются сваркой с профилями горизонтальной части проема. Помимо этого, уголки, обрамляющие углы отверстия, попарно связываются пластинами и стягиваются шпильками по заранее подготовленным отверстиям. Если стена — несущая, то проем в ней дополнительно усиливается нижней перемычкой, которую нужно приварить к боковым стойкам.
Изготовление проема в гипсокартонной перегородке

Дверной проем в гипсокартонной перегородке формируется на стадии изготовления ее каркаса. Конструкция такой стены состоит из направляющих и стоечных алюминиевых профилей, звукоизоляционного наполнителя и наружной обшивки в 1-2 слоя ГКЛ.
Направляющие профили крепятся к потолку и полу помещения, обозначая контур стены. Стоечные профили устанавливаются вертикально в направляющие и служат для обеспечения жесткости конструкции и основой для крепежа обшивки. Два таких профиля формируют дверной проем в выбранном месте перегородки.
После их установки с учетом ширины дверного полотна нужно изготовить горизонтальную верхнюю часть проема. Для этого ножницами по металлу следует отрезать кусок из отходов стоечного профиля, длина которого будет соответствовать ширине проема. Помимо этого, понадобится пара коротких отрезков стойки по 10 см, которые нужно соединить в букву «П» с поперечным профилем.
Затем этот элемент требуется развернуть на 180 градусов и зафиксировать шурупами к стойкам в качестве горизонтальной верхней перекладины проема. Жесткость боковых стоек можно увеличить, если вставить в них деревянный брус. Таким способом дверной проем будет сформирован. Окончательный вид он приобретет после обшивки каркаса перегородки гипсокартонными листами.
Тонкости оформления дверного проема

Для оформления изготовленного своими руками дверного проема можно использовать различные материалы, которые смогут надлежащим образом подчеркнуть стиль интерьера. Чаще всего применяется:
-
Искусственный и натуральный камень. Они превосходно смотрятся в обрамлении проема, имеющего внушительные размеры. Если грамотно подойти к выбору цветового решения и вида каменной облицовки, можно создать визуальный интригующий эффект прорубленного в скале проема.
Натуральное дерево. Оформление его ценными породами дверных проемов придает интерьерам изысканность и роскошь. Удовольствие — дорогое, но оно того стоит.
Декоративная штукатурка. Она обладает массой полезных свойств. Материал долговечен и экологически чист, может иметь разнообразную рельефную поверхность и окрашиваться в любой цвет. Такая штукатурка укрепляет откосы дверного проема, заполняет пустоты на их поверхности и имеет презентабельный вид.
Следует заметить, что откосы дверных проемов постоянно подвергаются механическим воздействиям при переноске, например, мебели, случайном задевании углов какими-либо предметами и т.д. Поэтому, если шикарное оформление проема для вас не критично, самой надежной защитой его откосов послужит обычная цементная стяжка. Она легко ремонтируется в случае повреждения в отличие от облицовки, которая потребует замены своих элементов. К тому же такое обслуживание обходится совершенно не дорого. В любом случае, решение этого вопроса за вами.
Как сделать дверной проем — смотрите на видео:






