Варианты перепланировки хрущевки
Так называемые «хрущевки» изначально должны были служить временным жильем для рабочих и их семей, переселенных из бараков. Но такие дома существуют до сих пор, а их жители и поныне пытаются бороться со всеми неудобствами своих квартир: неудобной планировкой жилых комнат, маленькой кухней, узенькими коридорами и т. д.
Хрущевка превращается.
Что категорически запрещено планировать в хрущевке
Прежде чем начать строить планы по поводу будущего обустройства хрущевки, необходимо запомнить несколько непреложных правил. Итак, при перепланировке квартиры в хрущевском доме нельзя:
- Сносить несущие стены и конструкции. Причем определить самостоятельно, где находятся главные опоры, может быть очень сложно, поэтому лучше обратиться к специалисту.
Даже маленькая кухня в хрущевке после перепланировки может быть просторной и стильной
- Газовые трубы и стояки должны иметь свободный доступ, их ни в коем случае нельзя закрывать или, тем более, заделывать в стену. Все операции, проводимые с газовыми трубами, должны выполнять профессионалы.
- Работы по перепланировке могут быть проведены только после консультации в соответствующих организациях. Самостоятельно принятые решения в этом случае будут стоить очень дорого.
- Нельзя демонтировать или переделывать систему вентиляции.
- После окончания перепланировки комнаты не должны иметь площадь менее 9 м2.
- Категорически запрещено оборудование санузла в другом помещении.
Оборудовать санузел при перепланировке в другом месте категорически запрещено. А вот объединять с ванной – нет.
- Нельзя делать комнаты без отопления и окон.
Для получения желаемого результата от перепланировки хрущевки, не стоит доверять ремонт неквалифицированным рабочим.
Что можно сделать с хрущевкой?
Прежде чем приступать к каким-либо работам, необходимо определиться с тем, что хотелось бы увидеть по окончании перепланировки. Важно понимать, что не все пожелания могут быть воплощены в жизнь.
Хрущевка может стать очень эффектной и уютной после перепланировки
Итоговый вид квартиры будет зависеть от:
- количества комнат и общей площади жилища;
- величины выделенного бюджета;
- квалификации нанятых рабочих или качества собственноручно выполненных работ.
Первым этапом перепланировки является составление проекта. Самостоятельно его сделать трудно. Зачастую без специалистов-проектировщиков здесь не обойтись. Проект – это документ, а следовательно, он должен быть утвержден соответствующими инстанциями.
Креативный и модный дизайн в хрущевке после перепланировки
Далее следует непосредственно сама переделка. Основными вариантами перепланировки хрущевки являются:
- снос какой-либо из не несущих стен;
- ликвидация части стены;
- закладывание старых и создание новых дверных проемов.
Эффектное оформление объединенной гостиной хрущевки
На деле наиболее распространенными способами сделать хрущевку более уютной и просторной являются следующие:
1. Демонтаж стены между кухней и комнатой. В результате увеличится площадь кухни, а сама квартира станет просторнее и светлее. А чтобы все-таки эти два помещения не сливались, их необходимо разделить с помощью отделки или, например, барной стойки. Читайте о дизайне угловой кухне в этой статье. Очень хороший прием зонирования – монтаж гипсокартонных конструкций на потолке или на стенах разной формы и цветов.
Совмещение кухни с гостиной в хрущевке
2. Следующий метод – облагородить балкон. Его следует утеплить, установить в нем радиатор для отопления, отделать – и дополнительное помещение готово. А можно соединить балкон с комнатой, тем самым сделав ее больше. Другие варианты дизайна лоджии в квартире – тут.
Балкон – отнюдь не лишнее место в хрущевке
3. Еще один вариант – переместить стену вглубь комнаты, чтобы между залом и спальней получился коридорчик. Таким образом отпадает проблема неудобства смежных комнат, которая особенно актуальна для семей с детьми-подростками.
Перепланировка – полностью меняет восприятие хрущевки
4. Также можно снести перегородку между двумя комнатами и сделать спальню меньше, отделив ее красивой гипсокартонной стенкой, стендом со встроенным аквариумом, перегородкой или ширмой.
Роскошная перепланировка хрущевки
Как может выглядеть «хрущевка» до перепланировки и после, смотрите на видео:
Помимо увеличения жилых помещений и кухни, нужно что-то делать и с катастрофически маленькими ванной и туалетом. Конечно, первое, что приходит на ум – объединить их в одно целое. А если в готовом помещении установить небольшой умывальник, компактные полочки для средств личной гигиены и душевую кабину вместо громоздкой ванны, то получится уютный и в меру просторный санузел.
Смежная ванная и санузел в хрущевке
Перепланировка хрущевки – занятие длительное и хлопотное. Сделать такую квартиру конфеткой непросто. Но если приложить максимум усилий, фантазии и желания, то даже хрущевка может стать предметом зависти ее гостей.
Стильный дизайн в хрущевке
Вариант перепланированной хрущевки
Барная стойка – как инструмент для зонирования пространства


















Маленькая кухня – вечный враг каждой хозяйки. Хочется иметь просторное уютное помещение, в котором процесс готовки стал бы приятным и удобным.
Перепланировка хрущевки: 1, 2, 3, 4 комнатные, фото до и после

Во времена Хрущева строились не совсем удачные квартиры в жилых домах. Площади очень маленькие, не продуманная планировка. Основная задача тех времен заключалась в том, чтобы каждую семью обеспечить отдельной жилплощадью. Что касается комфорта проживания, то он в задачи совсем не входил. Достоинство подобных квартир заключается в том, что их легко перепланировать, так как несущие стены наружные, а внутренние стены – это перегородки, которые можно сносить или перемещать без снижения несущей способности всего здания. Несмотря на это, необходимо иметь проект на перестройку и согласование с соответствующей организацией. Дело в том, что любые изменения в конструкции здания должны регистрироваться.
Что такое перепланировка и как ее оформить

Любое изменение конфигурации стен и перегородок в квартире считается перепланировкой. Что касается несущих стен, то их трогать нельзя вообще. Если имеются ненагруженные стены или перегородки, то здесь все не настолько серьезно, но составлять проект нужно обязательно, после чего его придется согласовать и лишь затем можно приступать к осуществлению задуманного.
При этом, существуют варианты переделок, которые не смогут согласовать ни при каких условиях:
- Расширение площади таких помещений, как кухня, ванная и туалет возможно лишь за счет технических помещений. Над жилыми комнатами их располагать запрещается. В данном случае можно уменьшить площадь коридора, встроенного шкафа, прихожей и т.д. Поэтому, имеются спорные варианты некоторых перепланировок. На фото ниже указаны спорные зоны.

Обозначенный красным фрагмент практически находится в коридоре, но документы БТИ указывают, что это жилая площадь. Если в таком варианте подать документы на перепланировку, то их не возьмут. Чтобы не ссориться с законом, нужно сначала поставить перегородку, которая отгородит коридор и в таком виде подается проект на увеличение площади ванной.
Расширяя площадь кухни, нельзя делать:
- Расширять за счет санузла.
- В случае расширения кухни за счет жилой площади, то на кухне нельзя устанавливать сантехнические принадлежности и кухонную плиту.
- Если на кухне имеется газ, то совмещать с жилой комнатой ее нельзя.
Этот пункт можно обойти, если установить двери любой конструкции, в том числе и раздвинутые или двери гармошку.
Однокомнатная хрущевка: перепланировка
Молодые семьи, как правило, покупают однокомнатные квартиры. Однокомнатную хрущевку легко переделать в квартиру студию, что является для молодых людей отличным вариантом. В таком случае, избавляются от перегородок, отделяющую комнату и кухню, а также прихожую.

В том и другом случае, такое помещение, как санузел, остается не тронутым, поскольку его перемещать нельзя, если это не первый этаж.
На фото выше видно, что перепланировка частично коснулась и санузла, за счет перемещения двух стен на значительное расстояние. Это стена, обращенная в зал, и стена, отделяющая прихожую. За счет незначительного увеличения площади удалось поместить стиральную машинку. В малогабаритных комнатах всегда ощущается недостаток места, когда требуется установить современную бытовую технику. Хотя прихожая и получается не большая, зато в комнате достаточно места и можно установить гардеробную.
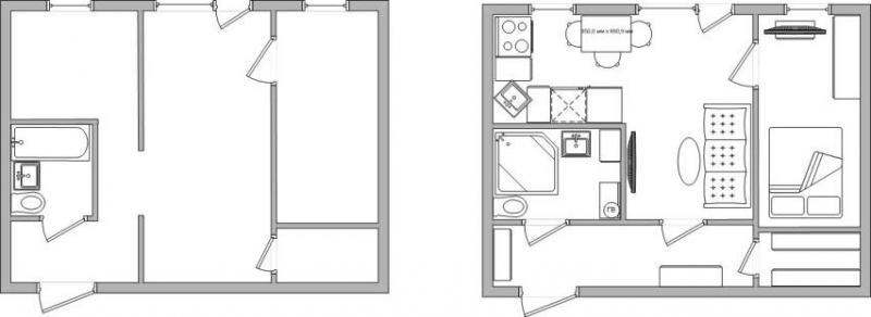
На другом фото представлен еще один вариант перепланировки 1 комнатной хрущевки. Этот вариант отличается тем, что объединили кухню и коридор. Двери в комнату смещены дальше от входа, что дало возможность, более оптимально использовать жилое пространство. В результате такого дизайна появилось место в коридоре под шикарный встроенный шкаф. Это не повлияло на функциональность кухни, а ее площадь увеличилась на 0,2 метра квадратных.

В последнее время многие жильцы практикуют еще один способ увеличения жилой площади – это совмещение лоджий и балконов. Но для этого нужно тщательно произвести утепление стен балконов и лоджий, а также, провести туда отопление. В результате можно получить еще одну комнату с оптимальной температурой, где можно разместить, например, рабочий кабинет.

Существует еще один вариант перепланировки однокомнатной хрущевки, расположенной в кирпичном доме. Здесь очень маленькие площади санузла и кухни, но перегородки размещены стандартно.
В данном случае, желательно отказаться от ванны в пользу душевой кабинки. Это позволит оптимизировать полезное пространство в санузле, расположив правильно сантехнику и поместив туда стиральную машину. При этом, одна из стенок получается скошенной, а площадь кухни не значительно, но увеличивается, хотя площадь прихожей несколько уменьшается.
Жилую площадь можно увеличить за счет расширения на балкон, утеплив его соответствующим образом. На балконе можно установить шкаф и рабочий стол. Подобная перепланировка довольно актуальна, если семья состоит из пяти человек: 3-х детей и 2-х взрослых. При этом, желательно установить одну двухэтажную кровать для детей. На очередном фото можно увидеть подобный вариант переделки жилой квартиры.

К сожалению, не всем по душе иметь квартиру-студию, как не все воспринимают санузел, где совмещены ванна и туалет. Многим не нравится отсутствие стен, когда нельзя посидеть на кухне незамеченным для окружающих, тем более, что это актуально при наличии детей, да еще в однокомнатной квартире.
В таком случае, перепланировка осуществляется за счет переноса перегородок, в зависимости от приоритетов. Боковую стенку прихожей нужно сдвинуть в сторону комнаты, а лицевая стенка подвинута, почти вплотную к двери в санузел. После подобных действий увеличивается площадь прихожей и теперь появляется возможность установки в прихожей встроенного шкафа и гардеробной.
Естественно, что площадь комнаты уменьшается, поэтому придется компенсировать недостаток площади за счет кухни. Несмотря на это, после переноса стены ближе к двери ванной, образовалось место для холодильника. В результате подобной перепланировки столовая часть кухни сдвинулась в комнату. Чтобы оптимизировать пространство, следует установить двери раздвижные или двери-гармошку.

При этом, комната получила Г-образную форму, где можно установить перегородку, чтобы разделить комнату на взрослую и детскую зону. По такому же принципу, можно из однокомнатной квартиры сделать двухкомнатную. Это имеет серьезное значение при наличии детей.

Существует еще один вариант перепланировки 1 комнатной квартиры, но только с другой изначальной планировкой. В данном случае переделка минимальная и сводится к обустройству перегородки из гипсокартона. Ее устанавливают так, чтобы она занимала не больше половины промежутка, чтобы во второй части было доступно освещение.
Как вариант, предлагается перепланировка угловой однокомнатной хрущевки, в квартиру студию с выделением спального места. В этой части квартиры может поместиться лишь кровать и шифоньер, но имеется один существенный плюс: спальня получается изолированной.
Двухкомнатная хрущевка: переделка
В постройках тех лет двухкомнатных квартир гораздо больше, чем однокомнатных, но проблемы у них одни и те же: малые площади и не продуманное расположение комнат, с наличием проходных помещений. Если заняться перемещением стен, то большинство проблем оказываются решаемыми. Например, имеется возможность разделения смежных комнат, после чего можно из двухкомнатной квартиры сделать и трехкомнатную. Для этого достаточно смонтировать еще одну перегородку, которая отделит комнату от коридора. В результате появляется дополнительная полезная площадь, где можно разместить гардеробную и кладовку. Полученное таким образом второе помещение более длинное и более узкое, разделяется на две части, посредством перегородки из гипсокартона.

На фото ниже представлен второй вариант неудачного планирования жилого пространства тех времен. Здесь, чтобы попасть во вторую комнату, необходимо пройти через первую. Планировка настолько неудачная, что, мало того, что малые площади, еще и появляются и мертвые зоны, что искажает функциональность комнат. Иногда, в торце второй комнаты располагают кладовку, которая не может быть использована в полной мере.

После переделки по этому варианту, ванна приобрела квадратную форму, а прихожая соединилась с первой комнатой. В данном случае, она выполняет роль гостиной, из которой сформирован вход в кухню. Следующее, более дальнее помещение разделено на две спальни. Перегородка между двумя спальнями смонтирована таким образом, чтобы осталось место для небольших гардеробных одной и другой спален.

Обычную двухкомнатную хрущевку в панельном доме, возможно превратить в квартиру студию, объединив гостиную и кухню. Основная задача подобной переделки состоит в том, чтобы сместить входные двери. За счет этого большая прихожая послужит в качестве гардеробной. При этом, объединяются туалет и ванна, а кухня и гостиная объединяются за счет частично разобранной перегородки.
Если имеется желание, то вторая комната может быть разделена на две части, за счет перегородки из гипсокартона, что позволит разделить рабочую и спальную зоны. Чтобы в спальню проникал свет, перегородку достаточно поднять на высоту не больше 1,5 метра.

Достаточно интересный вариант переделки 2-х комнатной квартиры в 3-х комнатную. Здесь прихожая немного скошена, что дало возможность увеличить площадь санузла, а перегородка, которая установлена между кухней и комнатой, частично удаляется. Вторая комната разделяется на 2 части, площадь которой увеличивается за счет кладовки и стенного шкафа. В результате образовались 2 спальни, а так как квартира угловая, то в каждой из спален имеется свое окно.
Коридор принял интересную форму, так как его стены располагаются по диагонали. В результате получается неплохой вариант, хотя функциональность коридора значительно снижена.
Трехкомнатная хрущевка: изменение расположения комнат
Хрущевки серии 11-57.3.2 отличаются очень маленькими размерами туалета и ванной комнаты. Исходя из этого, переделка квартиры просто необходима, если учесть, что на планете уже 3-е тысячелетие и наличие современной сантехники и бытовой техники указывают на такую необходимость. Чтобы оптимизировать жилое пространство, необходимо убрать простенок между ванной и туалетом. Часть коридора, которая примыкает к санузлу, отгораживается стеной, где располагают двери в санузел. Единственная проблема – это усиление гидроизоляции в этой части, где раньше находился коридор.

Первоначальная планировка не позволяла установить шкаф. В небольшом отрезке коридора, который отошел под ванную, был небольшой шкаф, но его размеры настолько малы, что позволяет в него прятать лишь малогабаритные вещи. Поэтому, приходится подвинуть стену одной из спален, чтобы на освободившееся место поместился гардероб.
Для объединения кухни и гостиной, необходимо избавиться от части стены. При этом, необходимо провести усиление соответствующих несущих стен и перекрытия. Поскольку плита на кухне газовая, то нужны двери. Как вариант, можно установить раздвижные.
Возможен и другой вариант ремонта, позволяющий увеличить площадь санузла, а также превратить какую-нибудь комнату в гостиную-столовую, из которой возможен выход на кухню. Заодно, нужно сформировать две спальни.

Для этого, удаляются простенки между ванной и туалетом, а часть коридора изымается под санузел. Теперь вход в кухню будет со стороны гостиной, с противоположной стороны гостиной формируется вход во вторую спальню.

Что касается дверного блока, размещенного во второй спальне, то его необходимо демонтировать, а проем заложить.
Следующий вариант перепланировки рассчитан на то, чтобы увеличить полезную площадь санузла и кухни. Что касается санузла, то его расширяют классическим способом: удаляют перегородку между ванной и туалетом, а также подравнивают стенку. Кухня расширяется за счет комнаты. Такое решение позволяет сформировать место для отдыха, где можно установить диван и телевизор.
Получается, что можно таким образом разделить проходные комнаты. Хотя площадь и уменьшилась, зато они стали более функциональными. На освободившихся площадях можно разместить гардеробные комнаты.
Четырехкомнатная хрущевка: переделка
Это настолько неудачная планировка, что при увеличении количества жилых помещений проблем становится все больше и больше. Наличие опять-таки маленькой кухни и маленького санузла, с проходными комнатами, усугубляет общую картину. На фото ниже один из самых непродуманных вариантов. Здесь изображено то, что было до переделки.

Несмотря на то, что эта квартира имеет относительно большую прихожую, она (прихожая) используется не в полной мере, а имеющийся нормальный угол, занят кладовой.

Проблема связана еще и с тем, что в прихожую выходит семеро дверей. Предлагается вариант переделки, когда все комнаты перепланировывают в правильную форму, типа квадрата. Такой подход позволяет проще использовать функциональные возможности квартиры в целом. Две комнаты используют под столовую и под гостиную, а две спальни так и остаются не тронутыми. Вход в выгороженную гардеробную комнату из прихожей.
Ванна и туалет остаются не совмещенными, но их площадь увеличена за счет выравнивания стен. Площадь, которая ранее занималась коридором, требует усиления гидроизоляции.
Заключение
Хрущевки давно уже себя изжили не только с технической точки зрения, но и с моральной. Кроме этого, современная планировка учитывает недостатки прошлого и не допускает подобных просчетов. Те, кто до сих пор живет в хрущевке, ежеминутно и ежесекундно думают, как быстрее осуществить ремонт, с целью избавления от этих крошечных кухонь, туалетов и ванн, а также проходных комнат, где не оптимально используется полезная площадь маленьких комнат.
При этом, следует учитывать, что существует еще одна проблема, не менее серьезная – это организация проекта перепланировки и его утверждение. К великому сожалению, бюрократы не хотят идти навстречу хозяевам хрущевок. Подобное решение получить весьма сложно и хлопотно, а то и совсем дорого. В связи с этим многие владельцы квартир улучшают свою жизнь самостоятельно и переделывают свои квартиры втихую. При определенных условиях, когда придется продавать квартиру, придется заплатить и штраф за самопроизвольную перепланировку. Если все сделано без нарушений технологии, то паспорт на квартиру переделают, естественно за отдельную плату.
Но здесь кроется и другая проблема, связанная с тем, что часть владельцев квартир, при проведении перепланировки все же нарушают требования и нормы, что приводит иногда к плохим последствиям.
Исходя из этого, можно сделать заключение, что любые работы желательно согласовать с соответствующими организациями и получить на это разрешение, иначе можно иметь дело с законом, что повлечет за собой административную или уголовную ответственность.
Интересные варианты перепланировки хрущевских квартир в фото
Во времена правления Хрущева дома строились с неудобными и непродуманными планировками. Основной идеей тех времен было обеспечение каждой семьи отдельной жилплощадью, хоть и маленького размера. О комфорте проживания людей никто не задумывался. Единственным достоинством таких построек является то, что у них внутренние стены являются перегородками, которые можно демонтировать. Благодаря этому перепланировка квартиры проводится оперативно и быстро.
Что такое перепланировка и как ее оформить
При перепланировке квартиры внутри помещения можно демонтировать или перемещать стены, делая пространство более уютным и комфортным для проживания. Но такие рабочие процессы нуждаются в законной документации. Если вы сделали перепланировку, но не узаконили ее, обращайтесь в суд. В противном случае, у вас могут возникнуть проблемы с законом, придется платить штрафы. Если вы только планируете заняться внутренними работами в своей квартире, необходимо сразу привести документы в порядок. Для этого вам потребуется:
Вариантов перепланировок квартир существует огромное количество. Чаще всего люди делят смежные комнаты, так как они доставляют массу неудобств владельцам. Стоит разделить две комнаты, слегка уменьшив в одной из них полезную жилую площадь.

Существует несколько вариантов перепланировки смежных помещений:
Совмещение зала с кухней
Чтобы сделать квартиру функциональной, удобной и практичной, совместим гостиную с кухней. За счет демонтажа межкомнатной перегородки между этими частями квартиры, получится дополнительный квадратный метр жилого пространства. Такая перепланировка откроет большие возможности при выборе интерьера. К ее основным преимуществам относится возможность выделить отдельные зоны для приготовления и приема пищи, и для отдыха. Демонтаж стены придаст комнате некую легкость и прозрачность.

Поделить помещение на зоны можно разными способами. С помощью:
Если на кухне имеется выход на балкон, этим можно воспользоваться и убрать смежную стену. Но в таком случае балкон должен быть утепленным и отапливаемым.
Совмещение ванной с туалетом
Каждый человек сам для себя должен решить, какая планировка жилья ему придется по душе. Специалисты советуют в малогабаритных квартирах совмещать сан. узел и ванную комнату в одно целое. За счет этого добавятся несколько лишних квадратных метров площади, на которых можно будет расположить корзину для белья и стиральную машинку.

Зонирование пространства
Сэкономить пространство в маленькой хрущевке и сделать жилье более функциональным поможет и грамотное зонирование. После смещения и демонтажа межкомнатных стен, рекомендуется применять дизайнерские методы, помогающие создать практичный интерьер. Поделить помещение на зоны можно с помощью мебели, ширмы, декора, занавесок.
Здесь лучше установить встроенную мебель. Она будет смотреться эстетично, не займет много места.
Зонирование с помощью разных отделочных материалов довольно актуально. При грамотном подходе можно будет спрятать недостатки и почеркнуть достоинства комнат.

Правила, которые нельзя нарушать
Приняв решение заняться перепланировкой жилья, необходимо учитывать, что существуют определенные правила, нарушать которые нельзя:
Идеи перепланировок 1 комнатной хрущевки
Большинство молодых семей могут позволить себе приобрести только однокомнатную квартиру. Если детей еще нет, можно соорудить из нее модную и стильную квартиру студию. В таком помещении полностью отсутствуют перегородки, за исключением ванной и туалета.
Вариантов перепланировки однокомнатной хрущевки существует несколько. А именно, здесь можно:
Чтобы хоть как-то увеличить свободное пространство в маленькой однокомнатной квартире, ванную рекомендуется заменить душевой кабинкой. Вместо массивной мебели стоит использовать компактные модульные или встроенные стенки.

Если вас не устраивает вариант сноса всех межкомнатных перегородок, стоит найти другие варианты, а именно, можно:
Перепланировать однокомнатную квартиру можно и с помощью установки гипсокартоновых стен. Конечно же, площадь квартиры не увеличится, зато в угловой зоне можно будет сделать отдельную спальню для взрослых, в которой разместится кровать и небольшой шкаф.
Идеи перепланировки 2 комнатной хрущевки
Как правило, квартиры в хрущевских домах строили двухкомнатными. Но они также отличаются маленькой площадью и неграмотным расположением комнат. Здесь присутствуют проходные помещения, которые абсолютно неудобные для проживания стандартной семьи с детьми. Чтобы решить проблемы, потребуется переместить перегородки и сделать комнаты отдельными.
Для этого достаточно сделать перегородку из гипсокартона между комнатой и коридором. Здесь у вас получится пространство, куда можно будет установить шкаф или даже сделать небольшую кладовку. Второе помещение, которое получится длинным и узким, разделяем на две части с помощью той же гипсокартоновой перегородки.

Наличие проходных комнат в постройках тех лет делает квартиры малофункциональными и неуютными. А после ее переделывания может получиться полноценное трехкомнатное жилье. Для этого потребуется из одной комнаты сделать две небольших, а в ванной можно увеличить пространство за счет коридора. Тогда дери на кухню будут выходить из гостиной.
Неплохим вариантом будет переделка двухкомнатного жилья в квартиру студию. В таком случае кухню и гостиную можно объединить в одно помещение, убрав между ними межкомнатную стену. Сместив входные двери, вы увеличите и пространство в прихожей. Вторую комнату можно также разделить на две отдельных.
Идеи перепланировки 3 комнатной хрущевки
Трехкомнатные квартиры по хрущескому типу также являются очень маленькими и тесными, особенно это касается туалета и ванной. Чтобы хоть как-то решить проблему, стоит снести перегородку между ванной и санузлом, а часть коридора, примыкающего к туалету, следует отгородить стеной, в том месте, где находятся двери.
Проходную комнату стоит сделать отдельной, переместив в нее вход из гостиной.
При грамотном подходе к обустройству трехкомнатной квартиры, вы можете получить две полноценные комнаты и одну большую гостиную, если из гостиной сделать вход в ванную, кухню и две спальни.
Из любой неудачной планировки можно сделать комфортное и функциональное жилье, если подойти к решению вопроса с полной ответственностью.

В заключение стоит отметить, что, несмотря на то, что квартиры хрущевского типа уже давно изжили себя, люди все равно приобретают такое жилье из-за его доступной стоимости. Решить проблемы маленьких кухонь, ванн и санузлов, а также проходных комнат можно с помощью смещения перегородок и грамотной современной планировки.
При этом стоит обязательно помнить, что любые изменения в жилье должны быть официально разрешены, на них должны быть сделаны специальные документы. Так как многие люди делают новые планировки, отталкиваясь от своих потребностей и вдаваясь в технические подробности, то это приводит к плаченым последствиям.
Варианты переделки хрущевок: 1, 2, 3, 4 — х комнатные, фото до и после
Не самые удачные квартиры в домах постройки времен Хрущева: очень маленькие площади и неидеальная планировка. В те времена решалась задача — обеспечить каждую семью отдельной жилплощадью, а на комфортность проживания никто особого внимания не обращал. Чем они хороши, так это тем, что перепланировка хрущевки особых трудностей не вызывает: несущие стены, как правило, только наружные, все остальные — это перегородки. Их можно сносить или перемещать без риска для несущей способности всего здания. Но это не значит, что работы по ремонту можно начинать без проекта и согласования. Любые изменения подлежат регистрации.
Что такое перепланировка и как ее оформить
Перепланировкой считается любое изменение конфигурации перегородок в квартире. В несущих стенах что-либо менять без предварительной оценки ущерба и определения мер по его устранению запрещено категорически. В случае с ненагруженными стенами или перегородками все не так категорично, хотя предлагается сначала составить проект, потом его согласовать и только после этого приступать к реализации задумок.
Стоит знать, что есть несколько недопустимых переделок, которые вам не согласуют никогда:
-
Расширение площади «мокрых помещений» — кухни, ванной и туалета — разрешено только за счет технических помещений. Над жилыми их располагать нельзя. То есть можно забрать часть коридора, встроенного шкафа, прихожей. В связи с этим могут возникнуть спорные моменты насчет некоторых типов перепланировок. В частности на фото ниже указана такая спорная зона.

Спорная зона при расширении площади санузла
Выделенный красным фрагмент фактически находится в коридоре, но по документами БТИ это жилая площадь. И если в таком виде подать перепланировку, ее не примут. Чтобы обойти эту преграду сначаластавят перегородку, отгораживающую коридор, оформляют эту перепланировку, потом подают проект с увеличенной площадью ванной.
- за счет площади санузла;
- если расширение происходит за счет площади жилой комнаты, нельзя на ней устанавливать сантехническое и кухонное оборудование (мойка и плита);
- если кухня оборудована газовой плитой, объединение ее с жилой комнатой запрещается.
Менять газовую плиту на электрическую — не всегда хороший выход, но обойти последний пункт можно и по-другому: поставив раздвижные двери или «гармошку».
Перепланировка однокомнатной хрущевки
Однокомнатные квартиры покупают в основном молодые люди. В этом случае возможный вариант перепланировки однокомнатной хрущевки — преобразование ее в квартиру студию. Обычно убирают все перегородки между комнатой и кухней, часто сносят еще перегородку, отделяющую прихожую.

Вариант перепланировки однушки в квартиру-студию
Что в любом случае остается неизменным — это местоположение санузлов: какой-либо перенос этих помещений в многоквартирных домах запрещен (за исключением первых этажей).
На фото выше перепланировка коснулась и санузла, но при этом своего местоположения он не поменял. Изменились размеры — увеличилась площадь за счет переноса двух стен: немного вперед вынесена та, которая обращена в комнату, и ближе ко входной двери перенесена боковая. Это дало возможность установить стиральную машину. С ней часто в малогабаритных квартирах бывают сложности. Прихожая в этом варианте небольшая, но зато в комнате можно выделить место под гардеробную.
Еще один вариант перепланировки 1-комнатной хрущевки представлен на следующем фото. В этом случае объединили коридор и кухню, двери в комнату перенесли дальше от входа, благодаря чему функциональность помещения значительно повысилась. Также появилась возможность выделить место под просторный встроенный шкаф в коридоре. Функциональность кухни не пострадала, ее площадь в результате разрушения перегородки даже слегка увеличилась — на 0,2 квадрата.

Перепланировка 1 комнатной хрущевки
Применен тут еще один распространенный в последние годы способ увеличения жилой площади — утепление балконов и лоджий. При достаточном уровне утепления и организации отопления там поддерживается комфортная температура. При этом убирать без особых сложностей можно ту часть стены, которая раньше была под окном. Остальную стену трогать нельзя. В данном случае на утепленной лоджии организован кабинет.

Планировка хрущевки: 1 комната
Рассмотрите еще такой вариант перепланировки однокомнатной хрущевки, которые строили в кирпичном доме. Тут другие площади, балкон вместо лоджии, очень маленькие санузел и небольшая кухня, но перегородки стоят также, как и в предыдущем случае.
За счет использования угловой душевой кабины и отказа от ванной, удалось оптимизировать расположение сантехники так, что образовалось место под стиральную машину. При этом стенка сделана скошенной, что дало увеличение площади кухни. Правда прихожая в таком варианте совсем небольшая, но зато кухня стала почти на метр (0,7 квадрата) больше.
Жилая площадь увеличена за счет утепления балкона, туда перенесен рабочий стол и шкаф. Особенность этой перепланировки в том, что заказчику требовалось на такой небольшой площади иметь 5 спальных мест: для 3 детей и 2 для взрослых. Как видите на фото все они имеются: одна кровать детская двухэтажная.

Еще один вариант перепланировки
Иногда предыдущая идея, что называется, «не греет». Отсутствие стен у кухни не все воспринимают нормально, пусть даже нет перегородки с прихожей, а не с комнатой… В следующем варианте перепланировка хрущевки производилась за счет переноса перегородок. Передвинута боковая стена прихожей — сдвинута в сторону комнаты. В то же время лицевая стенка прихожей подвинута почти вплотную к двери в санузел. В результате увеличена площадь прихожей, в ней появилось место под встроенный шкаф или гардеробную.
Чтобы компенсировать уменьшение площади комнаты, уменьшена площадь кухни. Но она почти не потеряла функционала, так как из-за переноса простенка ближе к двери ванной появилось место под установку холодильника. Такая перепланировка хрущевки привела к тому, что столовая зона перенесена в комнату, а распашные двери заменены на сдвижные или «гармошку».
При этом комната имеет Г-образный вид, а это дает возможность поставить перегородку, которая будет отделять «детскую спальню» от «гостиной-столовой». Этот же вариант подходит тем, кто из однокомнатной квартиры хочет сделать двухкомнатную. Часто такую переделку хрущевки затевают пары с маленьким ребенком.Еще один вариант переделки 1-комнатной квартиры в 2-х комнатную, при другой исходной планировке.

Из однушки сделать двушку
Это самый простой способ — поставить перегородку из гипсокартона. Занимать на должна не более половины просвета, чтобы во второй половине все-таки было естественное освещение.

Однушку в двушку
Еще один пример того, как можно угловую однокомнатную «хрущебу» превратить в квартиру студию с выделенной спальней. В спальне, конечно никаких лишних предметов быть не может, только кровать и шкаф. Зато она изолирована.
Переделка хрущевки двушки
Двухкомнатных хрущевок в домах этих лет большинство. Недостатки у них такие-же, как и у однокомнатных: маленькие площади и неудобная планировка, проходные помещения. Тем не менее, большинство проблем можно решить переносом некоторых стен. Например, смежные комнаты можно разделить, а попутно из двухкомнатной сделать трехкомнатную.

Переделка хрущевки: из «трамвайчика» делаем две раздельные комнаты
Ставим дополнительную перегородку, отделяющую комнату от коридора. Таким образом получается довольно обширное по размерам помещение, которое можно использовать как кладовку, а можно превратить в гардеробную. Второе помещение — длинное и узкое — разбивается на две зоны: спальню и гостиную при помощи легкой перегородки из гипсокартона или другого листового материала.
На фото ниже — другой тип проходных комнат в двушке: — чтобы попасть во вторую комнату, первую нужно пересечь от одной стены до другой. Крайне неудачная планировка в том плане, что функциональность первого помещение очень низкая: выпадает «мертвая» зона прохода. А так как часто в торце второй комнаты сделана кладовка, то и она не может использоваться полностью.

Еще вариант переделки двухкомнатной квартиры в трехкомнатную
По предложенному варианту переделки форма ванной за счет переноса стены становится прямоугольной, прихожая объединяется с первой комнатой. Ее используют как гостиную, из которой сделан вход в кухню. Дальнее помещение разбито на две небольшие спальни. Обратите внимание на перегородку между двумя спальнями — она нелинейная, чтобы была возможность устроить небольшую гардеробную в обоих комнатах.

Перепланировка хрущевки: 2 комнаты
Можно обычную двухкомнатную квартиру в панельной хрущевке превратить в современную квартиру-студию с объединенной гостиной-кухней. Основная задача при такой перепланировке — добиться разрешения перенести входные двери. При этом бывшая прихожая превращается в гардеробную. Кухня и гостиная объединяются за счет частично снесенной перегородки, также объединяется санузел.
При желании вторую комнату можно разбить на две при помощи легкой перегородки, которая отделяет спальню рабочей зоны или кабинета. Чтобы зонирование было более полным но при этом в спальне был доступ солнечного света, перегородку можно делать не на всю высоту, а примерно на 1,5 метра.

Интересный вариант перепланировки угловой двушки
Очень эффектно решен вопрос переделки двушки в этом варианте переделки. Фактически она стала трешкой. За счет того, что прихожая скошена, увеличена площадь санузла. Перегородка, отделяющая кухню от комнаты частично разобрана. Вторая комната разделена на две части, площадь второй увелисена за счет кладовки и стенного шкафа. Получилось две отдельных спальни, причем за счет того что квартира угловая, окна есть в обеих.
Коридор имеет необычную форму — его стены расположены по диагонали. Функциональность его небольшая, но и площадь тоже. А в остальном очень хороший вариант.
Перепланировка 3 х комнатной хрущевки
Переделка трехкомнатной квартиры в хрущевке серии II-57.3.2. Самое худшее в этом варианте — мизерные размеры туалета и ванной. В основном для того чтобы исправить ситуацию и затевался ремонт. Для перепланировки убрали простенки между туалетом и ванной, примыкающую часть коридора отгородили стеной, в которой сделали двери. Так как в зоне, где ранее был коридор, гидроизоляция перекрытия хуже, требуются в этой зоне дополнительные меры.

Перепланировка трехкомнатной хрущевки: фото до и после
Второе слабое место первоначальной планировки: некуда шкаф поставить. В занятом под ванную отрезке коридора был небольшой стенной шкаф, но он был очень мал. В связи с этим было принято решение перенести стену одной из спален, а на освободившемся месте сделать гардероб.
Чтобы объединить кухню и гостиную, была разрушена часть стены. Согласно проекта, необходимо было произвести усиление прилегающих несущих стен и перекрытия. Так как плита на кухне — газовая, необходимы двери. Были поставлены раздвижные.
Следующий вариант ремонта затевался с целью увеличить площадь санузлов, а также превратить одну из комнат в гостиную-столовую, с выходом в кухню. Попутно требуется получить две спальни.

Перепланировка 3 х комнатной квартиры хрущевки
Были разобраны простенки между туалетом и ванной, часть коридора отходит к санузлу. Для организации нормального пространства прихожей немного сдвигается стена одой из комнат. В кухню делают вход со стороны гостиной, на противоположной стене сделан вход во вторую спальню, а дверной блок, который ранее вел во вторую спальню демонтирован, проем заделан. Об оформлении арок читаем тут.

Переделка планировки: до и после
Еще один вариант. Главная задача, которую решает перепланировка хрущевки — увеличение площади кухни и санузла. Решение для санузла традиционное — убрали простенки, также выровняли выровняли стену. Маленькая кухня объединена со столовой. В ей даже нашлось место для группы отдыха — дивана и телевизора.
Решенная еще одна задача: проходные комнаты разделены. Произошло это за счет уменьшения площади, но помещения стали более функциональными, а в выгороженных площадях сделаны две гардеробные комнаты.
Если вы задумались о том, чтобы убрать перегородку между кухней и комнатой, об оформлении совмещенной кухни и гостиной можно прочесть тут.
Переделка 4 х комнатной хрущевки
При увеличении количества комнат в квартирах этой планировки, недостатки только усугубляются: маленькие санузел и кухня больше не становится, комнаты часто — проходные. Один из самых неудачных вариантов на фото ниже. Это то, что было «ДО» того.

Перепланировка 4 х комнатной хрущевки: фото «до»
В этой квартире относительно большая по площади прихожая, но она малофункциональна. Единственный угол с приличными стенками занят кладовкой. Все остальные стены использовать проблематично: в прихожую выходит 7 дверей.

Перепланировка 4 х комнатной хрущевки: фото «после»
В предложенном варианте комнаты имеют более правильную форму — ближе к квадрату, что проще использовать. Осталось две обособленных спальни, а две комнаты превращены в столовую и гостиную. Из прихожей вход в выгороженную гардеробную комнату.
Санузел остался раздельным, площадь ванной увеличена за счет спрямления стены. Часть, которая ранее относилась к коридору также требует усиления гидроизоляции.
Интересные варианты перепланировки хрущевских квартир
Во времена правления Хрущева дома строились с неудобными и непродуманными планировками. Основной идеей тех времен было обеспечение каждой семьи отдельной жилплощадью, хоть и маленького размера. О комфорте проживания людей никто не задумывался. Единственным достоинством таких построек является то, что у них внутренние стены являются перегородками, которые можно демонтировать. Благодаря этому перепланировка квартиры проводится оперативно и быстро.
Что такое перепланировка и как ее оформить
При перепланировке квартиры внутри помещения можно демонтировать или перемещать стены, делая пространство более уютным и комфортным для проживания. Но такие рабочие процессы нуждаются в законной документации. Если вы сделали перепланировку, но не узаконили ее, обращайтесь в суд. В противном случае, у вас могут возникнуть проблемы с законом, придется платить штрафы. Если вы только планируете заняться внутренними работами в своей квартире, необходимо сразу привести документы в порядок. Для этого вам потребуется:
- сделать новый тех. паспорт жилья;
- взять разрешение на перепланировку;
- подготовить документы собственника квартиры;
- сделать справку в МЧС, что жилье соответствует пожарным нормам безопасности;
- подготовить новый план проект;
Внимание: несущие стены в многоэтажных домах перестраивать или демонтировать строго запрещено.
Варианты перепланировок
Вариантов перепланировок квартир существует огромное количество. Чаще всего люди делят смежные комнаты, так как они доставляют массу неудобств владельцам. Стоит разделить две комнаты, слегка уменьшив в одной из них полезную жилую площадь.

Существует несколько вариантов перепланировки смежных помещений:
- Если они расположены одна за другой, необходимо расширить площадь проходного помещения за счет переноса стенки в меньшую комнату. В получившейся небольшой комнате организовываем спальню. Здесь прекрасно разместятся: кровать, прикроватные тумбы, небольшой платяной шкаф. Проявив дизайнерские способности, даже маленькую комнату мы сделаем уютной и комфортной для проживания. А второе помещение обустроим под гостиную.
- Если комнаты расположены одна вдоль другой, то можно просто снести межкомнатную перегородку, заменив ее колонами. Вряд ли такое жилье подойдет для семей с детьми, но для молодой супружеской пары это идеальный вариант.
Совмещение зала с кухней
Чтобы сделать квартиру функциональной, удобной и практичной, совместим гостиную с кухней. За счет демонтажа межкомнатной перегородки между этими частями квартиры, получится дополнительный квадратный метр жилого пространства. Такая перепланировка откроет большие возможности при выборе интерьера. К ее основным преимуществам относится возможность выделить отдельные зоны для приготовления и приема пищи, и для отдыха. Демонтаж стены придаст комнате некую легкость и прозрачность.

Поделить помещение на зоны можно разными способами. С помощью:
- напольного покрытия. Прекрасным выбором станет обустройство ступенек между столовой и кухней;
- освещения. В гостиной свет рекомендуется сделать более мягким и приглушенным, способствующим комфортному расслаблению и отдыху, а в рабочей зоне на кухне он должен быть ярким;
- разных отделочных материалов. Но при этом стоит учитывать, что в общем помещении должна быть выдержана одна цветовая гамма, подходящие друг другу орнаменты и узоры.
- текстиля, занавесок, передвижных ширм.
Внимание: стильно выглядят комнаты, где зоны кухни, гостиной и столовой разделены с помощью барной стойки. Такой интерьер отличается функциональностью, практичностью и стильным внешним видом.
Если на кухне имеется выход на балкон, этим можно воспользоваться и убрать смежную стену. Но в таком случае балкон должен быть утепленным и отапливаемым.
Совмещение ванной с туалетом
Каждый человек сам для себя должен решить, какая планировка жилья ему придется по душе. Специалисты советуют в малогабаритных квартирах совмещать сан. узел и ванную комнату в одно целое. За счет этого добавятся несколько лишних квадратных метров площади, на которых можно будет расположить корзину для белья и стиральную машинку.
Внимание: при демонтаже смежной стенки между ванной и туалетом, размеры помещения не будут способствовать установке огромной ванной. Для маленькой площади целесообразнее установить компактную душевую кабинку. Тогда комната станет привлекательной, функциональной и удобной в использовании.

Зонирование пространства
Сэкономить пространство в маленькой хрущевке и сделать жилье более функциональным поможет и грамотное зонирование. После смещения и демонтажа межкомнатных стен, рекомендуется применять дизайнерские методы, помогающие создать практичный интерьер. Поделить помещение на зоны можно с помощью мебели, ширмы, декора, занавесок.
Внимание: для малогабаритного жилья необходимо правильно подобрать мебель. Она должна быть вместительной, эргономичной, выдержанной в светлых тонах.
Здесь лучше установить встроенную мебель. Она будет смотреться эстетично, не займет много места.
Зонирование с помощью разных отделочных материалов довольно актуально. При грамотном подходе можно будет спрятать недостатки и почеркнуть достоинства комнат.

Правила, которые нельзя нарушать
Приняв решение заняться перепланировкой жилья, необходимо учитывать, что существуют определенные правила, нарушать которые нельзя:
- ванную и санузел можно расширять только за счет кладовки или коридора. Делать это за счет кухни или другого жилого помещения нельзя;
- несущие стены не трогаются. Единственное, что допускается законом — это сделать в них дверной проем;
- нельзя перемещать ванную в кухню или обратно, а санузел — в жилое помещение;
- при объединении жилых комнат с кухней, где проведен газ, стоит позаботиться о простой перегородке.
Идеи перепланировок 1 комнатной хрущевки
Большинство молодых семей могут позволить себе приобрести только однокомнатную квартиру. Если детей еще нет, можно соорудить из нее модную и стильную квартиру студию. В таком помещении полностью отсутствуют перегородки, за исключением ванной и туалета.
Вариантов перепланировки однокомнатной хрущевки существует несколько. А именно, здесь можно:
- убрать межкомнатные стены в прихожей, кухне, гостиной. За счет коридора слегка увеличится и площадь санузла;
- объединить кухню и коридор. Двери в комнату смещаются подальше от входа. При таком перемещении стен в коридоре появится место для установки встроенного шкафа.
- совместить лоджию и балкон. Но для такого варианта стоит тщательно утеплить комнату и провести отопление на балкон. На балконе можно будет соорудить рабочий кабинет.
Чтобы хоть как-то увеличить свободное пространство в маленькой однокомнатной квартире, ванную рекомендуется заменить душевой кабинкой. Вместо массивной мебели стоит использовать компактные модульные или встроенные стенки.

Внимание: не все люди по достоинству могут оценить преимущества студии. Ведь все жилое пространство при такой планировке получается открытым.
Если вас не устраивает вариант сноса всех межкомнатных перегородок, стоит найти другие варианты, а именно, можно:
- Сдвинуть боковую стену прихожей в сторону комнаты, а лицевую стену подвинуть вплотную к двери санузла. За счет таких действий увеличатся размеры прихожей, можно будет разместить небольшой шкаф — купе или гардеробную.
- Увеличить кухонное пространство за счет жилой комнаты. В дополнительном образовавшемся месте встанет холодильник или другие бытовые приборы. В таком случае часть кухни сдвинется в гостиную, и для оптимизации пространства потребуется установить раздвижные двери—гармошку. Комната получится Г — образной формы, ее можно будет удобным образом поделить на детскую и взрослую зоны с помощью перегородки.
Перепланировать однокомнатную квартиру можно и с помощью установки гипсокартоновых стен. Конечно же, площадь квартиры не увеличится, зато в угловой зоне можно будет сделать отдельную спальню для взрослых, в которой разместится кровать и небольшой шкаф.
Идеи перепланировки 2 комнатной хрущевки
Как правило, квартиры в хрущевских домах строили двухкомнатными. Но они также отличаются маленькой площадью и неграмотным расположением комнат. Здесь присутствуют проходные помещения, которые абсолютно неудобные для проживания стандартной семьи с детьми. Чтобы решить проблемы, потребуется переместить перегородки и сделать комнаты отдельными.
Внимание: при грамотном подходе к перепланировке двухкомнатной хрущевки, в результате у вас должно получиться комфортное трехкомнатное жилье.
Для этого достаточно сделать перегородку из гипсокартона между комнатой и коридором. Здесь у вас получится пространство, куда можно будет установить шкаф или даже сделать небольшую кладовку. Второе помещение, которое получится длинным и узким, разделяем на две части с помощью той же гипсокартоновой перегородки.

Наличие проходных комнат в постройках тех лет делает квартиры малофункциональными и неуютными. А после ее переделывания может получиться полноценное трехкомнатное жилье. Для этого потребуется из одной комнаты сделать две небольших, а в ванной можно увеличить пространство за счет коридора. Тогда дери на кухню будут выходить из гостиной.
Неплохим вариантом будет переделка двухкомнатного жилья в квартиру студию. В таком случае кухню и гостиную можно объединить в одно помещение, убрав между ними межкомнатную стену. Сместив входные двери, вы увеличите и пространство в прихожей. Вторую комнату можно также разделить на две отдельных.
Идеи перепланировки 3 комнатной хрущевки
Трехкомнатные квартиры по хрущескому типу также являются очень маленькими и тесными, особенно это касается туалета и ванной. Чтобы хоть как-то решить проблему, стоит снести перегородку между ванной и санузлом, а часть коридора, примыкающего к туалету, следует отгородить стеной, в том месте, где находятся двери.
Внимание: при такой перепланировке потребуется позаботиться о гидроизоляции той части, где раньше располагался коридор. Прекрасным выбором станет и объединение гостиной с кухней. Для этого убираем часть стены и проводим усиление несущих стен и перекрытий. Так как на кухне имеется газ, то в гостиную стоит установить раздвижные двери.
Проходную комнату стоит сделать отдельной, переместив в нее вход из гостиной.
При грамотном подходе к обустройству трехкомнатной квартиры, вы можете получить две полноценные комнаты и одну большую гостиную, если из гостиной сделать вход в ванную, кухню и две спальни.
Из любой неудачной планировки можно сделать комфортное и функциональное жилье, если подойти к решению вопроса с полной ответственностью.

В заключение стоит отметить, что, несмотря на то, что квартиры хрущевского типа уже давно изжили себя, люди все равно приобретают такое жилье из-за его доступной стоимости. Решить проблемы маленьких кухонь, ванн и санузлов, а также проходных комнат можно с помощью смещения перегородок и грамотной современной планировки.
При этом стоит обязательно помнить, что любые изменения в жилье должны быть официально разрешены, на них должны быть сделаны специальные документы. Так как многие люди делают новые планировки, отталкиваясь от своих потребностей и вдаваясь в технические подробности, то это приводит к плаченым последствиям.
Перепланировка хрущевки: реальные фото в интерьере и схемы
Каждый человек нуждается в комфортном, красивом и стильном интерьере, который будет соответствовать его потребностям. Именно поэтому многие собственники решаются прибегнуть к перепланировке хрущевки и реорганизации пространства.
Что нужно знать для согласования перепланировки?
Перепланировка квартиры должна быть согласованной и выполняться по закону. Серьезные изменения в ремонте требуют разрешения от специальных организаций.
Документы
Понадобятся следующие документы:
- Заявление в котором указаны подробности перепланировочных изменений
- Проект с техническим заключением, подтверждающим безопасность ремонта.
- Техпаспорт.
- План БТИ по этажам.
- Согласие от всех, кто проживает в квартире.
- Документ, доказывающий право на собственность жилья.
Сроки согласования
Инспекция выносит решение в течении 45-ти дней. В случае отказа, есть возможность оспорить решение через суд. При получении положительного ответа, хозяин хрущевки после завершения ремонтных работ должен пригласить комиссию, чтобы подписать перепланировочный акт. Квартиру заново замеряют и вносят изменения в технический паспорт.
Пошаговая инструкция
Последовательность действий перед началом ремонта:
- Для создания более комфортабельного дизайна хрущевки, в первую очередь следует учитывать потребности и пожелания каждого члена семьи. Таким образом поучится создать все необходимые зоны и не обделить никого личным пространством.
- Затем требуется произвести замеры, и на их основе начертить проект. На графическом плане должны быть указаны все коммуникации, мебель, перегородки и прочие интерьерные предметы.
- После того, как в квартире определено расположение основных функциональных зон и готов предварительный проект, нужно обратиться в специализированные организации для согласования перепланировки.
Способы перепланировки: допустимые и запрещенные
Несколько нюансов, которые нужно принять во внимание.
| Допустимые | Запрещенные |
|---|---|
| Во время перепланировки нельзя затрагивать несущие стены. | |
| Запрещено увеличение санузла за счет жилой комнаты. | |
| Также нельзя расширить кухонное пространство за счет туалета или ванной. | |
| Совместить жилое помещение с кухней без дверей, на которой установлена газовая плита. | |
| Небезопасным является присоединение теплого пола к общему отоплению и трубам с горячей водой, а также перенос траектории или перекрытие вентиляции. | |













































